2023. 1. 16. 09:05ㆍ아티클 | Article/연재 | Series
Architecture that responds to cluster's infection such as COVID-19
메르스로 다인 병실 병상당 유효바닥 면적 개선…‘코로나 이후 집단 감염병에 대응하는 건축적 대안 마련하는 계기 돼야’
관계의 건축
평소에 우리가 접하는 건축 디자인은 사람과 사람 그리고 도시, 사회, 자연 등의 관계를 조명하고 그 사이에서의 소통을 지향한다. 하지만 메르스, 코로나19와 같은 집단 감염증 속에서 우리는 관계를 단절시키기 위한 건축을 필요로 하고 있다. 일상을 생활하기 위한 건축이 아닌 일상을 지키기 위한 건축으로서 격리의 건축을 격리병실과 임시시설의 대응을 통해 알아보고자 한다.

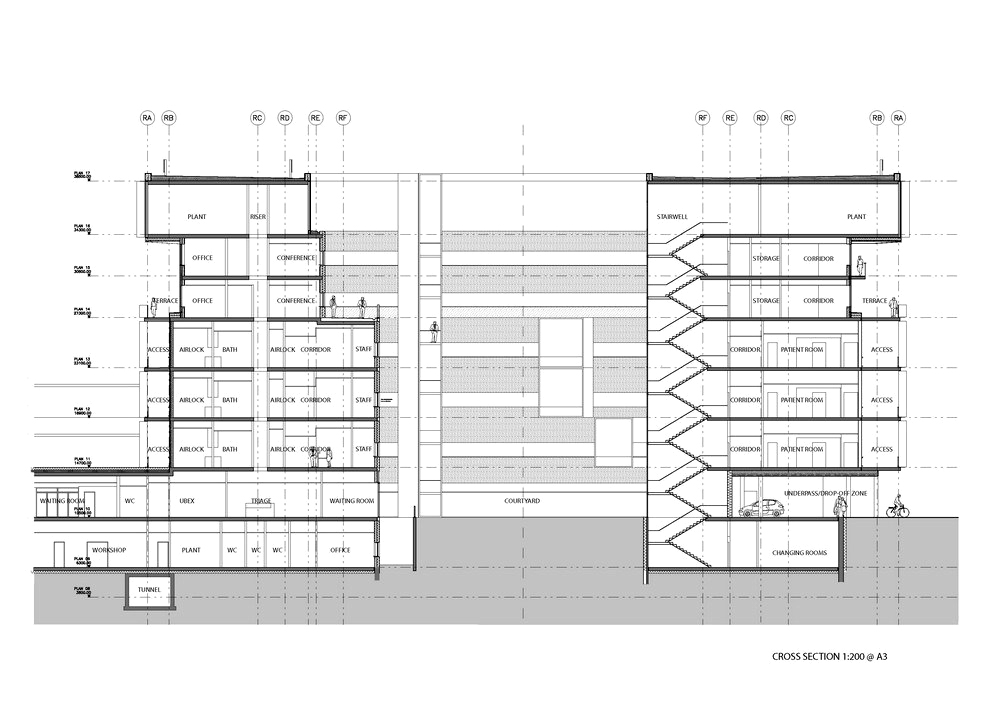
격리병실
격리란 감염병 전파를 방지하기 위해 감염병 환자와 의사환자 등을 다른 이들로부터 분리하는 조치를 일컫는 의학용어이다. 이때 격리가 필요한 감염병은 제1급 감염병과 제2급 감염병 등이 해당된다. 현재 코로나19의 경우 제1급 감염병으로 분류되고 감염경로는 비말, 접촉으로 파악되며, 다양한 호흡기 감염증이 증상으로 나타나고 있다. 음압격리병실은 이러한 감염병의 2차감염 방지와 의료진의 안전을 확보하기 위해 사용되고 있다.
음압격리병실은 이름 그대로 실내를 실외보다 음압으로 만들어 외부의 기압이 높은 쪽에서 기압이 낮은 내부로 공기가 들어오게 한 것으로 환자의 호흡 등으로 배출된 바이러스가 섞인 공기가 외부로 빠져나가지 못하게 차단하는 병실이다. 또한 오염된 공기의 확산을 확실하게 방지하기 위해 병실에 전실을 두어 2중으로 방지하고, 화장실의 불쾌한 냄새 등이 병실 내로 유입되지 않도록 외부복도>전실>병실>화장실 순서로 기압이 낮아지도록 설계한다. 이러한 압력차는 주로 제1종 기계환기설비를 사용한다. 제1종 환기 방법은 급기, 배기를 모두 기계력을 이용해 수행하는 것으로 실내외의 압력차를 조절할 수 있다는 특징이 있다. 이때 병실 내의 안정적인 음압을 유지시키기 위해 급기는 CAV(Constant Air Volume)방식, 배기는 VAV(Variable Air Volume)방식을 사용하며, CAV는 일정한 풍량을 유지하는 정풍량, VAV는 설정값에 따라 풍량을 변화할 수 있는 변풍량 방식으로 배기되는 공기량을 이용해 음압값을 설정한다.
감염균의 생존력과 관계가 밀접한 온·습도는 증기 가습방식을 이용해 적절한 습도를 유지하고, 오염된 공기유출을 차단하기 위해 역풍방지댐퍼(Draft Damper)를 이용한다. 음압병실의 환기는 바이러스의 확산을 방지하기 위해 기계환기 방식 중 상향환기 방식을 주로 사용하며, 환자의 비말이나 객담에 의한 질병 감염을 예방하기 위해 기존 상부환기와 다르게 환자의 머리 상부에 환기구를 배치하고 배기의 오염된 공기 확산 차단, 급기의 질 좋은 공비 공급을 위해 HEPA필터(High Efficiency Particulate Air filter, 고성능의 멸균필터)를 사용한다. 병실 내부의 공기조화 방식과 설비는 이와 같이 형성되어 있으며, 병상과 외부의 관계는 다시 전실을 사이에 두고 분리되어 있다. 의료진은 이 전실에서 손소독과 방호복을 착용 후 병실의 음압복도로 들어가게 되며, 나올 때는 경의실을 통해 방호복을 벗고 세척 후 전실 전의 탈의실로 나갈 수 있다. 이처럼 출입 동선이 분리되어 바이러스 유출을 차단하며 감염병 환자와 병원 직원의 동선 또한 분리해 출입문을 따로 설치한다. 음압격리병실 내부 인테리어는 벽 이음매의 밀폐처리, 청소에 용이하도록 모서리가 둥글게, 바닥 오염 방지를 위해 벽걸이식으로 배치되어 있다.
2020년 1분기 통계청 자료에 따르면 상급종합병원, 종합병원, 병원들의 일반 입원실의 총 병실수는 16만5,628개소, 병상수는 62만9,458개소이며, 격리병실의 병실수는 1,802개소, 병상수는 3,411개소이다. 이 자료를 보면 격리병실은 전체 17만9,021개소의 병실 중 1퍼센트의 비율을 차지하고 병상수로 보면 70만7,792개소의 병상 중 0.4퍼센트의 비율을 가진다. 이전의 메르스와 같은 감염병, 그리고 현재 코로나19 상황에서 격리시설이 부족한 현상에도 불구하고 격리시설은 일반병실의 병상수에 비해 0.4퍼센트의 비율(의원, 요양병원 등을 제외한 수치이며 위 3개의 분류 병원을 제외하면 대부분 일반병실만 가지고 있다)의 병상만 확보되어 있다. 이러한 사실은 실 면적과 병실 유지비용, 병상가동률을 살펴보면 알 수 있다. 2017 보건복지부 보도자료를 보면 격리병실은 1인실을 권장하며 1인실의 면적 15평방미터에 반해 일반병실 1인실은 10평방미터, 다인실 1인당 6.3평방미터로 일반병실이 많아질수록 병원 내 병상수를 늘릴 수 있다. 또한 음압병실은 연간 유지비용으로 2억5,000만 원 정도를 필요로 하지만 연간 병상가동률은 10%를 밑돌고 있다. 2018년 7월 개원한 마산의료원 독립음압병동은 42억 원의 비용을 들였지만 2년간 병상가동률은 6퍼센트를 기록했다.
이전과 이번의 감염병의 특수한 집단감염을 제외하면 현재의 격리병실은 사실상 충분하게 확보되어 있다. 이러한 특수상황에 건축은 어떤 선택을 해야 하는지 이번 코로나19를 통해 확인하고 많은 고민이 필요해 보인다.
코로나19로 인한 집단감염 확산과 건축적 문제점
가장 두드러지게 보여지는 문제로는 공공병원의 음압격리병상의 부족이 지적된다. 코로나19 확진자 치료와 격리에 필요한 음압격리병상이 부족한 상황이다. 2019년 기준으로 국가지정격리병상은 198병상, 민간병원에 있는 병상까지 포함해도 1,027병상 수준에 그친다. 또한 국내 감염병 전문병원으로는 2017년에 국립중앙의료원과 조선대병원이 지정된 것이 전부이고 전북과 충북, 강원 지역에는 없는 상황이다. 감염병을 전담하는 지역거점병원과 격리병상은 지역 간 편차가 심한 편이어서, 해당 병원 및 병상이 부족한 지역의 환자를 다른 곳으로 이송하거나 일반 병원을 감염병 병원으로 지정하는 방법을 추진하고 있다.
음압격리병실 공급부족문제
현재 전국에 있는 음압시설은 지난해 12월 기준, 음압격리병실 755개, 음압격리병상 1,027개로 확인됐다. 그중에서도 국가지정 음압병상은 전체의 20% 수준인 198개(전국 29개 병원)뿐이다. 나머지는 상급종합병원과 종합병원 등의 민간병원에 해당한다. 음압병상 수가 부족한데에는 해당 시설을 유지·관리하는데 드는 높은 비용에 있다. 문제는 이러한 비용에 대한 정부와 의료계의 극명한 온도차를 보이고 있다는 점이다. 정부가 말하는 경제성과, 의료계가 주장하는 경제성이 상반되는 것이다. 또한 의료계는 음압병실에 대한 정부의 지원도 미비한 수준이라고 꼬집고 있다.

감염병 전문 병원의 부족
국가지정 음압병상조차 감염병 관리에 최적화 된 시설이 아니다. 격리치료실만 있을 뿐 필요한 지원공간이 존재하지 않아 종합적 감염관리가 어렵다. 감염병 전문병원이 있어야 고위험 신종감염병 대응을 위한 고도음압격리시설을 운영하고, 일시에 대량 감염병 환자가 발생했을 때 격리와 치료를 할 수 있음에도 병원당 2~10개의 소규모 음압병상을 운영하기 때문에 대량의 집단환자 수용도 불가능하다. 지난 2016년 질병관리본부는 용역보고서를 통해 메르스사태등 감염병 위기 시 제대로 대응하려면 136병상 이상 중앙감염병전문병이 필요하고, 5개 지역에 각각 50병상 이상의 권역감염병전문병원을 설립해야 한다고 밝힌 바 있다.
음압격리병상이 턱없이 부족한 상황에서 우리는 중증도에 따라서 병실을 활용해야만 한다. 음압격리병실은 병실마다 구조적·기능적 차이가 있고, 환자의 감염력 혹은 중증도에 따라서 활용할 수 있는 병실이 달라지게 된다. 즉, 음압격리병실 수준이 환자의 병상 배정에 영향을 줄 수 있다는 것이다. 국가지정 음압치료 병상 운영과 관리 지침에 따라 지어진 시설을 A등급 음압격리병상으로 볼 수 있다. 이는 기본적으로 복도 및 복도 및 복도 전실이 있어 병동이 분리되고, 병실에도 전실이 있어 3차 이상의 음압이 가능하다. B등급 음압격리병상은 병동 분리는 되지 않지만 병실에 전실이 있어 2차 음압이 가능한 병상이다. C등급 음압격리병상은 전실이 없어 병실이 일반 환자 및 의료진과 분리가 되지는 않지만, 공기의 흐름이 밖에서 안으로만 흐르게 설계돼 단독 공조만 가능한 병상이다. D등급의 경우 일반 병실에 이동형 음압기를 설치해 일시적으로 공기 흐름을 밖에서 안으로 가능하게 만드는 병상을 의미한다. 전문가들은 이러한 기준에 따라 A급 음압격리병상만을 고집하며 시설을 확충해나갈 것이 아니라, 단계별 병상의 적절한 확충이 필요하다고 지적하고 있다.또한 공공의료기관의 병상 수를 보충해야 한다. 우리나라는 OECD 국가 중 인구대비 두 번째로 많은 병상을 가지고 있지만, 코로나 사태를 직면한 상황에서 병상 부족이라는 기현상이 발생하고 있다. 원인은 공공병상 비율이 병상 수 대비 약 10.3% 밖에 되지 않기 때문이다. OECD 평균 73.7%에 비하면 턱없이 부족한 수이다. 또한 치료 목적이 아니라 생활·요양 등을 위해 병원에 입원하는 이른바 '사회적 입원' 문제가 감염병 및 재난상황에 대처할 유휴병상이 부족한 원인으로 꼽히기도 한다.
부족한 의료 시설, ‘임시 건축물’로 보충
코로나19 바이러스가 확산되면서 건축적으로 보여지는 가장 큰 문제점은 수용할 공간이 부족하다는 것이다. 앞서 밝힌 음압병실의 경우 이번 사태처럼 대규모 확산이 벌어진 상황에 대응할 만큼 시설이 확보되어 있지 않고, 신속하게 대응할 수 있는 공간으로 기능할 수 있을지에 대해서도 의문이 있다. 그렇다면 현재 세계는 코로나 바이러스에 대응하여 어떤 공간을 이용하고 있는가?
전염병뿐 아니라 재난, 재해 등의 상황에서 만들어진 임시시설에 대한 이미지는 미디어를 통해서 사람들에게 인식되어 있다. 코로나19 바이러스 확산 상황과 흡사하다는 평을 받고 있는 영화 ‘컨테이젼’에선 임시시설로 체육관을 이용해 소독실, 환자 침대 등을 48시간 안에 준비한다. 이 같은 발 빠른 대응이 가능했던 것은 학교 강당과 체육관 또는 경기장처럼 기존 공간을 임시 시설로 활용했기 때문이다. 실제로 브라질 파카엠부 스타디움에는 코로나19 감염증 환자를 치료하기 위해 200여 개의 야외 병동이 설치됐고, 뉴욕에선 세인트 존 더 디바인 대성당을 임시병동으로 사용해 최소 200명 이상의 감영증 환자를 수용하고 있다.
앞선 경우처럼 기존 건축물을 활용하는 방법이 있는가 하면, 짧은 시간을 들여 임시 건축물을 짓는 방법이 있다. 이번 코로나19 바이러스 사태 대응 과정에서도 다양한 임시 시설을 구축하고 있다. 이는 코로나19 바이러스 사태에서 건축적 문제로 제기되었던 부족한 의료 시설에 대한 해결 방안이자, 일반 병원에서 일어날 수 있는 전염에 미리 대비하는 방안이기도 하다.
일본에서는 2020년 5월 2일 의료기관 병상 부족을 해소하고자 설치한 임시건축물을 ANN을 통해 공개했다. 발표에 따르면 오다이바에 있는 체육관과 인근 배 과학관 주차장에 대형 텐트와 임시건축물을 설치해 합계 300개의 병상을 추가할 것을 계획했고, 산소호흡기와 같은 처치가 필요하지 않고 회복 단계에 접어든 환자를 받아들일 수 있는 의료 시설로 활용할 것이라고 밝혔다.


체육관이라는 기존 건축물 속에 병실 모듈을 구성해 환자를 수용하거나, 과학관처럼 수용 인원이 많은 공간의 넓은 주차장을 대지로 삼아 임시 건축물을 설치하는 방식은 이번 사태에 대응하는 방안으로 가장 많이 활용되는 방식이 되고 있다.
다만 임시건축물에 대한 불만도 제기되고 있다. 중국 우한에 건설된 훠선산 병원은 코로나19 바이러스가 폭증한 이후 환자를 수용하기 위해 2020년 2월 2일에 지어진 임시 병원이다. 군 야전병원 형식으로 건설되었는데, 공사 열흘 만에 완공되어 그 속도가 화제가 되기도 했다, 3만3,940㎡ 규모에 100개 병상 규모로 웬만한 대학병원 수준의 병상 수를 갖추고, 내부에는 중환자실, 외래 진료실, 음압병실, 중앙 공급 창고 등의 시설을 갖추고 있다. 그러나 빠른 시간 안에 건축된 당월인 2020년 2월 건물 이곳저곳에서 누수 문제가 생겨 급하게 보수해야 했고, 이는 중국의 ‘벼락치기’ 공사로 지어진 부실건축물이라는 혹평을 받았다. 또한 훠선산 병원을 이용한 사람들은 병실 출입문이 바깥에서만 열 수 있고, 군인들이 운영 주체가 되어 철저한 외부 통제가 가능하다는 점에서 치료하기 위한 목적보다 ‘수용소’에 가깝다고 지적되었다.
국내에서는 코로나19 바이러스 확산으로 치료 시설이 부족하게 되자 코오롱그룹이 ‘모듈형 음압치료병실’을 제작해 무상으로 제공한 사례가 있다. ‘모듈러 공법’을 통해 22일 만에 24병실 규모의 음압병동을 구축했는데, 서울대병원 의료진과 감염병 환자 치료에 최적화된 설계가 적용됐고, 시공을 맡은 코오롱글로벌은 이를 토대로 2주 만에 모듈러 음압병실 24병상을 만들었다. 이후 현장에서 조립하는데 3일이 소요됐고, 현재는 24개 병실이 한 층으로 구성되어 있지만, 기술적으로 최대 8층까지 쌓아 올릴 수 있어 부족한 의료 시설에 대해 양적으로 빠르게 대응할 수 있다. 또한 이 시설은 설치 및 해체, 이동이 쉬워 향후 유사한 상황이 발생할 경우 재활용이 가능하다는 장점이 있다.
모듈러 공법을 통해 지어진 음압병실이 있는가 하면, 모듈에 가장 대표적인 ‘컨테이너’를 이용한 방안도 제안되고 있다. 이탈리아 건축 스튜디오인 Carlo Ratti Associati와 Italo Rota가 공동 설계한 ‘CURA’는 운송 컨테이너를 코로나19에 대한 플러그인 집중 치료 포드로 변환시켰다. 재사용이 가능한 6.1미터 운송 컨테이너로서 치료 목적의 병상이 부족한 상태에도 즉시 사용이 가능하고, 선박에서 철도에 이르기까지 다양한 운송 방식으로 쉽게 이동할 수 있다. 또한 기존 병원의 주차장에 설치해 집중 치료 시설을 늘리거나, 운동장과 같은 넓은 공간에 다양한 배열로 구축해 임시 치료 시설로 운영할 수 있다. 컨테이너가 하나의 유닛이 되어 장소의 특성에 따라 자율적으로 배치가 가능하다는 큰 장점이 생기게 된 것이다. CURA 프로젝트의 컨테이너에는 병원 및 실험실에서 오염 공기가 빠져나가지 않도록 하는 기술의 하나인 부압을 발생시키는 환기 시스템을 갖췄고, AIIR(Airborne Infection Isolation Room) 표준을 준수하도록 설계되었다. 이러한 임시 의료 컨테이너는 기존 컨테이너의 장점에 따라 병원의 공간 부족과 질병 확산에 즉각적으로 대응할 수 있는 방법이 된다.
과거 감염병 예방 및 대응을 위한 공간과 동선
코로나19가 빠른 속도로 확산되고 있는 지금도 국제사회는 의료 시설을 보충하고 있지만 사후대응이라는 관점에서, 또 이미 과거 비슷한 집단 감염 사례가 있었다는 점에서 뒤늦은 조치가 아닐 수 없다. 과거로부터 현재에 이르기까지 집단 감염 질병에 대응하는 건축적 발전에 대해 알아본다.
감염으로부터 안전한 의료시설_메르스 이후 달라진 기준
지난 2015년 중동호흡기증후군(Middle East Respiratory Syndrome)은 오랫동안 유지되어오던 의료법을 개정하는 계기가 되었다. 다인 병실의 병상당 유효바닥 면적이 4.3제곱미터에서 6.3제곱미터로 2제곱미터 증가했고, 1인 병실의 경우 10제곱미터로 상향 조정돼 미국의 FGI(The Facility Guidelines Institute) 기준인 11.15제곱미터와 비슷한 수준이 됐다. 다인 병실의 병상 간 유효간격도 1.5미터 이상이 되도록 하는 등 전염병 발생으로 인해 의료법의 기준이 변화되고 개선되고 있다. 300병상 이상의 종합 병원에서는 음압 격리 병실을 300병상 당 1개 + 추가 100병상 당 1개실을 구비 하도록 의무화 했고, 격리병실 또한 300병상 당 1개 이상 구비하도록 하였다.
스위스 스코네 대학병원_오염 수직 동선과 청결 수직 동선
스웨덴에 위치한 스코네 대학병원 감영 병동은 감염병 확산에 대한 위험을 최소화 할 수 있도록 수직 동선을 분리한 사례이다. 외부 리프트는 전염병 환자 및 병원 폐기물 제거를 위해서만 사용되고, 의료진과 청결한 물품 공급은 내부 리프트를 이용한다.

세종병원 응급의료센터 리모델링_감염병 예방과 확산 방지를 위해 응급환자 동선 반영
부천에 위치한 세종병원은 지난 3월 응급의료센터 리모델링 공사를 완료했다. 리모델링을 거친 응급의료센터는 감염병 예방과 확산 방지를 위해 응급환자의 동선을 최우선으로 반영했다. 감염병 환자가 응급의료센터로 이송될 경우, 센터 내부의 환자들이 감염되지 않도록 동선을 구축했고, 응급환자의 동선을 최소화하기 위해 CT, MRI 등 영상 촬영을 위한 진료실로 바로 갈 수 있는 동선을 새롭게 확보했다.
서울 이대병원_감염 예방 최우선 조닝(Zoning) 구성
1, 2차 메르스 이후 감염 병동의 환기, 양·음압 및 오·배수 처리에 대한 기준이 생기면서, 서울 이대병원은 감염병 예방에 공헌할 수 있는 조닝 구성을 보여준다. 권역 응급센터, 응급실, 중환자실, 수술실, 감염센터 등 특수목적 구역은 단독 조닝으로 구성됐고, 음압병실도 응급실과 별도의 출입구를 마련해 감염 가능성을 최소화했다. 이대 서울병원은 설계 단계부터 일반 환자와 감염 및 의심환자의 동선을 분리하고, 병원 외부에서 감염내과로 바로 연결되는 전용 출입구를 두어 원내감염을 막을 수 있는 동선 확보를 가장 우선적으로 고려했다. 또한, 병원 내부를 청정도에 따라 별도의 구역으로 나누고, 중요도에 따라 적합한 공조 시스템을 반영해 감염과 교차오염으로부터 안전한 시스템을 적용했다.
관련해 건축계 관계자는 “과거 감염병 사례를 통해 의료 시설 일부에 대한 발전이 있었지만, 아직 감염병에 대한 온전한 대비책은 마련하지 못한 실정이다”면서 “이번 코로나19 사태를 통해 질병에 대한 보다 면밀하고 구체적인 대응태세 구축과 점검이 필요할 것이고, 건축적 대응 방안을 함께 계획하고 마련해야 할 것이다”고 밝혔다.
글. 김미현(Kim, Mihyeon_전남대학교 건축도시설계전공),
임대근(Lim, Daeguen_금오공과대학교 건축학과),
주평화(Joo,Peoynghwa_전남대학교 건축도시설계전공),
홍성훈(Hong,Seonghun_인제대학교 건축학과)
'아티클 | Article > 연재 | Series' 카테고리의 다른 글
| 안녕, 잉카 01상상과 호기심의 도시, 마추픽추를 걷다 Ⅰ2020.6 (0) | 2023.01.16 |
|---|---|
| “환경 파괴에 온 몸으로 맞선 폼포코 너구리의 분투기”신도시, 과연 모두를 위한 최선일까? 2020.6 (0) | 2023.01.16 |
| 불멸의 건축 04광화문(光化門) 2020.5 (0) | 2023.01.13 |
| 초연결사회, 집중화된 도시 문제를 드러낸 영화 ‘컨테이젼’ 2020.5 (0) | 2023.01.13 |
| [Archisalon]주거복지와 공동체 회복, 사회문제를 해결하고 극복하는 ‘건축’ 2020.5 (0) | 2023.01.13 |