2023. 1. 17. 09:13ㆍ회원작품 | Projects/Office
QUEENS’ PARK 13

마곡 퀸즈파크 13은 문영과 마곡에 진행한 5번째 프로젝트이다. 벌써 5번째인가 할 정도로 세월이 유수와 같이 빨리 흘렀으며, 마곡의 모습도 참으로 많이 변하였다. 본 프로젝트는 이전 프로젝트들과는 다르게 공항대로의 동서의 강한 평행축을 갖는 대지가 아닌 남북의 축을 갖는 대지이다. “어차피 대지일 뿐 축이 무슨 상관이냐” 하겠지만, 예전부터 관습적으로 내려오던 서울의 메인 축은 동서축이라는 고정 관념 때문에 남북의 축을 갖는 대지는 왠지 모르게 메인이라기 보다는 마이너한 대지라는 생각이 드는 것은 쓸데없는 편집광적인 잡념일지 모르겠으나, 세운상가가 그랬듯이 남북축의 상가가 가지는 부정적 이미지를 떨쳐 버릴 수 없었음은 건물 디자인에도 반영될 수밖에 없었다. 도로에 면한 메인 파사드가 정면성을 갖는 것이 당연함에도 불구하고, 정면성을 갖는다는 것이 무슨 죄인 양 계획 내내 디자이너들을 괴롭혔고 결국 정면성을 갖기 보다는 정면과 측면 모두가 메인이자 마이너인 입면을 가지도록 하고 싶었다. 세로 패턴창의 규칙적이면서도 불규칙적인 입면은 도시의 콘텍스트인 가로의 연속성을 저층부의 규칙적인 입면 패턴으로 표현하는 요소로써, 동시에 우리 건물의 아이덴티티를 구현하는 상층부 매스의 불규칙성으로 표현하는 요소로써 사용하고자 하였다. 독보적인 디자인으로 혼자 뽐내고 있는 예쁜 건물이 아닌 도시 콘텍스트의 순응 속에서 우리 건물만의 아이덴티티를 가짐과 동시에 주변 건물과의 언어적 대화를 통하여 모든 건물들이 서로의 가치를 더욱 높일 수 있는 담담한 건물이고자 하였다.

Magok Queens Park 13 is the fifth project in Munyeong and Magok. As time flows away like a flowing stream, it is already the fifth project. Magok has also changed a lot in the meantime.
Unlike the previous projects, this project is a site with the north-south axis, not a site with a strong parallel axis in the east-west of Gonghang-daero. Some think it's just an ordinary project site, so why the axis is a matter, but I feel like a site with the north-south axis is not the mainstream because of the conventional stereotype that Seoul's main axis is the east-west axis. This could be a monomaniacal distracting thought with worthless clutter. But as in Sewoon Shopping Center, the negative image of the shopping center with the north-south axis was inevitably reflected in the building design.
Naturally, the main facade facing roads has frontality. However, as if they are sinning, I demanded designers throughout planning to make both the front and the side to be both primary and minor elevations rather than strong frontality. The facade of regular and irregular vertical pattern windows was intended to be used as an element to express horizontal continuity, which is an urban context, as a consistent elevation pattern on the lower floor. And at the same time, it was designed to serve as an element to express the irregularity of the upper mass that embodies our building identity.
We tried to build a quiet house with its own identity while conforming to the urban context and has a verbal dialogue with the surrounding buildings so that all of the buildings can increase each other's value, instead of a pretty building solely boasting its unique design.








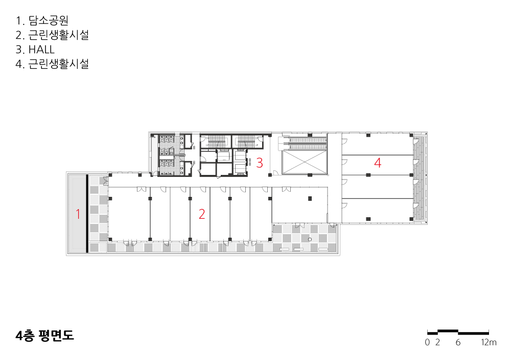
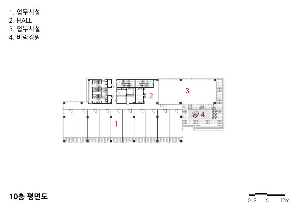
| 마곡 퀸즈파크13(마곡 C12-8,16) 설계자 | 이병철 _ (주)이가플랜 건축사사무소 건축주 | (주)문영종합개발 감리자 | 이병철 _ (주)이가플랜 건축사사무소 시공사 | (주)문영엔지니어링 설계팀 | 박경수, 정다혜, 김남윤, 김지은 대지위치 | 서울특별시 강서구 마곡중앙로 55(마곡동, 문영 퀸즈파크13) 주요용도 | 업무시설, 근린생활시설 대지면적 | 2,563.90㎡ 건축면적 | 1,441.15㎡ 연면적 | 17,226.08㎡ 건폐율 | 56.21% 용적률 | 399.76% 규모 | 지하 4층, 지상 10층 구조 | RC 외부마감재 | Low-E 복층유리, 알루미늄 복합 판넬 내부마감재 | 무석면텍스, 무석면비닐타일, 화강석 물갈기, 친환경수성페인트 설계기간 | 2017. 08 ~ 2018. 06 공사기간 | 2018. 05 ~ 2019. 12 사진 | 김재윤 전문기술협력 - 구조분야 : (주)이건구조기술사사무소 - 토목분야 : (주)아남이엔지 - 조경분야 : (주)솔토조경 - 기계설비·전기·소방분야 : (주)한길엔지니어링 |
QUEENS’ PARK 13 Architect | Lee, Byungchul _ EGAPLAN Architects & Engineers Co., Ltd Client | MUNYOUNG Co., Ltd Supervisor | Lee, Byungchul _ EGAPLAN Architects & Engineers Co., Ltd Construction | MUNYOUNG Engineering Co., Ltd Project team | Park, Kyungsu / Jung, Dahye / Kim, Namyoon / Kim, Jieun Location | 55, Magokjungang-ro, Gangseo-gu, Seoul, Korea Program | Business facilities, Commercial Facilities Site area | 2,563.90㎡ Building area | 1,441.15㎡ Gross floor area | 17,226.08㎡ Building to land ratio | 56.21% Floor area ratio | 399.76% Building scope | B4F - 10F Structure | RC Exterior finishing | Low-E Glass, Aluminium Composite Panel Interior finishing | Asbesos free fibro tex, Asbesos free vinyl tile, Eco friendly water paint Design period | Aug. 2017 ~ Jun. 2018 Construction period | May 2018 ~ Dec. 2019 Photograph | Kim, Jaeyoon Structural engineer | Yigun Structure Technician Office Civil engineer | Anam-eng Co., Ltd Landscaping | Soltos Co., Ltd Mechanical·Electrical·Fire engineer | Han Gil ENC Co., Ltd |

'회원작품 | Projects > Office' 카테고리의 다른 글
| 3.1빌딩 리노베이션 2021.3 (0) | 2023.02.01 |
|---|---|
| 모제림 모발이식센터 리노베이션 2020.10 (0) | 2023.01.25 |
| 클리오 사옥 2020.6 (0) | 2023.01.16 |
| 현암 2019.11 (0) | 2023.01.06 |
| 디자인비따 2019.11 (0) | 2023.01.06 |