2023. 1. 18. 09:19ㆍ회원작품 | Projects/Neighborhood Facility
Icheon Pottery Studio

이천도예공방은 이천도자예술마을 진입로에 위치해 오랫동안 새로운 건축물을 기다리고 있던 부지였다. 처음 계획안은 단일한 매스에 공방과 전시장, 가마와 작업장이 구성되어 있었지만 중정의 마당을 품어 펼쳐진 구성으로 변경하는 것에서 설계가 시작되었다. 건축주는 이 장소를 마주했을 때 작업장과 전시장으로 에워싸인 마당을 염두하고 있었다.
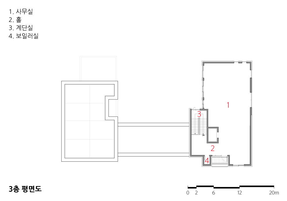
마당은 대지 내에 존재하는 모든 공간과 연결된다. 3층으로 구성된 매스는 마당으로 분리되고 그 사이의 갤러리는 투명한 덩어리로 두 매스를 연결한다. 유리로 처리된 갤러리 공간은 대지동측의 천변공간과 마당을 시각적으로 개방하는 효과를 가지게 된다. 마당으로 확장되는 갤러리의 공간은 이 공방의 방문자와 사용자가 만나는 한 층 더 큰 공간으로 자리하게 된다.
건축물 전체는 모두 검은색의 벽돌로 쌓여 있다. 처음부터 도자기를 생산하고 전시하는 도예공방의 이미지를 어떻게 표출할 것인가가 고민이었다. 도자기를 건축물에 직접 표현하는 무리수를 두기보다는 도자기와 같이 소성과정을 거친 벽돌을 어떠한 과장 없이 그 자체로 건축물을 이루도록 의도했다. 조적조 자체의 양괴감을 살리기 위해 외부로의 창은 최대한 절제한 것도 순수한 재료의 성질과 매스를 존중하는 태도의 결과이다.
마당에 들어서면 반대편에 마주하는 가마는 노출콘크리트로 수성되었다. 공간전체를 구성하는 벽돌건물과는 결이 다른 아이콘으로 갤러리의 유리면과 함께 마당의 성격을 규정하는 또 다른 장치인 셈이다. 이렇게 개방된 전시장과 상부의 벽돌매스, 작업장과 가마가 마당을 중심으로 펼쳐지게 된다.
건축물은 투명한 전시장과 갤러리 위에 떠 있는 덩어리이다. 다양한 이야기로 장소를 규정하기 보다는 소성재료의 물성이 단순한 덩어리로 인식되기를 의도했다.

Located at the entrance of Icheon Ceramics Village, Icheon Ceramics Workshop was a site that had been waiting for the construction of a new building for a long time. The original plan was to have a workshop, an exhibition hall, a kiln, and a workplace in a single mass. However, it was changed to have a courtyard and organized around it. Then, we started designing. The client wanted to have the scenery of a workshop and an exhibition hall around the yard.
The yard is connected to all the spaces on the site. The three-layered mass is separated from the yard, and the glass-treated gallery in between connects two masses through a transparent mass. The riverside space and the courtyard on the eastern side of the site make it look more open. The gallery expanded into the yard, which gives the effect that visitors and users of this workshop are meeting in a larger space.
The building is entirely built of black brick. We were concerned about how to express the image of the ceramics workshop that produces and displays ceramics. We did not overreach by showing ceramics directly on the building but decided to use brick, a material that has undergone firing, such as ceramics. The brick itself was used to make up a building without any exaggeration. We restrained the outside window as much as possible because we aimed to respect the nature and mass of pure materials by making use of the volume of the masonry itself.
The kiln opposite the entrance of the yard was completed with exposed concrete. It is another visual effect that defines the yard's character with the glass side of the gallery because it has a different role from brick buildings that make up the entire space. So the open exhibition hall around the yard, the upper brick mass, the workshop, and the kiln unfold.
The building is a mass floating on a transparent exhibition hall and a gallery. We aimed to express the properties of firing materials as a pure mass rather than defining a place with various stories.







| 이천도예공방 설계자 | 이호락 _ 알에이케이 건축사사무소 건축주 | 이정미 감리자 | 이호락 _ 알에이케이 건축사사무소 시공사 | 동명건설(주) 설계팀 | 정인환, 엄상준 대지위치 | 경기도 이천시 신둔면 도자예술로62번길 170 주요용도 | 근린생활시설 대지면적 | 991.30㎡ 건축면적 | 387.35㎡ 연면적 | 779.86㎡ 건폐율 | 39.07% 용적률 | 78.67% 규모 | 지상 3층 구조 | 철근콘크리트조 외부마감재 | 점토벽돌 치장쌓기 내부마감재 | 노출콘크리트, 친환경 페인트 설계기간 | 2019. 01 ~ 2019. 04 공사기간 | 2019. 05 ~ 2020. 01 사진 | 윤홍로 구조분야 : (주) 허브구조엔지니어링 기계설비분야 : (주) 정도설비 전기분야 : (주) 나래디엔에이 |
Icheon Pottery Studio Architect | Lee, Horak _ R.A.K Architects & Associates Client | Lee, Jeongmee Supervisor | Lee, Horak _ R.A.K Architects & Associates Construction | Dongmyeong Construction Project team | Jung, Inhwan / Eom, Sangjun Location | 170, Dojayesul-ro 62beon-gil, Sindun-myeon, Icheon-si, Gyeonggi-do, Korea Program | Neighborhood living facility Site area | 991.30㎡ Building area | 387.35㎡ Gross floor area | 779.86㎡ Building to land ratio | 39.07% Floor area ratio | 78.67% Building scope | 3F Structure | RC Exterior finishing | Brick clay Interior finishing | Exposed mass concrete, Eco-friendly paint Design period | Jan. 2019 ~ Apr. 2019 Construction period | May 2019 ~ Jan. 2020 Photograph | Yun, Hongro Structural engineer | Hub sructural engineering Mechanical engineer | Jungdo engineering Electrical engineer | Naray design & administration |

이천도예공방 이호락 건축사
사무소 알에이케이 건축사사무소 _ 서울특별시 종로구 이화장길99, 태림빌딩3층
Tel. 02-766-1483 · Fax. 02-765-1483
건축사 이호락은 성균관대학교 건축공학과와 동대학원에서 수학하고 (주)정림건축 종합건축사사무소에서 디자인총괄로서의 역할을 수행했다. 2018년 R.A.K건축사사무소를 설립해 운영하고 있으며 2005년부터 성균관대학교, 경기대학교 및 서울시립대학교 건축학과에서 겸임교수로 활동하고 있다.
대표작으로는 YB1979(행운동 공동주택), 평택 석정55, 이천도예공방, 더마펌 강릉 등이 있으며 화성박물관으로 한국건축문화대상, 시그니처 타워로 서울시 건축상, 국회의원회관 증축, 리모델링 설계로 리모델링대상 등을 수상한 바 있다.
'회원작품 | Projects > Neighborhood Facility' 카테고리의 다른 글
| 평택 비전동 상가주택 2020.8 (0) | 2023.01.18 |
|---|---|
| 도시다반사 2020.8 (0) | 2023.01.18 |
| 춘양 봄볕 지역아동센터 2020.8 (0) | 2023.01.18 |
| 영해 푸른꿈 지역아동센터 2020.8 (0) | 2023.01.18 |
| 영양군 공립형 지역아동센터 2020.8 (0) | 2023.01.18 |