2023. 1. 18. 09:20ㆍ회원작품 | Projects/Neighborhood Facility
DOSI DABANSA

대지 전면의 폭은 10m가 채 되지 않고 동서로 좁고 긴 형태였다. 또한 대지를 둘러싼 건물들의 일조권 역시 고려해야 했다. 그동안의 프로젝트와 다른 환경의 작업이었던 만큼, 흔히 사용하지 않던 마감재, 새로운 구법 등을 통해 입체적이고 리듬감 있는 건물을 구상해야 했다.
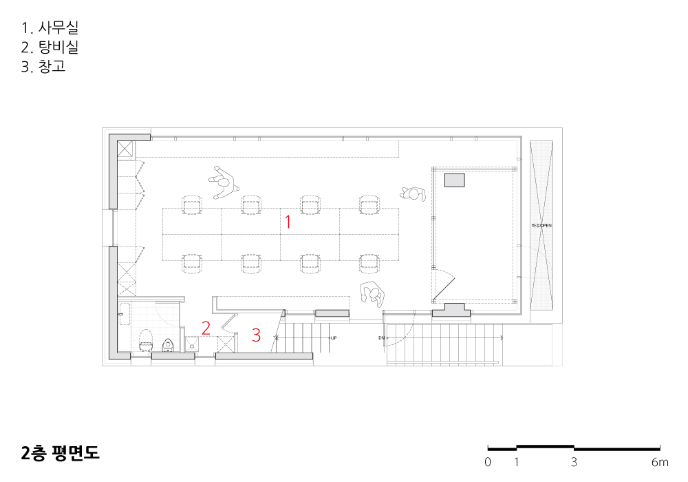
여백을 통한 여유, 숨 쉴 수 있는 건축물이라는 키워드와 더불어 가장 많이 고민한 부분은 계단의 배치였다. 2,3층은 16명의 직원들의 사무공간으로, 4층은 세미나, 티타임 등의 휴식시간 및 미팅을 위한 공간으로 활용될 수 있도록 구상한 만큼 건물 전 층에 접근성이 좋은 계단을 구성하는 것은 필수적이었다. 그러나 건물 내부에 계단실을 따로 둔다면 사무실이 좁아지면서 남,북으로 나뉘기 때문에 차라리 계단이 건축물 외부를 두르며 위아래로 각 층을 오르내릴 수 있도록 설계했다. 외부의 계단 덕분에 층계를 오르며 하늘을 바라볼 수 있고, 계단에서 내려오면서 중곡동 골목 풍경을 감상할 수 있게 됐다.
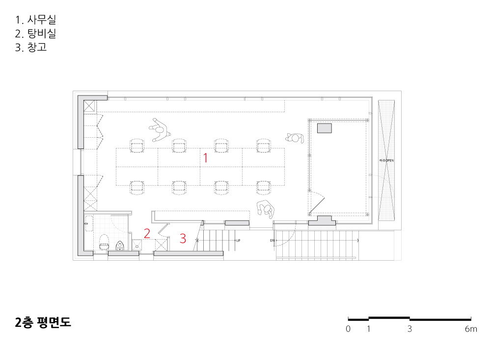
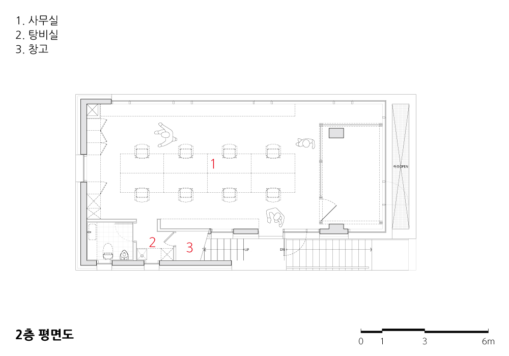
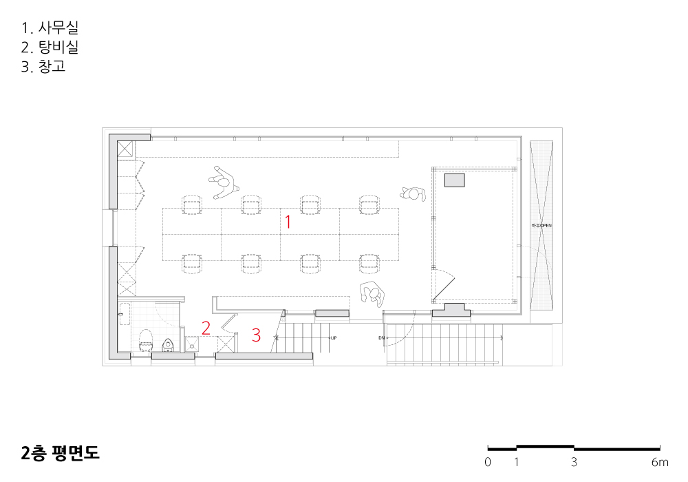
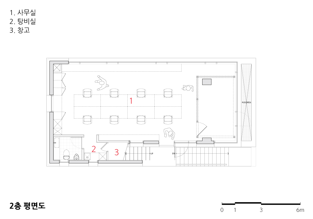
1층에서 외부의 계단을 통해 다다르는 지상 2층은 8명의 직원들이 근무할 수 있도록 중앙에 사무공간을 마련했고, 전면부에는 소규모 회의를 위한 미팅룸을 배치했다. 중목구조로 구분한 이 공간은 클라이언트에게 샘플이 되기도 하는 공간이다. 도시다반사의 2,3,4층에는 각각 숨을 쉴 수 있는 공간을 마련했는데, 2층의 테라스는 바닥을 스틸 그레이팅으로 구성해 한층 가벼운 느낌으로 연출했다.
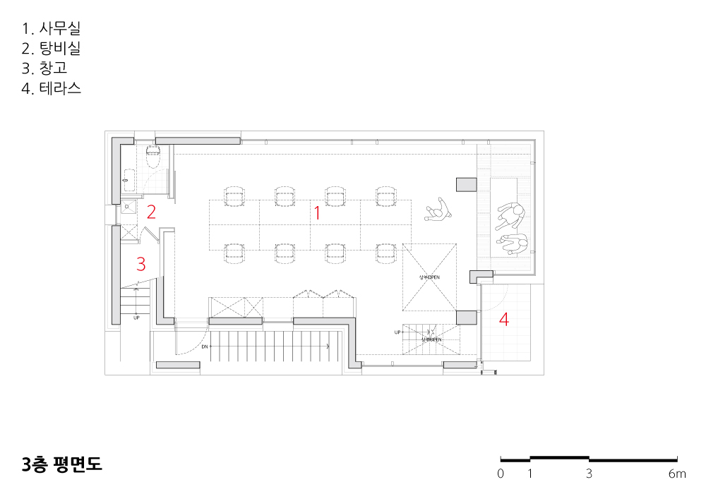
3층 역시 사무공간이며 2층과 마찬가지로 연속되는 띠 창을 계획해 일조량을 확보함과 동시에 실내의 개방감을 가져왔다. 띠 창으로 인해 건물의 입면은 세 단의 수평적 프레임과 그 사이의 틈으로 구분되며, 수평성을 강조하기 위해 가로로 긴 타일로 건물의 외피를 감쌌다. 3층의 전면부에는 일부 공간을 좌식으로 쉴 수 있도록 계획했다. 공간의 활용을 최대한도로 끌어올리기 보다 건물 자체가 숨을 쉴 수 있고, UTAA의 직원들도 한 차례 쉬어갈 수 있도록 배려한 것이다.
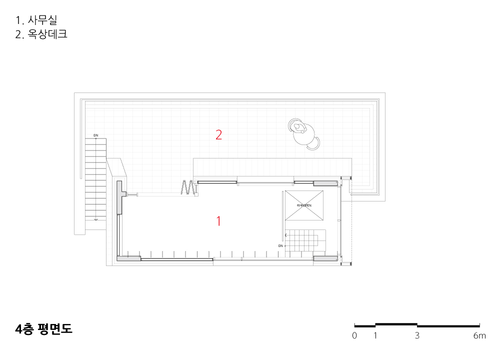
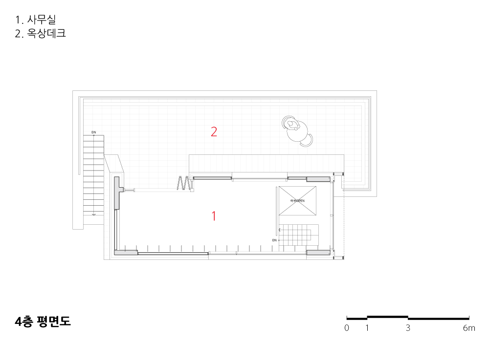
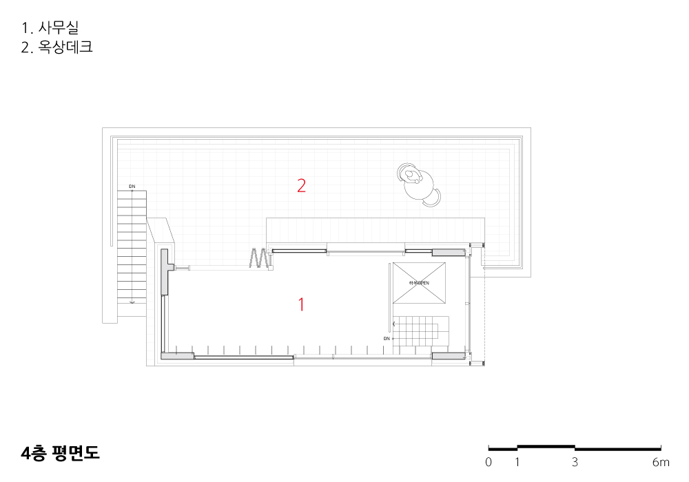
북쪽을 향하는 벽체가 사선으로 구성된 4층은 일부 공간을 테라스로 활용, 모든 직원들이 자유롭게 쉴 수 있도록 했다. 4층은 내 외부를 완전히 분리하기보다 서로 적당하게 교체되면서 숨 쉴 수 있는 공간으로 구성했다. 이것은 평소 UTAA 건축사사무소가 염두에 두고 있는 공간 철학이 물리적으로 드러난 것이다. 3층과 계단으로 이어진 이 공간은 때에 따라 세미나실로, 또는 클라이언트와의 미팅을 위한 공간으로 활용할 수 있도록 했다.

The width of the site front was less than 10 meters, and the site was not only narrow but also long from east to west. Besides, we had to consider the right of light of the buildings surrounding the site. As a project in a different environment from our previous projects, we had to design a three-dimensional and rhythmic architecture by using original finishing materials and new construction methods.
We most considered the layout of stairs and the keyword of a building where people can rest and breathe through blank space. Since the 2nd and 3rd floors are to be office space for 16 employees and the 4th floor to be a space for seminars, breaks such as tea breaks, and meetings, it was essential to install stairs with good accessibility on all levels of the building. However, having a separate staircase inside the building would make the office even narrower and divided into north and south. So stairs are preferably designed to go up and down each floor outside the building. Due to the stairs outside, you can look at the sky when you go upstairs and the alley scenery of Junggok-dong when you go downstairs.
The second floor above the ground, which reached through the outdoor stairs on the first floor, has an office space in the center for eight employees to work and a meeting room for small meetings in the front. This space, separated by a heavyweight lumber structure, is also a sample for clients. The second, third, fourth floors of DosiDaBansa, each of the levels has a space to breathe. Uniquely, the terrace on the second floor was constructed with steel grating to give a lighter feel.
The third floor is also office space and designed to have a connected sash window, as the second floor, to secure sunshine and bring openness to the interior. Due to the sash window, the building's elevation divided into three horizontal frames. A gap between them and horizontally long tiles are wrapped around the building's envelop to emphasize horizontality. Some spaces are for sitting on the floor on the front of the 3rd floor. The building itself can breathe rather than making the maximum use of space, and it was to consider UTAA employees to take a brief break.
The fourth floor, which has a diagonal wall facing the north, uses some spaces as a terrace so that all employees can rest freely. We designed the fourth floor to breathe both internally and externally through properly replacing them, rather than completely separating them. This is a physical manifestation of UTAA Architecture's spatial philosophy. This space, connected to the third floor and stairs, can be used as a seminar room or a meeting room with clients.









| 도시다반사 설계자 | 김창균, 최병용 _ (주)유타 건축사사무소 건축주 | (주)유타 건축사사무소 감리자 | 김창균, 최병용 _ (주)유타 건축사사무소 시공사 | (주)시스홈 종합건설 설계팀 | 최병용, 노서영, 이재원, 이조은 대지위치 | 서울특별시 광진구 긴고랑로 22길 26 주요용도 | 근린생활시설 대지면적 | 137.90㎡ 건축면적 | 82.46㎡ 연면적 | 255.29㎡ 건폐율 | 59.80% 용적률 | 185.13% 규모 | 지상 4층 구조 | 철근콘트리트조 외부마감재 | 세라믹타일, 필로브 내부마감재 | 노출 콘크리트 설계기간 | 2017. 07 ~ 2018. 01 공사기간 | 2018. 03 ~ 2019. 03 사진 | 진효숙, 홍석규 구조분야 : 하이구조 기계설비분야 : 코담기술단 전기분야 : 코담기술단 소방분야 : 코담기술단 |
DOSI DABANSA Architect | Kim, Changgyun / Choi, Byeongyong _ UTAA Company Client | UTAA Company Supervisor | Kim, Changgyun / Choi, Byeongyong _ UTAA Company Construction | Syshome C&L Project team | Choi, Byeongyong / Roh, Seoyeong / Lee, Jaewon / Lee, Joeun Location | 26, Gingorang-ro 22-gil, Gwangjin-gu, Seoul, Korea Program | Commercial Facilities Site area | 137.90㎡ Building area | 82.46㎡ Gross floor area | 255.29㎡ Building to land ratio | 59.80% Floor area ratio | 185.13% Building scope | 4F Structure | RC Exterior finishing | Ceramic tile, FILOBE aluminum window Interior finishing | Exposed concrete Design period | Jul. 2017 ~ Jan. 2018 Construction period | Mar. 2018 ~ Mar. 2019 Photograph | Jin, Hyosuk / Hong, Seokgyu Structural engineer | Hi structural engineers Mechanical engineer | Codam Co. Ltd. Electrical engineer | Codam Co. Ltd. Fire engineer | Codam Co. Ltd. |

도시다반사 김창균 건축사
사무소 (주)유타 건축사사무소 _ 서울특별시 긴고랑로22길 26 도시다반사
Tel. 02-556-6903 · Fax. 02-556-6904 · 홈페이지 www.utaa.co.kr
서울시립대학교 건축공학과를 졸업하고 동대학원에서 석사 학위를 받았다. 이후 건축설계뿐 아니라 다양한 작업에 참여하며 실무경험을 쌓았고 2009년 UTAA건축사사무소를 개소했다. 현재 (주)유타건축사사무소 대표이자 당진시 공공건축가로 활동하고 있다. 2011년 문화체육관광부에서 주관하는 ‘젊은 건축가상’, 2013년 목조건축대상, 2018년 스틸하우스 건축대전 최우수상, 2019년 경남건축대전 대상 등을 수상한 바 있다. 주요 작업으로 포천 피노키오 예술체험공간, 서울시립대학교 정문, 삼청가압장, 보성주택, 이천 상가주택(Sugarlump), 용인 단독주택(규우주), 파주 시네마하우스, 양산 언덕위의 집, 제주 H-HOUSE, 청담동 비원, 도시다반사, 여수 모이핀 카페, 은혜의 교회 채플 등이 있다.
'회원작품 | Projects > Neighborhood Facility' 카테고리의 다른 글
| 베비에르 담양 2020.9 (0) | 2023.01.19 |
|---|---|
| 평택 비전동 상가주택 2020.8 (0) | 2023.01.18 |
| 이천도예공방 2020.8 (0) | 2023.01.18 |
| 춘양 봄볕 지역아동센터 2020.8 (0) | 2023.01.18 |
| 영해 푸른꿈 지역아동센터 2020.8 (0) | 2023.01.18 |