2023. 1. 25. 09:19ㆍ회원작품 | Projects/Neighborhood Facility
IL GWANG _ YOURS

이 건축물은 파도의 움직임과 해변 형상, 파도의 물보라 등을 이미지화하고, 형상을 만드는 스키마가 됐다. 이 스키마들은 서로 융합하고 작용해 이미지를 만들어낸다. 흰색 볼륨이 엉키면서 각자 덩어리로 드러나는데, 그 흰색 덩어리는 넘실거리는 파도와 대화를 시도한다. 서서히 높아지면서 구축되는 공간은 건축적 시선을 고려한 것이다. 건축적 시선 앞에 연속적인 전경이 만들어지고, 이 전경은 계속해서 이 장소만의 풍광을 만들어낸다. 그리고 이 풍광은 이용자의 움직임을 유도하면서 말을 건넨다.
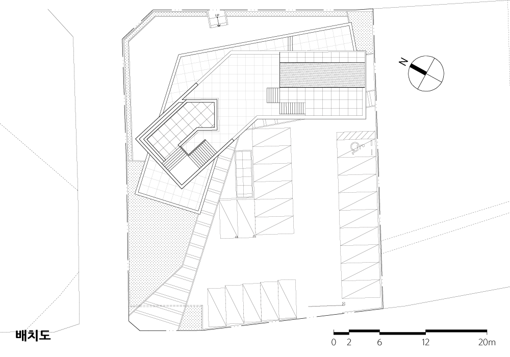
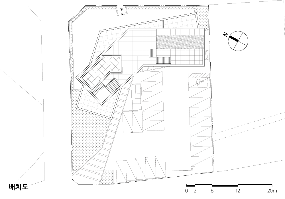
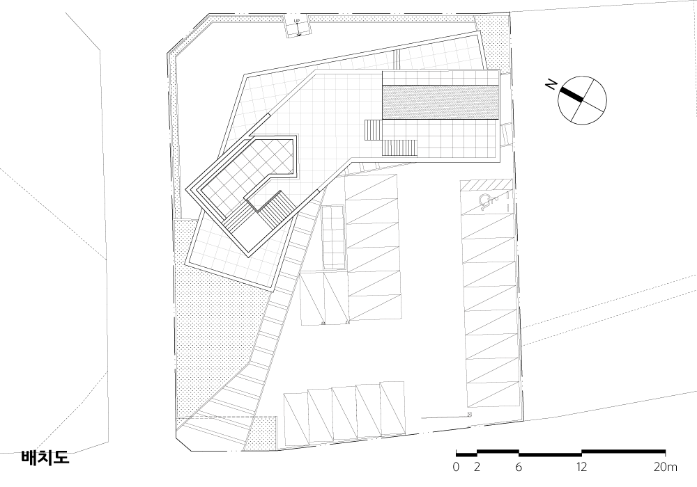
건축물은 일광 해안 생김새에 대응하는 방식으로 자리를 잡았고, 이를 통해 가장 효율적인 바다 조망을 이끌어낸다. 외부 도로에서 동선을 유도하는 통로를 지나면, 건축물에 도달하기 전에 색다른 반 외부적인 공간부스를 접하게 된다. 이 볼륨은 거친 노출콘크리트로 구축돼 있는데, 유리를 이용해 에워쌈의 농도를 조절하면서 공간을 만들어낸다. 그곳은 비워져 있지만, 우리는 비워진 공간을 의아하게 바라보면서 공간의 존재를 느낀다.
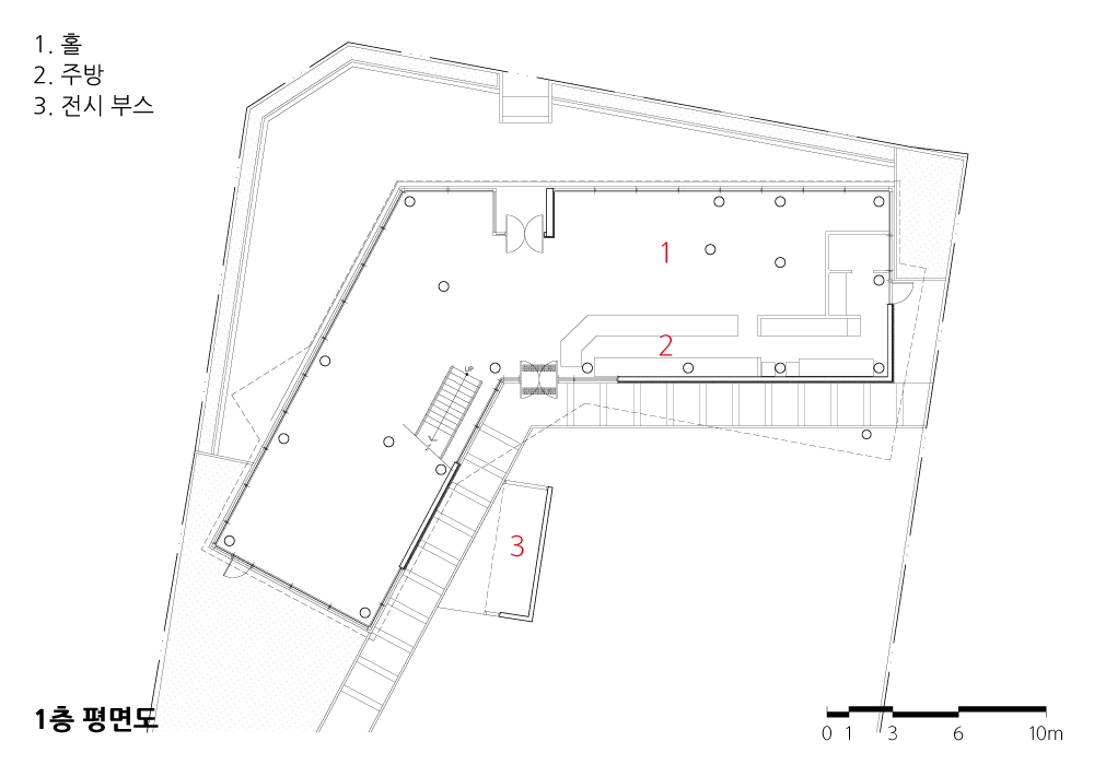
1층으로 들어가면 휘감아 돌면서 상승하는, 한눈에 바라볼 수 없는 공간을 볼 수 있다. 이곳에서 바다를 바라보면 외부 난간으로 수평선만이 보인다. 내부는 역동적이지만, 외부 바다는 정적인 모습으로 인식될 수 있도록 의도적으로 시선의 높이를 조절했다. 2층으로 오르는 계단은 하나의 오브제로 강조했다. 이 계단은 상부층과 한 공간임을 나지막하게 이야기한다. 계단을 오르는 동안 보이는 풍광은 2층에 도달하면 새로운 방향성으로 시선을 유도한다. 앞에 펼쳐진 2층 풍광은 이용자가 재빨리 우측으로 돌아가도록 유도한다.
2층은 2단계 레벨로 구성돼 있다. 2층 외부 테라스는 또 다른 레벨로 이뤄져 있다. 이러한 레벨 차이는 다양한 지점에서 바다를 향한 시선을 확보할 수 있도록 한다. 2층 종점에 위치한 빛이 가득한 유리 볼륨은 옥상으로 유도한다. 이제부터는 바다의 파도소리와 바람소리를 직접 들을 수 있는 공간의 연속이다. 옥상은 바로 바다를 보여주지 않는다. 바다를 보려면 또 한 번 수고를 해야 한다. 두 갈래 움직임 중 한 개를 선택해야 한다. 이러한 노력은 색다른 바다와 풍광을 선택할 수 있는 노력으로 느껴질 것이다.


This building has become schemas that embody and visualize waves' movement, spray, and beach. These schemas fuse and work together to create images. The white volume makes them tangled, but each lump conspicuous, and the white lump attempts to talk to the rolling waves. The space that was gradually going up and completed takes into account an architectural perspective. A continuous panorama is formed in front of the architectural gaze, and this panorama creates the unique scenery of this place with no breaks while moving. And this scenery guides the movement of users and talks.
The building is located in a way that responds to the appearance of Ilgwang Beach so that it draws the most efficient ocean view. If you access through the passage leading to the movement flow line from the road outside the building, you will encounter a semi-external space booth before reaching the building. This volume is made of rough exposed concrete, and it creates space by adjusting the extent of enclosing using glass. Although it is inadvertently emptied, we can feel the existence of space while looking at the opened space wonderingly.
When you enter on the first floor, the space that cannot be seen at a glance is twining around and rising. When you stand here and look at the sea, you can see only the horizon through the outdoor railing. Although the interior is dynamic, the gaze's height is intentionally adjusted so that the ocean outside is perceived to be static. The staircase to the second floor is emphasized as a single object, whispering that it is in one space vertically with the upper floor. The scenery you can see when going up the stairs leads to a new direction of gaze as you reach the second floor. And the scenery on the second floor before you show users to turn right quickly.
The second floor consists of two levels, and the outdoor terrace on the second floor consists of another level. This level difference plays a role in securing sea views from various points. The light-filled glass volume at the end of the second floor is a guidance system that leads you to go up to the roof, and then space where you can directly hear the sound of waves and wind is continued. When you get to the rooftop, the sea scenery doesn’t spread out before your eyes. To see the sea, you have to move once again. Now, you should choose either one of the movements at a fork, and this is what you get for your efforts to select a unique and beautiful sea view.










| 일광 유얼스 설계자 | 오신욱_(주)라움 건축사사무소 건축주 | 주식회사 이영디앤디 감리자 | 목전건축 시공사 | (주)광신종합건설 설계팀 | 안신, 유성철, 윤정옥, 최윤정, 김다영, 임아현 대지위치 | 부산광역시 기장군 일광면 기장해안로 1290 주요용도 | 근린생활시설 대지면적 | 1,355.00㎡ 건축면적 | 353.07㎡ 연면적 | 588.90㎡ 건폐율 | 26.06% 용적률 | 43.46% 규모 | 지상 3층 구조 | 철근콘크리트조 외부마감재 | 대리석(화이트) 내부마감재 | V.P 도장 설계기간 | 2017. 01 ~ 2017. 07 공사기간 | 2017. 08 ~ 2018. 04 사진 | 윤준환 구조분야 : 인구조 기계설비분야 : 신흥 전기분야 : 영신 |
IL GWANG _ YOURS Architect | Oh, Sinwook_Architects Group RAUM Client | EYOUNG D&D Supervisor | Mok Jeon Construction | GwangShin Project team | An, shin / Yu, Seongcheol / Yoon, Jeongock / Choi, yunjeong / Kim, Dayeong / Lim, Ahyun Location | 1290, Gijanghaean-ro, Ilgwang-myeon, Gijang-gun, Busan, Korea Program | Commercial Facilities Site area | 1,355.00㎡ Building area | 353.07㎡ Gross floor area | 588.90㎡ Building to land ratio | 26.06% Floor area ratio | 43.46% Building scope | 3F Structure | Steel framed reinforced concrete Exterior finishing | Marble Interior finishing | V.P. on Plaster board Design period | 2017. 01 ~ 2017. 07 Construction period | 2017. 08 ~ 2018. 04 Photograph | Yoon, Joonhwan Structural engineer | In Structure Engineering Mechanical engineer | Shinheung Engineering Electrical engineer | Youngsin Engineering |
'회원작품 | Projects > Neighborhood Facility' 카테고리의 다른 글
| AIR 381 2021.2 (0) | 2023.01.31 |
|---|---|
| 카페 피어라 2021.1 (0) | 2023.01.30 |
| 뵤뵤 카페 2020.10 (0) | 2023.01.25 |
| 꼬르메움 2023.1 (0) | 2023.01.19 |
| 마라도 등대 2023.1 (0) | 2023.01.19 |
