2023. 1. 31. 09:11ㆍ회원작품 | Projects/House
Slow House

울산 황방산 산등성이의 혁신도시 내 단독주택 전용 단지의 땅을 구매한 클라이언트가 찾아왔다. 그들이 이곳에 땅을 구매한 가장 큰 이유는 아이들.
도시에서는 마당이 있는 집에서 살기 힘들 뿐 아니라 쾌적한 자연을 느끼며 살기 힘들다. 부부는 쾌적한 자연을 느끼며 마당에서 아이들이 뛰어 놀 수 있는 집을 원했고, 아무리 자연과 마당이 중요하더라도 아이들의 교육을 소홀히 할 수는 없기에 학교가 멀지 않은 단독주택 전용 단지의 땅에 집을 짓게 되었다.
이처럼 땅을 구매할 때부터 설계에서 시공에 이르기까지 모든 과정에서 아이들에 대한 부부의 사랑을 느낄 수 있다.
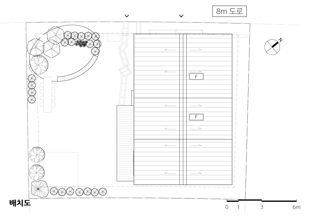
산등성이에 위치하여 바로 앞에 차가 많이 다니는 도로가 있기 때문에 도로에 면하는 1층은 필로티화 하여 1층 공간과 도로 사이에 거리를 두었으며, 필로티로 인해 높아진 2층은 프라이버시 보호가 잘 되는 공간으로 계획되었다.
날씨가 좋을 때는 아이들이 마당에서 뛰어 놀 수 있으며, 비가 오더라도 필로티 하부에서 혹은 집안에서 층간소음 걱정 없이 마음껏 뛰어 놀 수 있다.
박공 모양의 매스 3개가 겹쳐진 형태의 집은 작아 보이지만 내부에 들어서서 1층부터 맨 위의 매스까지 이어진 거실을 보면 그런 생각은 들지 않는다. 높은 공간과 매스들의 겹침으로 생기는 좁은 공간 등 다양한 공간을 느낄 수 있다.
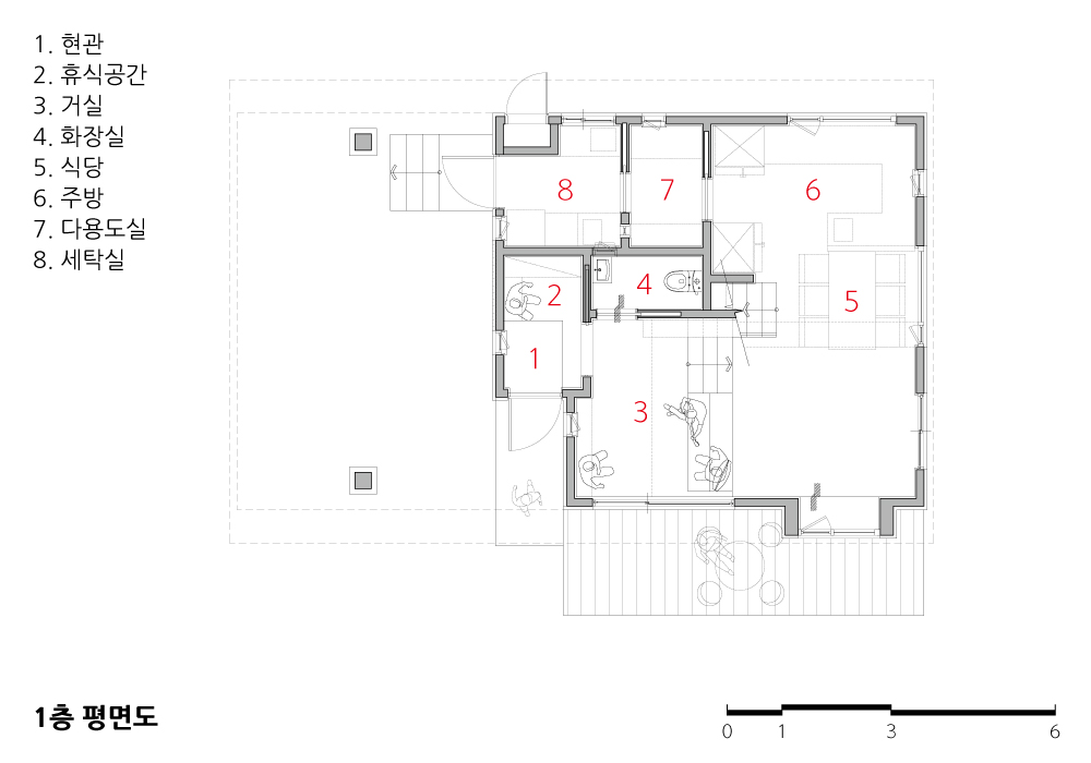
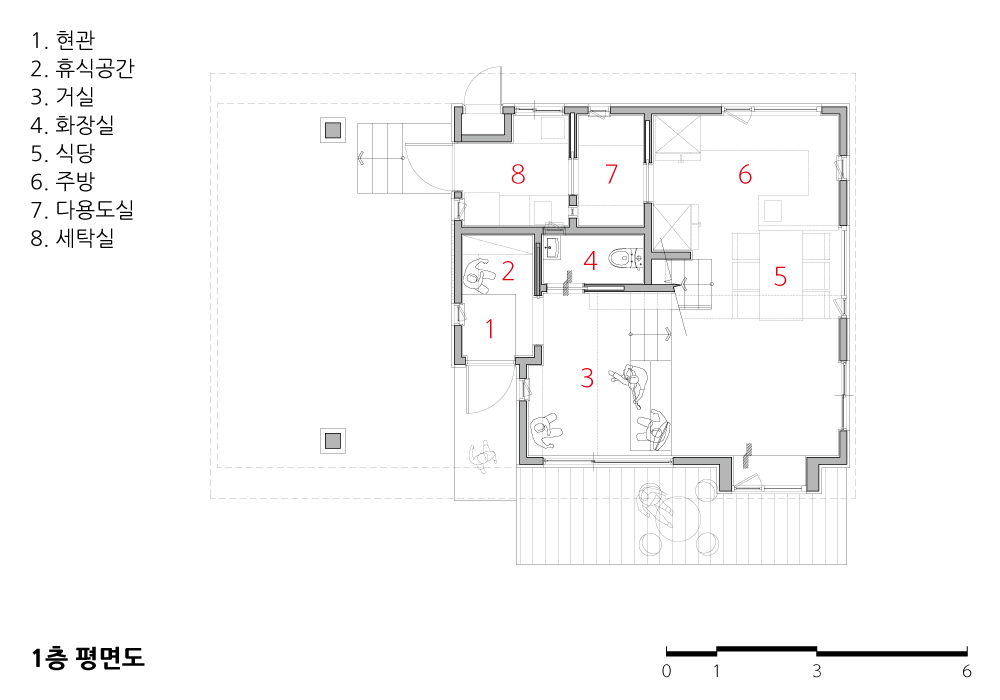
일층은 현관 거실 화장실 주방 다용도 실 팬트리 보일러가 순차적으로 연결되어 있다.
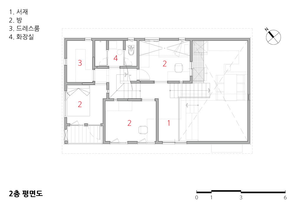
거실의 중심으로 2층을 오르면 왼편으로 작은 가족실이 있고 한발 더 들어가면 좌우는 아이방이 있다. 아이방 뒤편으로는 외부에서 보이지 않는 통로가 있어서 다락처럼 사용이 가능하고 아이들의 상상의 공간이 된다.
2층에서 반층을 올라가면 부부침실과 드레스룸 화장실이 있다. 실들은 같은 평면에 있고 하나의 큰다락 공간으로 읽히게 된다.
반층 더 올라가면 다락이 있는데 좌우로 나뉘어져서 하나는 취미실 하나는 게스트룸으로 사용하기에 손색없는 공간으로 연출되어 있어서 작은 집의 활용도를 높였다.

We got a request from a client who purchased a detached housing site in the Innovation City on the ridge of Mt. Hwangbangsan, Ulsan. The biggest reason why they bought this land is due to their children.
In cities, it is difficult not only to live in a house with a yard but also to enjoy pleasant nature. The couple wanted a place where children could play in the yard, enjoying friendly nature. They couldn't neglect their children's education, although they emphasized nature and the yard, so they wanted to build a house on the detached housing land, not far from the school.
In this way, we could feel the couple's love for their children in all the processes, from purchasing the land to the design and construction.
As it sits on the ridge, there is a road with many traffic in front of the site. Therefore, the first floor facing the road was designed to use pilotis to distance the first floor and the road. And the second floor that rose higher due to the pilotis was intended to be a place that can protect their privacy.
When the weather is good, their children can play in the yard, and even if it rains, they can play freely under the piloti or in the house without worrying about noise between floors.
A house with three gable-shaped masses stacked looks small at a glance, but when you step inside and look at the living room connected from the first floor to the top, you don't think that way. You can feel a variety of spaces, including high spaces and narrow spaces created by overlapping masses.
The entrance, living room, toilet, kitchen, utility room, pantry, and boiler are sequentially connected on the first floor.
If you go up the living room's central stairs, there is a small family room on the left side of the second floor, and if you step forward, you can find children's rooms on the left and right. Behind the children's rooms, there is a passage that is not visible from the outside to be like an attic and become a space of imagination for the children.
If you go up the half-floor from the second floor, there are a couple's bedroom, a dressing room, and a toilet. The rooms are arranged on the same plane and regarded as one large attic space.
If you go up half a floor, there is an attic. It is divided into two. The left one is used as a hobby room and the other as a guest room, thereby making the small house's best use.







| 슬로우 하우스 설계자 | 김동희 _ 건축사사무소 케이디디에이치 건축주 | 이병문 감리자 | 김동희 _ 건축사사무소 케이디디에이치 시공사 | 송동선 _ 망치소리 설계팀 | 이서준, 이영근, 정혜수 대지위치 | 울산광역시 중구 종가28길 22(장현동) 주요용도 | 단독주택 대지면적 | 288.10㎡ 건축면적 | 109.40㎡ 연면적 | 84.67㎡ 건폐율 | 37.90% 용적률 | 29.39% 규모 | 지상 2층 구조 | 경량목구조 외부마감재 | 스타코 내부마감재 | 고급벽지, 페인트, 목재 설계기간 | 2014. 06 ~ 2014. 11 공사기간 | 2014. 11 ~ 2015. 03 사진 | 김용순 기계설비분야 : (주)대림엠이씨 전기분야 : (주)대림엠이씨 |
Slow House Architect | Kim, Donghee _ KDDH Architects Client | Lee, Byungmoon Supervisor | Kim, Donghee _ KDDH Architects Construction | Song, Dongseon _ Hammer sound Project team | Lee, Seojun / Lee, Yeonggeun / Jeong, Hyesu Location | 22, Jongga 28-gil, Jung-gu, Ulsan, Korea Program | House Site area | 288.10㎡ Building area | 109.40㎡ Gross floor area | 84.67㎡ Building to land ratio | 37.90% Floor area ratio | 29.39% Building scope | 2F Structure | Lightweight Wooden Structure Exterior finishing | Staco Interior finishing | Wallpaper, Paint, Wood Design period | Jun. 2014 ~ Nov. 2014 Construction period | Nov. 2014 ~ Mar. 2015 Photograph | Lee, Yongsoon Mechanical engineer | Dealim mech. Elec. Donsultants Electrical engineer | Dealim mech. Elec. Donsultants |
'회원작품 | Projects > House' 카테고리의 다른 글
| 오래된 새로움(진월동 413-1 리모델링) 2021.2 (0) | 2023.01.31 |
|---|---|
| 이이헌(怡里軒) 2021.2 (0) | 2023.01.31 |
| 까사 가이아 2021.1 (0) | 2023.01.30 |
| 노을집 2021.1 (0) | 2023.01.30 |
| 인천 서창동 A.A.W 2021.1 (0) | 2023.01.30 |
