2023. 1. 31. 09:13ㆍ회원작품 | Projects/House
Old newness

하나의 건축물이 살아남기 위해서는 시대의 트렌드와 의식, 문화의 변화를 적극적으로 수용하는 노력이 있어야 한다. 우리가 살아가는 도시의 풍경에서는 20년 이상 지난 건물들을 흔하게 볼 수 있다. 그 중에는 시대적 요구에 부응하지 못한 채 방치되어 애물단지로 전락한 경우도 많다.
진월동 413-1 프로젝트는 오래된 건축물을 리뉴얼하는 작업이었다. 22년이 된 3층 다가구 건물이었는데 낡고 불편하여 임대자 없이 주인 세대만 홀로 3층에 거주하고 있는 상태였다. 당연히 오랫동안 매매도 이루어지지 않았다.
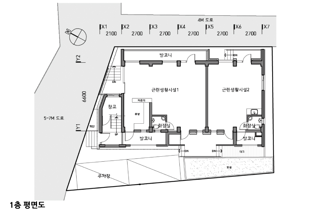
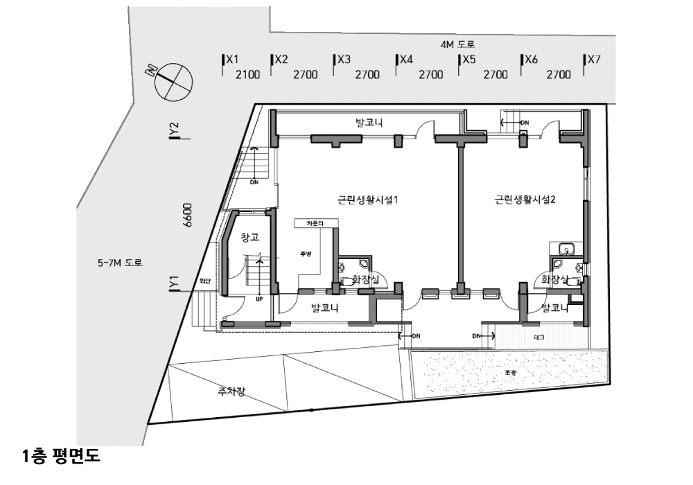
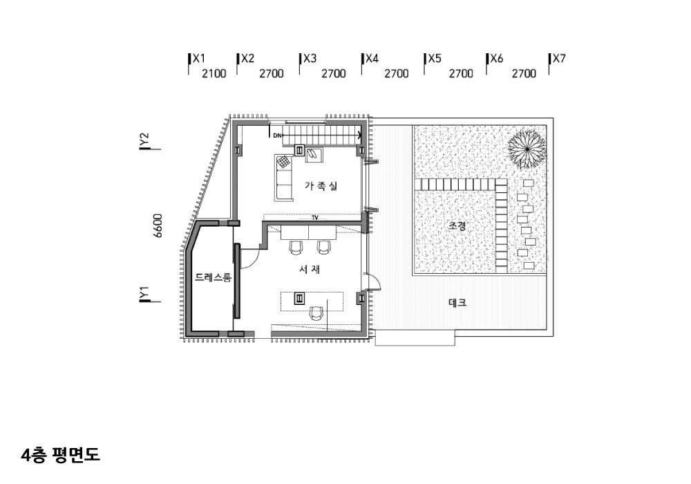
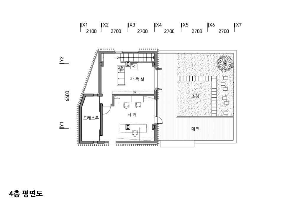
한눈에 보아도 열악하기만 한 이 집에 관심을 보인 사람은 40대 초반의 여성 이었다. 그녀는 이곳에 가족들의 보금자리를 새롭게 꾸미고, 4층을 증축하여 재택근무하는 남편에게 마당이 있는 공간을 제공하고 싶다는 간절한 바람을 안고 나를 찾아왔다. 또 1층과 2층은 근린생활시설로 용도변경한 후, 임대비를 받아 대출이자를 감당하려는 계획도 세우고 있었다.
건축주의 요구 사항을 충족하기 위해 전반적인 검토가 시작되었다. 용도변경 및 증축에 따른 구조 검토, 주차 대수, 계단 유효폭 등에 대한 건축 법규를 점검하면서 22년 전과 현재의 건축법규에 대한 간극을 실감하게 되었다. 처음부터 모든 것을 새롭게 점검하는 종합적인 검토가 실행되어야만 했다.
먼저 강화된 내진구조 설계의 기준을 점검해 보았다. 4층의 증축과 안전한 3층의 구조를 유지하기 위해서는 조적으로 되어 있는 3층을 철거하고 철골구조로 치환해야 한다는 결론이 도출되었다. 현 인허가 과정상 가장 까다롭다는 용도변경과 증축, 대수선이 동시에 한꺼번에 이루어져야 하는 복잡한 프로젝트인 만큼 모든 것이 신중히 고려되어야만 하는 상황이었다.
주 외장재는 비교적 저렴한 외단열 시스템인 스타코로 선정했다. 이는 에너지 절약에 따른 열관류율을 충족하면서 경제성을 고려한 결정이었다. 여기에 알루미늄 루버를 적용하여 전체적인 입면을 단순화하는 디자인으로 의사결정 과정이 이루어졌다. 쾌적한 주거환경의 필수 조건인 창호는 3중 유리 시스템으로 결정했다.
새롭게 리모델링되는 3층과 4층은 복층구조의 단독주택이다. 건축주가 가장 중점을 두었던 4층에는 남편의 근무 공간과 가족이 함께 할 수 있는 마당이 조성되었다. 이곳은 가족 및 지인들과 함께 바비큐 등을 할 수 있는 즐거운 나눔의 마당으로 활용될 것이다.
노후 건축물은 우리 주변에서 흔히 볼 수 있지만, 한편으로는 너무 쉽게 사라지기도 한다. 오랜 세월 인간의 삶을 담아온 노후 건물들이 폐기물로 전락하면서 환경오염의 주범이 되기도 하고, 그곳에 신축을 위한 수많은 에너지 자원이 사용되면서 결과적으로 지구 환경에 큰 부담을 주기도 한다.
진월동 413-1 프로젝트에서는 자원의 재활용 및 에너지 저사용이 실험적으로 시도되었다. 그 과정에서 건축물의 변화라는 시대의 요청과 이에 부응하는 건축물의 성장을 경험할 수 있었다. 아무리 낡은 건물이라 할지라도 우리가 좀 더 따뜻한 시각으로 바라보다면 그곳에 감추어진 생명력을 일깨워 더 오랜 시간 동안 우리와 함께 할 수 있다는 것을 알게 해 준 프로젝트였다.
리뉴얼이 완성된 건물을 보고 건축주는 ‘마치 드라마의 주인공이 된 것 같다.’며 행복해 했다. 답답한 아파트에서 벗어나 마당이 있는 단독주택에 살고 싶었던 꿈이 이루어졌기 때문이다. 작은 예산으로 꿈꾸던 삶을 실현하는 건물주의 감동이 전해지면서 건축사도 더불어 행복해졌다.

For a single building to survive, efforts must be made to actively embrace the trends, the consciousness, and the cultural changes of the times. Many buildings are more than 20 years old in the urban landscape in which we live. Some of them have been neglected and turned into a nuisance without meeting the demands of the times.
The Jinwol-dong 413-1 project was a work to renew an old building. It was a 22-year-old three-story multi-family building that was old and uncomfortable so that only the client's household was living on the third floor without tenants. Of course, there were no transactions of real estate for a long time.
In her early forties, a woman showed interest in this house that was poor even just at a glance. She came to me with a desperate desire to refurbish her family's home on this site and extend the fourth floor to give a space with a yard to her husband, who works from home. She also had a plan to alter the use of the first and second floors to be neighborhood living facilities to pay loan interest by receiving the rental fees.
We carried out an overall review to meet the client's requirements. As we reviewed the structure according to the use change and extension and the building codes about the number of parking spaces and the sufficient stair width, we realized the difference between the building codes 22 years ago and the present ones. We had to conduct a comprehensive review to check everything thoroughly from the beginning.
First, we checked the standards for reinforced seismic structure design. In conclusion, we had to demolish the masonry 3rd floor and replace it with a steel structure to extend the 4th floor and secure the safe structure of the 3rd floor. This was a complex project that requires alternation of use, extension, and significant repair at the same time, which are the most difficult in current authorization and permission processes, we had to consider every single condition carefully.
For the primary exterior material, we selected Starco, a relatively cheap exterior insulation system. This decision was made in consideration of economic efficiency while meeting the heat transmission coefficient for energy saving. Besides, it was designed to simplify the overall elevation by applying aluminum louvers. For the window essential for a comfortable living environment, we selected a triple glass system. A detached house with a loft is built on the 3rd and 4th floors, newly remodeled.
On the fourth floor, which the client put the most significant emphasis on, a courtyard was built for her husband's workspace and her family's yard. This place will be used as a yard to share joy where they can have a barbecue with their family and acquaintances.
On the one hand, there are many old buildings around us, but on the other, they disappear too quickly. As old buildings that have contained human life for many years become wastes, resulting in the main culprit of environmental pollution. Besides, since many new construction energy resources are used accordingly, they significantly impact the global environment.
It is through the Jinwol-dong 413-1 project that we experimentally attempted resource recycling and low energy. In the process, we were able to experience the growth of buildings in response to the times' demands, namely architectural changes. It was a project that let us know that if we look at them from a warmer perspective, no matter how old buildings are, we can awaken their hidden vitality to remain with us for a longer time.
The client was happy to see the renovated building, saying, ‘I feel like the main character in a drama.’ This is because her dream of living in a detached house with a yard has come true. The architect was also happy to see the client, who finally realized her life even on a small budget.








| 오래된 새로움(진월동 413-1 리모델링) 설계자 | 이순미 _ (주)건축사사무소 미가온 건축주 | 정조현 감리자 | 이순미 _ (주)건축사사무소 미가온 시공사 | 양동화 _ (주)인디디자인 설계팀 | 조가영, 임권욱, 이건욱 대지위치 | 광주광역시 남구 금당로5-1 주요용도 | 제2종근린생활시설(일반음식점, 학원), 단독주택 대지면적 | 226.00㎡ 건축면적 | 135.32㎡ 연면적 | 342.41㎡ 건폐율 | 59.87% 용적률 | 153.43% 규모 | 지상 4층 구조 | 철근콘크리트구조(기존) + 철골조(증축부분) 외부마감재 | A.L 루버, 치장 벽돌, 스타코 내부마감재 | V.P 도장 설계기간 | 2019. 09 ~ 2019. 11 공사기간 | 2019. 11 ~ 2020. 05 사진 | 조성진 |
Old newness Architect | Lee, Soonmi _ MIGAON Architects Client | Jeong, Johyun Supervisor | Lee, Soonmi _ MIGAON Architects Construction | Yang, Donghwa _ Indie design Project team | Jo, Gayoung / Lim, Kwonwook / Lee, Geonwook Location | 5-1 Geumdang-ro, Nam-gu, Gwangju, Korea Program | Neighborhood living facilities (General restaurant / Academy), House Site area | 226.00㎡ Building area | 135.32㎡ Gross floor area | 342.41㎡ Building to land ratio | 59.87% Floor area ratio | 153.43% Building scope | 4F Structure | RC(existing) + Steel frame(Extension) Exterior finishing | A.L Louver, Brick, Stuco Interior finishing | Vinyl paint Design period | Sep. 2019 ~ Nov. 2019 Construction period | Nov. 2019 ~ May 2020 Photograph | Jo, Seongjin |
'회원작품 | Projects > House' 카테고리의 다른 글
| 해온안 2021.3 (0) | 2023.02.01 |
|---|---|
| HAUS ON THE HILL 2021.2 (0) | 2023.01.31 |
| 이이헌(怡里軒) 2021.2 (0) | 2023.01.31 |
| 슬로우 하우스 2021.2 (0) | 2023.01.31 |
| 까사 가이아 2021.1 (0) | 2023.01.30 |
