2023. 1. 31. 09:12ㆍ회원작품 | Projects/House
IIheon

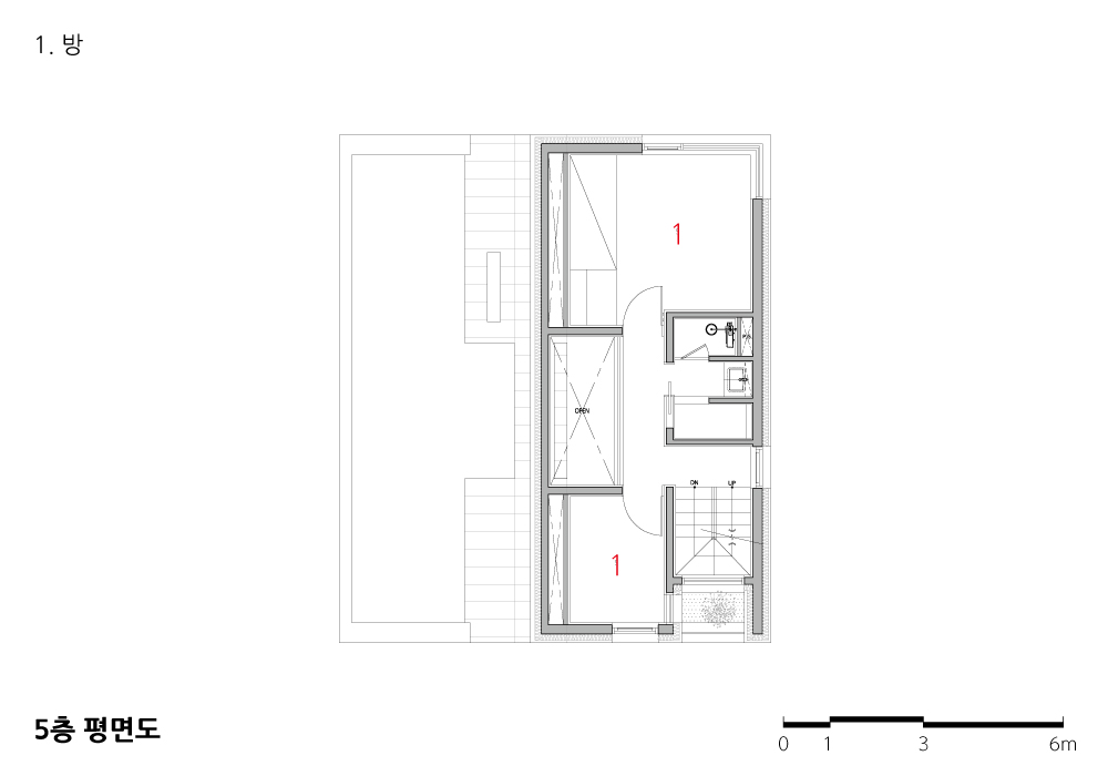
모퉁이 열린 집
이이헌은 큰길과 멀지 않게 이어진 막다른 사잇길에 위치하며, 저층의 임대 상업공간과 상층부의 주거 공간이 복합된 건물이다.
이면 도로에 위치한 1, 2층의 임대 상업 공간이 큰 도로에서 잘 인지될 수 있도록 건물의 모퉁이를 적극적으로 열었다. 1990년대 무렵 같은 형식으로 지어진 다가구주택이 이어진 골목길에서 크게 열린 모퉁이는 생경한 풍경을 연출해 시각적인 구심점이 된다. 큰 도로와 시각적으로 연결된 모퉁이에 있는 외부 계단은 2층 상업 공간으로 자연스럽게 동선을 연결한다.
골목길의 연장
저층형 소규모 공동주택은 높은 지가의 도시에서 개성 있는 개인의 삶을 담을 수 있는, 경제적이고 유연한 구조의 주거 형식이다. 이이헌은 세 가지 다른 타입의 단독주택을 수직적으로 연결하는 방식으로 계획하였다. 골목길은 건물로 연장된 여러 갈래의 계단으로 연결된다. 각각의 집으로 가는 길이 분리되는 것은 기존 골목의 다가구주택 진입 방식을 닮아 있다. 이 길은 선택적인 만남을 가능하게 하는 동시에 각 집과 연결된 외부 공간의 독립성을 확보한다.
공중 정원
도시의 단독주택이 사라지면서 마당과 담장을 넘나들며 도시를 푸르게 물들이던 풍경도 함께 사라졌다. 이이헌은 마당의 기억을 수직적으로 재현하고자 하였다. 빛과 바람이 건물 전체에 잘 들 수 있도록 건물을 수직적으로 연결하는 계단을 외부로 계획하고, 건물 곳곳에 식물을 놓을 수 있는 테라스를 배치하였다. 정원으로 연결된 공용공간은 골목길의 가로수가 되는 동시에 각 세대의 작은 마당이 된다.

A House with the Open Corners
Lee Lee Heon stands on a side road not far from the main road, and it is a complex building of lower-level rental commercial space and upper-level residential space.
The building's corners were actively opened so that passerby could easily recognize commercial rental spaces located on the backside road from the main road on the first and second floors. The corners mostly open to the alleyway, which meets multi-family houses built in the same form around the 1990s, creates an unfamiliar landscape and becomes a visual focal point. The exterior staircase at the corners visually connected to the main road naturally links the movement line to the second floor's commercial space.
The Extension of an Alleyway
A low-rise small apartment house is an economical and flexible housing type containing characteristic individual lives in high-priced urban land. Lee Lee Heon was designed in a way that vertically connects three different types of detached houses. The alleyway is connected to several sections of staircases that extend into the building. Separating the road to each house resembles how people enter the multi-family home in the existing alleyway. This road enables selective encounters and secures the independence of the exterior space connected to each house.
Garden In The Air
As detached houses in cities disappeared, the scenery greening the towns across the yard and fence also disappeared. Lee Lee Heon was designed to recreate the memories of the yard vertically. The stairs that connect the building vertically were installed outwards so that light and wind could enter the whole building, and terraces were placed on planting all over the building. The public space connected to the garden becomes street trees along the alleyway and a small yard for each household.











| 이이헌(怡里軒) 설계자 | 김미희 _ 소수 건축사사무소 건축주 | 김종용 감리자 | 김미희 _ 소수 건축사사무소 시공사 | (주)쓰리스퀘어종합건설 설계팀 | 고석홍, 박효택 대지위치 | 서울특별시 마포구 망원동 주요용도 | 근린생활시설 + 다가구주택 대지면적 | 154.72㎡ 건축면적 | 92.56㎡ 연면적 | 306.37㎡ 건폐율 | 59.82% 용적률 | 198.02% 규모 | 지상 5층 구조 | 철근콘크리트구조 외부마감재 | 모노타일(다다벽돌: 모노클래식타일) 내부마감재 | 바닥-원목 마루 / 벽·천장-친환경 페인트 마감 설계기간 | 2019. 06 ~ 2019. 11 공사기간 | 2019. 11 ~ 2020. 07 사진 | 노경 구조분야 : 한길구조엔지니어링 기계설비분야 : (주)성지 이앤씨 전기분야 : (주)성지 이앤씨 소방분야 : (주)성지 이앤씨 |
IIheon Architect | Kim, Mihee _ SOSU Architects Client | Kim, Jongyoung Supervisor | Kim, Mihee _ SOSU Architects Construction | 3-SQUARE Consturction Project team | Go, Seokhong / Park, Hyotaek Location | Mangwon-dong, Mapo-gu, Seoul, Korea Program | Commercial facilities + Multi-household house Site area | 154.72㎡ Building area | 92.56㎡ Gross floor area | 306.37㎡ Building to land ratio | 59.82% Floor area ratio | 198.02% Building scope | 5F Structure | RC Exterior finishing | Tile Interior finishing | Wood flooring / Eco-friendly paint Design period | 2019. 06 ~ 2019. 11 Construction period | 2019. 11 ~ 2020. 07 Photograph | Roh, Kyung Structural engineer | HANGIL Structural Engineering Mechanical engineer | SUNGJI Engineering Electrical engineer | SUNGJI Engineering Fire engineer | SUNGJI Engineering |
'회원작품 | Projects > House' 카테고리의 다른 글
| HAUS ON THE HILL 2021.2 (0) | 2023.01.31 |
|---|---|
| 오래된 새로움(진월동 413-1 리모델링) 2021.2 (0) | 2023.01.31 |
| 슬로우 하우스 2021.2 (0) | 2023.01.31 |
| 까사 가이아 2021.1 (0) | 2023.01.30 |
| 노을집 2021.1 (0) | 2023.01.30 |
