2023. 1. 31. 09:16ㆍ회원작품 | Projects/Neighborhood Facility
Black Sprout

대지는 앞면 큰 도로와 뒷면 작은 도로에 접해 있으며, 정북일조의 영향이 없어 공간 및 매스구성에는 자유로웠다. 건축주와 몇 차례 미팅 후 우리는 아파트에 살던 젊은 부부가 새로운 주거를 경험 할 수 있도록 계획하면 좋겠다고 방향을 잡았다. 그 방법으로 조적쌓기의 새로운 시도, 계단실의 빛과 그림자, 외부와 소통이 되는 테라스, 거실과 건너편 아파트 정원과의 소통, 거실과 다락과의 소통 등과 같은 아이디어를 계획에 반영하였다.
입면계획에서 전면과 후면은 완전히 다른 분위기로 계획하여 반전의 느낌을 주고자 하였다. 주요 외부마감으로 전면 파사드에는 큐블럭 S340 빈티지블랙 벽돌(홀수돌출쌓기)과 4층 테라스의 S340 탱고레드(가로메지쌓기)를 사용하여 블랙과 레드의 조화로운 구성이 되도록 계획하였다. 반면 후면은 큐블럭 S340 빈티지블랙 벽돌(홀수돌출쌓기)과 중간부의 S340 카퍼브라운(가로메지쌓기)으로 계획하였는데, 특히 중간부 입면의 계단실은 새로운 시도의 비워쌓기를 하여 독특한 입면을 가질 수 있었다. 이는 내부에서 빛과 그림자에 의해 역동적인 공간을 연출해 주었다. 벽돌쌓기방식에서 홀수돌출쌓기 방식으로 시공한 부분은 가로로 길게 돌출된 벽돌에 의해서 태양의 음영에 따라 역동적인 변화를 주는 파사드를 만들어 주었고, 가로메지쌓기 방식은 가로패턴의 메지선이 강조되면서 매스의 간결함과 마감의 세련함을 만들어주었다.
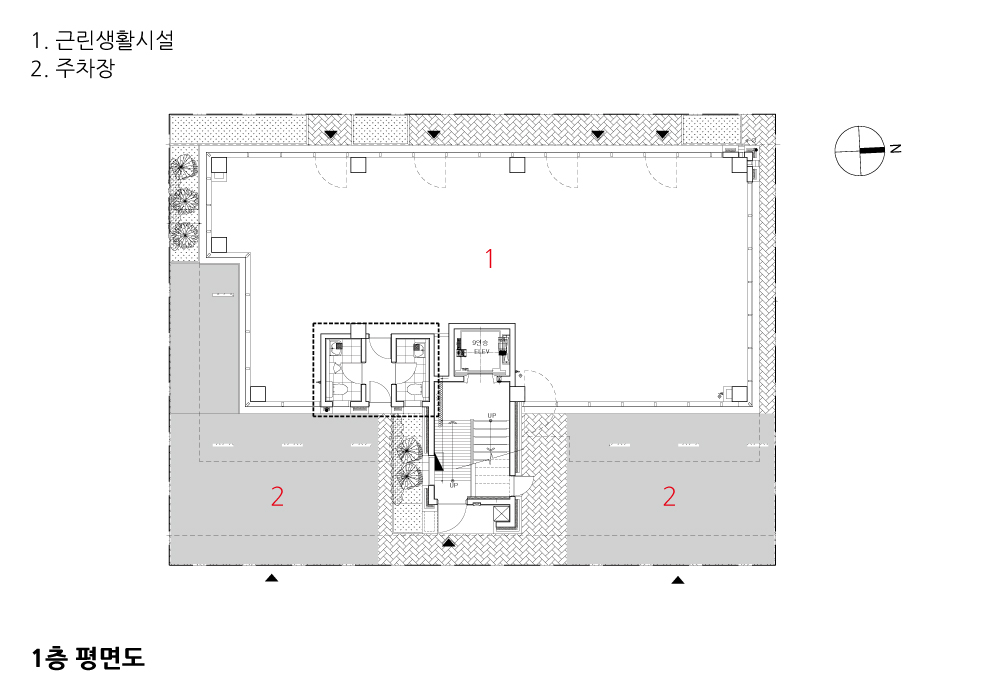
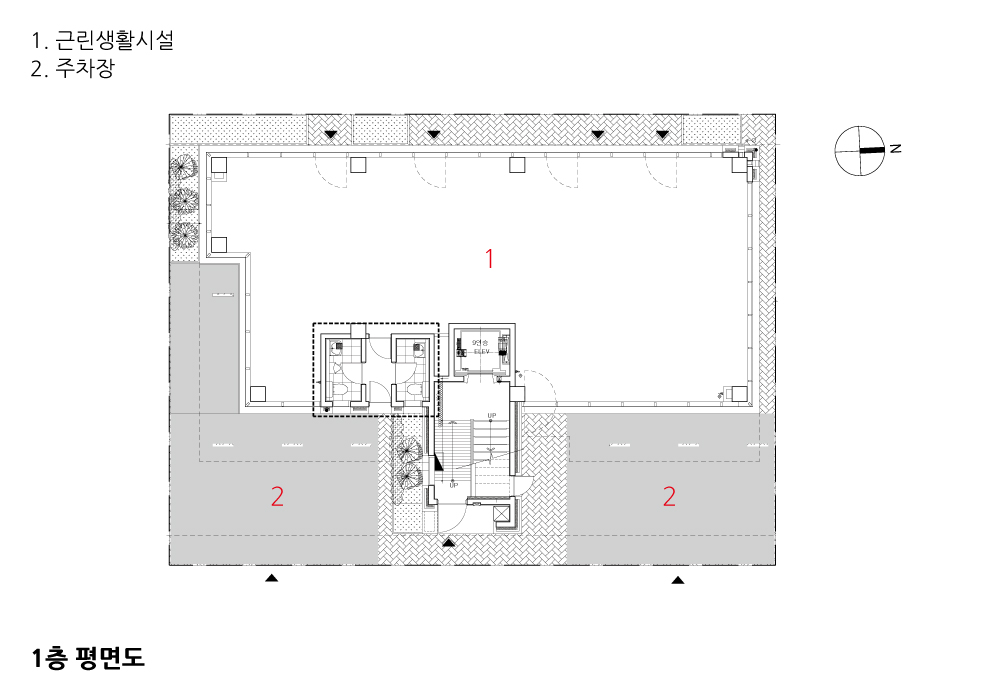
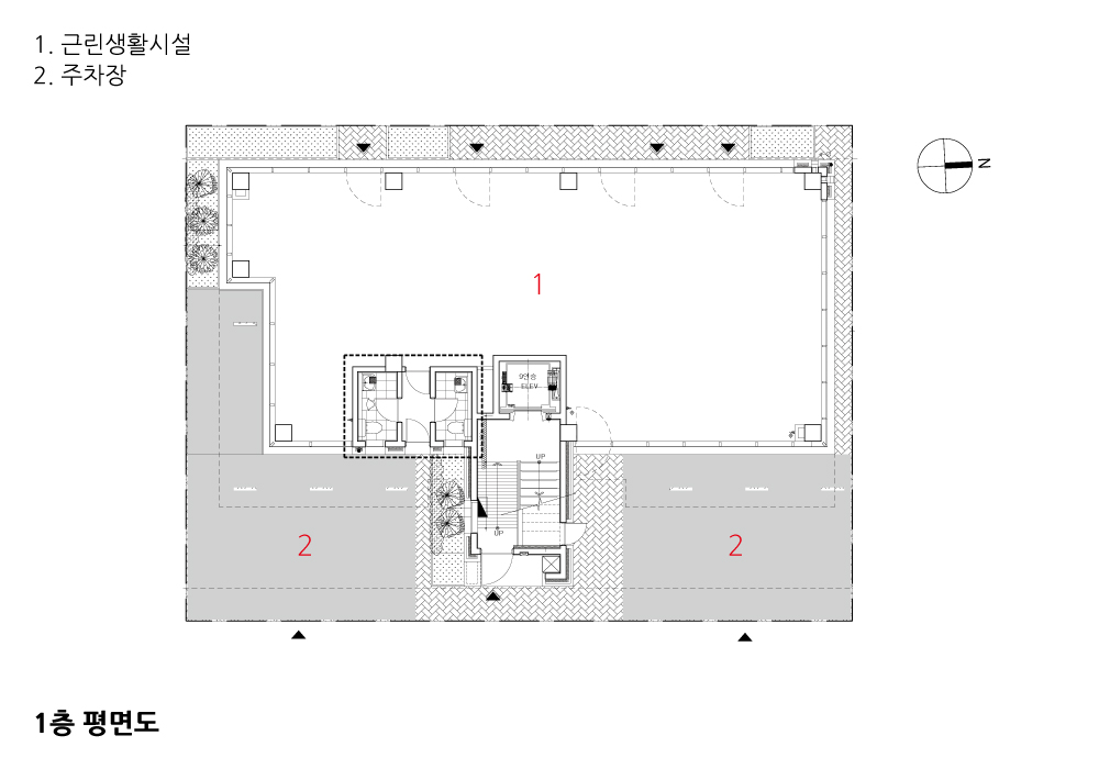
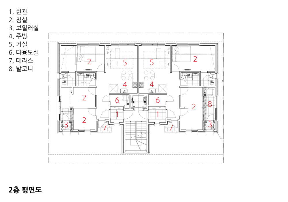
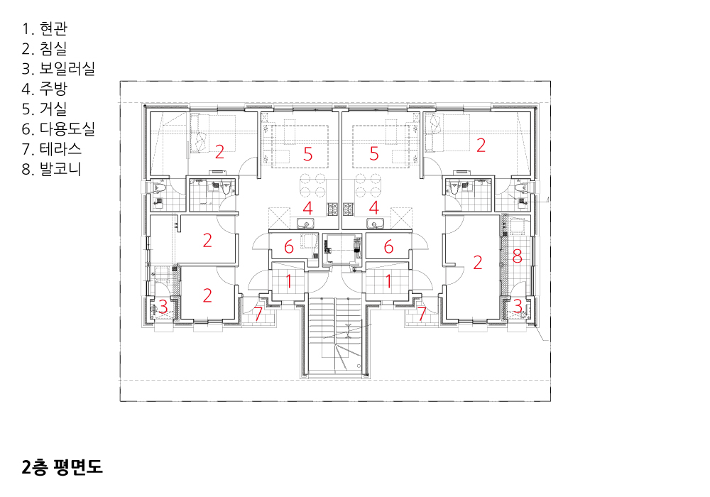
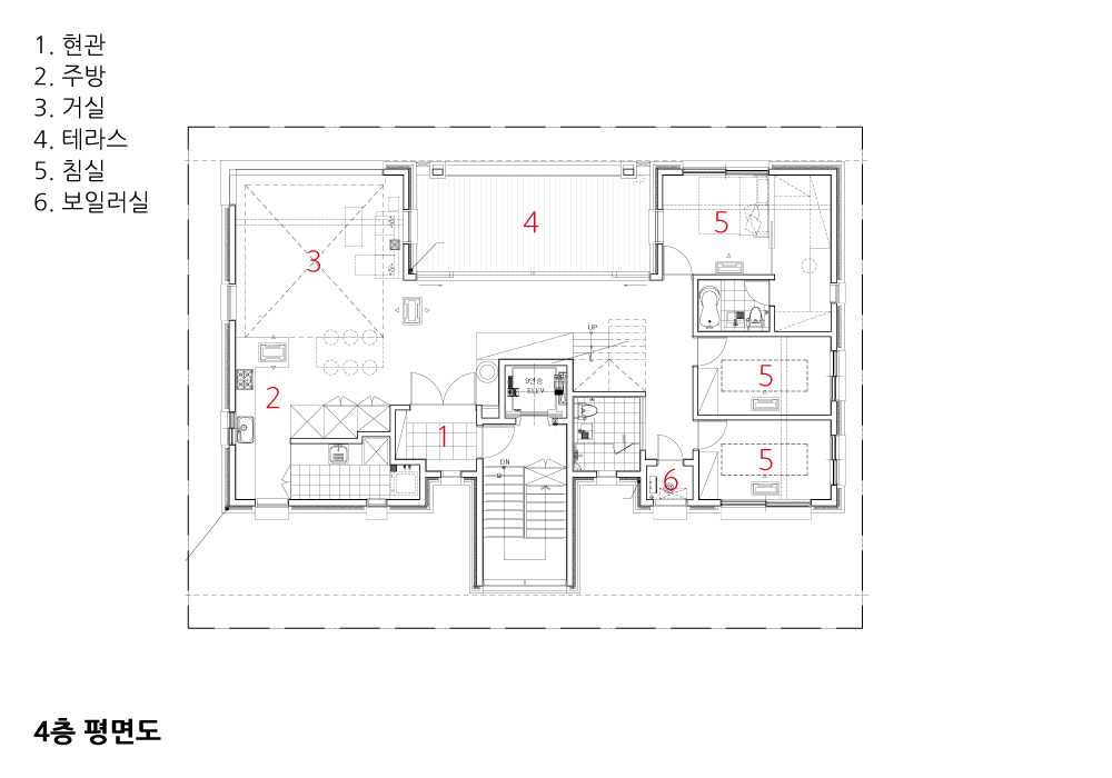
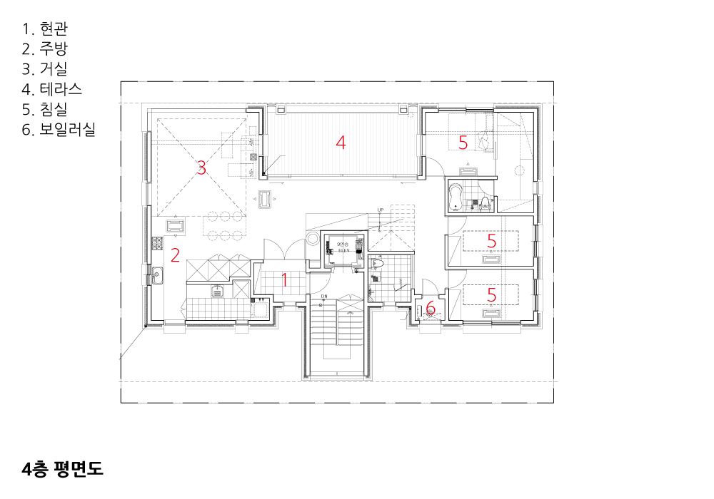
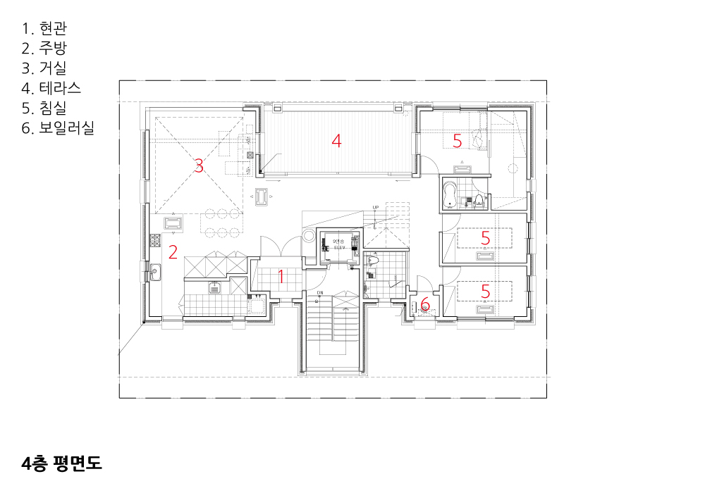
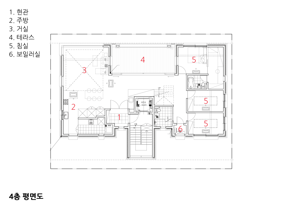
1층은 근린생활시설, 2~3층은 4가구의 임대세대 그리고 4층 및 다락은 주인세대로 구성되었다. 4층 내부 거실 공간은 상부 오픈하여 공간의 깊이감을 더해 주었고 또한 다락공간과의 소통이 되도록 계획하였다. 그리고, 거실공간의 배치와 방향을 반대편 아파트의 정원과 같은 선상에 계획함으로써 우리집 정원처럼 감상할 수 있도록 하였다. 또한 테라스공간은 4층 내부 공간의 중간지점에 계획하여 시각적, 감성적 전이공간으로의 역할을 하도록 유도하였다.
건물 이름은 아파트에 살던 젊은 부부가 새로운 주거에서 건강하고 활기찬 삶을 시작한다는 의미로 ‘Black Sprout(블랙 스프라우트)’라 지었다.

The site adjoined the large road in the front and the small street in the back, and since there was no influence of due north sunshine, we could freely construct the space and mass. After several meetings with the client, we decided that it would be good to design it for the young couple who lived in the apartment to experience a new dwelling. Therefore, we reflected such ideas in the plan, including a further attempt to build masonry, light and shadow in a staircase, a terrace that communicates with the outside, the relationship between the living room and the apartment garden across the street, and the communication between the living room and the attic.
In the elevation plan, the front and the rear were designed in completely different atmospheres to feel reversal. As the main exterior finish, the front facade was designed to use the harmonious composition of black and red by using Q-Block S340 vintage black bricks (odd projecting brickwork) and S340 tango red (horizontal struck-joint brickwork) on the fourth-floor terrace. On the other hand, the rear side was to be with Q-Block S340 vintage black brick (odd projecting brickwork) and S340 copper brown (horizontal struck-joint brickwork) in the middle. In particular, the stairwell on the middle elevation could have a unique elevation through a new attempt of ‘hit and miss brickwork.’ This created a dynamic interior space by light and shadow. The part constructed employing odd projecting brickwork created a facade that dynamically changes according to the sun's shade due to the horizontally protruding bricks. On the other hand, in the horizontal struck-joint brickwork, the struck joint of horizontal pattern was highlighted to provide the simplicity of mass and the refinement of finish.
The first floor was intended to consist of neighborhood living facilities, and the second and third floors consist of 4 households for rent, and the fourth floor and attic consist of the client's home. The indoor living room space on the 4th floor is opened at the top to add a sense of depth, and it was designed to communicate with the attic space. The living room space's layout and direction were designed to be on the same line as the opposite apartment's garden, which enables one to enjoy the apartment garden's view as its garden. The terrace space was designed to be in the middle of the interior space on the 4th floor to play a role as a visual and emotional transition space.
The building is named 'Black Sprout,' hoping that the young couple who used to live in an apartment will start a healthy and lively life in a new residence.










| 블랙 스프라우트 설계자 | 윤동원 _ AAG 건축사사무소 건축주 | 유달연 감리자 | 윤동원 _ AAG 건축사사무소 시공사 | (주)주호종합건설 설계팀 | 안용일, 이현주 대지위치 | 경기도 시흥시 은계로142번길 3-15 주요용도 | 제1종 근린생활시설, 단독주택(다가구주택) 대지면적 | 303.00㎡ 건축면적 | 181.36㎡ 연면적 | 578.27㎡ 건폐율 | 59.85% 용적률 | 190.85% 규모 | 지상 4층 구조 | 철근콘크리트구조 외부마감재 | 두라스텍 큐블럭340 빈티지블랙, 큐블럭340 탱고레드, 큐블럭340 카퍼브라운, 리얼징크 등 내부마감재 | 강마루, 데코타일, 포세린타일, 영림도어, 한샘싱크대, 대림바스, 실크벽지 등 설계기간 | 2018. 06 ~ 2019. 03 공사기간 | 2019. 05 ~ 2019. 12 사진 | 윤동원 구조분야 : 광림구조 기계설비분야 : 유성기술단 전기분야 : 유성기술단 소방분야 : 유성기술단 |
Black Sprout Architect | Yoon, Dongwon _ AAG Architecten Client | Yoo, Dalyeon Supervisor | Yoon, Dongwon _ AAG Architecten Construction | JUHO Construction Ltd Project team | An, Yongil / Lee, Hyunjoo Location | 3-15, Eungye-ro 142beon-gil, Siheung-si, Gyeonggi-do, Korea Program | Neighbourhood living facility / Multi-family / Multi-household house Site area | 303.00㎡ Building area | 181.36㎡ Gross floor area | 578.27㎡ Building to land ratio | 59.85% Floor area ratio | 190.85% Building scope | 4F Structure | RC Exterior finishing | Durastack Qblock 340 vintage black, Copper brown, Tango red, Real zinc, Etc Interior finishing | Strong gang maru, Deco tile, P-tile, Daelim bath, Etc Design period | 2018. 06 ~ 2019. 03 Construction period | 2019. 05 ~ 2019. 12 Photograph | Yoon, Dongwon Structural engineer | Kanglim Structure Ltd Mechanical engineer | Yousung Engineering Ltd Electrical engineer | Yousung Engineering Ltd Fire engineer | Yousung Engineering Ltd |

'회원작품 | Projects > Neighborhood Facility' 카테고리의 다른 글
| 박빌딩 2021.3 (0) | 2023.02.01 |
|---|---|
| Interacting Cube 2021.2 (0) | 2023.01.31 |
| AIR 381 2021.2 (0) | 2023.01.31 |
| 카페 피어라 2021.1 (0) | 2023.01.30 |
| 일광 유얼스 2020.10 (0) | 2023.01.25 |