2023. 2. 6. 09:14ㆍ회원작품 | Projects/House
N House

열린 대지에서의 단독성
내곡동 주택은 LH에서 개발한 공공주택지구에 속하는 몇 안 되는 단독주택용지이다. 대규모의 아파트 단지에서 내려다보이며, 마을로 이르는 길과 대규모 아파트 단지의 입구로 이어지는 길이 만나는 대지의 위치는 도시적 맥락에서 단독 주택이 입지하기에는 너무 공공적 성격이 강하다. 이러한 대지 조건에서 단독 주택의 단독성을 확보하는 것은 프로젝트의 중요한 시작점이 되었다.
단독주택에서 외부와 가장 직접적인 접촉이 있는 마당은 대지에서 외부와의 간섭이 최소인 대지의 중심에 자리 잡고, 그 주변을 내부 공간이 에워싼다. 이러한 과정을 통해 집의 내부와 도시를 향한 외부는 이원화된다. 도시로 열린 북측은 무채색의 검은 벽돌로 닫아냄으로써 도시에 또 하나의 배경을 더한다. 형태와 마감이 단순한 매스는 자칫 도시에서 시각적 단절감을 주지 않도록 주변 건물의 흐름을 따라 수평적으로 분절된다.
행위를 담는 공간의 집합
내곡동 주택의 가족들은 많은 시간을 집에서 보내며 평생을 함께할 ‘최종의 집’을 짓고자 하였다.
집에 머무는 시간에 비례하여 집에서 이루어지는 활동도 많아진다. 기존 주택에서 거실, 침실, 주방 등 필요 기능으로 나뉘는 공간 구성은 가족 모두가 사용하는 기능적인 공간과 구성원 개개인의 취향을 담는 행위 중심의 공간으로 세분화된다. 사적 영역이라는 집의 내부에서도 가장 공적인 손님의 공간에서부터, 가족 개개인의 사적인 취향의 영역까지 공간의 성격이 나누어진다.
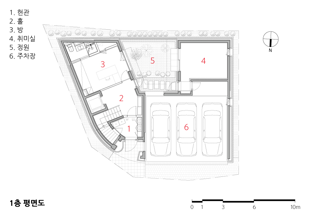
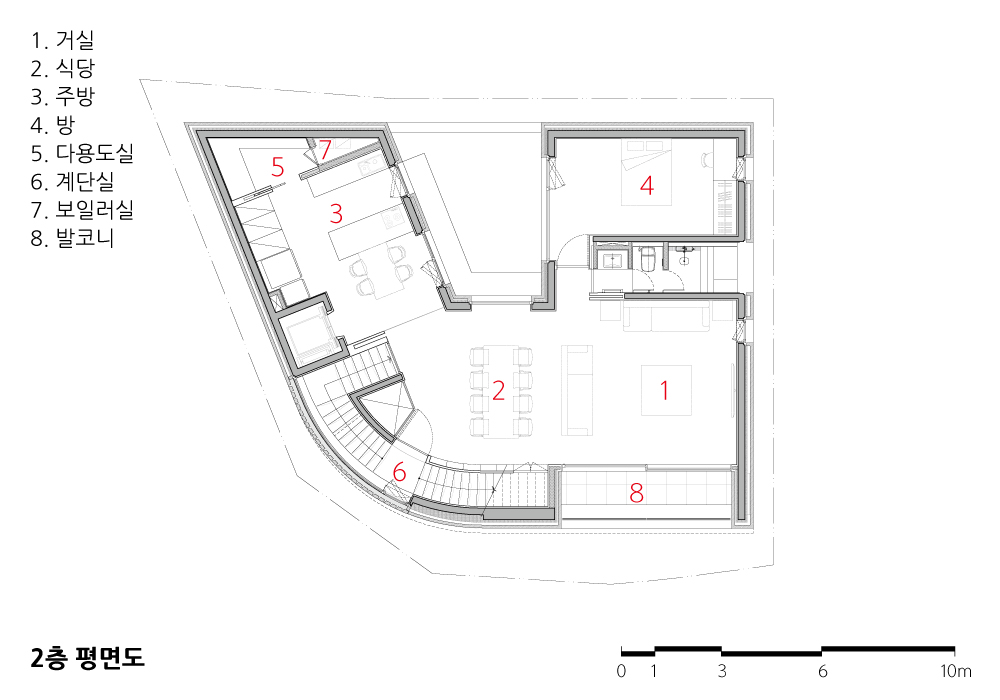
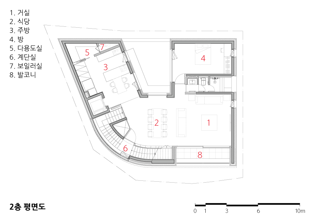
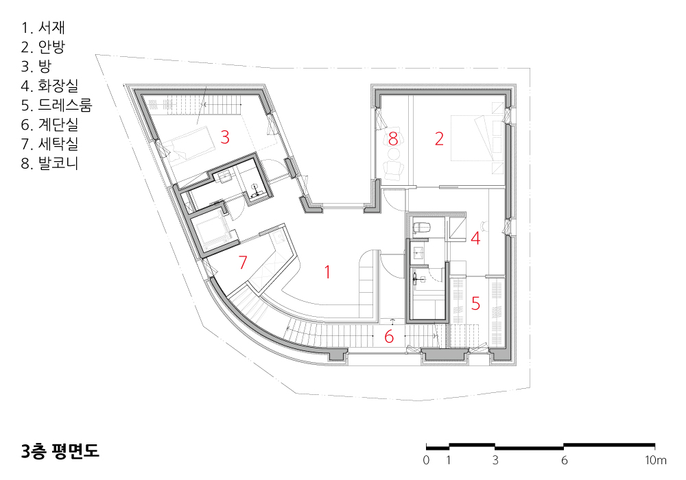
행위 중심의 공간 계획은 각 공간의 사용성에 우위가 없어 채광, 환기 등의 물리적 환경이 균질하게 제공되어야 한다. 이에 중정을 중심으로 1층에서 다락에 이르기까지 점점 사적인 행위의 공간을 수직적으로 배치하여 모든 공간에 빛과 바람이 들게 하였다. 남측의 큰 창은 채광을 위한 장치인 동시에 수직적으로 분리될 수밖에 없는 도심 수직형 단독주택의 공간과 공간을 연결하는 매개체이다.
열림과 닫힘의 깊이와 밀도
닫힌 면은 깊이와 밀도를 달리하면서 선택적으로 열린다.
북측 벽체는 서로 다른 두께를 가지는데, 이는 내부의 용도에 따라 창의 깊이를 다르게 하기 위해서다. 소나무 숲을 담아내는 거실의 창은 가장 깊숙하고 크게 열린다. 공적 성격이 강한 공간의 큰 창은 좀 더 깊은 깊이감으로 외부와 시선의 간섭을 최소화하고, 사적 공간의 작은 창은 얕은 깊이감으로 빛을 적극적으로 받아들이고자 하였다. 매 층을 연결하는 계단은 오르내리는 방향에 따라 점차 열리고 닫힐 수 있도록 벽돌의 형태를 재단하고 틈의 밀도를 달리하였다. 이러한 쌓기를 통해 내부에서는 많이 열려 빛을 받아들이고, 외부에서는 닫혀 시선을 피하는, 열린 동시에 닫혀 있는 입면을 만든다.

Singleness in an open site
Naegok-dong House is one of the few single-family housing sites that belong to a public housing district developed by KOREA LAND & HOUSING CORPORATION (LH). The site overlooking a large-scale apartment complex, where the road to the village and the road leading to the entrance of the large-scale apartment complex meet, is too public for a single-family house to be located in an urban context. Securing the singleness of a single-family home under these site conditions became a critical starting point for this project.
A yard of a single-family house has the most direct contact with the outside. In this project, the yard is located in the site's center, making the house the least interfered from the outside and surrounded by the inner space. Therefore, the interior of the house and the exterior of the city are separated. The city's north side is closed with achromatic black bricks, thereby adding another background to the town. The simple masses of form and finish are horizontally segmented along with the flow of surrounding buildings not to give any visual disconnection in the city.
A set of spaces containing actions
The family in Naegok-dong House wanted to build the “last house” to spend a lot of time and share their lives. Home activities increase in proportion to the amount of time spent at home. In the existing house, the spatial layout divided into necessary functions such as the living room, bedroom, and kitchen is subdivided into a functional space used by all family members and an action-oriented space considering each member’s taste. Even in the inside of the house, namely a private area, the character of the space covers from the most public space for guests to the place that considers each family member’s taste.
Since action-oriented space planning has no advantage in the usability of each space, physical environment such as lighting and ventilation should be provided uniformly. So, all private activities are arranged vertically around the courtyard to get proper light and wind through spaces. The large window on the south side serves as a device for lighting and a medium connecting space and another space of an urban vertical single-family house that should be separated vertically.
Depth and density of opening and closing
The closed faces are selectively opened with varying depth and density. The north wall has different thicknesses to vary the depth of windows depending on the internal use. The window of the living room containing the pine forest opens to the deepest and most expansive. A large window in shared space has a more profound sense of depth to minimize interference with the outside and the gaze, whereas a small window in private area actively allows light with a shallow understanding of depth. The shape of the bricks is cut, and the density of the gaps is changed so that the stairs connecting each floor could gradually open and close according to the direction of going up and down the stairs. This brick stacking makes the elevation where it is widely open inside to receive light and at the same time it is closed outside to avoid the gaze.







| N주택 설계자 | 김미희, 고석홍 _ 소수 건축사사무소 건축주 | 안성범 감리자 | 김미희 _ 소수 건축사사무소 시공사 | 엠오에이종합건설(주) 설계팀 | 홍진영, 서에스더 대지위치 | 서울특별시 서초구 홍씨마을길 주요용도 | 단독주택 대지면적 | 225.00㎡ 건축면적 | 134.96㎡ 연면적 | 330.52㎡ 건폐율 | 59.98% 용적률 | 146.89% 규모 | 지상 3층 구조 | 철근콘크리트구조 외부마감재 | 치장벽돌 내부마감재 | 바닥 _ 원목 마루 / 벽·천장 _ 친환경 페인트 마감 설계기간 | 2019. 03 – 2019. 12 공사기간 | 2019. 12 – 2020. 09 사진 | 노경 구조분야 : 한길구조엔지니어링 기계설비분야 : (주)성지 이앤씨 전기분야 : (주)성지 이앤씨 소방분야 : (주)성지 이앤씨 |
N House Architect | Kim, Mihee · Go, Seokhong_ SOSU Architects Client | Ahn, Seongbeom Supervisor | Kim, Mihee SOSU Architects Construction | MOA Consturction Project team | Hong, Jinyoung / Seo, Esther Location | Hongssimaeul-gil, Seocho-gu, Seoul, Korea Program | Detached house Site area | 225.00㎡ Building area | 134.96㎡ Gross floor area | 330.52㎡ Building to land ratio | 59.98% Floor area ratio | 146.89% Building scope | 3F Structure | RC Exterior finishing | Brick Interior finishing | Wood flooring / Eco-friendly painting Design period | Mar. 2019 – Dec. 2019 Construction period | Dec. 2019 – Sep. 2020 Photograph | Roh, Kyung Structural engineer | HANGIL Structural Engineering Mechanical engineer | SUNGJI Engineering Electrical engineer | SUNGJI Engineering Fire engineer | SUNGJI Engineering |
'회원작품 | Projects > House' 카테고리의 다른 글
| 스텔라피오레 2021.6 (0) | 2023.02.06 |
|---|---|
| Topowalk – Is One 2021.6 (0) | 2023.02.06 |
| 파주 K 주택 2021.6 (0) | 2023.02.06 |
| 유취헌 2021.6 (0) | 2023.02.06 |
| 빛담집(빛을 담은 집) 2021.5 (0) | 2023.02.03 |
