2023. 2. 9. 09:20ㆍ회원작품 | Projects/Education
Haman Local Children’s Center

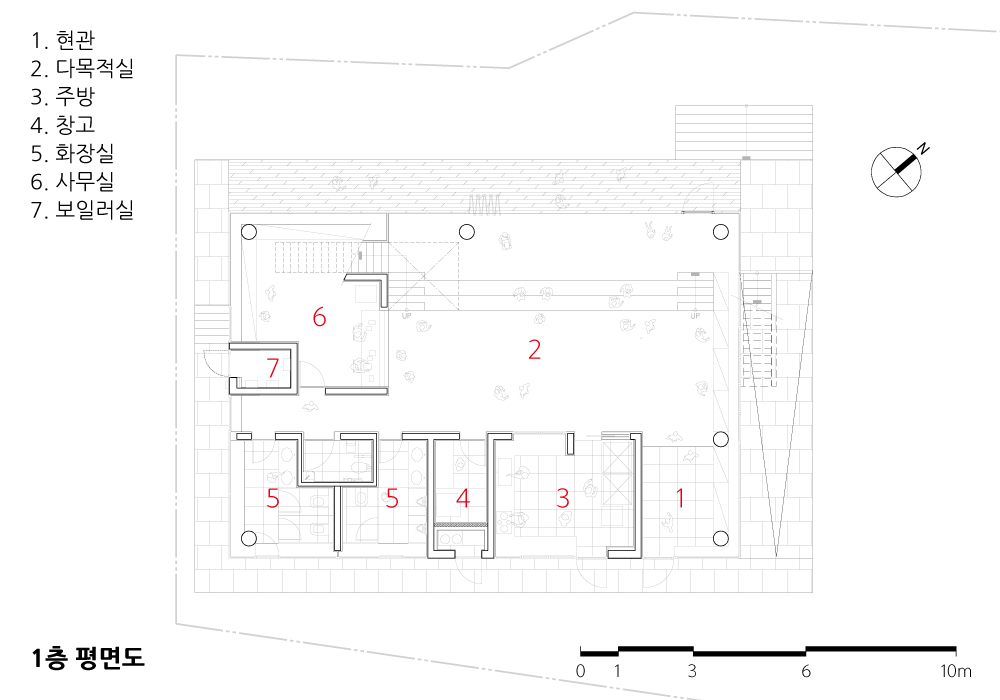
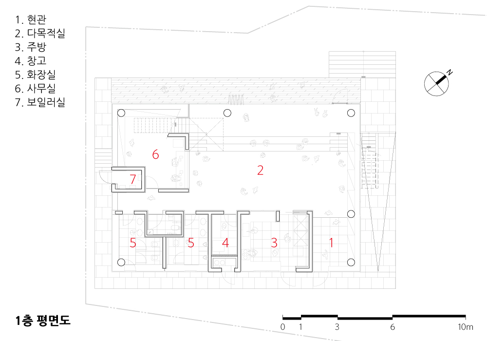
함안의 지역아동센터가 만들어질 대지는 주변이 잘 정돈된 단지 안에 위치하고 있어 사방으로 나무와 정원 같은 녹지를 접하고 있다. 특히나 한쪽으로는 주민들이 매일 사용하는, 탁 트인, 커다란 운동장을 마주하고 있다. 이 운동장은 나무로 둘러싸여 있고, 바닥에는 잔디가 있어 아이들을 포함한 지역주민들이 일상에서 운동이나 산책 등 다양한 목적으로 사용하고 있다. 따라서 자연스럽게 지역아동센터의 계획도 이 운동장을 포함한 외부공간과의 관계를 설정하는 것에서부터 시작하였다.
지역아동센터는 크게 두 가지 방식을 통해 운동장을 포함한 외부공간과 관계를 만든다. 첫 번째는 1층 바닥 레벨을 운동장보다 높이는 것이다. 이로써 아이들은 좀 더 높은 눈높이에서 운동장을 편안하게 볼 수 있고, 별도의 담장이 없어도 운동장에서 하는 축구나 게이트볼 등의 활동으로부터 보호받을 수 있다.
두 번째는 하나의 커다란 지붕이다. 이 지붕은 뜨거운 햇빛을 가려주어 1층에 시원한 그림자를 만들어 주고, 비가 올 때에는 비를 맞지 않도록 해준다. 날씨에 상관없이 1층의 내·외부공간을 자유롭게 쓸 수 있게 된다.
지역아동센터는 기본적으로 네 방향으로 모두 투명하고 열린 공간구조를 갖는다. 이를 통해 운동장뿐만 아니라, 주변의 녹지들과 놀이터 등을 향해 개방되어 있다. 또한 2층의 공부방들에서도 주변의 큰 나무들을 볼 수 있는 방향으로 창을 크게 두어, 공부하는 공간이 푸르를 수 있도록 하였다.
센터는 다양한 레벨을 갖는다. 단순히 1층과 2층의 공간으로 나누어지는 것이 아니라, 1층과 1층 테크 레벨과 2층 레벨로 이루어져 있고, 각 레벨에서 다양한 활동들을 할 수 있다. 다양한 레벨을 통해 아이들은 더 창의적인 놀이를 할 수 있을 것이다. 또한 센터는 다양한 외부공간을 갖는다. 1층의 지붕 덮인 테라스는 내부 공간이 확장되는 공간으로서, 여름에는 그늘이 생기고, 비도 피할 수 있다. 2층의 테라스는 주변을 둘러볼 수 있는 개방된 공간으로서, 2층의 공부방들과 연결되어 야외수업 공간으로 활용할 수 있다. 그리고 이러한 외부공간들은 다양한 동선으로 서로 연결되어 있다.
이 지역아동센터는 기본적으로 아이들을 위한 공간이지만, 또한 지역주민들과의 접점이 되기도 할 것이다. 운동장을 이용하는 주민들과 어르신들은 센터의 외부 테라스에 앉아 쉬거나 햇빛을 피하기도 하고, 그러면서 이곳의 아이들을 만날 것이다.
이 공간은 물리적 투명함과 개방감을 통해 지역과의 열린 관계를 만들고자 하였다. 또한 내부와 외부 사이에 높이가 다르고 지붕이 있는 외부공간을 두어 센터의 아이들과 지역의 주민들이 공유하는 공간을 만들고자 하였다.
이는 지역아동센터가 시각적, 물리적인 방식으로 지역과 이어지게 하고, 접점을 가질 수 있도록 하려는 목적이었다. 지역사회 전체의 관심과 소통을 통해 아이들을 건강하게 키우는 것이 가능하다고 믿기 때문이다.

The project site of the local children's care center of Haman is a clean estate. It is exposed to green areas such as trees and gardens in all directions-especially on the one side, facing a large open sports field that residents use. Trees surround the sports field, have glass on the floor, and residents, including children, use it for various purposes such as exercising or walking in their daily lives. Therefore, the local children's care center plan also defined relationships with external spaces, including the sports field.
There are two main ways the local children's care center creates a relationship with outside spaces, including the sports field. The first is to heighten the floor level on the first floor above the playground. This will allow children to see the playground easily at a higher eye level and protect them from activities such as soccer and gateball on the sports field without a separate fence.
The second is a large roof. This roof covers the dazzling sunlight, gives a cool shadow for the ground floor, and protects from rain. Moreover, the interior and exterior spaces on the first floor are available, regardless of the weather.
The local children's care center has a transparent and open space structure in all four directions. This opens up the sports field and surrounding green area, and playground. Moreover, the window of the second-floor studying rooms is designed to open toward the direction where you can see big trees nearby, allowing the studying space to be green.
The center has diverse levels. It is not simply divided into spaces on the first and second floors. And instead, it consists of the first, first tech, and second levels, and people here can enjoy many activities at each level. Through various levels, children will be able to do more creative plays.
The center also has many exterior spaces. For example, the roofed terrace on the first floor is where the interior space is expanded, a shadow in the summer, and can take shelter from the rain. The terrace on the second floor is an open place where you can look around and use it as a place for outdoor class activities since it is connected with studying rooms on the second floor. And these exterior spaces are associated with various pathways.
This local children's care center is a place for children, but it can also connect with residents. Residents and elders using the sports field will sit on the exterior terrace and take a break or avoid sunlight, meeting children here.
We intended to create an open relationship with the region with physical transparency and openness. Moreover, we differentiated the height between the interior and exterior and created a roofed exterior to design a place where children and residents share.
The purpose was to make the local children's care center connect with the region visually and physically and connect. This is because we believe that it is possible to raise children healthy with the interest and communication of the whole local society.









| 함안 지역아동센터 설계자 | 조장희 _ (주)제이와이아키텍츠 건축사사무소 건축주 | 사회복지법인밀알복지재단 감리자 | 조장희 _ (주)제이와이아키텍츠 건축사사무소 시공사 | JD건축 설계팀 | 성지은, 안현희, 강종수 대지위치 | 경상남도 함안군 군북면 함마대로 766 주요용도 | 지역아동센터 대지면적 | 5,821.00㎡ 건축면적 | 218.90㎡ 연면적 | 266.59㎡ 건폐율 | 17.17% 용적률 | 20.91% 규모 | 지상 2층 구조 | 철근콘크리트구조 외부마감재 | 콘크리트노출, 종석뜯기, 아스팔트슁글 내부마감재 | 라왕합판, 라왕각재 루버, 석고보드 위 백색도장 설계기간 | 2019. 05 – 2019. 11 공사기간 | 2019. 12 – 2020. 08 사진 | 원유민 _ (주)제이와이아키텍츠 건축사사무소 구조분야 : 한길구조 엔지니어링 기계설비분야 : 정연 엔지니어링 전기분야 : 정연 엔지니어링 소방분야 : 정연 엔지니어링 |
Haman Local Children’s Center Architect | Jo, Janghee _ JYA-RCHITECTS Client | MIRAL Welfare Foundation Supervisor | Jo, Janghee _ JYA-RCHITECTS Construction | JD construction Project team | Seong, Jieun / An, Hyunhee / Kang, Jongsu Location | 766, Hamma-daero, Gunbuk-myeon, Haman-gun, Gyeongsangnam-do, Korea Program | a Community center for children Site area | 5,821.00㎡ Building area | 218.90㎡ Gross floor area | 266.59㎡ Building to land ratio | 17.17% Floor area ratio | 20.91% Building scope | 2F Structure | RC Exterior finishing | Expose concrete, Ripping stones, Asphalt shingle Interior finishing | Rawnag plywood, Rawnag lumber louver, White paint on gypsum board Design period | May 2019 – Nov. 2019 Construction period | Dec. 2019 – Aug. 2020 Photograph | Won Youmin _ JYA-RCHITECTS Structural engineer | Hangil Mechanical engineer | Jungyeon Electrical engineer | Jungyeon Fire engineer | Jungyeon |
'회원작품 | Projects > Education' 카테고리의 다른 글
| 서대문구 육아복합지원센터 / 가재울 어린이집 2021.11 (0) | 2023.02.13 |
|---|---|
| 메리모나크 마리나클럽 풀빌라 2021.10 (0) | 2023.02.10 |
| 청송 지역아동센터 2021.6 (0) | 2023.02.06 |
| 하이덴하인코리아 안양연구소 2021.4 (0) | 2023.02.02 |
| 충남과학교육원 2021.4 (0) | 2023.02.02 |
