2022. 11. 30. 23:19ㆍ회원작품 | Projects/Neighborhood Facility
Education Center at Dangjin Dongil Church

대지읽기
기존의 동일교회가 있던 대지 근처에 교육관이 새로 들어섰다. 기존의 대지는 산을 비롯한 자연으로 둘러싸여 있는 곳이었다. 건물이 들어설 곳의 레벨차이를 고려해 각 시설의 인지성을 확보하는 것과 공간들간의 연계가 설계의 중점이였다. 전면부에 주차장을 존치하고, 도로측면의 어린이 놀이시설 및 교육실을 배치하여 방문객이 메인 입구를 접근했을 때 교육관(대강당)을 인지할 수 있도록 기본적인 계획안을 세웠다.
디자인개념
동일교회의 성장하는 모습을 표현하듯, 사람과 사람, 사람과 자연, 자연과 공간을 이어주는 교육관을 표현했다. 아이들의 꿈과 희망 그리고 종교적 역할을 수행하는 교육관으로서의 기본 역할도 곳곳에 배치했다.
- 하나님을 만나는 학습공간
- 정서발달, 상상력을 북돋우는 공간
- 눈높이에서 바라보는 꿈이 있는 아이들공간
- 전원의 숲 속 놀이공간
- 자연과 건축물을 이어주는 매개공간
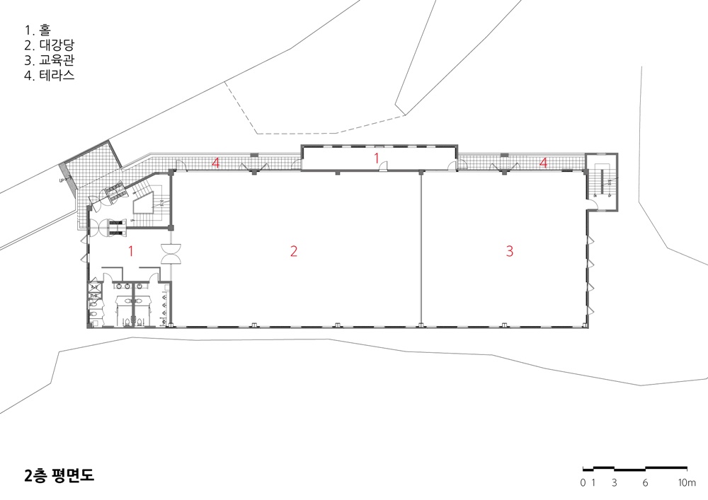
평면계획
대지가 7미터 경사도로를 두고있는 점을 감안하여 다양한 레벨에서 건물로 직접 접근이 가능하도록 평면을 계획했다. 공간을 방문한 이용객들에게 각 레벨마다 다양한 프로그램의 수용이 가능도록 고려했다.
- 레벨1 (+0)에서는 지하주차장 주진입이 바로 가능하다.
- 레벨2 (+3,000)에서는 어린이놀이공간, 교육실이 직접진입이 가능하다.
- 레벨2 (+7,200)에서는 메인 주진입구로 접근했을 때, 교육관(대강당)을 먼저 인지하도록 계획했다.
매스와 볼륨
장방형 형태의 대지를 최대한으로 활용할 수 있는 매스 표현을 고민했다. 솔리드(Solid)와 보이드(Void) 매스를 적절히 이용하여 교육관의 기본적인 볼륨감을 만들었고, 열리고 닫힌 공간들을 재료와 창을 통해 표현했다. 수평적인 징크판넬의 프레임을 통해 자연을 담아내고자 했고, 자연채광, 환기, 조망을 건물 내부에서도 충분히 느낄 수 있는 공간으로 계획했다.

Read the Site
A new educational center was constructed near the site in which the existing Dongil Church was located. The existing site was surrounded by nature such as mountains. The main point of design was securing the perception of each facility considering the level difference of the place for the building to be constructed and linkage of the spaces. A parking lot was placed on the front and a children's playground and classroom to the side of the road so that visitors could recognize the educational center(auditorium) when approaching the main entrance.
Design Concept
As the growth of Dongil Church, I expressed the education center that connects people and people, people and nature, and nature and space. Children's dream and hopes and basic function as a religious role were through out the floor plan.
- Learning space to meet God
- Space for emotion and imagination development
- Children's space with dreams at the children's eye level
- Playground in the forest
- The space that connects nature with architecture
Floor Plan
As the site faced with 7 meters of slope, the floor plan was designed to allow entrances at various levels In addition, the space was designed to accommodate various programs at each level for the visitors of the space.
- Level 1 (+0) has access to the underground parking lot.
- Level 2 (+3,000) has access to the children's playground and class rooms.
- Level 2 (+7,200) has access to the educational center(auditorium) to be recognized first when people approach the main entrance.
Mass and Volume
Mass design for maximum utilize of rectangular site was the main consideration. Solid and Void masses were mixed appropriately to create the volume of the education center, and to express open and closed spaces through materials and windows. The frame of horizontal zinc panel was used to express surrounded nature and interior spaces were planned to allow enough natural light, ventilation and outside view.














| 당진 동일교회 교육관 설계자 ┃ 박영준 KIRA _ 건축사사무소 나무 건축주 | 이수훈 _ 동일교회 감리자 | 거화 건축사사무소 시공사 | 김영복 _ 소이건설 설계팀 | 김남수, 차마라 대지위치 | 충청남도 당진시 수청로 139-13 주요용도 | 근린생활시설 대지면적 | 2,227.00㎡ 건축면적 | 868.79㎡ 연면적 | 2,513.51㎡ 건폐율 | 39.01% 용적률 | 72.18% 규모 | 지하 1층, 지상 2층 구조 | 철골조 외부마감재 | 송판무늬 노출콘크리트, 징크 판넬 내부마감재 | 석고보드 위 페인트 설계기간 | 2014. 04 ~ 2014. 10 공사기간 | 2014. 10 ~ 2015. 09 사진 | 박영준 구조분야 : 라임구조 기계설비분야 : (주)두원엔지니어링 전기분야 : (주)두원엔지니어링 |
Education Center at Dangjin Dongil Church Architect | Park, Yeongjun _ NaMoo Architecture Client | Lee, Suhun _ Dongil Church Supervisor | Geohwa Architecture Construction | Kim, Yeongbok _ SOI Construction Project team | Kim, Namsu / Cha, Mara Location | 139-13, Sucheong-ro, Dangjin-si, Chungcheongnam-do, Korea Program | Neighbourhood living facility Site area | 2,227.00㎡ Building area | 868.79㎡ Gross floor area | 2,513.51㎡ Building to land ratio | 39.01% Floor area ratio | 72.18% Building scope | B1F - 2F Structure | Steel-frame structure Exterior finishing | Exposed concrete with wood texture, Zinc panel Interior finishing | Eco-friendly paint finish above Gypsum board Design period | Apr. 2014 ~ Oct. 2014 Construction period | Oct. 2014 ~ Sep. 2015 Photograph | Park, Yeongjun Structural engineer | Laim Structure Mechanical engineer | Doo Won Engineering Co., Ltd Electrical engineer | Doo Won Engineering Co., Ltd |
'회원작품 | Projects > Neighborhood Facility' 카테고리의 다른 글
| 광혜원 커피숍 ‘카페 그레이나인’ 2018.05 (0) | 2022.12.01 |
|---|---|
| 원신흥동 근린생활시설 2018.04 (0) | 2022.12.01 |
| 어썸 845 2018.03 (0) | 2022.11.30 |
| 성정동 631-1(KⅡ) 2018.03 (0) | 2022.11.30 |
| 세 개의 면, 다섯 개의 켜 2022.11 (0) | 2022.11.14 |