2022. 11. 14. 12:05ㆍ회원작품 | Projects/Neighborhood Facility
TPFL

설계자와 시공자가 동일한 건축물
몇 년 전 소규모 건축물에 대한 건축허가권자의 감리자 지정에 관한 법률로 건축계가 한동안 들썩이던 때가 있다. 이 프로젝트는 설계자의 감리권한에 관한 재고의 필요성을 상기시키는 프로젝트이다. 기억을 되새겨보면 과거에 건축주나 시공사가 무시할 수 없는 건축사사무소에 다녔음에도 불구하고, 감리를 설계자가 맡지 못했을 경우 형편없이 시공됐던 악몽이 떠오른다. 심지어 아무 보상 없이 현장에 나가서 감리자와 시공자에게 건축개념상 꼭 도서대로 시공되어야 하는 부분을 호소했음에도 무시당하기 일쑤였다. 그 이유는 시방서나 도서에서 언급하는 “지정제품을 부득이하게 사용하지 못하거나 현장상황에 따라 설계도서를 그대로 반영하기 힘든 경우 동급이상의 제품을 감리·감독관의 승인 아래 시공한다”는 이 말이 통용되기 때문일 것이다. 그만큼 시공이 시작되면 설계자의 권한은 축소된다. 이 프로젝트는 설계자가 시공사 역할을 했다는 점에서 설계자의 의도를 최대한 반영할 수 있는 프로젝트였다. 덕분에 시공사나 감리자가 놓치거나 파악하기 힘든 패턴도의 기준점, 난간과 하드웨어를 포함한 디테일한 시공 요소 등을 건축도면에 최대한 일치시킬 수 있었다. 가장 큰 성과는 시공오차로 인해 도면이나 재료의 변경이 필요할 때도 디자인 의도에 맞게 변경하여 시공할 수 있는 권한을 가짐으로써 건축물의 완성도를 높일 수 있던 것이다. 결과적으로 완벽하진 않지만 건축물의 외장부터 가구에 이르기까지 설계자가 중요시하는 건축개념을 반영하는 총체적인 디자인(Total Design)이 실현될 수 있었다.
기본(기능·구조·미)에 충실하기
한국의 소규모 건축물들은 건축법에 의해서 그 형태가 결정되는 경우가 많다. 이번 프로젝트가 진행된 대지는 18미터×8.4미터 규모의 모서리가 잘려나간 작은 땅이기에 ‘최대의 건폐율과 최대의 용적률을 확보해야 한다’는 최고의 우선순위 아래 건축의 규모와 형태가 결정된 상태로 진행되었다.
건축법에 의하면 대지는 일반적으로 3층 규모의 건축물을 지을 수 있는 땅이다. 그리고 그 주변으로 1970~1990년대에 만들어진 오래된 5층 규모의 건축물들이 둘러싸고 있다. 이곳에 건축법에 의해 3층짜리 작은 건물이 들어선다면 도시의 전체 맥락을 무시하는 독자적인 건물이 탄생할 것이다. 이러한 문제점을 해결하기 위해 역으로 건축법을 이용하는 것이 이번 프로젝트의 목표였다. 결과적으로 ‘Three Planes, Five Layers’라는 개념으로 건축의 기능, 구조, 미를 통합할 수 있었다.
세 개의 면은 건축물의 형태와 구조를 담당하고, 이 건물의 형태를 보여준다. 독립된 세 개의 면이 강조된 매스는 건축물의 주출입구를 강조하는데, 각진 모서리 부분은 상가의 주출입구로서 모서리 면보다 돌출된 두 개의 면에 의해 강조된다.
건축물의 2층으로 향하는 외부계단은 두 개의 면에 열려있는 공간을 형성함으로써 두 개의 면을 강조한다. 그리고 이렇게 사용된 세 개의 면은 건축물의 주요 구조부이다. 건축 개념을 부각시키기 위하여 일반적으로 사용하는 라멘구조(기둥-보)가 아니라 벽체구조를 사용하였는데, 3개의 면은 건축물의 주요 구조물이자 매스가 되었다.
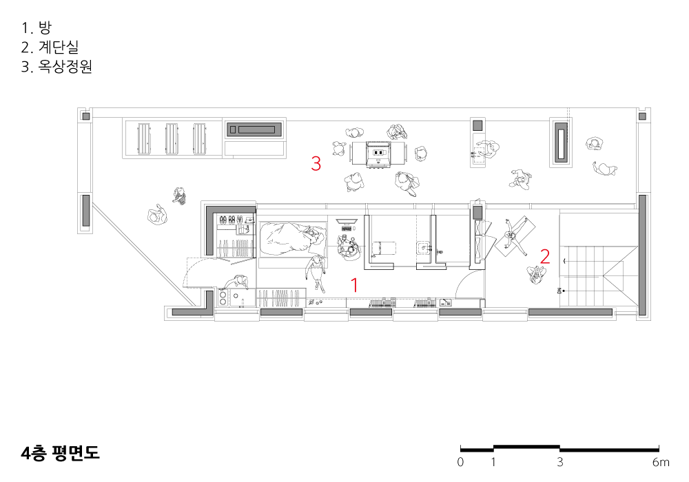
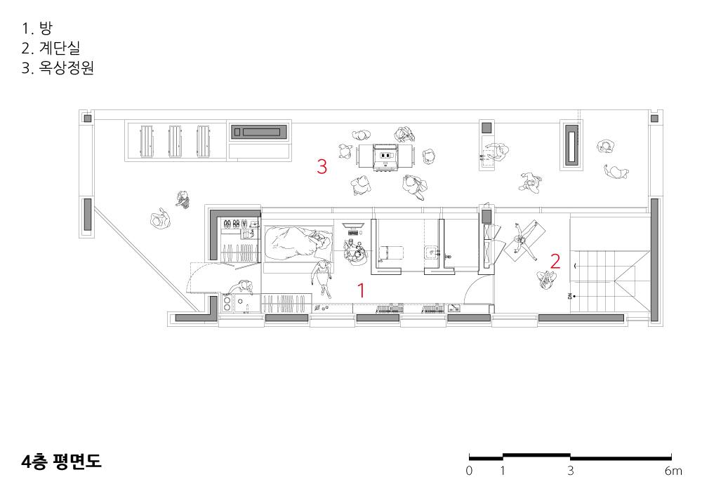
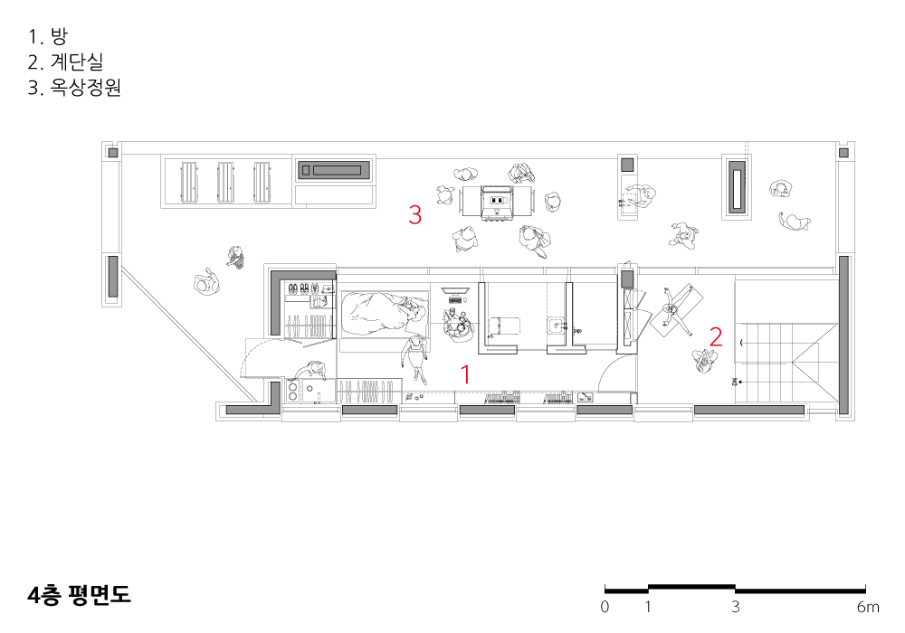
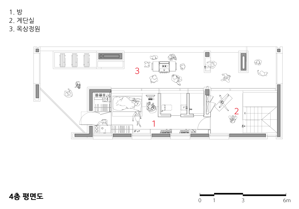
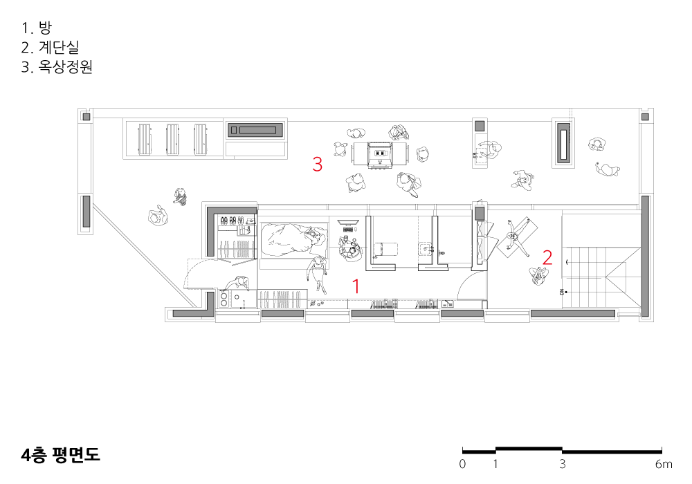
다섯 개의 켜는 기능, 구조, 미가 조화를 이룬 결과이다. 4층은 건축법에 의해 경사 형태의 매스를 이룬다. 이것은 건물의 형태에 재미를 주고, 밋밋할 수 있는 건축물에 변화를 부여한다. 그리고 3층의 건물 위로 얹어진 사선매스 위에 형성된 역보와 이를 지탱하는 기둥은 5개의 켜를 만들어 낸다. 이 켜는 건물의 형태에 다양함을 주면서, 외부 공간에서 활동할 수 있는 외부조명이 설치되어 경관조명의 역할과 더불어 외부활동을 가능하게 하는 기능과 우수관과 에어컨 배관이 지나가는 설비의 통로로 이용된다. 더불어 벽체량이 적은 커튼월로 이루어져 구조적으로 취약할 수 있는 4층의 사선 매스에 구조적인 도움을 준다.
이렇게 만들어진 건축물은 도시의 환경과 조화를 이룬다. 규모는 4층이지만 건축물의 입면을 이루는 세 개의 면은 5층 높이를 가짐으로써 전체 도시의 규모와 어울리게 되었고, 붉은 색의 컬러콘크리트 블록은 기존에 있던 벽돌건축물들과 조화를 이룬다.
건축 개념의 관철
건축의 전체를 이루는 면과 켜의 개념은 건축의 부분으로 관철되었다. 외부 계단은 켜의 개념이 사용되었다. 컬러콘크리트 블록이 만들어내는 면과 조금 이격되어 설치된 계단모양으로 커팅된 유리의 면이 켜를 이루고, 바닥에 시공된 어두운 마천석은 형성된 켜의 배경이 된다. 외형을 이루는 컬러콘크리트 블록의 줄눈은 조적이 켜켜이 쌓여나가는 모습을 은유적으로 표현한다. 은유적 표현을 위해 진회색과 벽돌색의 줄눈을 활용했다. 벽돌색의 줄눈은 민줄눈으로 시공함으로써 하나의 면으로 보이게 하는데 효과적으로 이용되었고, 진회색의 줄눈은 옥목줄눈으로 시공하여 입체감 있는 수평선을 그음으로써 벽돌이 켜켜이 조적되어 가는 과정을 표현하는데 사용되었다.

A building with the same designer and builder
A few years ago, there was a time when the architecture world was shaken up for a while by the law about the designation of supervisors by building permit holders for small-scale buildings. This project serves as a reminder that we need to reconsider the supervisory authority of the designer. Looking back on my memories, it reminds me of the nightmare of poor construction when the designer could not supervise, even though I worked at an architect's office that no clients or contractors could ignore at that time. I was often ignored, even when I visited the site at no charge. I tried to persuade the supervisor and the builder to build according to drawings in terms of architectural concepts. The reason is that the statement specified in specifications or drawings, "in case a specific product cannot be used inevitably or it is difficult to reflect design drawings depending on the on-site situation, the product of the same level or higher shall be used under the approval of the supervisor," is widely known. As such, once construction begins, the designer's authority is reduced. However, this project could reflect the designer's intentions as much as possible in that the designer acted as a builder. Thanks to this, we could match the reference point of the pattern plan and the detailed construction elements, such as railings and hardware, which the contractor or the supervisor could miss or fail to grasp, to the architectural drawings as much as possible. The biggest achievement was that we could increase the completeness of the building by having the authority to change it according to the design intent, even when it was necessary to change drawings or materials due to construction errors. As a result, the total design reflects the architectural concept that the designer considers essential, from the exterior of the building to the furniture, although not perfect.
Stick to the basics (function · structure · beauty)
Small buildings in Korea are often shaped by building codes and regulations. As the property was cut off with corners of 18m X 8.4m, the size and shape of the building were determined under the highest priority of ensuring maximum floor area ratio (FAR) and maximum building coverage ratio (BCR). According to the building regulations, three-story building can be built on this property, but surrounded buildings were five-story buildings which were built back in 70's and 90's. If a small three-story building sits here based on building regulations, an independent building will be created which ignores the entire context of the city.
The goal of this project was to consider the building regulations first to solve these problems. As a result, the concept of Three Planes, Five Layers allowed us to integrate the function, structure, and beauty of architecture. The three planesare responsible for the form and structure of the building at the same time. Masses with three independent facadesemphasizethe main entrance of the building, the angular edge part is the main entrance of the commercial spaces, the two sides are highlighted by the two planes that protrude over the edge, and the exteriorstaircase leading to the second floor of the building highlights the two independent facadesby creatingan open space. As a result, these three exterior walls were becoming main structural parts of the building. Instead of using column-beam structure system, these wall structure system was used which was not generally being used.
The five of horizontal layers are the result of a combination of function, structure and beauty. The fourth floor's mass follows the line of dedication which resulted slanted mass according to the building codes and it provides unique aninteresting form of a mass. Also, the beams placed on top of the angled mass on the third floor of the building and the pillars create five layers. These layersare providing variationof the form, and it used as a lighting installation for an out-door space use and passage way to the air-conditioning tubes and mechanical facilities. In addition, curtain walls are constructed for the lighter weight and less material use tohelpwith better structural system for an angled mass on fourth floor.
Realization of the architectural concept
The building that was created is in harmony with the environment of the city and naturally blends into surroundedbuildings. The building has levels of four, but the building's three facades are extended out to five stories high which turn intosimilar height of the surroundedbuildings and the red color-concrete block harmonizes with existing brick buildings.
In addition, the facades and layerswere reinterpreted and used as architectural design elements which includestaircases and furniture. The exterior staircase was creating layers of spaces by using colored concrete blocks, glass, and stepped staircaselanding. The exterior wall has two different color of mortar in used which were matching with red brick and dark gray. The red mortar tends to be invisible and dark gray motar represents the process of the bricks being stacked.









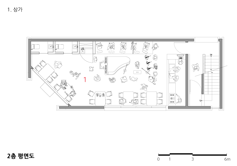
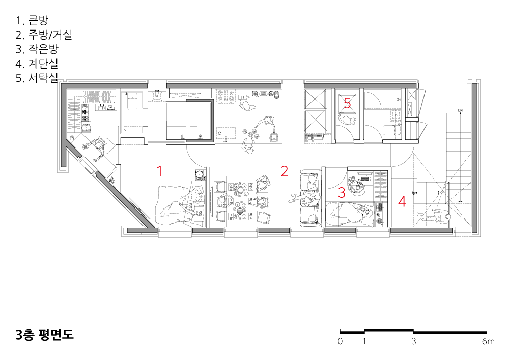
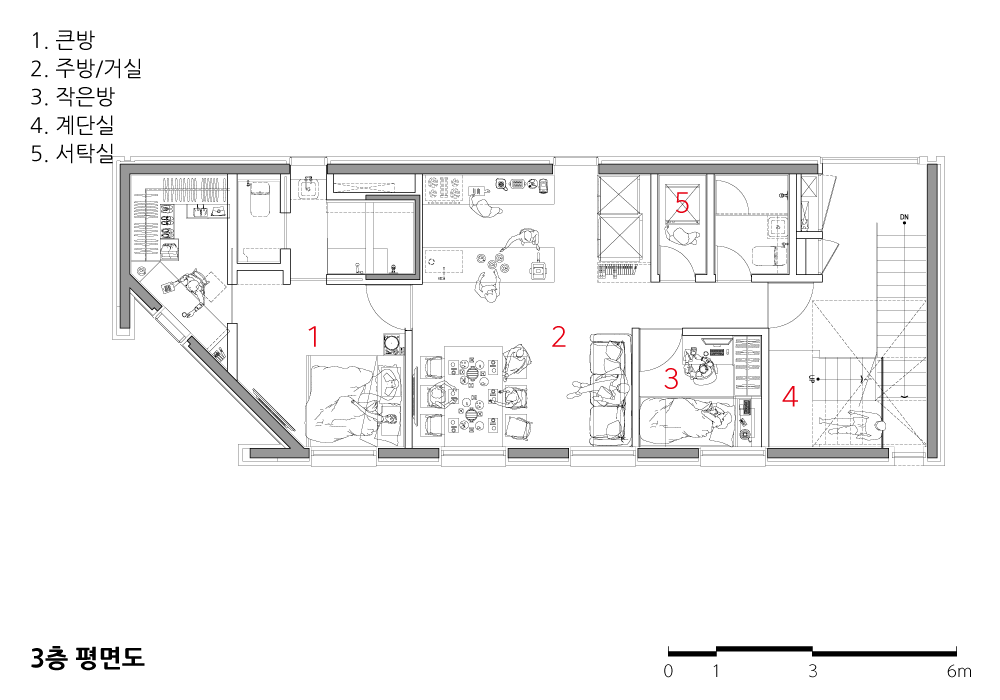
| 세 개의 면, 다섯 개의 켜 설계자 | 김경진 _ 건축사사무소 샴건축 건축주 | 김경진 감리자 | 시나 건축사사무소 시공사 | 김경진 설계의도 구현 | 건축사사무소 샴건축 대지위치 | 인천시 남동구 구월로 115번길 66 주요용도 | 근린생활시설 대지면적 | 154.90㎡ 건축면적 | 92.71㎡ 연면적 | 302.13㎡ 건폐율 | 59.86% 용적률 | 192.31% 규모 | 4F 구조 | 철근콘크리트구조 외부마감재 | 칼라콘크리트 블록(두라스텍 탱고레드), 블랙 스테인레스스틸 내부마감재 | 친환경페인트, 포세린타일, 멀바우집성목 설계기간 | 2017. 12 - 2018. 07 공사기간 | 2018. 07 - 2019. 12 사진 | 구의진 구조분야 : 베이스구조 기계설비분야 : 코담기술단 전기분야 : 코담기술단 소방분야 : 코담기술단 |
TPFL Architect | Kim, Kyoungjin _ SHAMMAH Architects Client | Kim, Kyoungjin Supervisor | SINA Architects Construction | Kim, Kyoungjin Design intention realization | SHAMMAH Architects Location | 66, Guwol-ro 115beon-gil, Namdong-gu, Incheon, Korea Program | Mixed-use facility Site area | 154.90㎡ Building area | 92.71㎡ Gross floor area | 302.13㎡ Building to land ratio | 59.86% Floor area ratio | 192.31% Building scope | 4F Structure | RC Exterior finishing | Interior finishing | Design period | Dec. 2017 - Jul. 2018 Construction period | Jul. 2018 - Dec. 2019 Photograph | GUUIJIN Structural engineer | Base Structure Mechanical engineer | Codam Electrical engineer | Codam Fire engineer | Codam |
'회원작품 | Projects > Neighborhood Facility' 카테고리의 다른 글
| 어썸 845 2018.03 (0) | 2022.11.30 |
|---|---|
| 성정동 631-1(KⅡ) 2018.03 (0) | 2022.11.30 |
| 텐퍼센트 2022.11 (0) | 2022.11.14 |
| 강릉 메어블릭 2018.02 (0) | 2022.11.09 |
| 투은빌딩 2018.02 (0) | 2022.11.09 |
