2022. 11. 30. 23:17ㆍ회원작품 | Projects/Neighborhood Facility
Awesome 845

Awesome : 웅장함, 놀라운, 경이로운
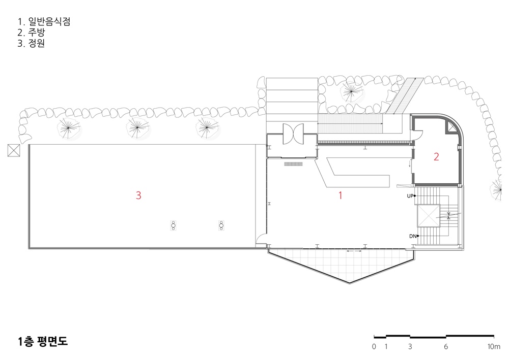
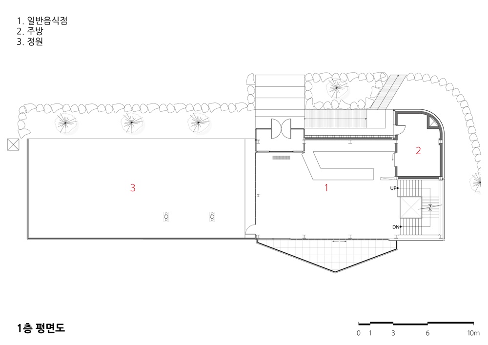
계룡산의 풍경과 자연이 멋스럽게 어우러지는 공주 학봉리에 한 건축물이 들어섰다. awesome 845는 학봉리에서도 계룡산으로 향하는 입구에 위치해 있다. 대지의 장점을 최대한 살리고자 주변과의 조화에 중점을 두고 설계를 진행했다. 건축물 주변에는 냇물이 흐르고 있고, 뒷편에는 천황봉이 한눈에 펼쳐져 장관을 이룬다.
답답한 도심 속을 벗어나 힐링이 필요한 사람들을 위한 공간
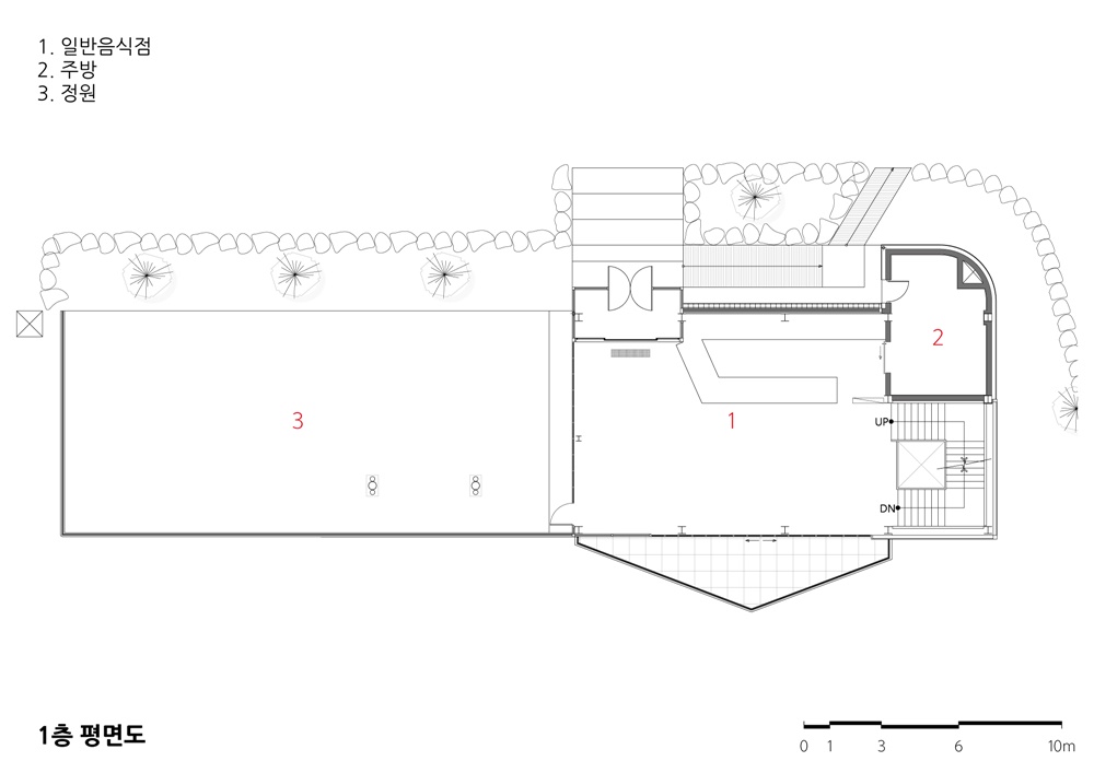
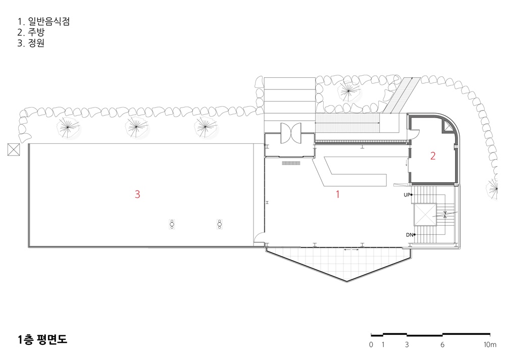
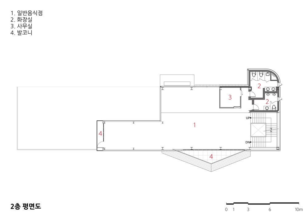
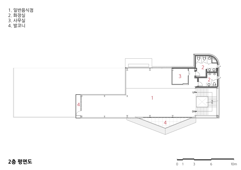
건물 외부의 자연풍경들은 내부까지 이어진다. 건물 내부의 어느 공간에서도 자연풍경을 바라볼 수 있게 설계되어 있다.
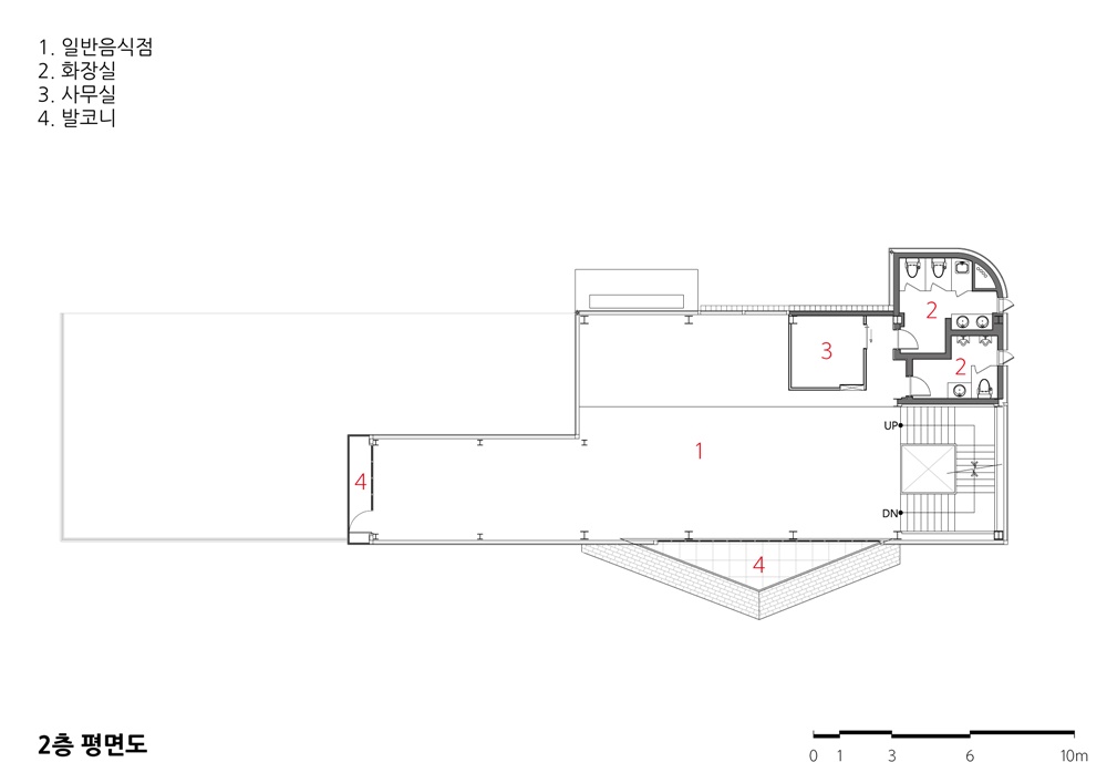
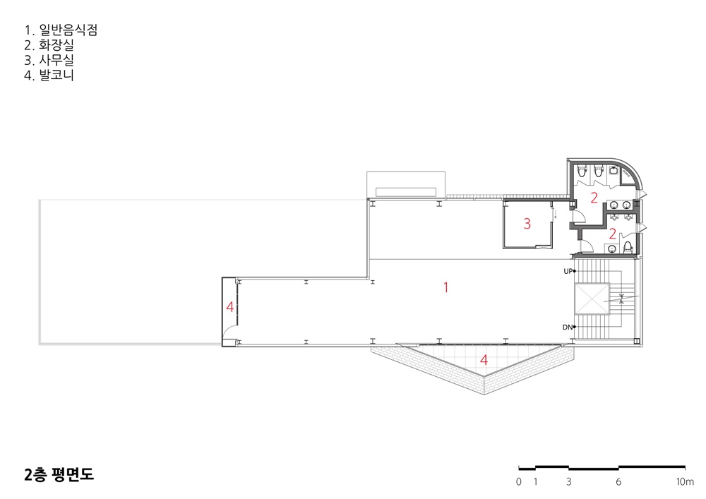
어썸 845만의 독특한 건축적 묘미는 3층에서 나타난다. 1층과 2층을 지나 3층으로 올라가면 바닥이 회전하는 턴테이블 형식의 공간이 등장한다. 건축주의 요구로 설계된 움직이는 공간은 천천히 회전하는 바닥에 따라 손님들이 앉은 자리가 천천히 움직이게 된다. 움직이는 자리에 따라 창밖으로 다양한 풍경을 바라볼 수 있게끔 하는 것이다.
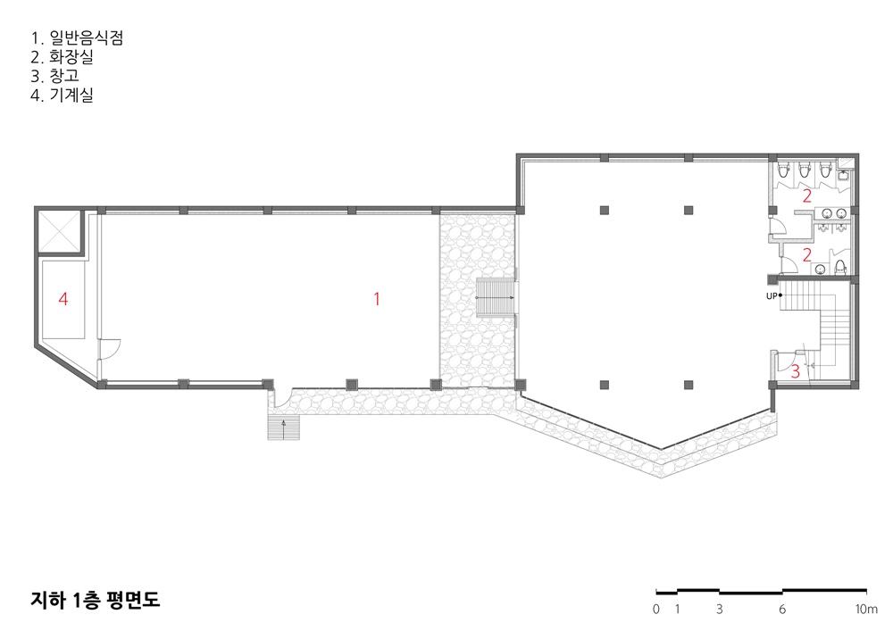
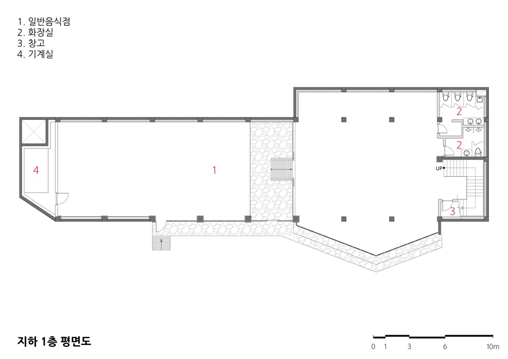
이 외에도 대지의 등고차를 이용해서 지하 1층에 연결된 넓은 야외 테라스 공간, 옥상의 전망대, 방문객들을 위한 이벤트 공간 등을 통해 지친 사람들을 위한 힐링공간을 만들고자 했다.
이름은 계룡산의 웅장하고 경이로운 풍경을 표현한 ’awesome'과 계룡산 천황봉의 높이 845.1미터에서 '845'를 따왔다. 방문객들에게 계룡산 천황봉의 정기를 주고 싶다는 의미를 가진다.

Awesome : magnificent, amazing, wonderful
There is a building in Hakbong-ri, Gongju where Mt. Gyeryong's scenery and nature are harmoniously combined. Awesome 845 is located in Hakbong-ri, especially at the entrance to Mt. Gyeryong. In order to maximize the advantages of the site, I designed focusing on the harmony with the surrounded contexts. A stream is flowing around the building, and Cheonhwangbong is spread out to form a spectacular view behind the building.
A space for those who need heeling getting out of the stifling city
The natural scenery outside the building leads to the interior. It is designed to look at the natural landscape in any space inside the building.
The unique architectural charm of Awesome 845 appears on the third floor. If you go up to the third floor through the first and second floors, you will find a turntable-type space where the bottom rotates. In the moving space designed by the client’s request, the seats of consumers move slowly along the rotating floor. It allows you to look at various scenes outside the window from the moving seat.
In addition to this, I designed to create a healing space for exhausted people through a large open-air terrace area connected to the first basement floor, a rooftop observation deck and an event space for visitors by using the height difference of the land.
Awesome 845 is named after 'awesome' which expresses the magnificent and wonderful scenery of Mt. Gyeryong, and after '845' from the height of 845.1 meters of Mt. Gyeryong Cheonhwangbong. It means that it wants to give visitors the sprit of Mt. Gyeryong Cheonhwangbong.

















| 어썸 845 설계자 | 이명주 KIRA _ 우리 건축사사무소 건축주 | 강명근 감리자 | 이명주 _ 우리 건축사사무소 시공사 | 영민 건설주식회사 대지위치 | 충청남도 공주시 반포면 동학사1로 209-8 주요용도 | 근린생활시설(일반음식점) 대지면적 | 549.00㎡ 건축면적 | 215.10㎡ 연면적 | 869.66㎡ 건폐율 | 39.18% 용적률 | 88.15% 규모 | 지하 1층, 지상 3층 구조 | 철골조 외부마감재 | AL 판넬, 시멘트블럭 내부마감재 | AL 천장, 데코타일, 화강석 설계기간 | 2016. 10 ~ 2017. 01 공사기간 | 2017. 02 ~ 2017. 09 사진 | 윤종성 구조분야 : 명가구조 기계설비분야 : 태화종합기술 전기분야 : 우일전기설계감리 소방분야 : 태화종합기술 / 우일전기설계감리 |
Awesome 845 Architect | Lee, Myeongju _ Woori Architects Client | Kang, Myeonggeun Supervisor | Lee, Myeongju _ Woori Architects Construction | Young Min Construction Co.,Ltd Location | 209-8, Donghaksa 1-ro, Banpo-myeon, Gongju-si, Chungcheongnam-do, Korea Program | Neighbourhood living facility Site area | 549.00㎡ Building area | 215.10㎡ Gross floor area | 869.66㎡ Building to land ratio | 39.18% Floor area ratio | 88.15% Building scope | B1F - 3F Structure | Steel-frame structure Exterior finishing | AL panel, Cement brick Interior finishing | AL ceiling, Deco tiles, Granite Design period | Oct. 2016 ~ Jan. 2017 Construction period | Feb. 2017 ~ Sep. 2017 Photograph | Yun, Jongseong Structural engineer | Myeong Ga Structure Mechanical engineer | Tae Hwa ENG. Electrical engineer | Woo Il ENG. Fire engineer | Tae Hwa ENG. / Woo Il ENG. |
'회원작품 | Projects > Neighborhood Facility' 카테고리의 다른 글
| 원신흥동 근린생활시설 2018.04 (0) | 2022.12.01 |
|---|---|
| 당진 동일교회 교육관 2018.03 (0) | 2022.11.30 |
| 성정동 631-1(KⅡ) 2018.03 (0) | 2022.11.30 |
| 세 개의 면, 다섯 개의 켜 2022.11 (0) | 2022.11.14 |
| 텐퍼센트 2022.11 (0) | 2022.11.14 |