2023. 2. 10. 09:20ㆍ회원작품 | Projects/House
Suwon Y house

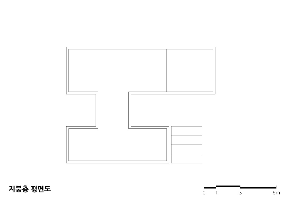
중정이 건물의 중심이 되는 주택
수원 Y주택은 흔히 보이는 일반 주택에 익숙한 사람들에게는 매우 색다른 주택이다. 외부쪽으로는 창문이 거의 없이 대부분의 채광이나 환기가 중정을 통해 이루어지는 주택이다. 주택의 내부인 식당, 거실, 계단, 손님방 등은 모두 중정을 중심으로 배치되었다. 외벽은 창문을 거의 만들지 않고, 만드는 경우에도 최소로 줄여서 디자인하였다. 2층에는 중정을 중심으로 2개의 테라스가 침실 사이에 끼워져 있어서, 1층의 중정이 어둡지 않도록 하였고, 중정과 2개의 테라스로 집안의 모든 부분이 밝게 채광이 되고 있다.
대지는 수원 영덕지구의 단독주택 블록에 위치한다. 건축주 부부, 자녀들을 위해 설계된 주택이다. 건축주의 요구는 ‘프라이버시가 최대로 보호받을 수 있을 것’과 ‘마음 놓고 거실 문을 열어 둘 수 있는 구조일 것’, ‘2층의 모든 침실에는 테라스가 있을 것’, ‘계단공간이 밝을 것’, ‘현관과 별도로 자전거가 출입 가능한 창고’ 등이었다.
대지가 정사각형이었으나 남측에 이미 큰 주택이 위치하고 있었으므로, 중정을 만들어서 채광을 하는 콘셉트로 건물이 배치되었다. 대지의 남측으로는 자동차 진입이 불가능한 특이한 형상의 문제점도 중정형 콘셉트로 극복할 수 있었다.
1개의 중정과 2개의 테라스는 거실, 침실이 남향으로 배치되는 것을 가능하게 한다.
동측의 2층 테라스는 비를 맞지 않는 유리캐노피를 계획하여, 건물의 입면에도 근사한 느낌을 주고 있다.
외부에서 보이는 입면은 최대한 단순하게 계획되었다. 흰색 친환경 코팅 페인트와 유리를 주로 사용하였고, 도로 측에서 보이는 동측 면에는 창문을 만들지 않았다. 도로 측에서 보이는 동측 입면이 건물의 주요한 인상을 심어줄 수 있도록 디자인하였다.
인테리어 역시 단순한 구성이 되도록 계획되었다. 내부 마감재는 자작나무 합판과 아이보리색의 친환경 도장으로 통일하였다. 바닥재는 자작나무 합판과 동일한 색상의 재질을 적용하였다. 내부에 사용되는 자작나무 문짝과 가구들에도 적용이 된다.
붙박이 가구에 사용되는 자작나무 역시 동일한 재질을 사용하였고, 모든 자작나무의 표면 도장은 친환경 오일로 마감했다. 가구 내부에 사용되는 힌지, 레일과 같은 액세서리도 오래 사용해도 문제가 되지 않은 고급 제품을 미리 지정하였다.
모든 침실은 일반적인 다운라이트를 최소로 줄이고, 평소 간접조명만을 사용하여 생활이 충분히 가능하도록 방 전체를 관통하는 길고 커다란 간접조명을 설치하였다. 또한, 주택 내부에 사용되는 모든 조명은 따뜻한 분위기의 느낌을 갖도록 고려되었다.

A house with a courtyard that becomes the center of the building
Suwon Y House is a unique house for those who are familiar with typical houses. It is a house with few windows on the outside, where it is light and airy through the courtyard. The house's interior, such as a dining room, a living room, stairs, and a guest room, is placed around the yard. The exterior walls are designed with very few windows, and even they are minimized if any. On the second floor, two terraces around the courtyard are sandwiched between bedrooms so that the yard on the first floor is not dark, and every corner of the house is bright through the courtyard and two terraces.
The site location is in a block of detached houses in Yeongdeok District, Suwon. This is a house designed for the client couple and their children. The client's requests are as follows:
• 'The privacy should be protected as much as possible'.
• 'The structure should be designed to leave the living room door open freely', 'all bedrooms on the second floor should have a terrace'.
• 'The staircase space should be bright.
• 'A storage space with bicycle access, separately from the entrance', etc.
Although the site was square, a large house was already located on the south side, so the building was designed to have a courtyard where lighting comes in through. Due to the courtyard's concept, we could also overcome the unique shape of the site, which made it difficult for cars to enter from the south.
One courtyard and two terraces make it possible for the living room and bedrooms to face south.
The terrace on the second floor in the east has a glass canopy to avoid rain, making the elevation look great.
The elevation seen from the outside is designed to be as simple as possible. White eco-friendly coating paint and glass were mainly used, and there is no window in the east seen from the road. The east elevation seen from the road is designed to give the primary impression of the building.
The interior is also planned to be simple in terms of structure. The interior finishing materials are unified with birch plywood and ivory eco-friendly paint. The material of the same color as the birch plywood is applied for the flooring. This also applies to birch doors and furniture used in the interior.
The same material was also used for the birch wood used for the built-in furniture, and the surface painting of all birch wood was finished with eco-friendly oil. For accessories such as hinges and rails used in the inside of furniture, we also used high-quality products that may not cause problems even after long use.
In all bedrooms, general downlights were reduced to a minimum, and long and large indirect lighting was installed to penetrate the entire room so that it is possible to live using only indirect lighting. Besides, all lighting inside the house is designed to have a warm atmosphere.








| 수원 Y 주택 설계자 | 황준_(주)황준도시 건축사사무소 시공사 | 신동규 설계팀 | 남해룡, 서한나, 박소영, 신보은 대지위치 | 경기도 용인시 기흥구 영덕동 주요용도 | 단독주택 대지면적 | 220.00㎡ 건축면적 | 109.83㎡ 연면적 | 199.11㎡ 건폐율 | 49.92% 용적률 | 90.51% 규모 | 2층 구조 | 철근콘크리트조 외부마감재 | 복층유리, SKK 세라타이트 코팅, 시스템창호 24mm 복층유리 내부마감재 | 자작나무합판, 목재바닥판, 친환경페인트 설계기간 | 2017. 08 – 2018. 10 공사기간 | 2018. 02 - 2018. 10 사진 | 박영채 구조분야 : 이우호 _ 티섹구조 기계설비분야 : (주)천일이앤씨 전기분야 : (주)천일이앤씨 |
Suwon Y house Architect | Hwang, June_Hwang June architect & associates Construction | Shin, Dongkyu Project team | nam, H.R. / Suh, H.N. / Pak, S.Y. / Shin, B.E. Location | Yeongdeog-dong, Giheung-gu, Yongin-si, Gyeonggi-do, Korea Program | Detached house Site area | 220.00㎡ Building area | 109.83㎡ Gross floor area | 199.11㎡ Building to land ratio | 49.92% Floor area ratio | 90.51% Building scope | 2F Structure | RC Exterior finishing | Pair glass, Skk coating, System door/window Interior finishing | White birch pannel, White birch flooring, Eco paint Design period | Aug. 2017 – Oct. 2018 Construction period | Feb. 2018 - Oct. 2018 Photograph | Park, Youngchae Structural engineer | Lee, Wooho _ TSEC GROUP Mechanical engineer | Cheonil E&C, Co.,Ltd Electrical engineer | Cheonil E&C, Co.,Ltd |
'회원작품 | Projects > House' 카테고리의 다른 글
| 미아동 15929 2021.11 (0) | 2023.02.13 |
|---|---|
| 유신재 2021.10 (0) | 2023.02.10 |
| 광주 운림동 추사채 2021.10 (0) | 2023.02.10 |
| 아우름725 2021.10 (0) | 2023.02.10 |
| 삶가구주택 2021.10 (0) | 2023.02.10 |
