2023. 2. 13. 09:12ㆍ아티클 | Article/연재 | Series
Term@Architecture 11
Building
architectural terms 건축용어
우리나라 건축용어 중에는 왜 그렇게 표현하는지 어원을 알 수 없는 것들이 많습니다. 이 연재에서는 필자가 이해하기 어려웠거나 호기심이 크게 생겼던 표현들을 소개하고, 그 어원과 출처를 추적할 것입니다. 이를 통해 독자들과 함께 보다 적절한 표현은 무엇일지 고민하는 계기를 갖고자 합니다.
‘건축사님은 아파트에 사세요, 빌라에 사세요?’ 종종 이런 질문을 받는 경우가 있다. 다른 이가 살고 있는 주거 유형을 물어보는 것이 우선 불편하지만, 주거 유형을 아파트와 빌라로 단순 구분해서 물어보는 것도 불편하다. 그런데 이 ‘아파트’는 무엇이고 또 ‘빌라’는 무엇일까?
아파트는 떨어지거나 분리하는 것을 의미하는 ‘apart-’와 결과나 생산물을 뜻하는 ‘-ment’가 합쳐진 말이다. 무엇인가 떨어지고 분리되어 존재하는 모습을 의미한다. 프랑스에서는 ‘아파트멍(appartement)’이라고 했는데, 궁전이나 대저택에서 각각 독립된 생활공간들을 의미하는 용어로 쓰였다. 주인이 거주하는 곳, 방문객을 응접하는 곳, 하인들이 생활하는 곳 등 각 기능을 하는 부분을 아파트멍(appartement)이라고 불렀다고 한다. 시민사회로 접어들면서 아파트멍(appartement)은 공동주택이라는 의미도 갖게 된다. 미국에서도 20세기 초반에 승강기와 개별 전기 등 편리한 시설을 갖춘 도심 공동주택이 대도시를 중심으로 다량 공급된다. 그러면서 왕족과 귀족들의 대저택을 지칭하던 용어인 아파트멍(appartement)을 도심 공동주택을 지칭하는 용어로 사용했다. 우리에게도 익숙한 ‘아파트먼트(apartment)’다. 우리는 이 아파트먼트(apartment)라는 용어에서 apart- 부분만 따서 5층 이상 규모의 공동주택을 ‘아파트(aprt-)’라고 지칭하고 있다. 우리의 아파트다.

법적 용어는 아니지만, 일반적인 용어로써 다세대와 다가구를 통칭하는 ‘빌라(villa)’라는 용어가 사용된다. 그럼 빌라(villa)는 무엇일까? 본래 빌라(villa)는 로마시대 귀족들이 소유한 농지를 가리키는 말인데, 농지를 관리하는 대저택도 빌라(villa)라고 한다. 빌라(villa)는 주변의 넓은 농지를 활용해 독립적인 생산 시스템을 갖추는데, 하인에게 농지를 경작시키고 수확한 작물로 빵과 와인을 생산하고 저장했다. 일종의 생산시설인 빌라(villa)는 자급자족이 가능한 시스템을 갖추고 있었기 때문에, 로마를 비롯한 대도시에서 생활하던 귀족들은 언제든 빌라를 찾아가서 장기간 머무르며 휴양을 할 수 있었다. 자신의 빌라(villa)에는 하인들이 항상 대기하고 있었고, 창고에는 빵과 와인이 가득했기 때문이다.



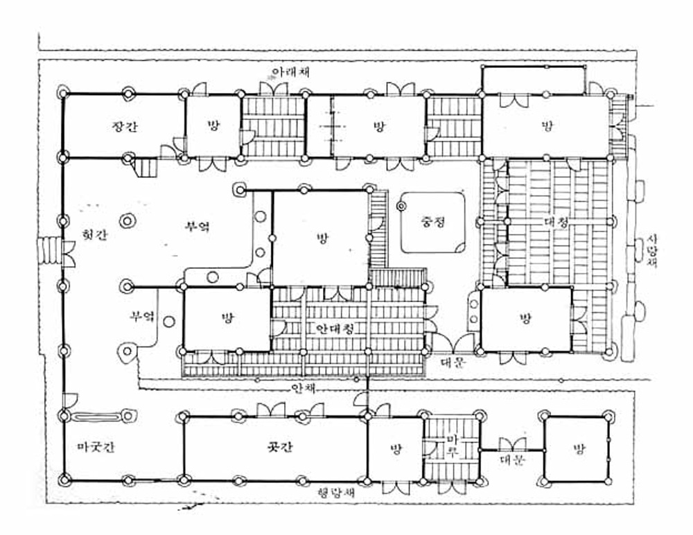
옛 빌라(villa)를 설명하는 그림을 살펴보자. 누워서 식사하는 식당인 트리클리니움(triclinium), 욕실(baths), 주방(kitchen)이 있고, 2층에는 방들(family rooms)이 있다. 기본적인 주거 공간을 제공한다. 나머지는 모두 생산과 저장을 하는 공간들이다. 빵을 굽는 곳(bakery), 외양간(cowshed), 포도를 가공하고 기름을 짜는 공간(room for pressing grapes, oil-pressing rooms) , 포도주 발효를 위한 마당(fermenting yard)과 탈곡하는 마당(threshing floor) 그리고 창고(barn)를 갖추었다. 중요한 것은 이 모든 시설을 운영하는데 하인이 필요하다는 점이다. 그래서 하인들이 머무르는 공간(servants’ rooms)도 있다. 이런 점에서 빌라(villa)는 계급사회였던 조선시대의 종갓집 구성과 공통점이 많다. 양동마을의 향단은 로마시대 빌라(villa)처럼 생산과 저장을 위한 공간을 모두 갖추고 있다. 양동마을이 비옥한 안강 평야를 기반으로 가문의 세력을 유지했던 것도 필자가 로마의 빌라(villa)와 우리의 종갓집을 유사하게 바라보는 이유이다. 양동마을의 또 다른 종갓집으로 ‘농사짓는 것을 바라본다 ‘는 의미의 관가정(觀稼亭)을 곱씹어 볼 만하다. 그 시대의 사회구조를 엿볼 수 있는 이름이 아닐 수 없다.
계급사회를 벗어난 현대에 이르러 빌라(villa)는 일반적으로 휴양지의 별장이나 규모가 큰 개인주택을 지칭하고 있다. 그런데 흥미롭게도 우리는 도심에 위치한 소규모 공동주택을 빌라(villa)라고 부르고 있다. 귀족들이 소유했던 집이라는 특별함이나 호사스러움 같은 이미지를 차용하고 싶었던 것일까? 그래서 빌라(villa)라는 말을 들으면, 계급사회를 동경하는 시민사회의 아이러니한 모습이 느껴져서 안쓰럽고 착잡한 맘이 든다.


한편으로 빌라(villa)가 지칭하는 법정 용어인 ‘다가구’나 ‘다세대’는 어떤가? 건축법에서는 주택을 크게 단독주택과 공동주택으로 분류하는데, 소유를 구분하여 등기할 수 없으면 단독주택으로 분류하고, 소유를 구분하여 등기할 수 있으면 공동주택으로 분류한다. 다가구는 단독주택에 속하고, 다세대는 공동주택에 속한다. 즉 다가구는 구분 소유를 할 수 없는 단독주택의 한 종류이고, 다세대는 개별 호를 구분하여 소유할 수 있는 공동주택이다. 그런데 정작 가구(家口)와 세대(世帶)라는 개념은 건축물의 용도와는 무관한 개념이다. 가구(家口)는 혈연관계와 상관없이 주거와 생계를 함께 하는 단위를 뜻하고, 세대(世帶)는 혈연, 혼인, 입양 등으로 하나의 가족 구성을 이룬 사람들의 집단을 뜻한다. 그래서 거주하는 건축물의 용도 구분을 하는데, 가구(家口)나 세대(世帶)라는 용어를 사용하는 것은 적절하지 않다. 예를 들어보면, 다가구 주택은 하나의 소유주체에 여러 개의 독립된 생활공간인 호(戶)들로 구분되어 있는데, 각각의 호(戶)에는 구분된 세대들이 거주한다. 건축물의 용도 구분은 다가구로 구분되지만, 여러 세대가 거주하고 있는 것이다. 이것은 다가구인가, 다세대인가? 건축물 용도 구분에서 용도의 개념과 용어의 개념이 상호 오류에 빠진 부분이다.
건축법의 건축물 용도에는 없지만, 한국사회 전반에서 전문 용어처럼 언급되는 땅콩주택과 협소 주택이라는 말이 있다. 땅콩주택은 하나의 필지에 두 세대가 함께 거주하는 주택을 지칭하는 말이다. 단독주택만 허용되는 필지에 두 세대가 토지와 건축물을 지분으로 나누어 공동 소유하지만, 구분된 호(戶)에서 독립적으로 생활하는 형식을 의미한다. 건축법의 용도로는 단독주택에 속하는 다가구이다. 단독주택이기 때문에 소유권을 구분하여 등기할 수 없으므로, 지분으로 공동소유를 하고 상호 간에 협의를 통해 생활공간을 구분하여 사용하는 것이다. 같은 다가구이지만 공동 소유하지 않고 임대인과 임차인으로 생활하는 일반적인 다가구는 땅콩주택이라고 할 수 없겠다. 땅콩주택이라는 용어는 다가구주택을 공동 소유하는 특별한 경우로서 일반적인 임차/임대 방식과 구분되는 개념으로 받아들일 수 있겠지만, 무분별하게 일반적인 다가구를 칭하는 데 사용되는 것은 지양해야 할 것이다.
협소 주택이라는 용어 또한 기준 없이 각자 주관적으로 사용하고 있어 불편함이 크다. ‘협소’라는 말은 좁다(협, 狹)라는 의미와 작다(소, 小)라는 의미의 한자로 구성된 용어이다. 좁다와 작다 모두 상대적인 의미이므로 어느 정도를 좁거나 작은 것으로 볼 것인지 기준이 필요하겠다. 필자가 설계하고 2019년 서울시 건축상을 수상한 ‘얇디얇은 집’은 일반적인 생활공간이나 건물과 비교하여 폭이 좁은 집이다. 폭이 가장 좁은 부분이 1.5미터를 넘지 않기 때문이다. 반면 규모는 지하 1층, 지상 4층이고, 연면적은 140제곱미터에 이르니 결코 작은 집이라고는 할 수 없겠다. 그렇더라도 ‘얇디얇은 집’에 일반적인 가구를 적용할 수 없을 정도로 폭이 좁은 것은 분명하므로, 정확하게 표현하자면 ‘작은 집은 아니지만, 폭이 좁은 주택’이라고는 할 수 있겠다. 또 다른 예인 몽당 주택은 지상 3층 규모의 단독주택인데, 연면적이 49.5제곱미터이다. 연면적 50제곱미터를 넘기면 주차장을 설치해야 하는데, 대지면적이 34.5제곱미터였던 몽당 주택은 주차장을 설치할 수 없어서 연면적을 49.5제곱미터에 맞췄다. 몽당 주택으로 생각해 보면, 주차장을 설치할 수 있을 만큼 여유(?) 있는 규모의 대지와 건축물을 협소하다고 할 수 있을까? 다양한 매체에 쏟아지는 협소 주택들은 택지개발기준과 비교하면 상대적으로 작은 크기의 필지에 지어진 주택인 것은 분명하다. 하지만, 주차장을 설치해야 하는 주택규모(50제곱미터)를 초과하는 경우도 많고, 국민주택규모(85제곱미터)를 넘는 경우도 많아 보였다. 우리 건축계가 협소 주택의 개념을 정의하지 못한 것은 안타깝다. 그래서 법적인 용어가 아니더라도 협소 주택의 사회적 정의가 필요하다고 생각한다.


건축물의 용도기준은 1978년 10월 30일 건축법 시행령 제2조 제1항에 근거한 [부표] 시설로부터 시작된다. 모법인 건축법이 제정된 것이 1962년이었으니, 16년이나 지나서야 생긴 것이다. 게다가 자주 개편이 된다. 40여 년이 지난 지금까지 60번이 넘는 용도분류체계 개편이 있었다고 하니, 1년에 한 번 이상은 꼬박꼬박 변경이 있었던 셈이다. 이렇게 자주 변화하며 나름 사회의 변화에 대응하는 건축물의 용도지만, 건축법의 건축물 용도와 무관한 용어들도 많다. 타법에서 필요에 의해 만든 건축물의 구분이 그것이다.

‘지방세법’에서는 세율을 달리 구분하기 위해 ‘고급주택’을 정의하고 있다. 농지법에서는 농민이 농업을 하는데 필요한 시설로서 ‘농막’을 정의하고 있다. ‘펜션’은 법적으로 숙박시설이 아니다. 주택을 활용하는 ‘농어촌 민박사업 시설’은 ‘농어촌 정비법’과 ‘관광진흥법’에서 정의하고 있다. ‘휴양펜션업 시설’이라는 용어는 ‘제주특별자치도 설치 및 국제자유도시조성을 위한 특별법’에서 정의하고 있으니, 이 법에 따른 제주도의 ‘휴양펜션업 시설’에서 ‘펜션’이라는 이름을 사용할 수도 있겠다. 하지만, 농어촌민박업과 제주도의 휴양펜션업은 ‘공중위생관리법’에 따른 ‘숙박업’이 아니고, 건축법의 숙박시설도 아니다. 단독주택으로 구분된다. 이런 이유로 펜션이라는 용어는 ‘비숙박업’과 ‘숙박업’을 넘나들며 소비자에게 혼란을 주는 용어라고 생각하며, 소비자의 피해와 고소, 고발이 있으니 나쁜 용어라고 해도 지나치지 않겠다.
‘발코니 확장’은 우리 건축계가 반성하고 고쳐야 할 큰 문제 중 하나다. 법에서는 ‘발코니 등의 구조변경’으로 명시한 ‘발코니 확장’은 바닥면적에 산입되지 않는 ‘발코니’를 실내로 사용하는 것을 말한다. 문제는 바닥면적에서 제외하고, 취득세와 재산세를 내지 않는다는 점이다. 전 국민에게 적용되기 때문에 공평하다고 할 수 있겠지만, 부적절하고 정의롭지 못하다. 용어의 표현도 부적하다. 발코니 부분을 거실로 만들면서 거실이 확장되는 것이니 ‘거실 확장’이라고 하거나, 조사를 붙여 ‘발코니로 확장’이라고 해야 한다. 아니면, ‘발코니 삭제’ 또는 ‘발코니 전용’이라고 해야 하지 않을까? ‘발코니 확장’은 부정적 행위를 긍정적으로 인식하게 한 최악의 용어라고 할 수 있다.

'다가구, '다세대', ‘발코니 확장’처럼 잘못 사용되어 널리 퍼진 용어를 바로잡는 것은 무척 어려운 일이다. 그래서 새로운 개념을 만들거나 도입할 때 적절한 용어와 이름을 사용하는 인식이 필요하겠다. 부적절한 용어를 사용해서 후배들에게 부끄러운 선배가 될까 싶어 오늘도 조심스럽다.
글. 신민재 Shin, Minjae AnLstudio 에이앤엘스튜디오 건축사사무소

신민재 에이앤엘스튜디오 건축사사무소
한양대학교 건축공학부와 동대학원을 졸업하고, Artech과 JINA에서 실무를 했다. 2011년부터 AnLstudio 건축사사 무소를 공동으로 운영하며 전시기획에서 인테리어·건축·도 시계획까지 다양한 스케일의 작업을 하고 있다. 젊은건축가상(2016, 문화체육관광부), 경기도건축문화상 특별상(2017, POP하우스), 충남건축상 최우수상(2017, 서 산동문849), 대한민국목조건축대전 본상(2018, 양평시옷 (ㅅ)집), 서울시건축상(2019, 얇디얇은집), 한국리모델링건 축대전 특선(2020, 제이슨함갤러리) 등을 수상했다. 현재 한양대학교 겸임교수이자 서울시 공공건축가이다.
'아티클 | Article > 연재 | Series' 카테고리의 다른 글
| 북한건축 워치 10 북한의 건축교육 ② 2021.12 (0) | 2023.02.14 |
|---|---|
| 아카시아 대회 19(ACA 19) 및 제41차 이사회 대회 보고서 ① 2021.12 (0) | 2023.02.14 |
| 북한건축 워치 09북한의 건축교육 ① 2021.11 (0) | 2023.02.13 |
| 오징어 게임, 건축의 계급적 포지션 2021.11 (0) | 2023.02.13 |
| 용어@건축 10 단위 2021.10 (0) | 2023.02.10 |