2023. 2. 13. 09:23ㆍ회원작품 | Projects/House
RYU-E-JAE

한국인은 예로부터 가족 공동체에 ‘우리’라는 단어를 사용하다 보니 정작 ‘나’를 잃게 되었다. 우리라는 것은 사실 ‘나’들의 총합체일 뿐이다. ‘나’가 합해져서 ‘우리’가 되었는데, 가족이라는 이름을 앞세우다 보니 나의 존재는 경시해야 할듯한 착각을 불러일으킨다.
그러나 오히려 ‘우리’가 아니 ‘나’가 실선으로 그려져야 한다. 그것이 주체적인 삶의 모티브이다. 남의 눈에 맞추어 사는 것이 얼마나 힘들고 어려운가?
집을 지으면서 우리는 나의 버킷리스트, 나의 행복을 위해서라고 한다. 하지만 우리는 ‘나’를 위한 것이 아닌 ‘나를 보는 이들’을 위한 집을 지으려 할 때가 많다. 건축주에게 본인 스스로의 행복을 위한 집을 짓게 하기 위해 많은 대화를 나누었고, 이런 대화를 통해 점차 독립되고 주체적인 삶의 행복을 꿈꾸는 집이 그려지기 시작했다.
대지는 동네 끝자락, 자연과 접하는 위치에 있다. 즉 정원은 물론 울타리 바깥의 경관까지 아우를 수 있는, 안과 밖의 구분이 거의 없는 집을 지을 수 있는 위치에 있었다. 이를 위해 자연에 순응하는 배치기법을 도입하였다.
그러나 건축주는 한옥에서의 추위에 대한 아픈 추억 때문인지 범죄에 대한 두려움 때문인지 안과 밖을 명확히 구분하는 것을 원했고, 결국 외부 환경과 범죄로부터 우리를 지켜준다고 여겨왔던 그 구조물이 실은 우리가 평생 찾으려 애쓰던 것을 발견하지 못하게 가로막는 장애물이었음을 알게 되었다.
설계도면을 볼 때 건축주의 최대 관심사는 개구부에서 어떻게 자연을 볼 수 있을 지에 대한 것이었다. 자연에 대한 집착과 열정이 더 많이 표현될수록, 삶에서 자연에 대한 깊이 있는 사고를 하게 된다. 그러나 안과 밖의 경계를 허물고 싶은 욕망과 이를 가로막는 기후와 보안 문제라는 장애물 간의 갈등은 계속 이어졌다. 게다가 상호 간섭이라는 옆집과의 민원은 건축주가 방어적 자세로 전환하는 계기가 되었다.
주택 설계를 할 때마다 건축주에게 작은 의미에서 외부 공간, 크게는 공공 공간을 향하여 개방된 공간을 더 드러내자는 권유를 한다. 주택에서 이야기하는 개방된 공간과 개구부 건물은 그 누구도 아닌 나를 위한 것이다. 내가 바라보는 풍경과 내가 느끼는 장면을 풍요롭게 하기 위해서다. 막고 닫아서 소유하는 것은 진정한 나의 것이 아니다. 다른 사람의 것과 구분 짓기 위해서 만드는 허상이다.
류이재는 안과 밖의 경계가 사라지면서 서측과 북측의 자연을 수용할 수 있었다. 자연과 호흡하면서 진정으로 확 트인 삶을 창조할 수 있었다.
건축주의 내면세계에는 공간과 시간이 있다. 마음속으로 만들어낸 것이 아니라 진정한 자신을 찾아갈 수 있게 해주는 안과 밖이 열린 공간이 있다. 물론 무언가 보호받지 못하고 아직 안정되지 못했다는 느낌은 존재하였지만 그것은 아파트에서 살 때도 마찬가지였다. 오직 그렇게 생각만 하고 걱정할 뿐이다. 그러나 이는 자기 스스로 만든 벽일 뿐이다. 살면서 삶의 공간에서 놀라운 자연의 아름다움을 발견하게 되면 그 사실을 깨닫게 된다. 집에서 자기 삶을 온전하게 살아내기 시작하고 마침내 삶을 편안히 누릴 수 있게 되면, 모든 것을 새롭게 인지하게 되고 자연과 집을 사랑하게 되는 것이다.
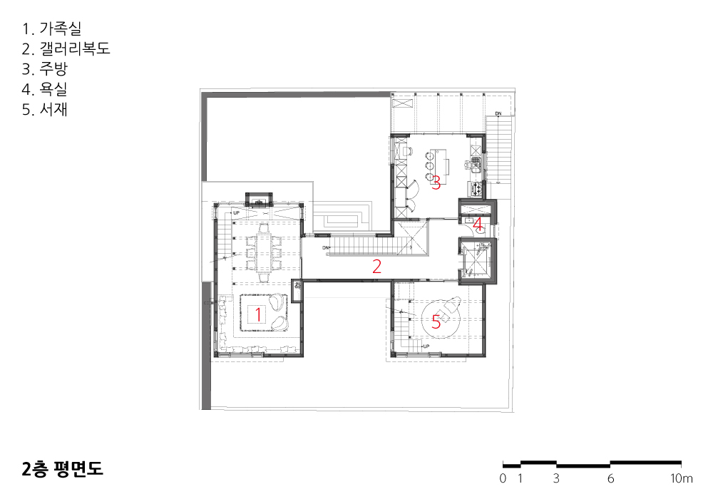
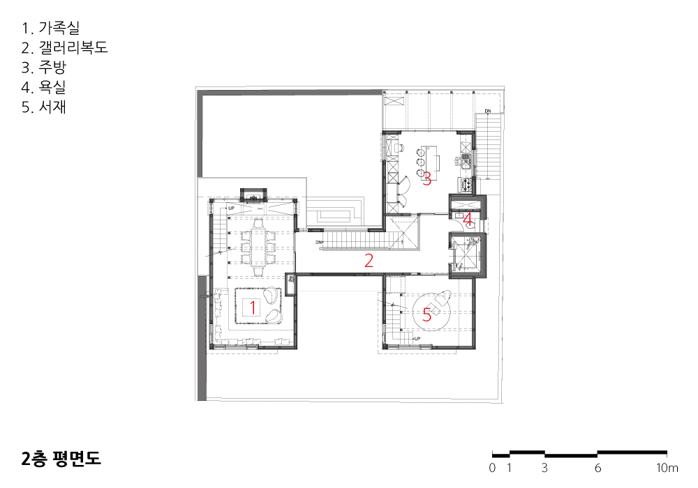
이 집을 설계할 때의 주요 사항은 첫째로 진입공간에 남편의 사랑방 같은 공간을 만드는 것이고, 두 번째는 거실과 주방공간을 분리하여 거실을 가족 모두가 즐기면서 대화에 집중할 수 있는 식사, 담화 공간으로 만드는 것이다. 주방은 철저히 아내의 공간이며, 남편은 보조자로서 대화의 상대가 되어 공간을 즐길 수 있게 만들었다. 아내가 자기만의 정숙한 사색을 즐길 수 있도록 주방 안에 책상도 만들었다.
부부도 결국 각자의 경험을 바탕으로 별도의 관점을 갖고 살아간다. 이 사실을 장년이 되어서야 알게 된다. 같은 문제를 두고도 생각하는 바가 다르기 때문에 각자의 독립된 공간이 필요하고, 때로는 서로 만나서 하나가 되는 공간 역시 필요하다. 각각의 독립성 없이는 가정 전체가 행복할 수 없기 때문이다.

Since ancient times, Koreans have used the word ‘we’ to the family community, so they have lost ‘me.’ In fact, we are just the total of ‘I.’ “I” is added to become “us,” as I put the name of family first, my existence creates the illusion that I should be downplaying it.
However, rather than this, ‘I’ not ‘we’ should be drawn in line. It is the motif of independent life. How difficult is it to live in the eyes of others?
We call the purpose of building a house is my bucket list and for my happiness. However, we often want to make the house for the people looking at me rather than for ‘me.’ To build a place where building owner can enjoy own happiness, we talked a lot and started to draw the house dreaming the joy of independence and personal life through such a talk.
The land is located at the edge of the neighborhood, in contact with nature. The garden can encompass even the scenery outside the fence and build the house with little distinction between inside and outside. To this end, an arrangement technique adapted to nature was introduced.
However, the building owner wanted to divide the inner and outer space due to unknown reasons because of painful memory about cold and the fear of crime. So finally, we are aware of the structure that is believed to protect us from the external environment, and crime is the obstacle that blocks what we try to search for life long.
In terms of design drawing, the building owner’s most significant interest is how to look at nature at the opening. The more obsession and passion with nature are expressed, the deeper you think about nature in your life. However, the conflicts between the desire to demolish the inner and outer boundary and obstacles that prevent climate and security have continued. Furthermore, the complaints from next door of mutual intervention turned the building owner’s attitude defensive.
Whenever I design a house, I recommend revealing the open space toward external space in a small meaning and public space on a big scale. The open space of the home and the opened building is for me rather than anyone. It is for enriching the scenery that I look at and the screen that I feel. Owning by blocking and closing is not my actual possession. It is an illusion to separate it from other’s possession.
Ryueeje can accommodate the western and northern nature as the boundary between inner and exterior space disappears. Thus, you can create a genuinely open life while breathing with nature.
There exist space and time in the inner world of the building owner. Open space inside and outside allows you to find your true self, not created in your mind. Of course, there was a feeling that something was unprotected and not yet stable, but it was the same when living in an apartment. You only think about it and worry about it.
However, it is only the wall that you made yourself. When you discover the beauty of fantastic nature in the space of life, you will realize it. If you start living your life to the fullest at home and finally enjoy life comfortably, you will recognize everything newly and love nature and the house.
The essential matters when designing this house are, first, about making the spaces such as husband’s reception room in the entrance, second, about making a living room the area for meal and conversation that can focus on the dialogue while all the family enjoys. The kitchen is thoroughly the wife’s space, and the husband becomes the dialogue partner as an assistant and allows to enjoy the area. The desk is created in the kitchen to enable the wife to enjoy her meditation.
Couples eventually live with a different perspective based on their own experiences. Unfortunately, they don’t know this fact until they become elderly.
Each person needs an independent space because they think differently about the same problem, and sometimes an area where they meet and become one is also required. This is because the whole family cannot be happy without each independence.







| 류이재 설계자 | 이광만_(주)간삼건축 종합건축사사무소 감리자 | (주)간삼건축 종합건축사사무소 시공사 | 우드이엔씨 설계팀 | 옥지혜 대지위치 | 서울특별시 강남구 자곡동 주요용도 | 단독주택 대지면적 | 317.00㎡ 건축면적 | 125.37㎡ 연면적 | 283.39㎡ 건폐율 | 39.55% 용적률 | 81.66% 규모 | 지상 3층 구조 | 철근콘크리트구조, 철골구조, 목구조 외부마감재 | 적삼목, 징크판넬 내부마감재 | 친환경페인트 설계기간 | 2012. 01 - 2012. 12 공사기간 | 2013. 03 - 2013. 12 사진 | 염승훈 구조분야 : 간삼구조 기계설비분야 : 노스타 전기분야 : 세진 |
RYU-E-JAE Architect | Lee, Kwangman_Gansam Architects & Partners Supervisor | Gansam Architects & Partners Construction | Wood E&C Project team | Ok, Jihye Location | Jagok-dong, Gangnam-gu, Seoul, Korea Program | Single Family House Site area | 317.00㎡ Building area | 125.37㎡ Gross floor area | 283.39㎡ Building to land ratio | 39.55% Floor area ratio | 81.66% Building scope | 3F Structure | RC, Steel structure, Timber Structure Exterior finishing | Red cedar wood, Zinc panel Interior finishing | Eco-friendly paint Design period | Jan. 2012 - Dec. 2012 Construction period | Mar. 2013 - Dec. 2013 Photograph | Yum Seunghun Structural engineer | Gansam Mechanical engineer | Northstar Electrical engineer | Sejin Electric engineering |
'회원작품 | Projects > House' 카테고리의 다른 글
| 내맘이당 2022.1 (0) | 2023.02.15 |
|---|---|
| 으뜸바우집 2022.1 (0) | 2023.02.15 |
| 청담동 주택 2021.11 (0) | 2023.02.13 |
| 성북동 주택 2021.11 (0) | 2023.02.13 |
| 송학리의 생각 2021.11 (0) | 2023.02.13 |
