2023. 2. 15. 09:16ㆍ회원작품 | Projects/House
Naemam-idang

어느 날 두 아이를 키우는 부부를 만났다. 그들의 이야기를 들으면서 자연스레 미소를 지었던 기억이 난다. 대학 때부터 렌터카에 몸을 맡기고 고생하며 유럽을 돌아다녔던 이야기, 결혼 후 11개월 동안 아이들을 데리고 세계여행을 떠났던 이야기, 남들이 고생스럽다고 힘들다고 말리는 일들이라도 하고 싶다면 도전하는 부부, 아직도 부모님께 “너희들은 언제 철들 것이냐”는 이야기를 듣고 산다는 젊은 부부였다. 두 아이의 부모가 된 지금도 만들어진 틀, 혹은 주어진 틀 속에서 살지 않고 자신들의 의지대로 삶을 살아보겠다는 철학이 돋보이며, 도전적이며 자기주도적인 삶을 살아갈 수 있는 아이로 키우겠다는 자녀에 대한 교육관도 확고해 보였다. 무언가 대단한 집을 설계하려고 하지는 않았다. 단지 그들의 삶을 약간은 닮은 집을 설계해 주고 싶었다.
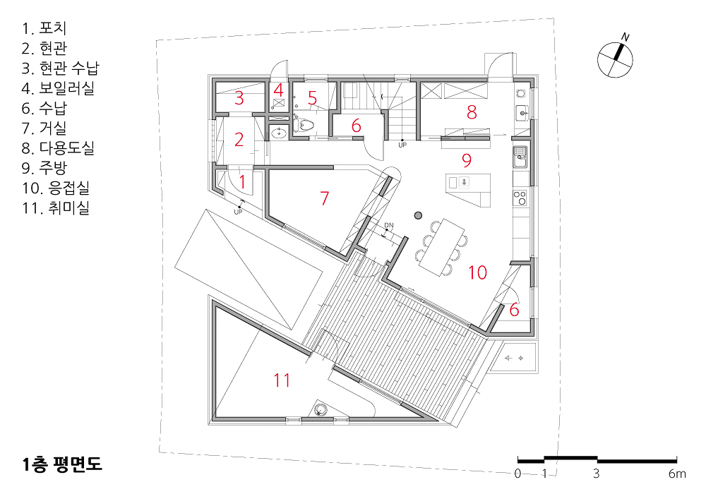
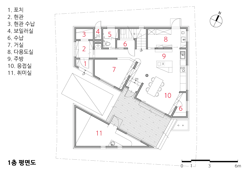
사각형을 사선으로 잘라내는 이미지를 생각했다. ‘기존의 틀을 자른다’라는 느낌을 매스에 그대로 표현하고 싶었다. 그로 인해 발생하는 사선 면으로 인해 집의 내부 또한 기존의 주택과는 사뭇 다른 형식으로 풀렸다. 주요실이 네모 반듯한 것이 하나도 없다. 강한 사선들로 이뤄졌지만 생활하는데 어려움은 없다. 기존의 틀을, 삶을, 가치관을, 세계관을 뛰어넘거나 벗어나도 아무런 무리가 없듯이… 이곳에서 자라나는 아이들은 틀에 익숙한 사람이 되지 않을 것임을 확신한다.
형태는 사각뿔을 사선으로 잘라서 별동을 약간 아래로 낮춘 것이다. 외장재는 지붕에서 외벽으로 같은 재료인 골강판을 사용하여 매스감을 강조하였고, 두 매스 사이의 절단면은 탄화목을 적용해 속살같이 따뜻하게 표현해 골강판과 대비가 될 수 있도록 했다. 경량목구조에서 거터와 선홈통을 숨기기 위해 스터드(STUD)를 2겹으로 구성하였다.
첫 계획안 미팅 시 건축주 분들이 너무나 자신들의 집 같다며 좋아했던 기억이 난다. 적어도 나에게 독특한 건축은 디자인과 설득력으로 구현되는 것이 아니라, 독특한 생각을 유발할 수 있는 건축주의 이야기와 그로 인해 디자인된 계획안을 수용해 줄 수 있는 가치에서 생겨나는 것 같다. 어느 날 웃으며 집 이름을 ‘내맘이당’이라고 하겠다고 한 건축주의 생각에 다시 웃음이 난다.

One day I met a couple with two children. I recall smiling to myself while reading their e-mails and stories. It is about a couple who met at the university and started travelling. It illustrates their difficulties while visiting Europe in a rented automobile. Following their marriage, they embarked on a round-the-world voyage while raising their growing brood. Oh, How they pushed themselves to explore new things! Even though facing these challenges seem reckless to some, they would still do what they want to do. So they were often told by their parents to grow up and be more mature. In traditional Korean standards, the lives they are living might be in a rash and overly fantastic. But personally, I think they are just living their lives instead of following the world's standards. That's why I designed a house suitable to their own lifestyle.
I thought of an image in which a rectangle is divided diagonally. I wanted to express the feeling of 'cutting out a different frame' from the existing mass. Due to the resulting oblique form, the interior of the house was also designed in a form different form that of an exiting house. None of the main rooms are square. Although it is made up of strong diagonal lines, there are no obstacles with its living spaces. In fact, just as there is nothing wrong with going beyond or escaping from the existing framework, such as, life, values and world-view, I am certain that the children growing up here will not become familiar with the mold.
The shape is that the annex is slightly lowered by cutting a square pyramid diagonally. For the exterior material, the same material, corrugated steel plate, was used from the roof to the exterior wall to emphasize the sense of mass, and carbonized wood was applied to the cut contrasted with the corrugated steel plates. In a lightweight wooden structure, the stud is composed of two layers to hide the gutters and the pipes.
At the initial design proposal, I remember that owners like it because it felt like their home. At least for me, unique architecture is not realized through design and persuasiveness, but rather comes from the story of the owner that can provoke a unique thought and the value that can accommodate the designed plan.
Now I'm smiling at the thought of the owner who quipped that the name of the house would be ‘Because I can(naemam-idang)’.









| 내맘이당 설계자 | 박현근 _ 건축사사무소 재귀당 건축주 | 이상민, 김근영 감리자 | 박현근 _ 건축사사무소 재귀당 시공사 | 브랜드하우징 설계팀 | 강인환, 조현진 대지위치 | 경기도 용인시 기흥구 주요용도 | 단독주택 대지면적 | 246.00㎡ 건축면적 | 104.92㎡ 연면적 | 190.83㎡ 건폐율 | 42.65% 용적률 | 77.52% 규모 | 지상 2층 구조 | 매트기초, 경량 목구조 외부마감재 | THK 0.7 골강판, THK12 탄화목 내부마감재 | 벽지, 멀바우 목재, 강마루 설계기간 | 2020. 03 – 2020. 09 공사기간 | 2020. 10 – 2021. 05 사진 | 노경 구조분야 : sm구조 기계설비분야 : 세원 엔지니어링 전기분야 : 세원 엔지니어링 소방분야 : 세원 엔지니어링 |
Naemam-idang Architect | Park, Hyungeun _ JAEGUIDANG ARCHITECTS Client | Lee, Sangmin / Kim, Geunyoung Supervisor | Park, Hyungeun _ JAEGUIDANG ARCHITECTS Construction | Brand housing Project team | Kang, Inhwan / Cho, Hyunjin Location | Giheung-gu, Yongin-si, Gyeonggi-do, Korea Program | House Site area | 246.00㎡ Building area | 104.92㎡ Gross floor area | 190.83㎡ Building to land ratio | 42.65% Floor area ratio | 77.52% Building scope | 2F Structure | Light Weight Wood Frame construction Exterior finishing | Corrugated steel sheet, Lunawood Interior finishing | Wallpaper, Merbau, Wood floor Design period | Mar. 2020 – Sep. 2020 Construction period | Oct. 2020 – May 2021 Photograph | Noh, Gyeong Structural engineer | SM structure Mechanical engineer | Sewon engineering Electrical engineer | Sewon engineering Fire engineer | Sewon engineering |
'회원작품 | Projects > House' 카테고리의 다른 글
| 커브 하우스 2022.1 (0) | 2023.02.15 |
|---|---|
| 레시오빌딩 트리폴리 2022.1 (0) | 2023.02.15 |
| 으뜸바우집 2022.1 (0) | 2023.02.15 |
| 류이재 2021.11 (0) | 2023.02.13 |
| 청담동 주택 2021.11 (0) | 2023.02.13 |
