2023. 2. 16. 09:15ㆍ회원작품 | Projects/Commercial
The May Hotel

프롤로그
전국 최초로 낙후된 공업지역의 새로운 시작으로서 계획된 이 프로젝트는, 관광호텔이지만 공연·전시·이벤트 비즈니스를 위한 복합 문화공간을 조성하여 인근 팔복예술공장과 함께 지역사회에 활력을 부여하고자 하였다.
공장지대에 위치한 만큼 전반적으로 화려하지 않되 최대한 중후하면서도 우아하고 세련된 이미지를 만들고자 했으며, 매스를 통해 오래된 고성의 성곽 같은 느낌으로 표현되었다.
배치계획
행사 때마다 주차가 문제가 되어 주차공간을 최대한 확보하였다. 진·출입구를 분리하여 동선이 혼잡하지 않게 배치하였다. 본 건물 주위에 조경을 많이 확보하여 친환경 계획이 되도록 구성하였다.
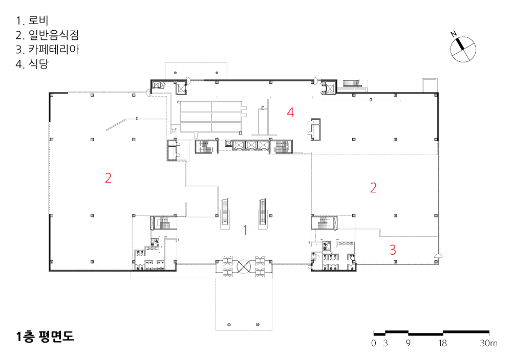
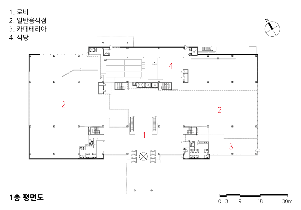
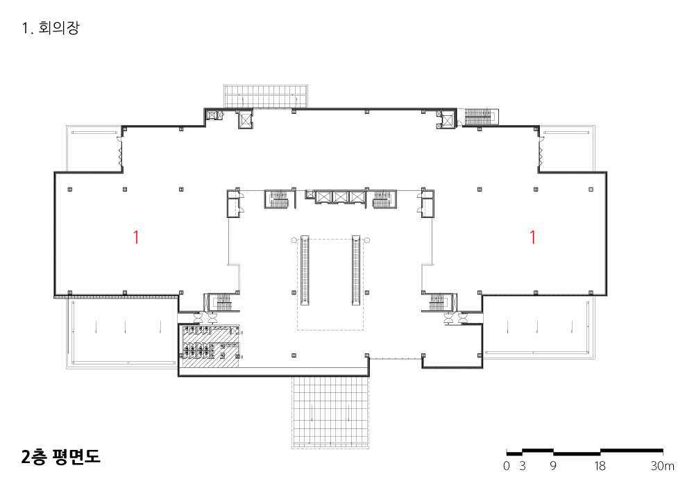
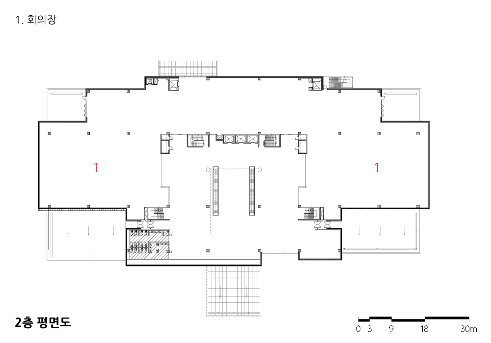
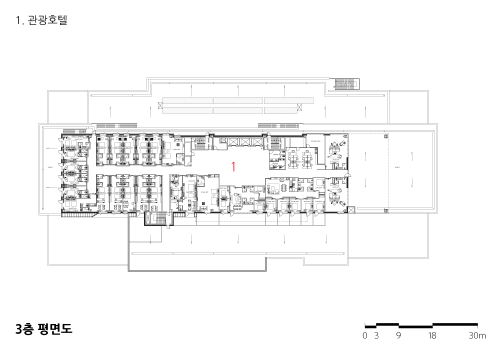
평면계획
1층 오픈공간을 확보해 1, 2층 로비를 공유하였으며, 1층에는 레스토랑, 2층에는 컨벤션센터를 계획하고 1층의 레스토랑은 사용 인원에 따라 가변 칸막이를 구성·활용하였다. 내부의 전시장은 외부공간을 확장하여 사용 가능하고, 독립적으로도 사용 가능하다. 3, 4층은 객실로 계획하였으며, 이벤트 정원과 옥상 풀장을 계획하였다. 모든 층에서 내부와 외부가 교류되고 소통할 수 있도록 계획하였다.

Prologue
This project, which was planned as a new beginning for the nation's first underdeveloped industrial area, aimed to revitalize the local community together with the nearby Factory of Contemporary Arts in Palbok by creating a complex cultural space for performance, exhibition, and event businesses, although it is a tourist hotel.
It stands in an industrial area. So, therefore, we designed to create a stately, elegant, and sophisticated image as much as possible, not luxurious as a whole, and it was expressed like an old castle through the mass.
Layout Plan
We secured as many parking spaces as possible because there is always a problem with parking at each event. The entrance and the exit are separated to prevent movement flow congestion. We also considered a lot of landscaping around the main building as part of an eco-friendly plan.
Floor Plan
We designed to share the lobbies on the first and second floors by securing an open space on the first floor and having a restaurant on the first floor and a convention center on the second floor. In the restaurant on the first floor, adjustable partitions were made and utilized according to the number of users. The indoor exhibition hall can expand to the outdoor space, and it can also be used independently. Guest rooms are on the 3rd and 4th floors, in addition to an event garden and a rooftop pool. It was designed for the inside and the outside to exchange and communicate on all floors.









| 더 메이 호텔 설계자 | 김희순_(주)율그룹 건축사사무소 건축주 | 앤아이씨 주식회사 감리자 | 건축사사무소 모던건축 시공사 | (유)원탑종합건설 인테리어 | 유트랙플랜 설계팀 | 최범민, 김진배, 김다래 대지위치 | 전라북도 전주시 덕진구 기린대로 800 주요용도 | 숙박시설(관광호텔) 대지면적 | 37,159㎡ 건축면적 | 5,171㎡ 연면적 | 11,976㎡ 건폐율 | 13.91% 용적률 | 30.29% 규모 | 지하 1층, 지상 4층 구조 | 철골철근콘크리트구조(SRC조) 외부마감재 | 사비석 내부마감재 | 대리석, 우드 사이딩, 인조대리석 설계기간 | 2018. 07 - 2019. 05 공사기간 | 2019. 07 - 2020. 09 사진 | (주)율그룹 건축사사무소 전문기술협력 - 구조분야 : (주)JNK안전진단연구원 - 기계설비분야 : 유니슨이엔지 - 전기분야 : (유)유진엔지니어링 |
The May Hotel Architect | _ Kim, Heesoon _ YUL ARCHITECTS & PLANNERS Client | NIC Corporation Supervisor | Modern Architect's Office Interior | U Track Plan Construction | Onetop General Construction Project team | Choi Beom min, Kim Jin Bae, Kim Da Rae Location | 800 Giraffe-daero, Deokjin-gu, Jeonju-si, Jeollabuk-do, Korea Program | Accommodation / Convention center Site area | 37,159㎡ Building area | 5,171㎡ Gross floor area | 11,976㎡ Building to land ratio | 13.91% Floor area ratio | 30.29% Building scope | B1F - 4F Structure | Steel steel concrete structure / RC Exterior finishing | Wasabi Stone Interior finishing | Marble, Wood Siding, Artificial Marble Design period | Jul. 2018 - May 2019 Construction period | Jul. 2019 - Sep. 2020 Photograph | YUL ARCHITECTS & PLANNERS Structural engineer | JNK Safety Diagnosis Research Institute Mechanical engineer | Unison ENG Electrical engineer | Yujin Engineering |

'회원작품 | Projects > Commercial' 카테고리의 다른 글
| 파라스파라 서울 2022.6 (0) | 2023.02.20 |
|---|---|
| ACT 관광호텔 2023.2 (0) | 2023.02.17 |
| 타이드어웨이 2022.1 (0) | 2023.02.15 |
| 골프존카운티 청통 GC 클럽하우스 2021.11 (0) | 2023.02.13 |
| 호텔 소울하다 2021.11 (0) | 2023.02.13 |