2023. 2. 20. 09:25ㆍ회원작품 | Projects/Commercial
PARASPARA Seoul

북한산 자락에 위치한 파라스파라 서울 리조트는 골조가 완성된 상태에서 2012년 공사가 중단된 후 7년간 방치되어 흉물로 남아있었다. 2019년에 재 착공하여 오래전 설계된 건축물을 현재도 사용할 수 있도록 기존의 구조를 건드리지 않고 평면을 완성하여 새롭게 만드는데 노력을 기울였다. 
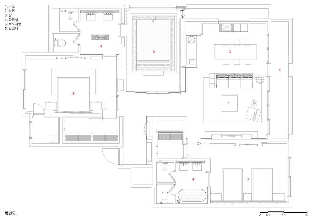
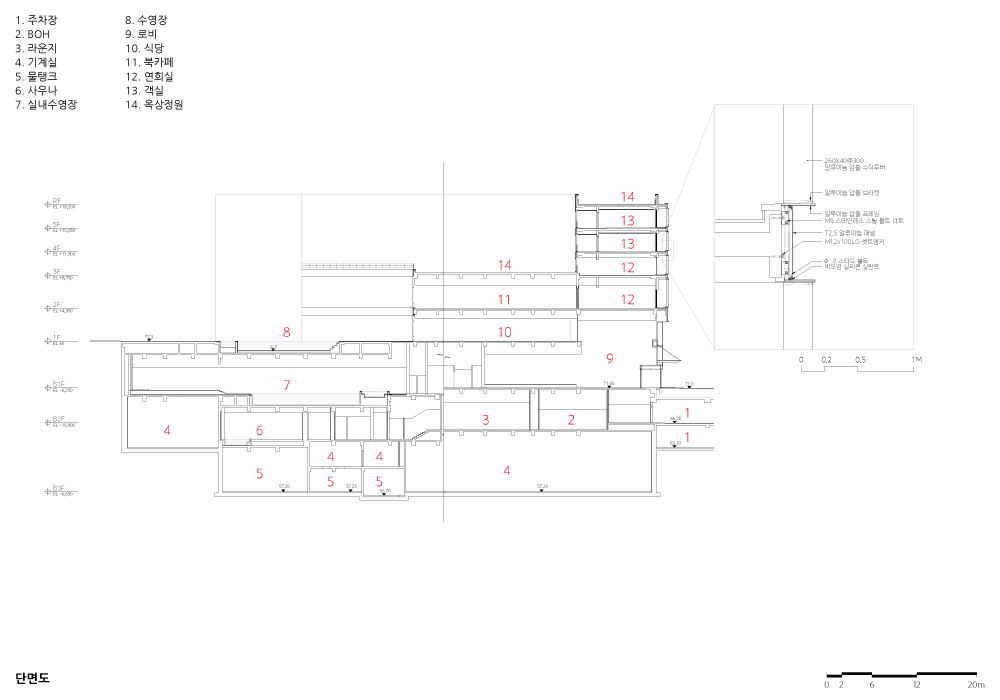
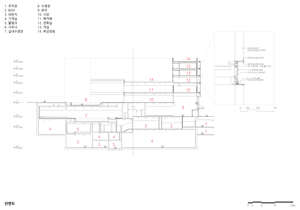
대지면적 약 80,000제곱미터, 연면적 약 99,800제곱미터에 지하 3층, 지상 7층 규모로 숙박시설 14개 동, 문화 및 집회시설 1개 동, 총 15개 동으로 구성되어 있다. 객실은 334실(방수: 698개)로 사우나, 실내외 수영장, 옥상정원, 레스토랑, 연회장, 산악박물관 등 다양한 부대시설을 갖추고 있다.  
이미 시공되어 있는 구조체와 면적은 가급적 변경하지 않는 조건에서 계획을 시작하였고, 많은 제약조건 속에서도 가장 효율적인 건물을 만들기 위해 노력하였다. 자연 경관을 회복시키기 위해 북한산 경관을 가리는 전면의 2개동은 2개 층씩 낮추고 시옷(ㅅ)자 모양의 박공 지붕을 모두 철거해 건물 높이를 2미터 정도 내렸다.  
리조트 내부에서는 북한산 인수봉, 백운봉, 만경대의 풍경이 한눈에 들어온다. 자연 친화적인 인테리어 디자인을 추구했으며, 친환경적 마감재를 사용한 객실은 고객들에게는 편안한 휴식과 잊지 못할 추억의 장소를 만든다. 특히 110실의 객실은 회원 모집 없이 일반 주민에게도 개방하여 누구나 숙박료를 내고 이용할 수 있도록 하였다. 사계절 변화하는 아름다운 북한산 뷰를 바라보는 레스토랑은 도심 속에서 자연 풍광을 즐기고 휴식할 수 있는 파라스파라 서울 리조트의 콘셉트를 반영한다. 

PARASPARA Seoul Resort, situated at the foot of Mt. Bukhan, was left unattended as a horrid thing for seven years after the construction was stopped in 2012 when the framework was complete. As the construction started again in 2019, we tried to create a new plane without touching the existing structure so that the building designed a long time ago can be used today. 
It has a site area of about 80,000㎡ and a total floor area of about 99,800㎡ with three stories below and seven above ground, consisting of 14 lodging facilities, one cultural and meeting facility, and 15 buildings. In addition, there are 334 guest rooms (rooms: 698), equipped with various auxiliary facilities, including a sauna, indoor and outdoor swimming pools, a rooftop garden, a restaurant, a banquet hall, and a mountain museum. 
We started planning on the condition that the existing structures and areas remained the same as much as possible, and we tried to make the most efficient building despite many limitations. For example, to restore the natural landscape, we lowered two floors of the two front buildings, which are blocking the landscape of Mt. Bukhan. And all the siot(ㅅ)-shaped gabled roofs were removed to reduce the building height by about 2m. 
From the inside of the resort, you can see Insubong Peak, Baegunbong Peak, and Mangyongdae in Mt. Bukhan at a glance. We pursued an eco-friendly interior design, and the guest rooms finished with eco-friendly materials become a place for guests to have comfortable relaxation and make unforgettable memories. In particular, 110 guest rooms are opened to the public without membership, so anyone can use them by paying a lodging fee. The restaurant overlooking the beautiful view of Mt. Bukhan with all four-season changes reflects the concept of PARASPARA Seoul Resort, where you can enjoy the natural scenery and relax in the city.














|  파라스파라 서울 설계자 | 김기한_ (주)정림건축종합건축사사무소 공동설계 | 민성진(미국건축사) _ SKM Architects 건축주 | (주)정상북한산리조트 감리자 | (주)정림건축종합건축사사무소 시공사 | (주)삼정기업 설계팀 | 정림건축종합건축사사무소 _ 김영훈, 권순찬, 구본억, 이예찬 SKM Architects _ 한현수, 류현수, 김승욱, 오종무 설계의도 구현 | (주)정림건축종합건축사사무소 + SKM Architects 대지위치 | 서울특별시 강북구 우이동 346 주요용도 | 숙박시설(휴양콘도미니엄) 대지면적 | 80,146.40㎡ 건축면적 | 14,909.16㎡ 연면적 | 99,829.45㎡ 건폐율 | 18.60% 용적률 | 78.99% 규모 | 지하 3층 - 지상 7층 구조 | 철근콘크리트구조 외부마감재 | 화강석(블랑코머핀), 현무암혼드 내부마감재 | 석재(MOCA CREAM), 목재(OAK) 설계기간 | 2018. 08 – 2019. 11 공사기간 | 2019. 11 – 2021. 07 사진 | 김현수, 심기섭(드론촬영) 전문기술협력 - 구조분야 : (주)아이스트테크 - 기계설비분야 : (주)정도설비 - 전기분야 : (주)진전기엔지니어링 - 소방분야 : 한방유비스(주)  | 
PARASPARA Seoul Architect | Kim, Kihan_JUNGLIM Architecture CO., LTD. Collaborative design | Ken Sungjin Min(AIA) _ SKM Architects Client | Mt. Bukhan Resort at the summit Supervisor | JUNGLIM Architecture CO., LTD. Construction | Samjung Corporation Project team | JUNGLIM Architecture CO., LTD. Kim, Younghun / Kwon, Sunchan / Koo, Boneuk / Lee, Yeachan SKM Architects Han, Hyunsoo / Ryu, Hyunsoo / Kim, Seungwook / Oh, Jongmu Design intention realization | JUNGLIM Architecture CO., LTD. + SKM Architects Location | 346, Ui-dong, Gangbuk-gu, Seoul, Korea Program | Accommodation(condominium) Site area | 80,146.40㎡ Building area | 14,909.16㎡ Gross floor area | 99,829.45㎡ Building to land ratio | 18.60% Floor area ratio | 78.99% Building scope | B3F - 7F Structure | RC Exterior finishing | Granite stone Interior finishing | Stone(MOCA CREAM), Wood(OAK) Design period | August, 2018 – November, 2019 Construction period | November, 2019 – July, 2021 Photograph | Kim, Hyunsoo / Sim, kisub(Dron) Structural engineer | I’st Tech Mechanical engineer | Jungdo Electrical engineer | jin electric engineering Fire engineer | Korea Fire Protection UBIS  | 

'회원작품 | Projects > Commercial' 카테고리의 다른 글
| 핀오크 백암 2022.9 (0) | 2023.02.23 | 
|---|---|
| 굿올데이즈 2022.9 (0) | 2023.02.23 | 
| ACT 관광호텔 2023.2 (0) | 2023.02.17 | 
| 더 메이 호텔 2022.2 (0) | 2023.02.16 | 
| 타이드어웨이 2022.1 (0) | 2023.02.15 |