2023. 2. 23. 09:22ㆍ회원작품 | Projects/Commercial
Pinoak Baegam

핀오크 백암은 용인 근교에 위치한, 문화와 자연이 함께하는 상업 공간이다.
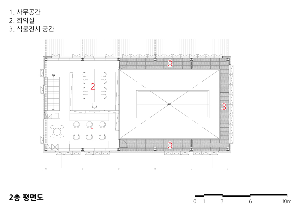
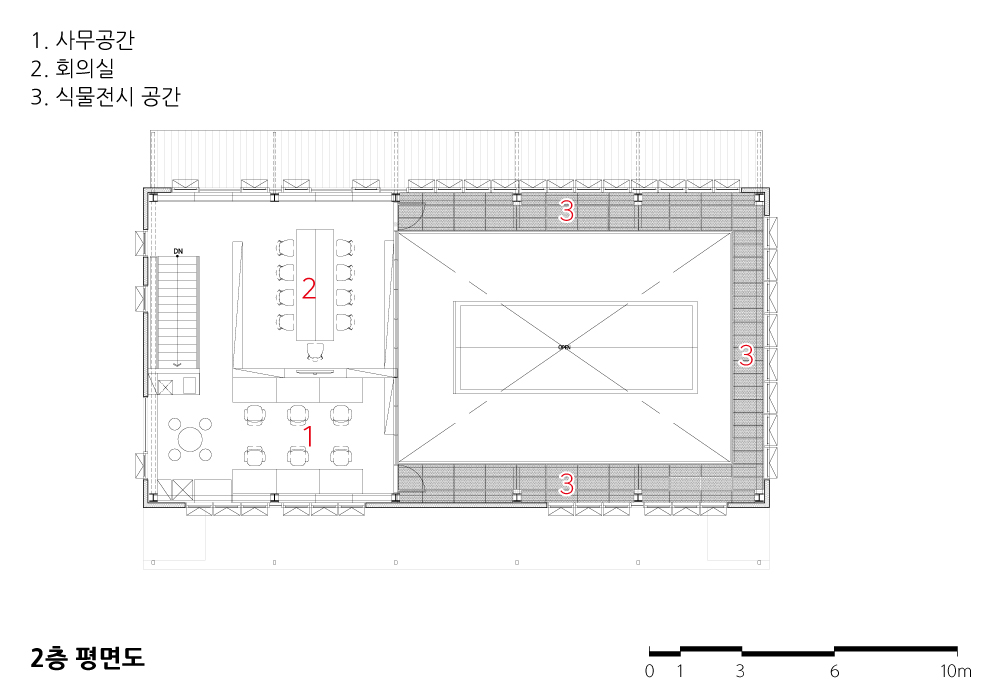
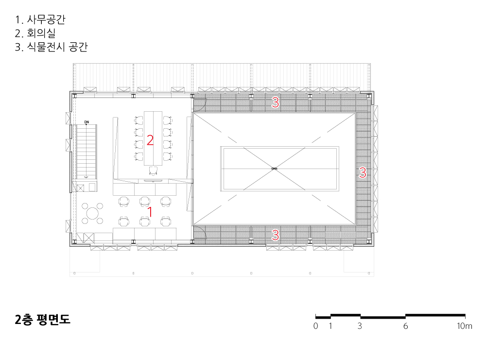
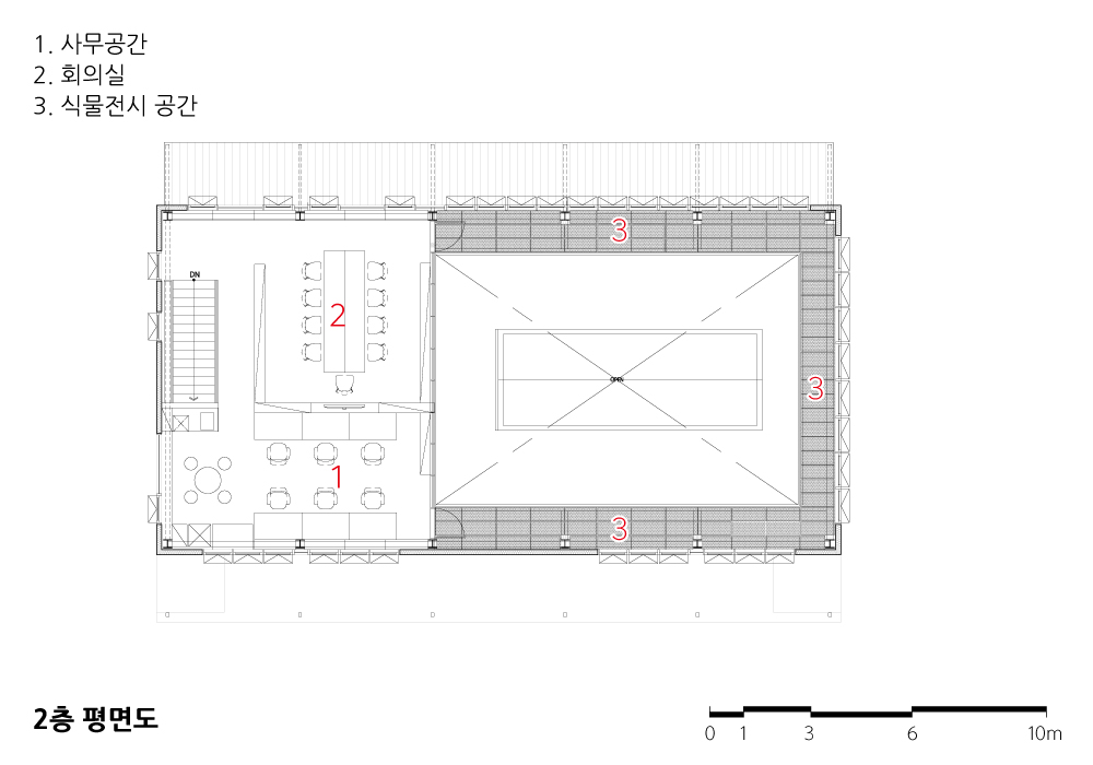
약 8600제곱미터(2,600평) 규모의 대지에 세 개의 동이 자리 잡고 있다. 단지 진입부에 위치한 온 더 테이블은 다양한 F&B로 구성된 식문화 중심의 상업공간이고, 정원생활바이오랑쥬리는 체험 또는 교육, 판매가 이루어지는 실내 외 가드닝 공간이다. 시간 정원은 일러스트레이터 작가 세 명의 전시공간과 작업실을 기반으로 한 카페 및 렌털 스튜디오이다.
핀오크 백암은 대지를 둘러싸고 있는 자연과 건물, 건물 사이의 정원을 매개로 한다. 주변 자연과 대지에 조성되는 계획된 자연과의 관계, 자연과 건물의 관계 맺는 방식에 대한 고민의 결과이다.
거대한 매스가 자연과 관계 맺는 방식은 건물이 자연을 담는 배경으로서의 역할을 할 수 있도록 재료를 최소화하고 균질화하였다. 자연을 투영할 수 있는 반사 값이 있는 금속 패널은 시시각각 변하는 자연의 빛과 그림자를 담아내는 스크린 역할을 한다.

Pinoak Baegam is a commercial space near Yongin, where culture and nature coexist.
Three buildings are located on a site of about 8,600 square meters (2,600 pyeong). On The Table, situated in the complex's entrance, is a commercial space centered on the food culture of various F&Bs. Gardening Studio, Orangery is an indoor and outdoor gardening space where experiences, education, and sales take place. Finally, the Time Garden is a cafe and rental studio based on the exhibition space and studio for three illustrators.
Pinoak Baegam uses its surrounding nature, buildings, and the garden between the buildings as a medium. It is the result of consideration on how to build the relationship between the surrounding nature and the planned nature to be created on the site and the relationship between personality and buildings.
The way the vast mass relates to nature minimizes and homogenizes the materials so that the building can serve as a background to capture nature. A metal panel with reflection values that can project nature acts as a screen that captures nature's ever-changing light and shadow.








| 핀오크 백암 설계자 | 김미희 · 고석홍_소수 건축사사무소 감리자 | 건축사사무소 잇다 시공사 | 푸르미르(주) 설계팀 | 박효택, 홍진영 대지위치 | 경기도 용인시 처인구 백암면 주요용도 | 근린생활시설 대지면적 | 온더테이블(A) _ 4,222㎡ / 정원생활바이오랑쥬리(B) _ 2,027㎡ / 시간정원(C) _ 2,381㎡ 건축면적 | A _ 704.47㎡ / B _ 275.69㎡ / C _ 386.34㎡ 연면적 | A _ 1,504.01㎡ / B _ 396.24㎡ / C _ 386.34㎡ 건폐율 | A _ 16.69% / B _ 13.60% / C _ 16.23% 용적률 | A _ 35.62% / B _ 19.55% / C _ 16.23% 규모 | 2F 구조 | 철골구조 외부마감재 | 갈바륨 패널 내부마감재 | 바닥 _ 콘크리트 폴리싱 위 표면강화제 / 벽·천장 _ 샌드위치 패널 위 지정 도장 설계기간 | 2019. 12 – 2020. 06 공사기간 | 2020. 06 – 2021. 01 사진 | 노경 전문기술협력 - 구조분야 : 한길구조엔지니어링 - 기계설비분야 : 건창기술단 - 전기분야 : 엘림전설 - 소방분야 : 엘림전설 |
Pinoak Baegam Architect | Kim, Mihee · Go, Seokhong_SOSU Architects Supervisor | SOSU ARCHITECTS Construction | Purmir Co., Ltd Project team | Park, Hyotaek / Hong, Jinyeong Location | Baegam-myeon, Cheoin-gu, Yongin-si, Gyeonggi-do, Korea Program | Commercial facility Site area | On the table(A) _ 4,222㎡ / Garden life by Orangery(B) _ 2,027㎡ / the time garden(C) _ 2,381㎡ Building area | A _ 704.47㎡ / B _ 275.69㎡ / C _ 386.34㎡ Gross floor area | A _ 1,504.01㎡ / B _ 396.24㎡ / C _ 386.34㎡ Building to land ratio | A _ 16.69% / B _ 13.60% / C _ 16.23% Floor area ratio | A _ 35.62% / B _ 19.55% / C _ 16.23% Building scope | 2F Structure | Steel structure Exterior finishing | Galvalume iron panel Interior finishing | Floor _ Surface hardener on concrete polishing / Wall·ceiling _ Designated painting on sandwich panel Design period | Dec. 2019 – Jun. 2020 Construction period | Jun. 2020 – Jan. 2021 Photograph | Roh, Gyeong Structural engineer | Hangil Structural Engineering Mechanical engineer | Kunchang Engineering Electrical engineer | Ellim Engineering Fire engineer | Ellim Engineering |

'회원작품 | Projects > Commercial' 카테고리의 다른 글
| 천안 오토아레나 2023.5 (0) | 2023.05.19 |
|---|---|
| 이월서가 2023.4 (0) | 2023.04.20 |
| 굿올데이즈 2022.9 (0) | 2023.02.23 |
| 파라스파라 서울 2022.6 (0) | 2023.02.20 |
| ACT 관광호텔 2023.2 (0) | 2023.02.17 |