2023. 4. 20. 15:12ㆍ회원작품 | Projects/Commercial
Ewolseoga




자연과 교감하는 건축, 자연 속의 서점
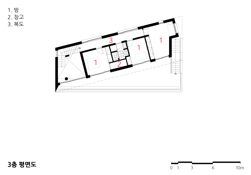
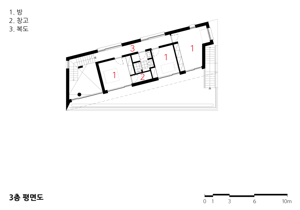
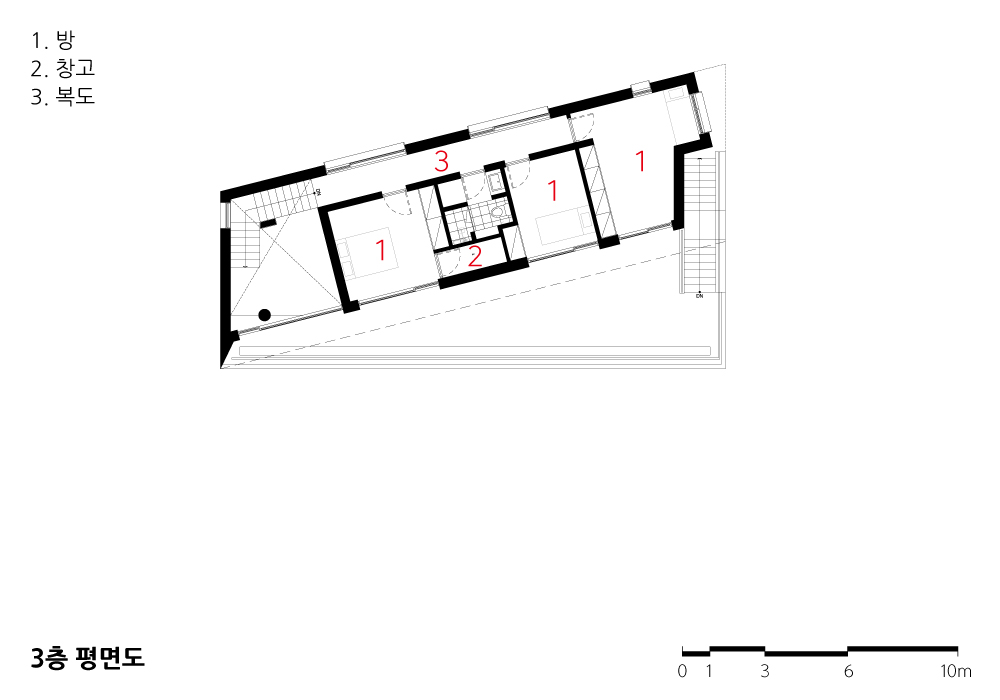
자연은 살아있기에 그 흐름이 있다. 산과 물이 흐르고, 빛과 바람이 흘러 땅의 흐름을 만들어낸다. 이월서가는 산 정상에서 내려오는 ‘지그재그’ 모양의 자연의 흐름을 그대로 시각화한 형태로 외부에서 내부로 연속되는 방문객의 동선, 시선의 움직임을 따라 각각 다른 풍경을 마주하도록 설계되었다.
하얀 벽의 질감은 아침부터 저녁까지 시시각각 변화하는 빛을 느끼게 해주고, 건물의 구조를 그대로 드러내며 열어 놓은 빈 공간들은 사계절의 변화를 담는 프레임으로 기능한다.
안성에서 진천으로 넘어가는 길목에 위치한 대지는 산 정상 위에 인위적으로 만들어 놓은 듯한 평평한 논이 있었고, 도로와 7~8미터의 높이차가 있었던 곳이다. 대지에서의 경관은 남쪽 전면으로 이름 모를 산들의 절경이 펼쳐져 있다. 도로와 대지의 높이차를 극복하면서, 자연에 순응하는 건물을 어떻게 정착시킬 것인가라는 질문에서부터 이 프로젝트는 시작되었다.
평지에 비해 불리한 조건이었던 대지, 높이차에 대한 해결책으로 2층으로 진입하는 주출입 동선, 그리고 축을 달리하는 각층 매스의 조합을 떠올렸다.
처음부터 비경을 보여주기보다는 무심코 들어갔을 때 반전처럼 펼쳐지는 드라마틱한 풍경을 느낄 수 있도록 진입부, 배면부의 형태는 최대한 단순화하고 창은 최소화하였다. 테라스와 내·외부를 넘나드는 계단을 따라 오르내리다 보면 우리 몸은 어느새 건물의 매스를 따라 자연스럽게 반응하게 되고 서로 다른 풍경을 끌어안고 있음을 느끼게 된다.
한때 시인이었던 건축주는 자연 속에 서점을 만들고 싶어 했다. 도심에서나 볼 수 있었던 동네 서점을 산속에 두는 상상을 늘 해왔다. 혼자 보기 아까운 비경을 기꺼이 사람들에게 나눠주고 누구나 와서 쉬다 가는, 오감으로 책을 만나고 경험하는 ‘서가’를 꿈꿨다.
건축주의 바람대로 울창한 숲과 드넓은 잔디가 뿜어내는 깨끗한 산소는 코로나와 미세먼지, 각종 유해 물질에 시달렸던 몸과 마음을 정화시켜 주며 일상과 업무에서 받았던 스트레스를 잠시나마 내려놓게 해줄 것이다.
이월서가는 지극히 사적인 주거공간과 서점이라는 상업공간의 결합으로 이뤄진, 우리에게 다가올 뉴노멀 시대의 새로운 대안공간, 포스트코로나 시대에 마주하게 될 새로운 주거유형의 모습을 보여준다.



A bookshop in nature, the architecture communing with nature
Nature has flow since it is alive. Mountains and waters flow and light and wind flow, and they create the flow of the earth. The flow of nature zigzagging from the top of a mountain was visualized at Ewolseoga, which was designed to face different landscapes according to visitors’ traffic lines connected from the outside to the inside and the movements of their eye lines.
The texture of its white wall allows visitors to feel light constantly changing from morning till night, and open empty spaces revealing the structure of the building function as a frame in which changes of four seasons are put.
The site located at a corner passed from Anseong to Jincheon used to be flat rice paddies created artificially on the top of the mountain and have a height difference of 7-8m from the road. The site overlooks the magnificent scenery of unknown mountains spreading towards the south. This project started with the question of how to establish a building that adapts itself to nature, overcoming the difference in height between the road and the site.
As a solution to the height difference of the site, which is a disadvantageous condition compared with flatlands, the main traffic line entering the second floor and the combination of masses on every floor varying in axes were thought out.
Rather than showing marvelous view from the first, the shape of the rear area was simplified to the utmost, and windows were minimized so that dramatic scenes spreading like reverse might be felt when a visitor entered casually.
When we go up and down the stairs between the terrace and the inside and the outside, our bodies come to react naturally to the masses of the building and are found to embrace different scenes.
The architecture owner, who was once a poet, wished to create a bookshop in nature. He always imagined having a bookshop, which was usually found in downtown, in a mountain. He dreamed of sharing beautiful scenery with people and ‘bookshelves’ where everyone visits, takes a rest, and meets and experiences books with their five senses.
In keeping with the architecture owner’s wish, clean oxygen generated from the thick forest and the extensive lawn will purify the body and the mind having suffered from COVID-19, atmospheric particulate matter, and various harmful substances, and relieve visitors from their daily stress for a moment.
Ewolseoga, which consists of very private residential space and commercial space, shows a new alternative space in the new normal era that will soon be upon us, and a new type of residence that we will face in the post-COVID 19 period.



| 이월서가 설계자 | 정승복 _ 리트머스 건축사사무소 공동설계 | 김주민(프랑스 건축사) _ 가톨릭관동대학교 건축학과 조교수 건축주 | 이상휘, 이윤희 감리자 | 정승복 _ 리트머스 건축사사무소 시공사 | (주)일우개발 설계팀 | 임차경, 최재혁, 박진원, 최소연 대지위치 | 충청북도 진천군 이월면 진안로 583-6 주요용도 | 단독주택, 소매점(서점) 대지면적 | 999.00㎡ 건축면적 | 199.69㎡ 연면적 | 334.68㎡ 건폐율 | 19.98% 용적률 | 33.50% 규모 | 3F 구조 | 철근콘크리트구조 외부마감재 | Sto 외단열시스템 내부마감재 | 강마루, 수성페인트, 포셰린타일 설계기간 | 2019. 03 - 2019. 10 공사기간 | 2020. 04 - 2020. 10 사진 | 김용관 구조 | CK구조엔지니어링 기계설비 | 대도엔지니어링 전기 | 대도엔지니어링 소방 | 대도엔지니어링 |
Ewolseoga Architect | JEONG, Seungbok _ RE:TMUS ARCHITECTS Collaborative design | KIM Joomin _ Prof. Catholic kwandong Univ Client | LEE, Sanghwi / LEE, yoonhee Supervisor | JEONG Seungbok _ RE:TMUS ARCHITECTS Construction | Ilwoo Construction Co.Ltd Project team | Lim, chakyung / Choi, jaehyuk / Park, jinwon / Choi, soyeon Location | 583-6, Jinan-ro, Iwol-myeon, Jincheon-gun, Chungcheongbuk-do, Korea Program | House / Bookstore Site area | 999.00㎡ Building area | 199.69㎡ Gross floor area | 334.68㎡ Building to land ratio | 19.98% Floor area ratio | 33.50% Building scope | 3F Structure | RC Exterior finishing | Sto Lotusan Interior finishing | Porcelain tile, Laminated wood floor, Water-based paint finish Design period | 2019. 03 - 2019. 10 Construction period | 2020. 04 - 2020. 10 Photograph | KIM yongkwan Structural engineer | CK Structural Engineering Mechanical engineer | Daedo Engineering Electrical engineer | Daedo Engineering Fire engineer | Daedo Engineering |
'회원작품 | Projects > Commercial' 카테고리의 다른 글
| Four Points by Sheraton 수원 2023.9 (0) | 2023.09.14 |
|---|---|
| 천안 오토아레나 2023.5 (0) | 2023.05.19 |
| 핀오크 백암 2022.9 (0) | 2023.02.23 |
| 굿올데이즈 2022.9 (0) | 2023.02.23 |
| 파라스파라 서울 2022.6 (0) | 2023.02.20 |
