2023. 2. 17. 18:02ㆍ회원작품 | Projects/Commercial
ACT Tourist Hotel

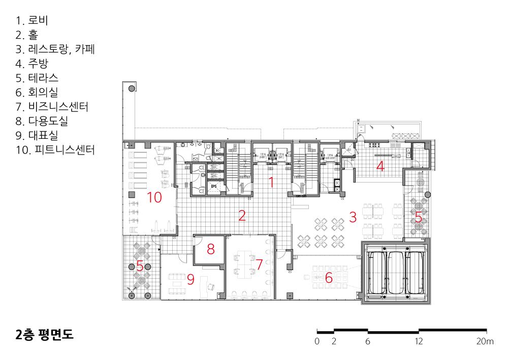
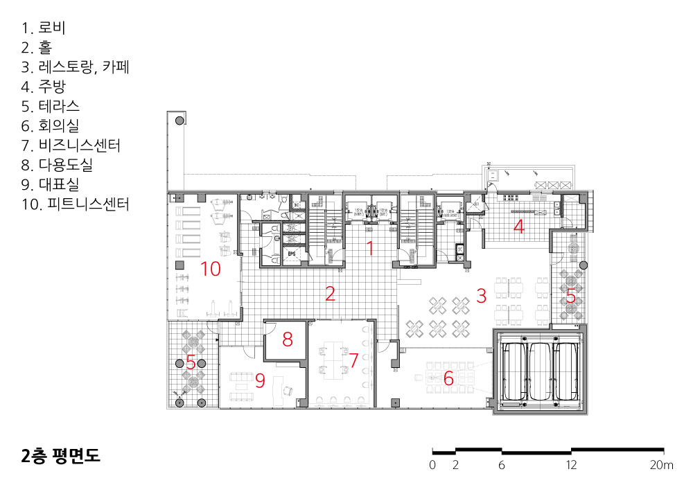
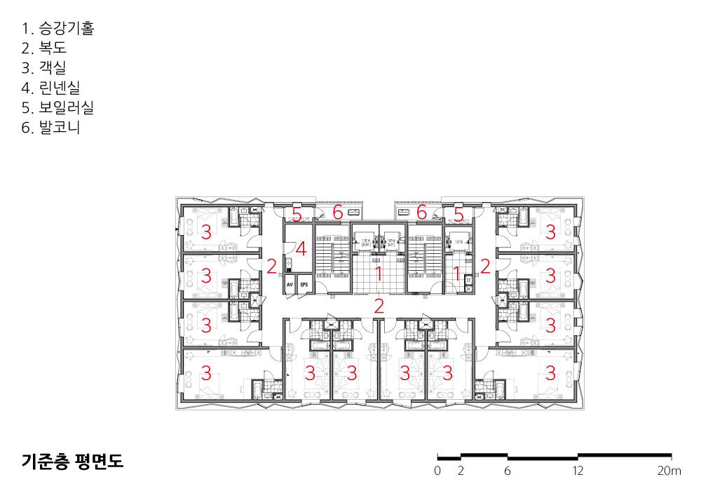
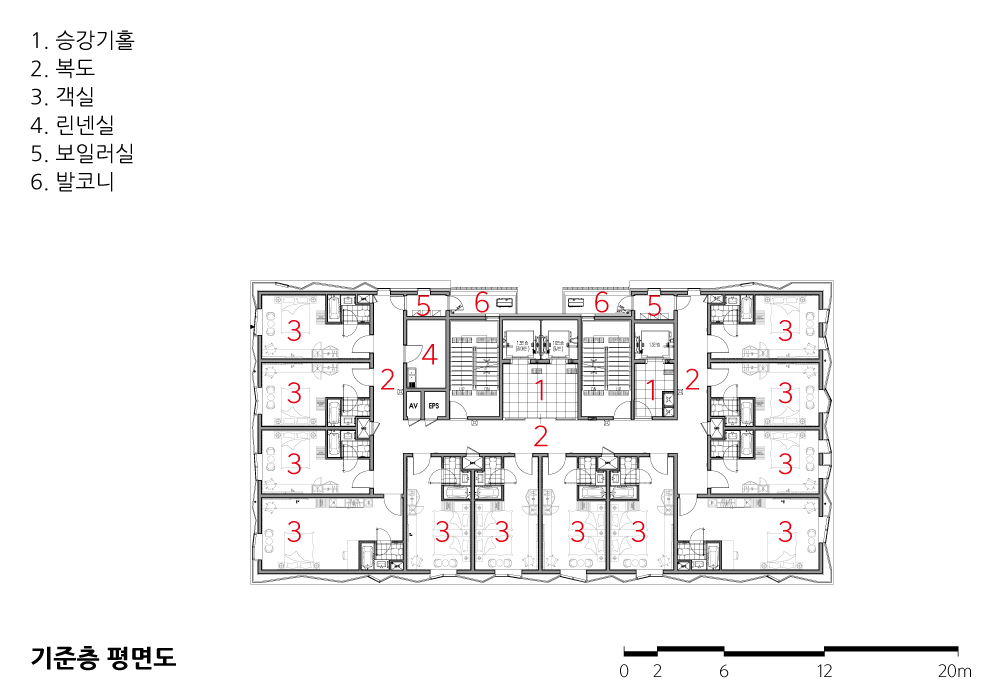
‘ACT 관광호텔’은 수성IC 입구에 위치한 지상 10층 지하 2층 규모의 관광호텔이다. 흔히 호텔은 지극히 평범한 상업시설로 여기기도 하지만, 간혹 디자인이 뛰어난 호텔은 그 도시를 방문하는 사람들에게 깊은 인상을 주기도 한다. 예를 들면, 두바이를 찾은 사람들은 범선 모양의 버즈 알 아랍 호텔을 기억하며, 싱가포르의 마리나베이 샌즈호텔 옥상 수영장에서 찍은 사진을 자랑한다. 이 프로젝트를 시작할 때, 비록 규모는 작지만 대구의 관문 중 하나인 수성IC 바로 앞이라는 ‘위치’로 인해, 어떤 건축 디자인을 만들어야 좋은 이미지를 줄 수 있을지 많은 고민을 했다. 고민 끝에 ‘한국적 디자인 요소’를 생각했다. 한국 전통 가옥에서 바깥주인이 거처하며 취미를 즐기거나 손님을 맞이하는 곳으로서 ‘사랑방’이 있다. 시대의 변화에 따라 개념은 바뀌었지만, 생각해 보면 호텔도 사랑방과 같은 곳이지 않을까? 사랑방 안의 모습을 그려보면, 단아한 실내 마감과 함께 방의 주인이 보았을 책들이 문갑에 차곡차곡 뉘어져 보관돼 있고, 화가가 그렸을 산수화 병풍이 사랑방의 한 벽면을 차지하고 있었을 것 같다. 이 건물의 디자인 콘셉트는 ‘사랑방’의 모습에서 출발했다.
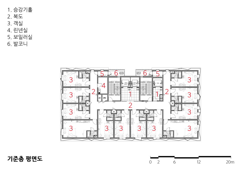
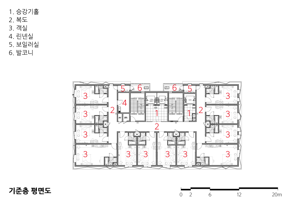
객실이 위치한 층들의 외관은 마치 책이 단정하게 포개져 쌓여있는 모습을 기본 콘셉트로 하였다. 사랑방 문갑에 단정히 뉘어져 있는 책을 표현하기 위해 층과 층의 경계부에 마치 책 표지처럼 구분되는 수평 루버를 층별로 달았다. 그리고 병풍이 둘러져 있는 모습을 외벽에 표현했다. 층과 층 사이의 외벽은 마치 병풍이 서 있는 것처럼 표현하기 위해 다양한 각도를 유지한 외벽판넬을 부착하였다. 사용된 외벽재료는 세라믹 박판인데, 상하로 이음매가 없이 한 장의 단일 판으로 한 층을 지지하는 모습으로 디자인했다. 판이 세워진 각도가 각각 달라, 외벽에 비추어지는 빛의 각도와 시간에 따라 각각의 판넬들이 다양한 색상으로 변화한다. 때문에 건물을 보는 사람이 바라보는 위치와 시간에 따라 외벽의 색상이 달리 보이게 되는 효과가 창출되었다. 또한, 이 건물의 1~2층은 호텔 로비와 식당 비즈니스센터 등의 공적 공간이다. 공적인 공간의 특성을 표현하기 위해 내부를 개방하는 느낌의 유리 소재와 커튼월로 된 외장재를 사용하였다. 최상층에는 호텔 방문객들이 성암산의 산세와 멀리 팔공산의 경치를 보면서 시간을 보낼 수 있는 라운지 공간이 마련되어 있는데, 사랑방에 온 손님들이 열린 창문 밖으로 보이는 경치를 바라보며 담소를 즐기는 모습을 콘셉트로 디자인하였다. 본 ACT 관광호텔이 모든 사용자에게 ‘다시 방문하고 싶은 좋은 공간’으로, 아울러 외부의 형태가 의미 있는 아름다움으로 인상 깊이 남기를 기대해 본다.

Located at the Suseong IC, ‘ACT Hotel’ is a tourist hotel with 10 floors above ground and 2 floors below ground. Normally, hotels are regarded as very ordinary commercial facilities, but sometimes hotels with excellent design leave a deep impression on visitors to the city. For example, the visitors to Dubai remember Burj Al Arab Hotel that looks like the sail of a ship, and the visitors to Singapore show off their photos taken from the rooftop pool at the Marina Bay Sands Hotel. When starting this project, we thought a lot about what kind of architectural design should be made to give a good image due to its location right in front of Suseong IC, one of the gateways to Daegu, although the scale is small. Eventually, we could consider 'Korea's unique design elements'. In a traditional Korean house, there is 'Sarangbang' where the owner enjoys hobbies or welcomes guests while living in. The concept has changed with the changing times, but if you think about it, wouldn't a hotel be like 'Sarangbang'? If you think of Sarangbang, there would be the elegant interior finish, the books the owner have seen would be stacked neatly on the shelves, and a folding screen of a painter’s landscape would take up some space of Sarangbang. The design concept of this building started from Sarangbang’.
The exterior of the floors where the guest rooms are located was based on the concept of neatly stacked books. In order to express the neatly stacked books on the shelves of Sarangbang, horizontal louvers that are distinguished like book covers are attached to each floor at the boundary between floors. And the appearance of folding screens was expressed on the outer wall. For the outer wall between the floors, outer wall panels at various angles were attached to express as if a folding screen were standing. As the outer wall material, a thin ceramic plate was used to support one floor with a single-piece sheet without any seams at the top and the bottom. The angles at which the panels are erected are different, so panels change in a variety of colors depending on the angle and time of the light shining on the outer wall. Therefore, the outer wall color looks different depending on the location and time of the person viewing the building. In addition, the first and second floors of this building are shared spaces, including a hotel lobby, a restaurant and a business center. Glass and curtain wall exterior materials were used to make it look like opening the interior, in order to express the characteristics of the shared spaces. On the top floor, there is a lounge space where hotel visitors can spend time watching the scenery of Mt. Seongam and Mt. Palgong in the distance. We hope that ACT Hotel will give a deep impression to all users as ‘the place where they want to visit again’, as well as the meaningful beauty of the exterior.








| ACT 관광호텔 설계자 | 유영재 _ 신한남 건축사사무소 건축주 | 주식회사 알파개발 감리자 | 유영재 _ 신한남 건축사사무소 시공사 | 거한건설(주) 설계팀 | 이홍엽, 김한비 대지위치 | 대구광역시 수성구 알파시티 1로 32길 28-17 주요용도 | 숙박시설(관광숙박시설) 대지면적 | 1,118.70㎡ 건축면적 | 727.74㎡ 연면적 | 6,872.84㎡ 건폐율 | 65.05% 용적률 | 444.65% 규모 | B2F - 10F 구조 | 철근콘크리트구조 외부마감재 | 세라믹박판, 복층유리, 테라코타, 알루미늄시트 내부마감재 | 대리석, 롱브릭타일, 포세린타일, 방염벽지, 카펫 설계기간 | 2019. 07 - 2020. 02 공사기간 | 2020. 05 - 2021. 12 사진 | 윤동규 구조분야 : (주)제원E&C 기계설비분야 : 서진설비설계사무소 전기분야 : (주)기성E&C 소방분야 : (주)기성E&C |
ACT Tourist Hotel Architect | You, Youngjae _ SHINHANNAM ARCHITECTS&ENGINEERS Client | ALPHA Development Co., Ltd Supervisor | You, Youngjae _ SHINHANNAM ARCHITECTS&ENGINEERS Construction | KUHAN CONSTRUCTION COMPANY Project team | Lee, Hongyoub / Kim, Hanbi Location | 28-17, Alphacity 1ro 32gil, Suseong-gu, Daegu, Korea Program | Tourist hotel Site area | 1,118.70㎡ Building area | 727.74㎡ Gross floor area | 6,872.84㎡ Building to land ratio | 65.05% Floor area ratio | 444.65% Building scope | B2F - 10F Structure | RC Exterior finishing | Ceramics sheet panel , Pair glass, Terracotta, Aluminum sheet Interior finishing | Marble, Long brick tiles, Porcelain tiles, Fire Retardant Wall-covering, Carpet Design period | 2019. 07 - 2020. 02 Construction period | 2020. 05 - 2021. 12 Photograph | Yoon, Donggyu Structural engineer | JEWON Engineering & Construction Mechanical engineer | SUJIN Equipment design Office Electrical engineer | KISEONG E&C Fire engineer | KISEONG E&C |
'회원작품 | Projects > Commercial' 카테고리의 다른 글
| 굿올데이즈 2022.9 (0) | 2023.02.23 |
|---|---|
| 파라스파라 서울 2022.6 (0) | 2023.02.20 |
| 더 메이 호텔 2022.2 (0) | 2023.02.16 |
| 타이드어웨이 2022.1 (0) | 2023.02.15 |
| 골프존카운티 청통 GC 클럽하우스 2021.11 (0) | 2023.02.13 |
