2023. 2. 18. 09:15ㆍ회원작품 | Projects/House
Three hyun house

세현담은 세 아이들의 이름에 공통으로 ‘현’자가 들어가서 자연스럽게 붙은 이름이었다. 건축주 부부는 아이들에게 마음껏 뛰어놀 수 있는 마당이 있는 집을 선물해 주기를 원했다.
건축주가 원하는 집에 대한 요구사항은 몇 가지 안 되었지만 명확했다. 외부에 위치하지만 때에 따라 비를 피하는 작은 마당이 될 수 있는 주차장, 주방과 외부를 연결하는 썬룸 공간, 아이들을 위한 다락과 아이 셋이 물놀이를 할 수 있을 만큼 넓은 욕실 공간 등을 요구했다.
대지면적이 넓지 않았고 건폐율도 넉넉하지 않았다. 주차공간을 위해 스플릿플로어를 선택한 건 어쩌면 자연스러웠다. 필로티 하부에 위치한 주차장은 집에서 제일 낮은 곳에 위치하지만, 이 집을 맞이하는 처음 공간이 되었다. 이 공간에서 이야기는 시작된다. 주차를 하고 현관으로 들어서면 계단 몇 개를 올라 거실로 이어진다. 거실과 주방은 병렬로 배치하였으며, 주방과 마당 사이에 실내 공간이면서 실외공간인 썬룸을 계획하였다.
거실에 앉아서 바라보면 왼쪽으로는 마당이 펼쳐져 있고 정면으로는 주방이 보인다. 주방에는 다른 집에서는 큰 공간을 차지하고 있는 다용도실을 분리수거를 위한 아주 작은 공간만 남겨 놓은 채 과감하게 제외하였다. 낮은 건폐율을 극복하기 위해 넉넉지 않은 1층 면적에 최대한의 공간을 확보하기 위한 작은 아이디어였지만, 우리가 어쩌면 다용도실이라는 장소에 너무 많은 공간을 할애하고 있는지도 모른다는 생각을 하게 해 준 큰 계기가 되었던 것 같다.
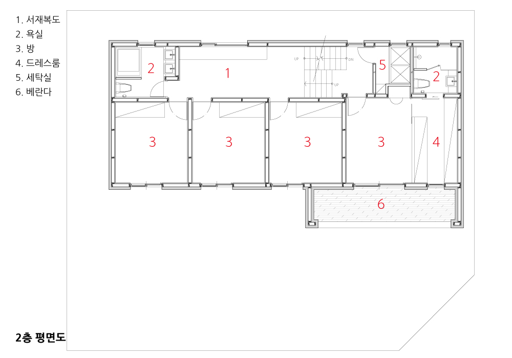
1층에서 또다시 반 층을 올라가면 세탁실과 부부를 위한 공간인 안방이 나온다. 안방은 주차장 상부에 위치하여 안으로는 최소한의 침실 공간과 드레스룸, 욕실을, 바깥으로는 작은 테라스를 갖게 되었다. 작은 집이지만 최대한 필요한 요소들을 포함하였다. 또한 층을 반 층씩 나누면서 남는 자투리 공간에 세탁실과 창고 같은 공간들을 배치하여 공간의 쓰임새를 최대한으로 하려고 노력하였다. 안방에서 또다시 몇 개의 계단을 올라가면 아이들을 위한 공간이 나온다. 서재이면서 복도인 공간을 따라 걸어가면 아이들 방이 세 개 있고, 복도의 끝에는 아이들을 위한 넓은 욕조를 가진 화장실이 나타난다. 서재이자 복도는 북측에 높고 긴 창을 배치하여 답답하지 않도록 계획하였고, 이 공간에서 아이들은 책을 읽고 피아노도 치면서 시간을 보낼 수 있다. 아이들의 공간인 2층에서 반 층을 내려가면 엄마 아빠가 있는 안방이 나오고 반 층을 올라가면 아이들의 놀이공간인 다락이 나온다. 이 집의 제일 높은 곳에 위치한 다락은 멀티 공간으로 계획하여, 현재는 아이들의 놀이공간이지만 아이들이 크면 부부의 서재가 될 예정으로 따뜻한 햇살이 들어오는 창이 있는 건축주 부부가 탐내고 있는 공간이다.
기본적으로 패시브 하우스에 들어가는 기밀도가 높은 창호, 열회수 환기장치, 최소한의 열교 등의 기술이 접목되어 있는 주택으로 아이들을 위한 공간과 안전이 우선된 집이다. 아이들의 이름을 딴 이 집에서 아이들은 부부의 바람대로 꿈을 키우고 건강하게 자라게 될 것이다.

Sehyundam is a name naturally created from ‘Hyun’ commonly shared in the name of 3 children. The building owner couple wants to present children with a house with a yard where they can play freely.
The requirements desired by the building owner are not many but clear.
The parking lot is located externally but sometimes can be a small yard that can avoid the rain.
Sunroom space connecting the kitchen and external space, the attic for children, and the vast bathroom space where three children can swim.
The site area is not large, and the building-to-land ratio is insufficient. Therefore, selecting a split floor for parking space may be natural. The parking lot located in the lower part of the piloti is situated in the lowest place in the house but becomes the first space greeting this house. The story starts from this space. After parking, you go up a few stairs to the living room when entering the entrance. The living room and the kitchen are placed parallel, and planned the sunroom, both internal and external space, is between the kitchen and the yard.
Seating at the kitchen and looking outside, the yard spreads to the left, and the kitchen is shown at the front. The utility room, which takes up vast space in other houses, was excluded from the kitchen, just remaining a tiny space for waste sorting. It was a small idea that could secure the maximum space in the insufficient area of the 1st floor to overcome the building-to-land ratio, but it seems to be the momentum that allows us to think we have shared too much space for the utility room. Then, going up half-stair from the first floor, the laundry room, and the main room, an area for couple appear.
The main room is located in the upper part of the parking lot and has the minimum bedroom space, a dressing room and a bathroom, and a small terrace outside. Even if it is a small house, the necessary elements as much as possible are included. In addition, I tried to maximize the usage of space by placing the laundry room and the warehouse in the spare area remained after dividing the floor into half the floor. Going up several stairs from the main room, the space for children appears.
Walking along the corridor which is the study simultaneously, three rooms for children appear, and the bathroom with a wide bathtub for children appears.
The corridor which is the study simultaneously is placed with a high and long window in the north, preventing from feeling stuffy, and children can read the book and play the piano to spend their time in this space. Going down half-floor from the second floor, a space for children, the main room for mom and daddy appears, and going up half-floor, the attic, a play space for children.
The attic located in the highest place in this house is planned as a multi-purpose space, and it is now the play space for children but will be used as a couple’s study when children are grown up, and is a space coveted by a couple of owners with a window that lets in warm sunlight. It is a house with high airtight windows, heat recovery ventilation, and minimal thermal exchange used in a passive house. The space and safety of children are given priority. In this house named after children, children will grow up healthy and dream according to the couple’s wishes.








| 세현담 설계자 | 김대영 _ 인우 건축사사무소 건축주 | 이준호 감리자 | 김대영 _ 인우 건축사사무소 시공사 | 플랜트리 인테리어 | 오은주 _ 유노디자인 설계팀 | 김민영, 노현주 대지위치 | 전라남도 나주시 한빛로 168-61 주요용도 | 단독주택 대지면적 | 297.50㎡ 건축면적 | 119.52㎡ 연면적 | 170.38㎡ 건폐율 | 40.17% 용적률 | 57.27% 규모 | 2층 구조 | 경량목구조 외부마감재 | 세라스킨 내부마감재 | 페인트 및 벽지, 타일 설계기간 | 2019. 01 – 2019. 08 공사기간 | 2019. 10 - 2020. 03 사진 | 김성희 전문기술협력 - 기계설비분야 : (주)하늘천 - 전기분야 : (주)하늘천 - 소방분야 : (주)하늘천 |
Three hyun house Architect | Kim, Daeyeong _ INWOO Architecs Client | Lee, Junho Supervisor | Kim, Daeyeong _ INWOO Architecs Construction | PLANTREE Project team | Kim, Minyoung / No, Hyunju Location | 168-61, Hanbit-ro, Naju-si, Jeollanam-do, Korea Program | House Site area | 297.50㎡ Building area | 119.52㎡ Gross floor area | 170.38㎡ Building to land ratio | 40.17% Floor area ratio | 57.27% Building scope | 2F Structure | Wood Structure Exterior finishing | Ceraskin Interior finishing | Paint, Wallpaper, Tile Design period | Jan. 2019 - Aug. 2019 Construction period | Oct. 2019 - Mar. 2020 Photograph | Kim, Sunghee Mechanical engineer | Estar Co., Ltd. Electrical engineer | Estar Co., Ltd. Fire engineer | Estar Co., Ltd. |

'회원작품 | Projects > House' 카테고리의 다른 글
| 욜로.192 2022.4 (0) | 2023.02.18 |
|---|---|
| 김천 동그란집 2022.4 (0) | 2023.02.18 |
| 마당을 품은 집 _ 정회당(庭懷堂) 2022.4 (0) | 2023.02.18 |
| 사월애가 2022.4 (0) | 2023.02.18 |
| 고연옥 2023.2 (0) | 2023.02.17 |