2023. 2. 23. 09:21ㆍ회원작품 | Projects/Neighborhood Facility
Un-Joong Dong Commercial Buliding

아름다운 자연을 보며 인간은 누구나 즐거움을 느낀다
공원과 인접한 위치한 운중동 근린생활시설의 구상은 자연의 아름다움을 즐기고 싶다는 생각으로부터 시작되었다. 여러 대안을 만들고 건축주와 소통하는 과정에서 ‘자연’이라는 키워드가 지속적으로 논의되었고, ‘자연스러운’ 단순한 공간으로 설계가 이루어졌다. 건물을 구축하는 과정은 항상 건축주, 시공자와 설계자가 끊임없는 대화를 통해 하나의 일관된 목표를 이루어가는 과정이며 설계에 참여한 팀원들의 아이디어가 많았던 프로젝트로 기억된다.
직선이 가장 짧고 효율적이다
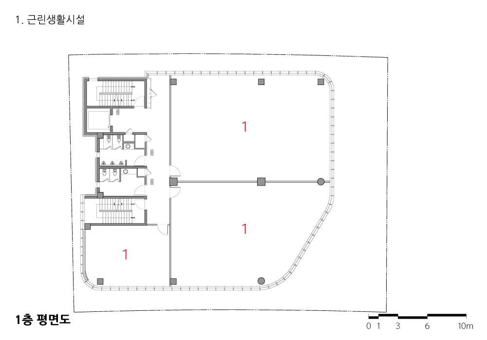
그러나 반대로 생각하면 직선을 사용할 때 내부에서 외부를 바라보는 전망의 길이가 짧아진다. 모퉁이를 열고 이어진 창에 곡선과 사선을 적용한다면 내부에서 바라보는 시선의 폭이 늘어나고 이에 따라 자연의 아름다움을 느낄 기회가 더 많아질 것이라는 생각에 그러한 시도를 하였으며, 외부에서 보이는 길이가 길어짐에 따라 건물의 인지도가 높아진 점은 부가적인 효과였다.
문제 해결을 위한 아이디어들
디자인 과정에서 곡면의 이어짐을 자연스럽게 만들기 위해 직선으로 나누어진 유리창에 유선형 수직 루버를 적용하였으며, 시공자의 노력으로 주변을 자연스레 담아내는 반사율이 낮은 유리를 사용할 수 있었다. 또한 차량이 원활하게 회전할 수 있도록 회전 구간의 폭을 확장하여 긍정적인 효과를 얻었으나, 수평구간과 경사로가 만나는 구간에서 발생하는 바닥 긁힘의 문제는 다음 프로젝트의 과제로 남게 되었다.

Seeing beautiful nature, all men feel happy
The concept of a neighborhood facility in Unjung-dong, located adjacent to the park, began with the idea of enjoying the beauty of nature. In creating various alternatives and communicating with the client, the keyword ‘nature’ was continuously discussed, and it was designed as a ‘natural’ and simple space. Constructing a building is a process in which a client, a constructor, and a designer achieve one consistent goal through constant communication. It is remembered as a project with many ideas from the team members who participated in the design.
The straight line is the shortest and most efficient
But on the contrary, the length of the view looking outside from the inside is shortened when you use a straight line. We made such an attempt, thinking that if curves and diagonal lines were applied to the windows connected at the corners opened, the width of the view from the inside would be increased, and there would be more opportunities to feel the beauty of nature. The increase in awareness was an added effect. The increased recognition of the building as the length seen from the outside increased was an additional effect.
Ideas for solving problems
In the design process, a streamlined vertical louver was applied to the glass window divided into straight lines so that curves could be naturally connected. The constructor's efforts made it possible to use low-reflective glass that naturally captures the surroundings. In addition, a positive effect was obtained by extending the width of the turning section so that the vehicle could rotate smoothly. Still, the problem of floor scratches occurring at the intersection between the horizontal area and the ramp remains a task for the next project.









| 운중동 근린생활시설 설계자 | 정창호_(주)에코건축사사무소 건축주 | 아람이엔테크(주) 감리자 | (주)에코건축사사무소 시공사 | (주)쿤스트종합건설 설계팀 | 이정희, 도영훈, 임준혁 대지위치 | 경기도 성남시 분당구 산운로208번길 23 주요용도 | 근린생활시설 대지면적 | 850.50㎡ 건축면적 | 508.21㎡ 연면적 | 3,225.39㎡ 건폐율 | 59.75% 용적률 | 238.93% 규모 | B2F - 4F 구조 | 철근콘크리트구조 외부마감재 | 커튼월, 알루미늄 패널 내부마감재 | 친환경 수성 페인트, 석재 설계기간 | 2020. 09 - 2021. 01 공사기간 | 2021. 03 - 2022. 05 사진 | 김재윤 전문기술협력 - 구조분야 : (주)밀알엔지니어링 - 기계설비분야 : 선우엔지니어링 - 전기분야 : 선우엔지니어링 - 소방분야 : 선우엔지니어링 |
Un-Joong Dong Commercial Buliding Architect | Chung, Chang Ho_ECO Architects Ltd. Client | Aram E&Tech Supervisor | ECO Architects Ltd. Construction | Kunst Construction Project team | Lee, Jung Hee / Do, Young Hun / Lim, Jun Hyuk Location | 23, Sanun-ro 208beon-gil, Bundang-gu, Seongnam-si, Gyeonggi-do, Korea Program | Neighbourhood facility Site area | 850.50㎡ Building area | 508.21㎡ Gross floor area | 3,225.39㎡ Building to land ratio | 59.75% Floor area ratio | 238.93% Building scope | B2F - 4F Structure | RC Exterior finishing | Curtain wall, Aluminum panel Interior finishing | Eco-friendly water paint, Stone Tile Design period | Sep. 2020 - Jan. 2021 Construction period | Mar. 2021 - May 2022 Photograph | Kim, Jae Hun Structural engineer | Milal Engineering Mechanical engineer | Sunwoo Engineering Electrical engineer | Sunwoo Engineering Fire engineer | Sunwoo Engineering |

'회원작품 | Projects > Neighborhood Facility' 카테고리의 다른 글
| 초당동 곶감집 2023.3 (0) | 2023.03.17 |
|---|---|
| Y2 빌딩 2023.3 (0) | 2023.03.17 |
| GRAY BLOSSOM 2022.9 (0) | 2023.02.23 |
| 투썸플레이스 가수원대로DT 2022.9 (0) | 2023.02.23 |
| 성수동 더 그라운드 2022.8 (0) | 2023.02.22 |