2023. 4. 20. 14:12ㆍ회원작품 | Projects/House
Dongchun Greenhouse




정릉동 ‘책놀이집’의 지인으로부터 소개를 받고 찾아온 건축주는 첫 방문에 흔쾌히 설계 계약을 했다. 진행하며 처음 현장을 보러 갔을 때, 대지 북쪽의 산이 정말 아름다웠다. 손에 잡힐 듯 가까운 곳에 붉은 단풍으로 둘러싸인 산을 보며 ‘이 장면은 꼭 집에 담고 싶다’고 생각했다.
대지는 662제곱미터(200평)가 조금 안 되는 땅으로, 3.5미터 높이의 두 개의 축대로 나누어져 있는, 남쪽이 뾰족한 삼각형 모양이다. 꽃과 나무를 가꾸고 붓글씨를 즐기는 건축주는 “작은 온실을 마당에 두고 싶다”고 했다. 정원을 가꾸며 시간을 보내는 삶을 원하는 건축주를 위해 이 온실을 거실 모서리에 연결시켜 온실과 거실이 연결된 ‘동춘온실(東春溫室)'을 완성했다. 동춘온실(東春溫室)은 집안 어느 곳에서나 정원과 산을 바라볼 수 있는 ‘순환하는 동선'을 뜻한다.
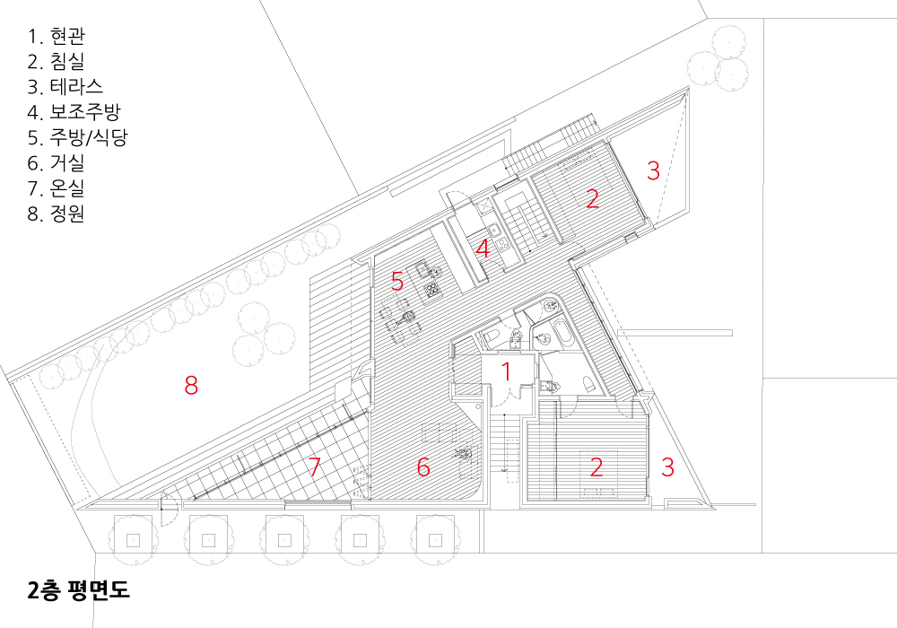
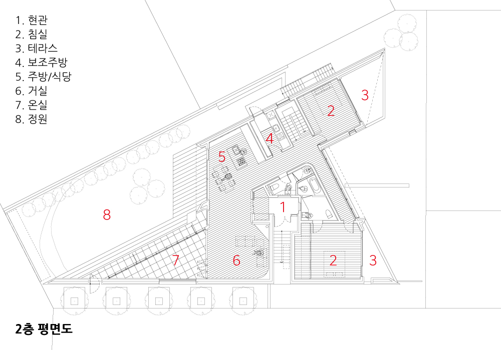
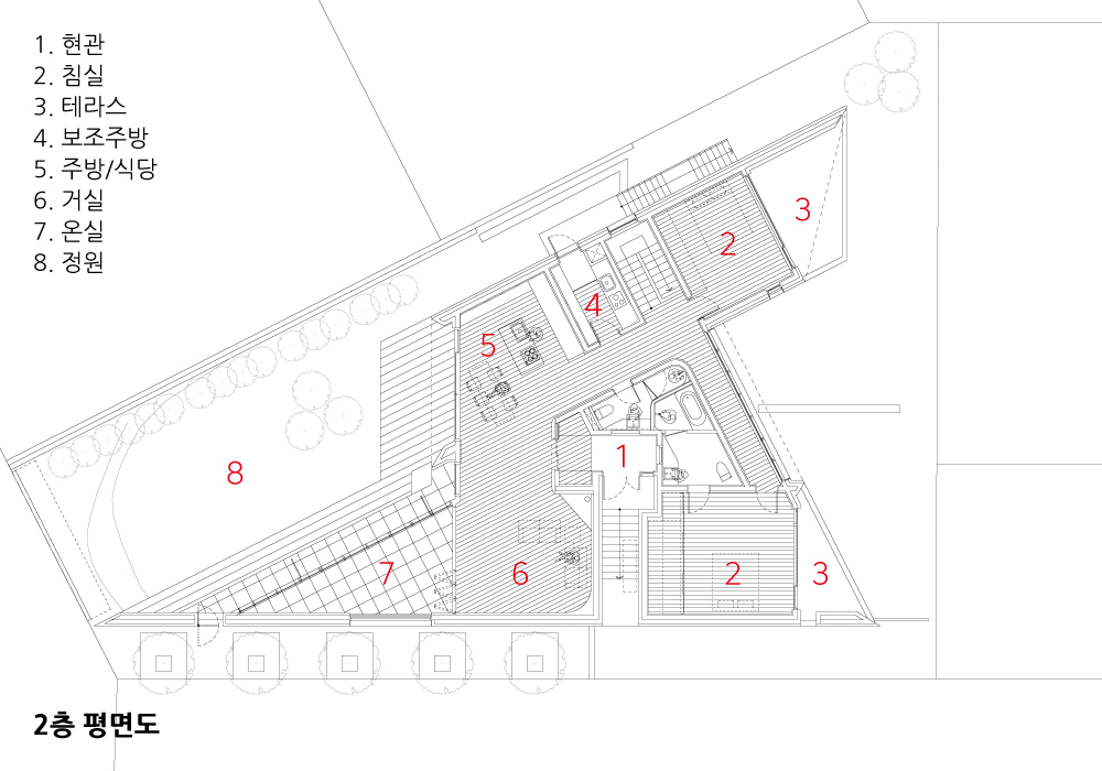
세부적으로 대지의 높은 쪽(남쪽)으로 마당을 두고, 이곳에 마당과 연결된 온실, 거실, 주방, 식당을 배치했다. 청량산이 보이는 북쪽으로 2층에 2개의 방과 1층에 1개의 다목적실을 배치했으며, 1층 다목적실 앞에는 작은 마당과 주차장을 배치했다. 주출입구는 2층이다. 콘크리트구조에 2층 온실과 거실의 지붕을 중목구조를 사용해 목재를 드러나게 했고, 다양한 단열재를 사용했다.
내부는 온실과 거실을 외부공간처럼 느낄 수 있도록 외부에 사용된 벽돌(롱브릭)을 거실 안쪽까지 연결했고, 나머지 공간은 백색 페인트로 마감해 온실+거실과 구별되도록 했다. 내부의 모서리를 둥글게 처리하여 부드러운 여성적 느낌을 주었고, 천창을 적극적으로 사용했다. 두 개의 욕실에는 천창만이 있고, 주방에는 천창을 3개 연속으로 설치해 압도적 개방감을 형성했다.
외부는 긴 도로 면을 따라 벽돌로 이루어진 긴 벽이 부유하듯 떠 있는 느낌을 주려고 했다. 반면에 북쪽에서는 두 개의 지붕이 있는 듯이 표현하고, 남쪽면은 개방감 있는 큰 창문과 잘개 쪼개진 온실의 목창호가 리듬감을 만들어 낸다.





The client visited us by the introduction of an acquaintance of 'Chaeknori House (Book Play) House' in Jeongneung-dong and happily signed a design contract on his first visit. When we first went to see the site, the mountains on the north side of the site were really beautiful. Looking at the mountains surrounded by red maple leaves close by as if you could touch it, we thought ‘we really want to capture this scene at home’.
The site is a little less than 662 (200 pyeong) and divided into two embankments 3.5m high in the shape of a triangle with a pointed south side. The client, who enjoys planting flowers and trees and writing calligraphy, said, “I want to have a small greenhouse in the yard.” For the client who wants to spend time in a garden, we connected a greenhouse to the corner of the living room to complete ‘DONGCHUN GREENHOUSE’ where a greenhouse and a living room are connected. DONGCHUN GREENHOUSE (東春溫室) refers to a ‘circulating movement line’ where you can see the garden and mountains from anywhere in the house.
A yard was placed on the high side (south) of the site, having a greenhouse, a living room, a kitchen, and a dining room connected to the yard. There are two rooms on the second floor and a multipurpose room on the first floor to the north with a view of Cheongnyangsan Mountain, and a small yard and parking lot are placed in front of the multipurpose room on the first floor. The main entrance is on the second floor. In addition to the concrete structure, heavy timber construction was applied for the roof of the greenhouse and the living room on the second floor to expose the timber, and various insulation materials were used.
For the interior, bricks (long bricks) that were used for the exterior were connected to the inside of the living room to make the greenhouse and the living room feel like an outdoor space, and the rest of the space was finished with white paint to distinguish it from the greenhouse + living room. The corners of the interior were rounded to give a soft, feminine feel, and skylights were actively used. There are only skylights in two bathrooms, and three skylights are installed in a row in the kitchen to create an overwhelming sense of openness.
The exterior was designed to give the impression that long brick walls are like floating along the long road. On the north side, it was designed as if there were two roofs, and on the south side, large open windows and finely divided wooden windows in the greenhouse create a sense of rhythm.



| 동춘온실(東春溫室) 설계자 | 이재혁 _ (주)에이디모베 건축사사무소 건축주 | 박경숙 감리자 | 이재혁 (주)에이디모베 건축사사무소 시공사 | 하광수 _ (주)우리마을A&C / (주)수피아건축(목구조) 설계팀 | 이주화, 임동연 대지위치 | 인천광역시 연수구 동춘동 주요용도 | 단독주택 대지면적 | 617.80㎡ 건축면적 | 233.78㎡ 연면적 | 294.47㎡ 건폐율 | 37.84% 용적률 | 47.66% 규모 | 2F 구조 | 철근콘트리트구조, 중목구조 외부마감재 | 벽+천 _수성페인트(벤자민무어), 콘크리트 면보수, DURASTACK 탱고레드 / 지붕 _ THK5.0 JAL ZINK / 창호 _이건 알미늄창호 + thk43 로이삼중유리, VELUX GPL + thk24 복층유리 내부마감재 | 바닥 _ thk8 이건마루 / 벽+천장 _ 수성페인트(벤자민무어), 콘크리트 면보수 / 계단재 _ thk30 오크 집성목+투명 스테인 / 타일 _ 윤현상재 설계기간 | 2019. 11 - 2020. 07 공사기간 | 2020. 08 - 2021. 04 사진 | 김창묵 구조 | 김형만 _ (주)허브구조 / 금나구조(목구조) 기계설비 | 김성률 _ 유영설비기술연구소 전기 | 김기표 _ 거산ENG 조경 | 이대영 _ 조경상회 |
Dongchun Greenhouse Architect | Yi, Jaehyuk _ Admobe Architect Client | Park, kyungsook Supervisor | Yi Jaehyuk _ Admobe Architect Construction | Woorimaeul A&C, Supia(Wood Structure) Project team | Lee, Joohwa / Lim, Donghyun Location | Dongchun-dong, Yeonsu-gu, Incheon, Korea Program | House Site area | 617.80㎡ Building area | 233.78㎡ Gross floor area | 294.47㎡ Building to land ratio | 37.84% Floor area ratio | 47.66% Building scope | 2F Structure | RC, Light-frame wood structure Exterior finishing | Durastac, Sto K1.5 Interior finishing | Wood Flooring, Wall paper, Concrete finishing Design period | Nov. 2019 - Jul. 2020 Construction period | Aug. 2020 - Apr. 2021 Photograph | Kim, Changmook Structural engineer | Kim Hyungman + Ma Youngmin(Wood Structure) Mechanical engineer | Kim, Sungryul Electrical engineer | Kim, Kipyo Landscaping engineer | Lee, Daeyoung |
'회원작품 | Projects > House' 카테고리의 다른 글
| 포천 소담재 2023.4 (0) | 2023.04.20 |
|---|---|
| 양산 파노라마 주택 2023.4 (0) | 2023.04.20 |
| 안림동 필로티 하우스 2023.4 (0) | 2023.04.19 |
| 아레아코메 2023.4 (0) | 2023.04.19 |
| 봄빛담 2023.3 (0) | 2023.03.17 |
