2023. 6. 23. 11:29ㆍ회원작품 | Projects/House
A bright and strong person who always lives with the sun

늘해랑은 코로나라는 새로운 바이러스로부터의 위협이 끝이 보이지 않던 시기에 설계되었다. ‘기존의 주택이 현재의 우리의 일상을 담기에 적합한가?’에 대한 건축주의 질문에 시대가 변하면서 사람들의 생각도 바뀌고 그 생각을 담는 건축도 달라야 한다는 답변으로 지어진 주택이다.
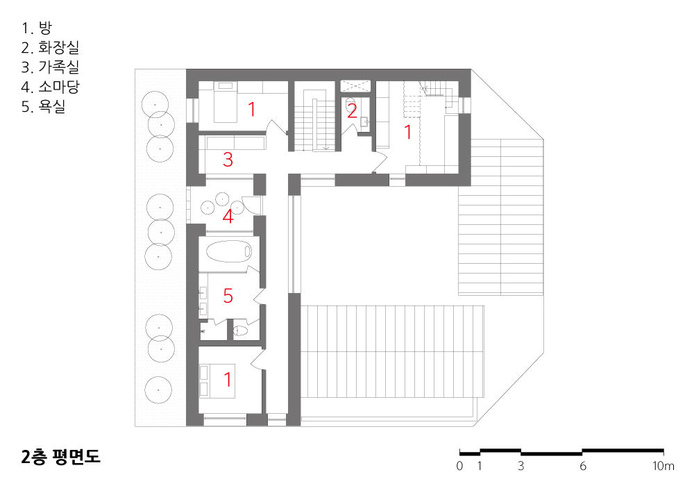
때문에 각자의 방에 드레스룸이 갖춰지던 구조에서 벗어나 집에 들어서서 바로 씻고 깨끗한 홈웨어로 환복한 후 활동하게 된다. 발달된 통신의 혜택으로 재택근무가 부쩍 늘어난 탓에 집주인의 재택근무가 가능한 쾌적한 서재 겸 사무실은 필수이며, 자녀방도 학습공간과 수면 공간이 분리된다.
3면이 도로에 둘러싸여 있고, 남측 도로에 공용주차장 건립 예정이라 건축주의 프라이버시를 고려하기 위해 건물로 외곽을 둘러쳤고, 도로에 면한 부분은 건축주의 서재 겸 사무실인 별채를 위치시켰다.
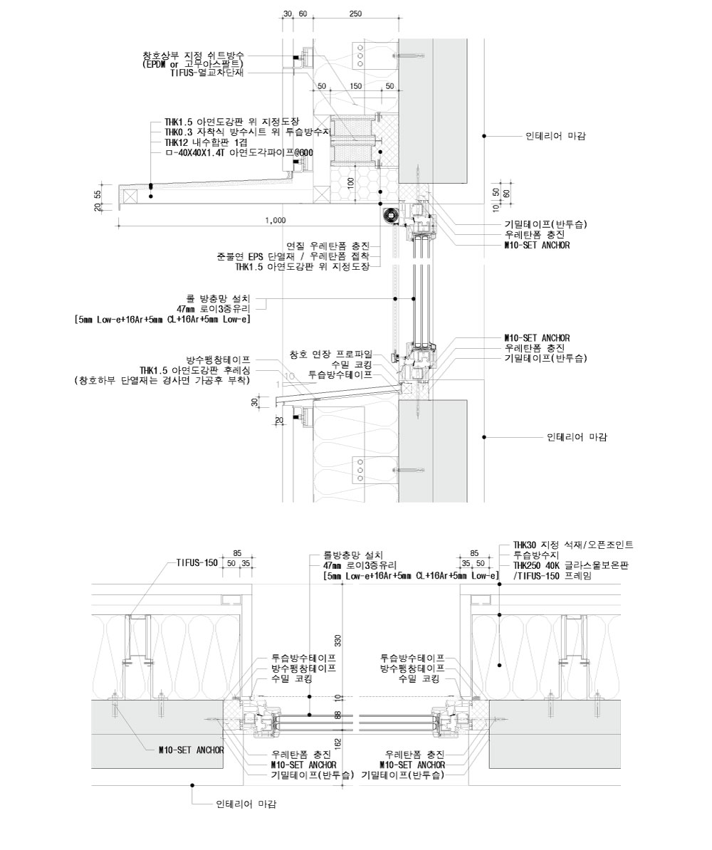
또한 집안에서 머무는 시간이 부쩍 많아진 디지털 시대의 건물 곳곳에 소정원들을 배치시켜 채광, 녹음, 통풍의 역할 외에 공간마다 다른 농도의 빛이 머금도록 계획했다. 소정원이 집안에 끌어들이는 다른 느낌의 빛은 이 집을 풍요롭게 만드는 중요한 요소이다. 2층의 가족이 공용으로 사용하는 가족 욕실은 위생이라는 기본 역할에 충실하면서도 휴식과 치유의 공간이 되도록 자연을 풍부히 끌어들였다.
‘늘 햇빛이 가득한 회랑이 있는 집’이라는 건축주가 지은 이름처럼, 해가 가득차는 중정을 비롯한 정원 곳곳에 생명의 에너지가 가득차기를 기대한다.





The Nulhaerang house was designed during a time the threat of a new virus - COVID-19 - was looming. It was a response to the question of whether traditional homes were still suitable for our current way of life, as people's thoughts and attitudes change with the times and architecture must evolve to reflect this.
As a result, the house departs from the traditional structure. For example having a dressing room in each bedroom and instead, upon entering the house, one can immediately wash up and change into clean home wear before engaging in daily activities. With the benefits of advanced communication technology, remote work has become more prevalent, making a comfortable office for the homeowner a necessity, and the children's room is separated into a study and sleeping space.
The house is surrounded on three sides by roads, and a public parking lot is slated to be built on the southern road. In consideration of the homeowner's privacy, the building is surrounded by a perimeter room, and a separate building for the homeowner's study and office is located on the road-facing side.
In addition, with the increase in time spent at home during the digital age, small gardens are placed throughout the building to provide varying degrees of natural light, acoustics, and ventilation. The different shades of light that the small gardens bring into the home provide an important element that enriches the atmosphere of the house. The family bathroom on the second floor is designed to be a space for relaxation and healing, while still fulfilling its basic function of hygiene, with a rich natural environment.
As the name "House Always Filled with Sunlight" suggests, the homeowner hopes that the courtyard, as well as the various gardens around the house, will be filled with vibrant energy and life.







| 늘해랑 설계자 | 권재희 _ (주)목금토 건축사사무소 건축주 | 강호창, 전유진 시공사 | 호산건설(주) 대지위치 | 경기도 성남시 분당구 운중동 주요용도 | 단독주택 대지면적 | 338.50㎡ 건축면적 | 166.43㎡ 연면적 | 443.15㎡ 건폐율 | 49.17% 용적률 | 68.14% 규모 | B1F - 2F 구조 | 철근콘크리트구조 외부마감재 | T30 사비석 내부마감재 | 석고보드 위 수성페인트도장 설계기간 | 2021. 02 - 2021. 08 공사기간 | 2021. 09 - 2022. 08 사진 | 박영채 구조분야 | 건축구조연구소 다우 기계설비분야 | (주)한길엔지니어링 전기분야 | (주)한길엔지니어링 |
A bright and strong person who always lives with the sun Architect | Kwon, Jaehee _ Friday Architects Client | Kang, hochang / Jeon, yujin Construction | Hosan Location | Unjung-dong, Seongnam, Gyeonggi-do, Korea Program | House Site area | 338.50㎡ Building area | 166.43㎡ Gross floor area | 443.15㎡ Building to land ratio | 49.17% Floor area ratio | 68.14% Building scope | B1F - 2F Structure | RC Exterior finishing | Granite Stone Interior finishing | Water paint finish above gypsum board Design period | Feb. 2021 - Aug. 2021 Construction period | Sep. 2021 - Aug. 2022 Photograph | Park, Youngchae Structural engineer | Dawoo Mechanical engineer | hangil Electrical engineer | hangil |
'회원작품 | Projects > House' 카테고리의 다른 글
| 연연재 2023.7 (0) | 2023.07.24 |
|---|---|
| 우록리 주택 2023.6 (0) | 2023.06.23 |
| 귀농 농업인 주택 2023.6 (0) | 2023.06.23 |
| 서원하우스 2023.5 (0) | 2023.05.19 |
| 포트리스 M 2023.5 (0) | 2023.05.19 |
