2024. 3. 31. 10:10ㆍ회원작품 | Projects/Neighborhood Facility
FITNESS 1

PROLOGUE
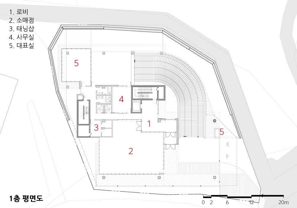
피트니스 원은 경사지에 위치한 이형의 대지 안에 피트니스 센터, 실내 테니스장, 실내 골프연습장 등의 운동 공간을 계획하는 프로젝트이다.
본 계획에서 해결해야 하는 주요 조건들은 ▲비정형의 대지경계선을 고려한 효율적인 건축 영역 확보 ▲실내 스포츠 공간이라는 프로그램의 특수성을 고려한 넓은 기둥 간격 및 높은 층고의 적용 ▲산지와 학교 및 아파트로 둘러싸여 있는 복합적인 대지의 주변 환경이었으며, 해당 조건들을 고려하여 계획의 주안점을 정리했다.
다양한 건물의 얼굴
비정형의 대지경계선 내에서 최적의 건축 가능 영역을 확보하기 위해 좌측 입면을 세 개의 매스로 분절하고, 우측 입면을 두 개의 매스로 분절했다. 학교 체육관에서 바라보는 좌측 입면의 형상은 거대한 위압감보다는 리듬감 있는 모습으로 보이도록 했다.
우측 입면의 전면부는 건물의 주출입구와 맞닿아 있는 관계로 도로 방향에서의 시인성 및 채광을 고려한 유리 커튼월로 계획했으며, 후면부는 가로로 긴 창을 배치하여 재실자의 시선이 북측의 자연을 오롯이 담을 수 있도록 했다.
건물의 전면은 각 층별 용도와 좌·우측 입면과의 차별화를 고려했다. 지상 1층은 필로티 구조로 전면의 운동장 방향으로 열린 외부공간을 제공한다. 또한 주로 의자에 앉아 있는 외부공간 이용자의 특성을 고려하여 지상 1층의 외부공간 전면에 입면과 동일한 재료의 낮은 담장을 계획했다. 이를 통하여 운동장 방향의 시선을 분리하고 개방감을 확보할 수 있다.
건물 전면 학교 운동장과의 경계를 형성하는 운동장 스탠드 담장과 새로 만들어진 담장 사이 공간에는 교목 식재를 심어 담장 위까지 가지와 잎새가 올라오도록 했다. 이를 통해 주로 의자에 앉아 있는 외부공간 이용자는 추가로 운동장과의 시선 차폐가 가능하며, 마치 한 폭의 넓은 그림처럼 하늘과 자연, 그리고 건물이 자연스럽게 조화되는 풍경을 바라볼 수 있다. 반대 방향인 학교에서 바라보는 건물의 모습은 기존의 스탠드 담장과 조화롭게 보이도록 했다.
지상 2층에는 피트니스 센터가 위치한다. 이용자의 대부분이 의자에 앉아 있는 지상 1층과는 반대로, 이 공간은 쉬지 않고 움직이는 사람들로 가득한 공간이다. 하지만 지상 1층과 마찬가지로 인접 학교와의 시선 간섭을 방지하면서도 개방감 있는 실내 환경이 필요했다. 이러한 상반된 조건을 극복하기 위해 전면에는 높이 1.5미터의 소제창을 적용했다. 1층의 사람들은 주로 앉아 있기 때문에 담장을 세우고, 2층의 사람들은 주로 서 있기 때문에 낮은 창호를 계획한 것이다. 지상 3층은 풀 사이즈의 실내 테니스장을 계획했으며, 시설의 특성과 이용 편의를 고려해 전면부는 솔리드 벽체를 적용했다.
합리적인 구조와 재료 계획
건물의 구조 시스템은 가운데 코어 배치를 기준으로 전면부와 후면부로 구분했다. 전면부는 최대 경간 14.1미터의 철골철근콘크리트(SRC) 장스팬 구조를 적용하여 다양한 체육 활동에 최적화된 대공간을 제공했다. 대공간의 부속 공간이 배치되는 후면부는 철근콘크리트(RC) 구조를 적용하여 시공성 및 경제성을 확보했다. 또한 일조사선 제한으로 인한 높이의 제약조건 내에서 각 층을 5.4미터 이상의 층고로 계획하여 최적의 활용도를 제공하고자 했다.
또 외장 재료는 매스의 형상을 오롯이 드러낼 수 있도록 회색 계열의 외단열 미장마감을 적용했다. 그림자에 따라 변화하는 다양한 입면의 모습을 담아낼 수 있도록 거친 재질을 사용했으며, 상대적으로 가벼운 외벽 재료의 물성으로 인해 합리적인 구조 계획이 될 수 있도록 했다.


PROLOGUE
The Fitness 1 is a project that plans exercise spaces within an irregularly shaped site located on a slope, including a fitness center, indoor tennis court, and indoor golf practice facility.
The key considerations in this plan include 1) securing an efficient construction area, considering the irregular site boundaries, 2) applying wide column spacing and high ceilings considering the specialized nature of indoor sports spaces, and 3) addressing the complex surroundings of the site surrounded by mountains, schools, and apartments. Keeping these conditions in mind, the focal points of the plan have been outlined.
Various Faces of Buildings
To secure the optimal construction area within the irregular site boundaries, the left facade is segmented into three masses, and the right facade into two. The shape of the left facade, as seen from the school gymnasium, is designed to convey a rhythmic appearance rather than imposing grandiosity.
The front of the right facade, in direct proximity to the building’s main entrance, is planned with a glass curtain wall, considering visibility and natural lighting from the road direction. The rear is designed with horizontally elongated windows, allowing the occupants to fully embrace the natural scenery to the north.
The front of the building takes into account the differentiation of each floor’s purpose and distinction from the left and right facades.
The ground floor, supported by a piloti structure, opens towards the sports field, providing an open external space. Considering the characteristics of outdoor space users who predominantly sit in chairs, a low wall of the same material as the facade was planned across the front of the ground floor outdoor space.
This allows for the separation of the sightline towards the sports field, ensuring an open and expansive visual experience.
Between the sports stand wall, forming the boundary with the school sports field, and the newly constructed wall at the front of the building, trees have been planted, allowing outgrowth and leaves to extend up to the top of the wall.
This provides additional visual privacy for outdoor space users who primarily sit in chairs, creating a picturesque scene where the sky, nature, and the building naturally harmonize, resembling a wide canvas.
The view of the building from the school in the opposite direction is intentionally designed to harmonize with the existing stand wall.
The second floor houses the fitness center.
In contrast to the majority of users primarily sitting in chairs on the ground floor, the second floor is a space filled with constantly moving individuals as it accommodates the fitness center. However, like the ground floor, there was a need for interference prevention with the adjacent school’s line of sight and the creation of an open indoor environment. To overcome these contrasting conditions, a 1.5m high transom window was applied to the front.
Given that people on the first floor predominantly sit, a wall is erected, while for those on the second floor who predominantly stand, low windows have been planned. The third floor is planned for a full-sized indoor tennis court, and considering the facility’s characteristics and user convenience, a solid wall is applied to the front.
Rational structure and material planning
The building’s structural system is divided into a front and rear based on the central core placement. For the front section, a steel-reinforced concrete (SRC) long-span structure with a maximum span of 14.1m has been implemented, providing a spacious area optimized for various sports activities. In the rear section, where ancillary spaces for the expansive area are arranged, a reinforced concrete (RC) structure has been employed to ensure constructability and cost-effectiveness.
Additionally, considering height constraints due to sunlight restrictions, each floor has been planned with a ceiling height of 5.4m or more, aiming to provide optimal usability. The exterior material features a grey-toned thermal insulation finish to fully reveal the form of the masses. Utilizing rough materials to capture the varied appearances of the facade as they change with shadows, the relatively lightweight properties of the exterior wall material allow for a rational structure plan.








| FITNESS 1 설계자 | 고정석 _ (주)건축사사무소 문고리 건축주 | FITNESS 1 감리자 | (주)건축사사무소 문고리 설계팀 | 문성우, 이진화, 김지원 대지위치 | 강원특별자치도 강릉시 화부산로91번길 21 주요용도 | 근린생활시설 대지면적 | 1,686.33㎡ 건축면적 | 990.17㎡ 연면적 | 3,678.76㎡ 건폐율 | 58.72% 용적률 | 157.87% 규모 | B1F - 3F 구조 | 철골철근콘크리트, 철근콘크리트 외부마감재 | 외단열 미장마감, 로이복층유리 내부마감재 | 석고보드 위 수성페인트 설계기간 | 2022. 06 - 2022. 09 공사기간 | 2022. 09 - 2023. 07 사진 | 김진철 _ 아키프레소 구조분야 | 주식회사 중앙탑 기계설비·전기·소방분야 | (주)코담기술단 |
FITNESS 1 Architect | Ko, Jungsuk _ Moonkolee Architects Client | FITNESS 1 Supervisor | Moonkolee Architects Project team | Moon, Sungwoo / Lee, Jinhwa / Kim, Jiwon Location | 21, Hwabusan-ro 91beon gil, Gangneung-si, Gangwon-do, Korea Program | Neighborhood living facilities Site area | 1,686.33㎡ Building area | 990.17㎡ Gross floor area | 3,678.76㎡ Building to land ratio | 58.72% Floor area ratio | 157.87% Building scope | B1F - 3F Structure | SRC, RC Exterior finishing | EIFS(exterior insulation finishing system) Interior finishing | Water paint finish above Gypsum board Design period | Jun. 2022 - Sep. 2022 Construction period | Sep. 2022 - Jul. 2023 Photograph | Kim, Jincheol _ Archipreso Structural engineer | Centertop Mechanical·Electrical·Fire engineer | Codam ENG. |
'회원작품 | Projects > Neighborhood Facility' 카테고리의 다른 글
| 그레이스 573 2024.4 (0) | 2024.04.30 |
|---|---|
| 소금공장의 기억을 품은 장소 부안 예술공방 2024.4 (0) | 2024.04.30 |
| M빌딩 2024.3 (0) | 2024.03.31 |
| 페스티벌 오브 라이츠 일산사옥 2024.3 (0) | 2024.03.31 |
| U2 OFFICE 2024.3 (0) | 2024.03.31 |
