2024. 4. 30. 10:10ㆍ회원작품 | Projects/Neighborhood Facility
Buan Art Factory

부안상설시장 인근, 원도심에 위치한 부안소금공장은 민족 고유의 제염법으로 재제염을 생산하던 공장이었다. 수산업이 발달한 부안에서 중요한 역할을 하던 시장 인근의 소금 공장은 지난 2009년 운영이 중단된 후 폐허로 남아있었다.
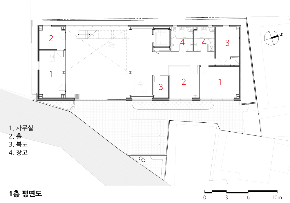
부안 예술공방은 이 소금공장이 있던 자리에 계획되었다. 건물이 위치한 비정형 필지는 입구가 좁고 안으로 깊은 형태이다. 시장을 오가는 지역 주민을 대상으로 한 도시재생 시설로서, 길게 펼쳐진 2층의 금속 파사드는 상설시장을 향해 강한 인지성을 가진다.
1층의 뒤로 물러난 벽돌 매스와 2층의 돌출된 금속 박공 매스가 교차하며 행인을 맞이하면서 감싸는 듯한 외벽을 만든다. 둔탁한 매지의 적벽돌을 적용한 1층은 저층의 오래된 주택가의 연장이며, 매스가 뒤로 물러나 만드는 공간은 대지 뒤편 주택에 대한 배려이자 골목길의 연장이다.
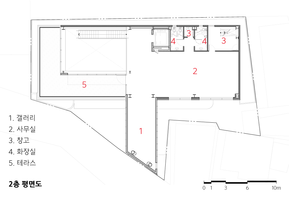
2층의 박공 지붕과 반사도가 높은 금속 외장재는 소금 공장을 모티브로 한다. 매스를 떠받치는 Y자 기둥은 긴장감을 형성하며 매스 하부에 휴식 공간을 만들고, 시장 입구에서부터 뒤편 휴게공간에 이르기까지 4개의 레벨에 걸쳐 시선이 통하도록 한다. 낮은 높이의 2층 테라스에서는 행인과 자연스레 시선이 마주치며 건물 내의 활동을 바깥으로 전파한다. 테라스에서 박공의 매스까지 경사를 따라 건물의 높이가 단계적으로 상승하여 건물의 크기가 주는 압박감이 줄어든다.
두 개 층이 열린 내부 공간은 철골 구조가 그대로 노출된 공장 건물의 유형을 가진다. 남동측을 향해 활짝 열린 박공 매스의 창을 통해 깊은 필지를 극복하는 풍부한 자연광이 쏟아진다.
비대칭의 돌출 구조 내부를 제외하고는 각 실과 조명은 매우 단순하고 규칙적인 배치를 가지며, 은색의 데크플레이트가 그대로 노출된 천장은 조명을 반사하는 역전된 소금 가마솥과 같다. 1층의 구획을 가볍게 나누는 투명한 폴리카보네이트는 사무실 내부로 자연광을 유입하고, 소금 포대를 이용한 테이블의 상판으로 쓰이며, 납작한 솥에 맺힌 소금 결정을 떠올리게 한다.




Buan Salt Factory, located in the old city center near local permanent market, had produced the refined salt through the traditional method. This market had played an important role in Buan where the fisheries industry was developed, but finally remained in ruins after its operation was suspended in 2009.
Buan Art Factory is located at the site of this salt factory. The atypical lot is deep inside, with a narrow entrance. As an urban regeneration facility for local residents traveling to and from the market, the long metal facade has strong recognition toward the permanent market.
The brick mass at the first floor, which receded behind, and the protruding steel gable mass on the second floor intersect, creating an enclosed wall that welcomes passers-by. The first floor with an uneven red brick is an extension of an old residential area, and the road created below the metal mass is a consideration for the house behind the site and an extension of the alleyway.
The two-story gable roof and highly reflective metal exterior are inspired by a salt factory. The Y-shaped column, which supports the mass, creates tension of overhang and makes an intimate rest area with low ceiling height. This space under the mass allows seeing across four levels from the market entrance to the open space on the backside. On the low-height second-floor terrace, the activities in the building can readily spread to the alleyway, allowing communication with the passers-by. The height of the building gradually increases along the slope from the terrace to the mass of the gable, reducing the pressure on the size of the building.
The lobby with two open floors has the type of factory building where the steel structure is exposed as it is. Rich natural light pours through the window of the gable mass, which is wide open toward the southeast, overcoming the enclosed site.
Except the asymmetric protruding structure of the overhang, each room and lighting have a very simple and regular arrangement, to build a modular space for each artist later. The ceiling with the silver deck plate exposed as it is like an salt cauldron that reflects the light. The transparent polycarbonate, which lightly divides the first floor, introduces natural light into the office. This material is also used as the top of a table, made with abandoned salt bag, and reminds of salt crystals formed in a flat pot.







| 소금공장의 기억을 품은 장소 부안 예술공방 설계자 | 황남인 · 김시홍 _ 내러티브아키텍츠 건축사사무소 건축주 | 부안군청 감리자 | 민건축사사무소 시공사 | 삼호토건주식회사 설계의도 구현 | 내러티브아키텍츠 건축사사무소 대지위치 | 전라북도 부안군 부안읍 매산길 3-1 주요용도 | 근린생활시설 / 예술공방 대지면적 | 480.43㎡ 건축면적 | 314.33㎡ 연면적 | 471.77㎡ 건폐율 | 65.42% 용적률 | 98.19% 규모 | 2F 구조 | 철골구조 외부마감재 | 아연도금강판, 치장벽돌, 외단열일체마감 내부마감재 | 수성페인트, 폴리카보네이트, 에폭시라이닝 설계기간 | 2021. 07 - 2021. 12 공사기간 | 2022. 03 - 2022. 12 사진 | 신경섭 구조분야 | SDM 구조기술사사무소 기계설비분야 | (주)이래엠이씨 전기분야 | (주)성지이앤씨 소방분야 | (주)성지이앤씨 |
Buan Art Factory Architect | Hwang, Namin · Kim, Sihong _ Narrative Architects Client | Buan-gun Supervisor | Min Architecture Construction | Samho Construction Co., LTD. Design intention realization | Narrative Architects Location | 3-1, Maesan-gil, Buan-eup, Buan-gun, Jeonbuk-do, Korea Program | Community facilities / Art Workshop Site area | 480.43㎡ Building area | 314.33㎡ Gross floor area | 471.77㎡ Building to land ratio | 65.42% Floor area ratio | 98.19% Building scope | 2F Structure | Steel structure Exterior finishing | Galvanized steel sheet, Decorative brick Interior finishing | Paint, Polycarbonate, Epoxy Lining Design period | Jul. 2021 - Dec. 2021 Construction period | Mar. 2022 - Dec. 2022 Photograph | Shin, Kyungsub Structural engineer | SDM Structural Engineering Mechanical engineer | Irae EMC Ltd. Electrical engineer | Irae EMC Ltd. Fire engineer | Irae EMC Ltd. |
'회원작품 | Projects > Neighborhood Facility' 카테고리의 다른 글
| 가락동 102-8 리모델링 2024.4 (0) | 2024.04.30 |
|---|---|
| 그레이스 573 2024.4 (0) | 2024.04.30 |
| FITNESS 1 2024.3 (0) | 2024.03.31 |
| M빌딩 2024.3 (0) | 2024.03.31 |
| 페스티벌 오브 라이츠 일산사옥 2024.3 (0) | 2024.03.31 |

