2024. 5. 31. 10:10ㆍ회원작품 | Projects/Neighborhood Facility
Banwol Retail Building

역세권에 위치한 코너 대지에 짓는 상업건축
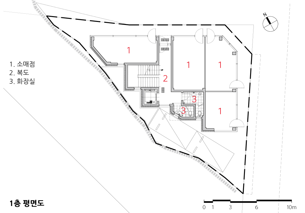
일반적으로 역세권에 위치한 코너 대지는 상업적인 가치가 높다. 때문에 토지의 지가가 주변보다 높고 상점의 임대료도 높게 받을 가능성이 크다. 우리가 건축설계를 의뢰받은 반월역 근린생활시설의 대지는 경기도 안산시에 위치한 4호선 반월역과 매우 가깝다. 반월역에서 약 50미터 내외에 위치한 역세권의 상권을 가지고 있었고, 사거리변의 코너에 위치한다. 클라이언트 측에서 요구한 프로그램은 근린생활시설이었고, 1층의 상점 면적을 최대한 넓게 해달라는 요청이 있었다. 건축법규와 사업성, 주차계획 등의 검토를 통해 사이트에 총 3개 층의 건물을 지을 수 있다는 결론을 내렸다. 작은 대지에 1층 공간을 최대화하고 법정주차 대수를 확보하기 위함이었다.
대지는 삼각형 형태의 비정형 대지였고, 코레일 측의 철도 부지와 맞닿아 있어서 제외지도 존재했다. 우리는 어떠한 건축형태와 입면이 본 대지에서 상업적 가치를 극대화 하면서 주변 도시와 조화를 이룰 수 있을지에 대한 디자인 스터디를 진행했다. 여러 가지 계획안 중에서 대지의 형상을 따라 만들어지는 자연스러운 사다리꼴의 매스를 채택했다. 사다리꼴의 매스는 반월역 방향으로 뾰족한 모서리를 가지게 되었고, 후면부는 파동벽처럼 디자인해 공간 기능에 문제가 없도록 만들었다. 결론적으로, 도로와 맞닿는 부분은 깔끔하고 정돈된 형태이고 뒤편의 아파트와 인접한 곳은 연속으로 꺾이는 매스를 통해 공공보행통로와 반응하도록 디자인한 것이다. 기능과 미적인 부분 두 가지를 모두 만족하도록 하는 설계 전략이었다.
무형의 기념비성 _ 고전건축의 정면성에 대한 현대적 재해석
매스와 건축계획에 대한 방향을 클라이언트 측과 협의한 후 건축물의 코너를 돋보이게 하는 방법을 고민했다. 가장 기본적인 건축언어를 다시 생각해 보면서 발상의 전환을 시도했다. 코너를 고전건축에서처럼 정면으로 규정하는 것은 어떨까? 코너 부분에 대한 현대적인 재해석이었다. 파르테논 신전의 파사드에서 육중하면서 휴먼스케일적인 균형과 비례를 표현한 것에서 영감을 얻었는데, 코너 부분에 무형의 보이드 공간을 만들어서 코너 부분에 강력한 건축적 아이덴티티를 부여했다. 비워진 공간은 마치 무형의 기념비성을 나타내는 공간으로서 테라스 공간을 만들어 내·외부 공간이 소통하도록 했다. 또한 테라스에서 하늘을 올려다보면 마치 작은 아트리움과 같은 공간을 경험할 수 있도록 의도했다.
그리고 파르테논 신전의 평면도에서 영감을 받아서 정형적인 평면, 육중한 현무암 재료의 입면 디자인을 통해 주변 컨텍스트와 어우러지는 리테일 공간의 상업성을 확보했다. 직사각형의 반복되는 개구부는 마치 코너를 지탱하는 열주와 같이 디자인하고, 벽체를 코너 부분 방향으로 연장해 코너에 독특한 기념비성을 부여했다. 또한 1층은 개방감 있는 유리로 마감하고 2, 3층은 사무실의 특성에 적합하게 솔리드한 벽면이 돋보이도록 했다. 결론적으로 반월역 근린생활시설 건축디자인은 반월역의 미래 개발 가능성과 상업적 가치를 잘 담고 있는, 고전건축과 현대건축이 융합된 새로운 건축공간으로 사용될 것이다.




Commercial architecture on the corner parcel,
building near subway station
Generally, corner parcel near subway station is invaluable commercially, because of many people and convenient transportation. The site that we are commissioned for commercial uses architectural design is very close to the Banwol station, which is subway number four in Ansan, just 50m away from the station and on the corner parcel. Client group requires us to accommodate several retail spaces and maximize spaces of first floor in the building. Through feasibility and architectural code study, we conclude to build three-story building on the site, in order to make maximum area of first floor and put legal numbers of parking spaces.
The shape of the site is very irregular like a triangle and aligns to the Korail’s railroad, on which the client cannot build. We proceed several design studies to maximize the area of the first level in relation to the surrounding environment and context. Among various architectural plans, we select a trapezoid formed plan, considered irregular parcel shape and functionality. The trapezoid mass sharp corner toward the subway station and wavy walls on the opposite side. To sum up, walls on the road side are very minimal and clear with wavy facade on the back street side, reacted to general people, satisfying functional and aesthetic architectural aspects.
Intangible Monumentality
Reinterpretation of the facade of classical architecture
Along with owner’s requirements, we study a methodology of how the corner of the building can be standed out to the street. We try to shift the normal thinking, considering very fundamental architectural language. What if the corner can be the facade of the building, as classical architecture’s modern reinterpretation? Inspired by the facade of the Parthenon looks very massive, representing human-scaled balance and symmetry, we design intangible void space on the corner for its strong architectural identity. The void volume shows like a intangible monumentality that represents in classical architecture, so that the spaces are able to communicate inside and out. Additionally, if people look up on the terrace, they can experience the small atrium space.
In relation to the architectural concept, we focus on the functional floor plan for the commerciality and classical elevation design applied basalt stone material to harmonize with urban context. The openings on the wall would be like colonnade of the temple and the walls on the road sides extend toward the corner for the monumentality. Also, first floor will be enclosed by all glass facade to be open, and the upper levels are composed of solid stone walls massively. In conclusion, Banwol Commercial Building we design will be utilized as maximizing commerciality as well as having possibility of future development, which hybridize classical and contemporary architectural spaces altogether.








| 반월역 근린생활시설 설계자 | 이명래 _ 스튜디오 제이엠 건축사사무소 건축주 | 청주한씨 문간공하 참판공파 작악곡종중회 감리자 | 디딤 건축사사무소 시공사 | 그린종합건영(주) 설계팀 | 이용민, 김미희, 김홍중 설계의도 구현 | 스튜디오 제이엠 건축사사무소 대지위치 | 경기도 안산시 상록구 건건로 119-5 (건건동) 주요용도 | 제1종·제2종근린생활시설 대지면적 | 240.00㎡ 건축면적 | 116.26㎡ 연면적 | 329.04㎡ 건폐율 | 48.44% 용적률 | 137.10% 규모 | 3F 구조 | 철근콘크리트구조 외부마감재 | THK30 현무암 판석, THK24 로이복층유리 내부마감재 | 무석면비닐계타일(바닥), 친환경페인트(벽), 노출천장(천장) 설계기간 | 2021. 12 - 2022. 06 공사기간 | 2022. 08 - 2023. 03 사진 | 김한빛 구조분야 | 반석건축구조사무소 기계설비·전기·소방분야 | (주)정찬기술단 |
Banwol Retail Building Architect | Lee, Myungrae _ Studio JM Architects Client | Cheongju Han family Supervisor | Didim Architects Construction | Cheongju Han’s Family Group Project team | Lee, Yongmin / Kim, Mihee / Kim, Hongjung Design intention realization | Studio JM Architects Location | Geongeon-ro 119-5, Sangnok-gu, Ansan, Gyeonggi-do, Korea Program | Neighborhood Facility(Retail and Office) Site area | 240.00㎡ Building area | 116.26㎡ Gross floor area | 329.04㎡ Building to land ratio | 48.44% Floor area ratio | 137.10% Building scope | 3F Structure | RC Exterior finishing | THK30 Basalt, THK24 Low-E Double Glass Interior finishing | THK3 Vinly Tile(Floor), Painting(Wall), Exposed Ceiling(Ceiling) Design period | 2021. 12 - 2022. 06 Construction period | 2022. 08 - 2023. 03 Photograph | Kim, Hanbit Structural engineer | Bansuk Structural Engineering Mechanical·Electrical·Fire engineer | Jungchan Enginering, Co. |
'회원작품 | Projects > Neighborhood Facility' 카테고리의 다른 글
| 교동살롱 2024.5 (0) | 2024.05.31 |
|---|---|
| 공흥리 근린생활시설 ‘젠가’ 2024.5 (0) | 2024.05.31 |
| 디오름 2024.5 (0) | 2024.05.31 |
| 필로미 빌딩 2024.4 (0) | 2024.04.30 |
| 가락동 102-8 리모델링 2024.4 (0) | 2024.04.30 |
