2024. 5. 31. 10:15ㆍ회원작품 | Projects/Neighborhood Facility
Commercial building ‘Jenga’

해당 대지는 대로변에 위치해 접근이 용이한 부지였다. 주변에는 1~2층 정도의 낮은 건물들이 분포해 있고, 뒤에는 용문산이 위치해 높은 층일수록 조망 확보에 유리한 조건이었다. 대로변에 차와 보행자의 접근이 용이하도록 건물을 전면부에 두었고, 차량의 진입도로는 대지와 제일 가깝게 하면서 주차장은 건물 뒤편에 배치했다.
‘젠가’는 근린생활시설의 용도로 사용하여 업무시설과 상가의 동선을 분리하는 계획이 필요했다. 따라서 2층으로 바로 진입 가능한 동선을 테라스 쪽으로 배치하게 되었다. 대지 여건상 조망이 좋은 방향은 용문산 뷰가 펼쳐지는 북동향이었다. 테라스를 각 층별로 길게 배치해 조망 시간을 확보할 수 있도록 디자인 전략을 세웠다.
디자인의 주안점인 테라스의 장방형 배치를 위해 건축이 가능한 매스에서 테라스에 필요한 공간의 크기만큼 덜어내는 방식으로 설계가 진행되었다. 결과적으로 건물의 주변을 두르는 띠 형태의 테라스 디자인이 완성되었고, 내부는 외부에서 인지하기 쉽고 개방감을 주는 커튼월을 사용했다. 건축 가능한 형태의 매스에서 테라스를 위한 공간을 한 칸씩 덜어내는 디자인 방식에 착안하여 건물의 이름을 ‘젠가’로 짓게 되었다.
각 공간으로의 진입은 총 3가지로 구성했다. 건물의 각 층별로 진입이 가능한 진입부, 은행으로 바로 진입 가능한 출입문, 2층의 테라스로 진출입이 가능한 외부 계단. 각 층은 하나의 프로그램만 사용하기에 벽으로 구획되지 않는 넓은 대공간으로 계획했다. 근린생활시설의 특성상 외부인의 출입이 잦다는 점을 고려해, 테라스 커튼월의 여러 군데에 출입문을 두어 방문하는 사람들이 자유롭게 건물을 이용할 수 있도록 했다.




The site is conveniently located on a main road, making access easy for both vehicles and pedestrians. Surrounding the area are low-rise buildings ranging from 1 to 2 floors, with Mount Yongmun situated behind, offering advantageous views for higher floors. To facilitate easy access for cars and pedestrians, the building is positioned along the main road, with the vehicle entrance closest to the site and parking situated at the rear.
‘Jenga’ required a plan to separate the flow of business facilities and commercial spaces for community living purposes. Thus, a pathway directly accessible to the second floor was arranged towards the terrace. Considering the favorable view towards Mount Yongmun in the northeast direction, terraces were elongated and arranged on each floor to ensure ample viewing time.
The design focused on arranging rectangular terraces by subtracting the necessary space from the available mass of the building. Consequently, a terrace design in the form of a surrounding band was achieved, while the interior utilized curtain walls to provide openness and visibility from the outside. Drawing inspiration from the design approach of subtracting spaces for terraces from the feasible building mass, the building was named ‘Jenga.’
Access to each space is structured into three components: entry points on each floor for access, direct entry to the bank, and external stairs for access to the terrace on the second floor. Each floor is designed as a spacious area without partitions since each level is dedicated to a single program. Considering the frequent entry of outsiders due to the nature of community living facilities, multiple entrance points were placed along the terrace curtain walls to allow visitors to freely utilize the building.









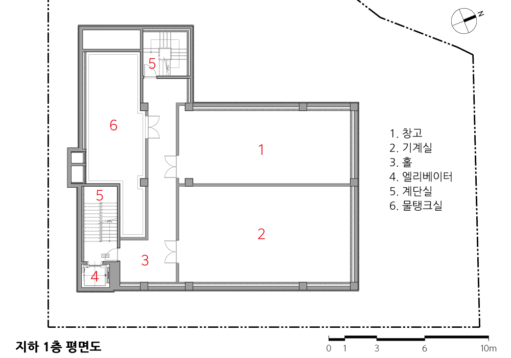
| 공흥리 근린생활시설 ‘젠가’ 설계자 | 방재웅 · 장근용 · 권혁철 _ 라움 건축사사무소 건축주 | 용문 새마을금고 감리자 | 라움 건축사사무소 시공사 | 주영건설(주) 설계의도 구현 | 라움 건축사사무소 대지위치 | 경기도 양평군 양평읍 공흥리 주요용도 | 근린생활시설 대지면적 | 410.00㎡ 건축면적 | 253.53㎡ 연면적 | 1,194.71㎡ 건폐율 | 61.84% 용적률 | 291.39% 규모 | B1F - 4F 구조 | 철근콘크리트구조 외부마감재 | 석재마감 내부마감재 | 시멘트몰탈, 페인트 설계기간 | 2021. 04 – 2021. 10 공사기간 | 2021. 11 – 2022. 09 사진 | 김용수 구조분야 : ㈜튼튼구조기술 기계설비분야 : ㈜코담기술단 전기분야 : ㈜코담기술단 소방분야 : ㈜코담기술단 |
Commercial building ‘Jenga’ Architect | Bang, Jaewoong / Kwon, Hyukchul / Jang, GeunYong _ RAUM Architecture Client | Yongmoon Saemaul Geumgo Supervisor | RAUM Architecture Construction | Juyeong Construction Design intention realization | RAUM Architecture Location | Gongheung-ri, Yangpyeong-eup, Yangpyeong-gun, Gyeonggi-do. Korea Program | Neighborhood living facilities Site area | 410.00㎡ Building area | 253.53㎡ Gross floor area | 1,194.71㎡ Building to land ratio | 61.84% Floor area ratio | 291.39% Building scope | B1F - 4F Structure | RC Exterior finishing | Stone Interior finishing | Cement mortar, Paint Design period | Apr. 2021 – Oct. 2021 Construction period | Nov. 2021 – Sep. 2022 Photograph | Kim, Yongsu Structural engineer | Teunteun Structural Engineering Company Mechanical engineer | Kodam Engineering Electrical engineer | Kodam Engineering Fire engineer | Kodam Engineering |
'회원작품 | Projects > Neighborhood Facility' 카테고리의 다른 글
| 에고빌딩 2024.6 (0) | 2024.06.30 |
|---|---|
| 교동살롱 2024.5 (0) | 2024.05.31 |
| 반월역 근린생활시설 2024.5 (0) | 2024.05.31 |
| 디오름 2024.5 (0) | 2024.05.31 |
| 필로미 빌딩 2024.4 (0) | 2024.04.30 |


