2024. 7. 31. 10:00ㆍ회원작품 | Projects/Religious
EVERGREEN CHURCH

프롤로그 : 새로운 도심 속 교회 
우리는 새로운 건물이 기존 풍경에 녹아들며 만들어 내는 또 다른 풍경이 있다고 믿기에, 디자인 과정에서 대지 주변의 맥락과 풍경을 읽어내고 이해하는 일을 매우 중요하게 생각한다. 이번 프로젝트의 대상지가 위치한 화성시 반월동은 도시개발사업을 통해 새로운 도심의 모습을 꾸려나가고 있는 동네였다.  
이 프로젝트의 주안점은 총 2가지였다. 첫 번째, “이미 존재하고 있는 풍경이 아닌, 새로이 만들어지고 있는 풍경 속에서 교회는 어떤 모습이어야 할까?” 두 번째, “도심의 풍경 속에서 교회는 어떤 모습이어야 할까?” 이곳에서 오랫동안 자리를 지키게 될 교회의 모습을 디자인하는 것은 매우 조심스러운 일이었다. 게다가 주변의 풍경이 한창 만들어지고 있는 과도기적 시기였기에, 미래에 완성될 풍경과도 어울릴 수 있는 모습으로 만들어야 했다.  
대지분석 
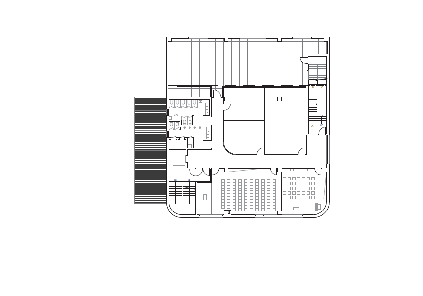
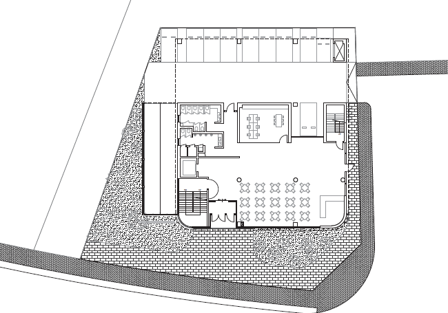
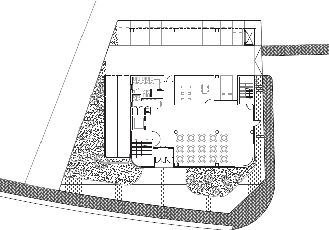
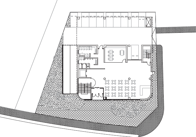
대상지는 아파트와 대형 상가로 이루어진 콘크리트 숲속의 사거리에 위치하며, 레벨 차이가 거의 없는 평지로 도보 및 차량의 접근이 용이하다. 대지의 전면부는 북서 방향으로 현재 공사 중이나 추후 지식산업센터가 들어설 예정인 빈 부지와 이미 조성된 공원이 위치해 있으며, 우측에는 초등학교 건물이 인접해 있다. 또 좌측에는 8미터 도로를 사이에 두고 근린생활시설 건물이 있고, 남측 후면부는 아파트 건물과 인접해 있었다. 사거리에 위치한데다가 대지를 둘러싸고 있는 주변의 환경이 공원, 지식산업센터, 학교, 근린생활시설, 아파트 등으로 모두 달랐기에 도시적 맥락을 세심하게 고려했다. 남측에 있는 아파트는 대지 주변의 다른 아파트 건물들처럼 고층이 아닌 3층 정도의 작은 규모라 채광 문제는 없었지만, 오히려 아파트 건물의 규모가 작은 만큼 자칫 잘못하면 교회가 아파트 주민들에게는 부담스러운 건물로 느껴질 수도 있음을 고려해 이를 해결할 수 있는 건축적 장치 또한 디자인에 반영하고자 했다. 
콘셉트 
빛의 움직임을 그려내는 콘크리트 _ 공사가 한창이라 주변의 풍경이 예측되지 않는 상황에서, 복잡한 도심 속 풍경에 대응하고 이웃들에게 부담스럽지 않은 건물을 만들기 위해 단순한 형태의 매스를 계획했다. 형태를 계획할 때와 마찬가지로 재료를 선택할 때에도 주변 풍경과의 조화를 가장 중요하게 생각하고 재료를 선정했다.  
콘크리트는 도심 속 풍경에 익숙한 재료임과 동시에 계획방법에 따라 다양한 분위기를 만들어 낼 수 있다. 익숙하면서 새로운 분위기를 위해 리브 콘크리트 계획으로 입체감을 가져 콘크리트의 텍스처뿐만 아니라 입면에서 빛과 그림자의 깊이감을 표현했다.  
리브의 형태와 간격에 따라 느낌이 전혀 달라지기 때문에 설계 단계에서 여러 모양과 간격으로 입면 스터디를 진행했고, 시공성이 우수할 뿐만 아니라 빛과 그림자의 대비가 가장 명확한 직사각형 형태의 리브콘크리트를 선택했다. 거푸집 제작 단계에서는 빛과 그림자의 섬세한 대비를 온전히 구현하기 위해서 다양한 거푸집을 목업 테스트했고, 시공 오차의 최소화와 합리적인 예산 사용을 위해 모듈화된 금속판 거푸집을 제작해 시공했다. 주위의 풍경에 녹아들면서도 자신만의 빛을 표현해내는 건물의 입면은 아침부터 저녁까지, 또 봄부터 겨울까지, 시간과 계절의 변화에 따라 교회의 새로운 모습을 그려낸다. 시간에 따라 변화하는 빛의 움직임을 그려내는 리브콘크리트는 고층 건물들 사이에서 단순하게 생긴 4층짜리 건물이 조용하면서도 확실하게 존재감과 상징성을 드러낼 수 있는 디자인적 요소이자 건축적 장치 중 하나였다.
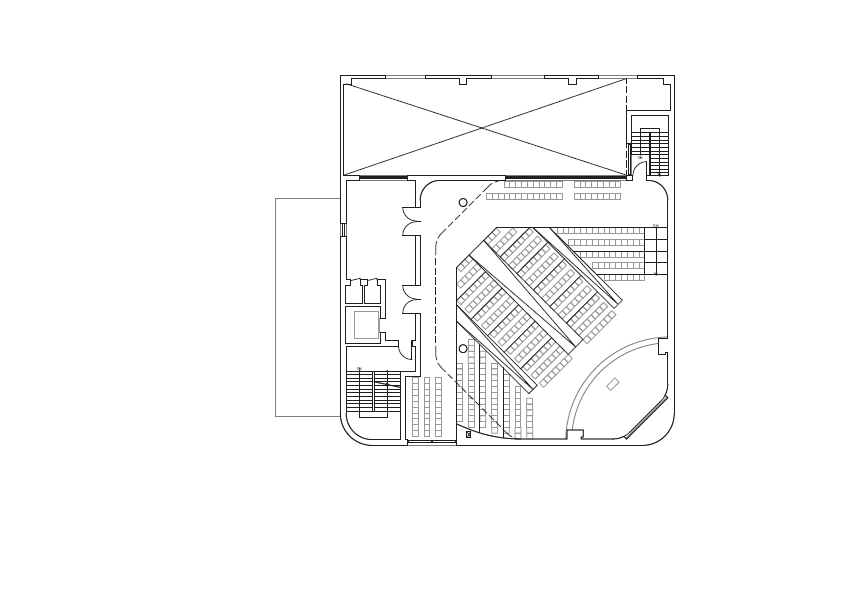
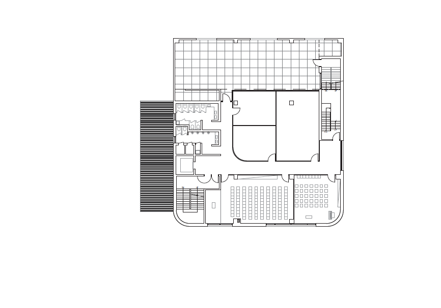
비워진 공간, 채워진 공간 _ 우리는 비워진 공간보다 채워진 공간에 익숙하다. 밀집된 도시에서는 효율적인 쓰임을 위해 비워진 공간보다 채워진 공간이 더 많기 때문이다. 콘서트홀이나 스포츠 경기장 등 기능적 필요에 의해서 비워진 몇몇 공간들이 있지만, 일상에서 자주 마주하는 공간은 아니다. 그런데 많은 사람들이 주말마다 모이는, 지극히 일상적인 이곳에는 비워진 공간과 채워진 공간이 함께 존재한다. 교회의 채워진 공간은 종교 활동을 지원하는 소규모 공간이고, 비워진 공간은 이벤트 및 행사를 지원하는 대규모 공간이다. 이 관점에서, 교회의 비워진 공간 역시 도시의 다른 비워진 공간들처럼 기능적 필요에 의해서만 계획된 것 같지만 이 프로젝트에 비워진 공간이 존재하는 다른 이유가 있다. 전체적인 조닝 계획에서 채워진 공간은 전면부에, 비워진 공간은 후면부에 배치돼 있는데, 기능적으로 사용되는 채워진 공간을 북측 전면부에 배치해 정면 도로 쪽 전망과 접근성을 확보했고 비워진 공간은 남측 후면부에 배치해 고층 아파트와 건물 사이의 완충공간으로 사용된다. 동시에 천창을 통해 빛을 내부로 끌어들여 채광을 확보하려 했다.  
부담스럽지 않게, 배려하는 건축 _ 종교인에게 교회는 친근하고 익숙한 공간이지만 그렇지 않은 사람들에겐 그저 낯선 미지의 공간이다. 주변에 비해 큰 볼륨이 아니어도 비종교인들에게는 종종 부담스럽게 느껴진다. 누구에게나 평등하게 사랑을 이야기하는 종교적 가치를 실현하기 위해서는 자연스럽게 지역에 녹아들어야 한다. 따라서 보행자의 시선에 노출되는 건물의 1층 입면은 투명한 유리로 개방감을 주어 사람들의 자연스러운 유입을 유도하고, 2~3층의 입면은 이와 대비되는 솔리드한 리브콘크리트로 계획해, 간결하면서도 검소한 모습으로 교회의 입면을 완성하여 주변 이웃들에게 부담스럽지 않은 모습으로 다가갈 수 있도록 했다. 
에필로그 : 조용히 자리 잡은 교회  
고층 아파트로 둘러싸인 도시적인 풍경 속에서, 이 프로젝트는 대상지 인근의 유일한 종교 건축물로서 그 상징성과 존재감을 드러내야 했다. 종교 건축물에 상징성을 부여하는 것은 어렵지 않은 일이었지만, 상징성을 부여하는 동시에 건물이 주변에 자연스럽게 녹아들 수 있도록 만드는 것은 매우 까다로운 작업이었다. 또한 이웃 주민들에게 부담스럽지 않은 모습으로 다가가기 위해서라도 교회는 간결해져야 했다.  
종교의 검소한 태도와 자세를 건축적으로 표현하기 위해 재료의 다양성을 최소화했다. 투명한 유리와 솔리드한 콘크리트로 두 재료가 서로 대비되어 입면이 보다 간결하게 읽히도록 했다. 그럼에도 불구하고 빛의 움직임에 따라 변화하는 리브 콘크리트의 입면은 도심 속 풍경에서 분위기를 변화시켜 존재감을 부각시킨다. 
교회 건물임에도 불구하고 단순한 형태의 매스로 디자인한 것, 도시에 자연스럽게 녹아들 수 있는 콘크리트라는 재료를 입면 재료로 선택한 것, 비워진 공간을 통해 기존 아파트 주민들과 이 도시에 새로이 자리 잡아 적당한 거리감을 형성해 주는 것. 이는 주거시설과 종교시설이라는 이질적인 공간의 성격 차이를 극복하고 화합을 위해 도심 속에서 조용히 자리 잡고자 했던 건축적 태도였다. 우리는 이러한 디자인을 통해 종교적 가치를 실현하는 동시에 도시적 맥락 또한 존중하는 설계를 완성하고자 했다.


PROLOGUE : New Downtown Church 
We believe that there is another landscape created when a new building blends into the existing landscape, so we consider it very important to read and understand the context and landscape around the site in the design process. However, Banwol-dong, Hwaseong-si, where the subject site of this project is located, is a neighborhood that is shaping a new downtown through urban development projects. Therefore, there were two main points we focused on in this project. First, “What should the church look like in the new landscape being created, not the existing landscape?” Second, “What should the church look like in the urban landscape?”. Although most buildings have a long lifespan, churches, especially, are places that connect religion and people, so they repair old buildings and expand them when space is lacking, always standing in the same place. Since we fully understood this, designing the church, which will stand here for a long time in the future, was a very careful and cautious task. Moreover, since the surrounding landscape was in the transitional phase of being created, we did not know how it would turn out, but we thought it should be made to match the future completed landscape. Fortunately, the site was a site being developed through an urban development project, and it was clear that the building would be located in an urban landscape in the future. In conclusion, we came up with a simple and calm church that would naturally blend into the urban landscape and match whatever the surrounding landscape would look like. 
SITE Analysis 
The site is located at a crossroads in a concrete forest of apartments and large shopping centers, and is a flat area with little difference in level, making it easy to access on foot and by car. The front of the site faces northwest, with an empty site that is currently under construction and is planned to be a knowledge industry center in the future, and an already established park. On the right side, there is an elementary school building adjacent to it, and on the left side, there is a neighborhood living facility building separated by an 8m road, and the rear is adjacent to an apartment building. Since it is located at a crossroads and the surrounding environment surrounding the site is different from parks, knowledge industry centers, schools, neighborhood living facilities, and apartments, we thought it was necessary to carefully read the urban context and reflect it in the design. Fortunately, there was no problem with sunlight because the apartment located on the south side was a small three-story building, not a high-rise building like other apartment buildings in the area, but since the size of the apartment building was small, we considered that the church might be felt as an imposing building by the apartment residents, and we also wanted to reflect the architectural device to solve this in the design. 
CONCEPT 
Concrete that depicts the movement of light_ Without knowing how the surrounding landscape would be completed in the future, we planned a very simple form of mass to respond to the complex urban landscape and create a building that is not burdensome to our neighbors. When choosing the material of the building, just like when planning the shape of the building, our goal was to harmonize with the surrounding landscape. Concrete, which is simple in form and is already familiar to us living in the city, was a material that could melt well into the urban landscape. Among them, ‘rib concrete’ had a three-dimensional effect, unlike general concrete, so it was possible to express not only the texture of concrete but also the depth of light and shadow on the surface. Because the building was in a very simple shape, it was intended to add a depth of light to the surface through rib concrete and to complete the building in a more three-dimensional shape, giving it symbolism and presence as a religious building. 
However, because the same rib concrete feels completely different depending on the shape and spacing of the design, elevation studies were conducted in various shapes and intervals at the design stage. As a result, we chose the rectangular rib concrete with the most clear contrast between light and shadow as well as better workability than the semicircular shape. Later, in the formwork stage, various forms were tested in the wood-up to fully realize the delicate contrast between light and shadow, and a modular metal plate formwork was produced and constructed to minimize construction errors and use a reasonable budget. 
From morning to evening. And from spring to winter. As time and season change, light moves and portrays a new appearance of the church. The face of the building, which melds into the surrounding landscape and expresses its own light, seems to project the religious character of the church, which always works in a low-key position. Through this honest and frugal concrete property, the symbolic meaning of religious buildings was concisely expressed, and the elevation design that can highlight the building’s presence by contrasting light and shadow was completed. Rib concrete, which depicts the movement of light that changes over time, was one of the design elements and architectural devices that could quietly and reliably reveal its presence and symbolism in a very simple four-story building among high-rise buildings. 
Empty space, filled space_ We are more familiar with filled spaces than empty spaces. This is due to the fact that in dense cities, there are far more filled spaces than empty spaces for efficient space use. Although there are spaces that have been emptied out due to functional needs, such as concert halls and sports stadiums, this is not a space we frequently encounter in our daily lives. However, both empty and filled spaces coexist in this extremely daily place where members of the church gather every weekend. A small space that supports the church’s religious activities is a small space, and a large space that supports church events and events is a large space that supports the church’s events. In this way, the building’s empty space, like other empty spaces in the city, seems to have been planned only for functional needs, but there is another reason why there is an empty space in this building. According to the overall zoning plan of the building, the filled space is placed at the front, and the empty space is placed at the rear, which is functionally more frequently used, at the front, to enable smooth lighting, while the empty space is placed at the rear, so that it can be used as a buffer space between high-rise apartments and buildings located on the south side of the land. In addition, by drawing light into the interior through the skylight of the empty space, it was intended to introduce natural light as much as possible into the rear space, which is relatively less skylight than the front. The space emptied in this building is an essential space both functionally and in the context around the land. 
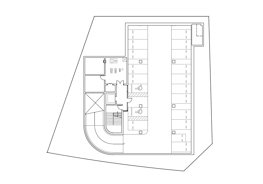
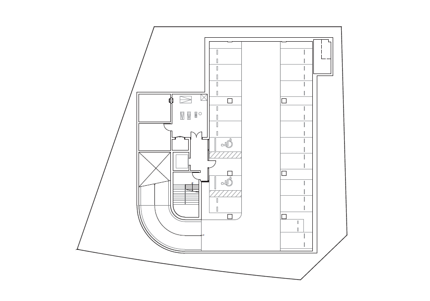
An easy-to-considerate architecture_ For religious people, the church is a friendly and familiar space. However, if the color becomes too strong, it will naturally feel burdensome because it is an unknown space that is unfamiliar to non-religious people. Even if it is not a particularly tall building compared to its surroundings, it can be burdensome for non-religious people due to the nature of religious architecture that is built in reality and reproduces religious values. This building has one basement floor and four floors above the ground, and it was not a tall building compared to its surroundings, but as mentioned earlier, if religious symbolism was overemphasized, there was a possibility that it could become a burdensome building, so we tried to avoid it as much as possible. This is because he thought that a building that only pursues his beliefs without caring for its neighbors contradicted the church’s teachings that talk about equality and love to everyone, regardless of whether they are religious or non-religious. In order to realize the religious value of Christianity that equally talks about love to everyone, I thought it should be a space where all citizens felt welcome. 
Therefore, the first floor of the building exposed to pedestrian eyes is open with transparent glass to induce a natural inflow of people, and the second and third floors are planned with solid rib concrete in contrast to complete the church’s face with a simple yet frugal appearance so that it can be approached in a way that is not burdensome to neighboring neighbors. 
EPILOGUE : Silently Settled Church 
In the urban landscape surrounded by high-rise apartments, this project had to reveal its symbolism and presence as the only religious building near the target site. It was not difficult to give symbolism to religious structures, but it was a very demanding task to give them symbolism and to make them naturally blend into the surrounding landscape. The church also had to be simplified in order to approach the neighbors in an effortless way. We were concerned that the more colorful and diverse the materials used for the elevation, the more colorful they would look, so we minimized the diversity of materials to express the frugal attitudes and postures of religion architecturally. The material chosen in this way was also made of transparent glass and solid concrete so that the elevation could be read simpler and simpler. The simplicity and simplicity of ribcrete elevation, which changes with the movement of light, highlights the church’s symbolism and presence in the cityscape. 
Despite being a church building, it was designed with a very simple mass and elevation, a material called concrete that can naturally dissolve in the city despite being a church building, and through the empty space, it creates an appropriate sense of distance between the residents of existing apartments and the newly established church members in the city. All of these were architectural gestures intended to settle quietly in the city center for harmony and to overcome the differences in the characteristics of disparate spaces such as residential and religious facilities. Through these designs, we attempted to complete a design that respects the urban context while realizing religious values.









| 늘푸른 교회 설계자 | 김민호 _ 주식회사 코드아키텍츠건축사사무소 건축주 | 김근중 _ 늘푸른교회 감리자 | 이윤기 _ (주)원엔지니어링 건축사사무소 시공사 | 김민기 _ (주)넥스트건설 설계팀 | 박근홍, 홍동관 설계의도 구현 | 주식회사 코드아키텍츠건축사사무소 대지위치 | 경기도 화성시 반월동 39 주요용도 | 종교시설(교회) 대지면적 | 1,323.00㎡ 건축면적 | 708.34㎡ 연면적 | 2,490.31㎡ 건폐율 | 53.54% 용적률 | 136.23% 규모 | B1F - 4F 구조 | 철근콘크리트구조 외부마감재 | 리브 노출콘크리트, 노출콘크리트 내부마감재 | 노출 콘크리트 마감, 지정 컬러 비닐페인트 마감 설계기간 | 2021. 06 - 2021. 12 공사기간 | 2022. 01 - 2023. 03 사진 | 구의진 구조분야 | (주)이든구조컨설턴트 기계설비분야 | 서인엠이씨 전기·소방분야 | 아이에코이엔지  | 
EVERGREEN CHURCH Architect | Kim, Min Ho _ KODE Architects Client | EVERGREEN CHURCH Supervisor | Lee, Yoon Gi _ One Engineering Architects Office Construction | Kim, Min Gi _ Next Construction Co., Ltd Project team | Park, Geun hong / Hong, Dong kwan Design intention realization | KODE Architects Location | 39, Banwol-dong, Hwaseong-si, Gyeonggi-do, Korea Program | Church Site area | 1,323.00㎡ Building area | 708.34㎡ Gross floor area | 2,490.31㎡ Building to land ratio | 53.54% Floor area ratio | 136.23% Building scope | B1F - 4F Structure | RC Exterior finishing | Exposed concrete Interior finishing | Exposed concrete, Vinyl paint Design period | Jun. 2021 - Dec. 2021 Construction period | Jan. 2022 - Mar. 2023 Photograph | Gu, Uijin Structural engineer | Eden Structural Consultant Mechanical engineer | Seo-in MEC Electrical·Fire engineer | I-Eco ENG  | 
'회원작품 | Projects > Religious' 카테고리의 다른 글
| 최양업신부 탄생기념경당 2024.12 (0) | 2024.12.31 | 
|---|---|
| 김포 성인교회 2024.10 (0) | 2024.10.31 | 
| 회원 첫 작품_약수교회 2024.5 (0) | 2024.05.31 | 
| 세종중문교회 2023.11 (0) | 2023.11.30 | 
| 새문안교회 추모관 2022.6 (0) | 2023.02.20 | 
