2024. 12. 31. 10:30ㆍ회원작품 | Projects/Factory
POLE Factory

폴 공장(POLE Factory)은 기계와 사람이 유기적으로 연결되는 공간 구성을 중심으로 특별한 의미를 담았다. 우리는 고유한 생산 프로세스의 연속성을 유지하면서도 기계와 사람의 공존을 지원하기 위해 공간 배치에 여러 요소를 신중히 고려해 설계했다.
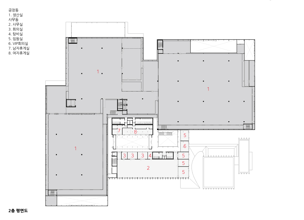
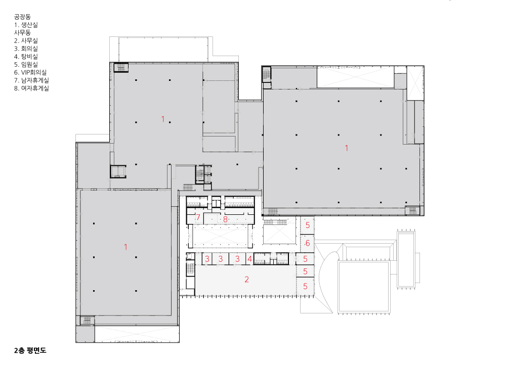
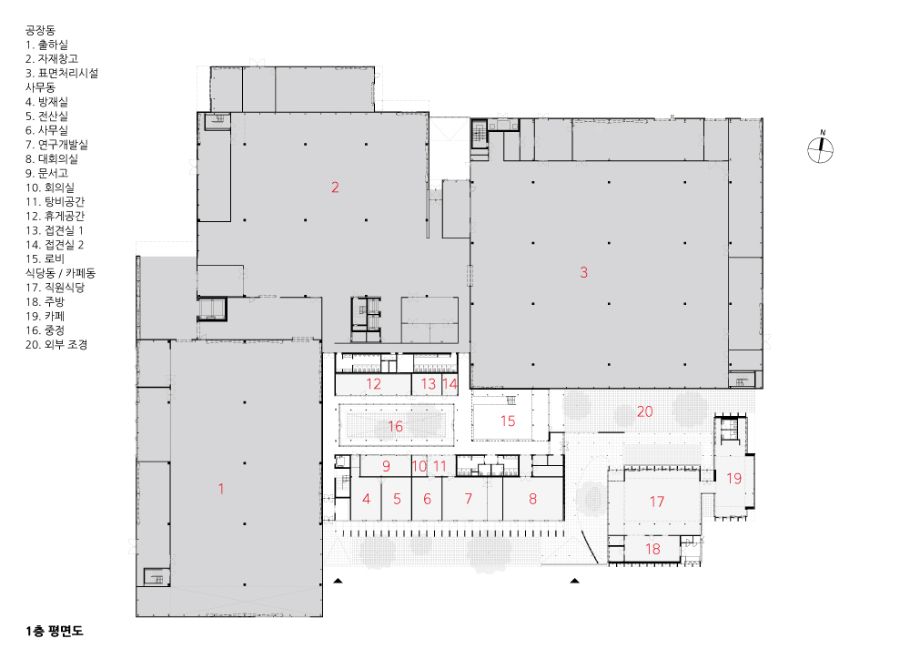
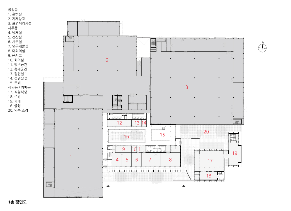
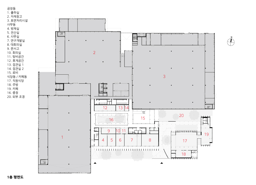
공장동과 부대동의 유기적 연결
일반적으로 공장과 부대시설을 독립적인 동으로 분리하지만, 우리는 24시간 운영되는 특성에 맞춰 폴 공장을 사무, 관리, 휴식 공간을 제조 과정과 밀접하게 연결했다. 이를 통해 작업 효율성과 관리 접근성을 높였으며, 각 공간이 서로 쉽게 접근할 수 있도록 동선을 최적화했다.
자연과의 관계
폴 공장은 산들로 둘러싸인 산업단지 내에 위치한다. 공장은 법적으로 조경이 필요하지 않음에도 불구하고, 원경과 공장 사이에 세 곳의 조경 공간을 배치해 기존의 산세를 회복하고 근경과 원경을 건축물과 중첩시켜 시각적으로 조화롭게 보이도록 했다. 멀리 보이는 산과 다양한 조경을 통해 계절별 변화를 경험할 수 있는 시각적 요소를 추가함으로써 건조한 산업 환경에 생동감을 불어넣었다. 매일 이 공간을 사용하는 이들에게는 자연 속에서 쉼과 여유를 느낄 수 있는 환경을 제공했다. 식당동과 카페동도 중정을 통해 자연스럽게 연결하여 쾌적한 쉼터로 활용하도록 설계했다.
동선의 구성
자동화를 염두에 두고 순환 동선을 계획하여 공정 변화에 유연하게 대응할 수 있도록 설계했다. 중심 코어를 활용한 순환식 동선을 통해 향후 생산 라인의 자동화 및 최적화에 맞춰 유연하게 조정할 수 있는 장기적인 확장 가능성을 확보했다.
재료
건축물 외피에는 스테인리스 스틸과 알루미늄을 사용했다. 배터리 단자의 소재인 알루미늄과 니켈에서 영감을 받아, 건축물 표면에 이 선형적 움직임을 반영했다. 특히 깊이 있는 스테인리스 스틸 루버를 사용해 공장의 각 매스(사무동, 식당동, 카페동)를 일체감 있게 묶으면서도, 각 매스가 미세한 디테일 차이를 통해 개별적인 표정을 드러내도록 했다. 내부에도 수직 패턴을 연장하여 천장에 알루미늄 루버를 적용해 일관성 있는 분위기를 연출했다.
이 프로젝트를 통해 기계와 사람이 한 공간 내에서 조화롭게 상호작용할 수 있는 환경을 구축함으로써, 단순한 생산시설을 넘어 일하는 이들에게도 쾌적하고 효율적인 업무 공간을 제공하는 데 중점을 두었다.




The POLE Factory focuses on a spatial layout that organically connects machinery and people, embodying a deeper significance. We meticulously considered various elements to design the layout of this factory to maintain the continuity of its unique production processes while supporting the coexistence of machines and people.
Organic Connection Between Factory Buildings and Auxiliary Facilities
Typically, factories and auxiliary facilities are separated into independent buildings. However, we connected the administrative, management, and rest areas closely with the manufacturing process to accommodate the 24-hour operation of the Paul Factory. This approach enhanced work efficiency and management accessibility while optimizing the flow so that different spaces could easily interconnect.
Integration with Nature
The Paul Factory is situated in an industrial complex surrounded by mountains. Despite not being legally required to have landscaping, we created three landscaped areas between the factory and the distant views to restore the original mountainous landscape. We overlapped the foreground and background with the architecture to create a visually harmonious composition. By adding visual elements such as distant mountains and diverse landscaping that reflect seasonal changes, we aimed to breathe life into an otherwise arid industrial environment. This design offers users of the space a sense of relaxation and tranquility amidst nature. The dining hall and café were also naturally connected through a courtyard, providing comfortable rest areas.
Circulation
We planned a circulation flow with automation in mind, allowing flexible adaptation to changes in the production process. By utilizing a central core, we established a circular flow that supports the future automation and optimization of production lines, ensuring long-term scalability.
Materials
For the exterior of the building, we used stainless steel and aluminum. Inspired by the linear motion of materials like aluminum and nickel used in battery terminals, we incorporated these linear patterns onto the building’s surface. The deep stainless-steel louvers connect the various masses of the factory (administration, dining, and café areas) into a cohesive whole while allowing subtle differences in detail to give each mass its unique character. We extended these vertical patterns indoors by applying aluminum louvers to the ceilings, creating a consistent atmosphere throughout the space.
Through this project, we have focused on creating an environment where machines and people can interact harmoniously within a single space. This approach transforms the facility from a mere production site into a pleasant and efficient workspace for its users.



심사평
제조업 기반의 공장은 크게 생산 기능을 담는 공장동, 사무 및 복리시설을 담는 부속동으로 구분된다. 공장동은 현재 생산 공정뿐 아니라 향후 증설까지 대비해 단일 규모의 대공간을 취하고, 그래서 경관에의 영향은 지대하다. <POLE 공장>에서는 이러한 전형을 벗어난 크고 작은 여섯 개의 박스가 군집을 이루고 있다. 여기에는 현재 예측 가능한 수요 변동과 미래의 불확실성에도 계획안이 유연하게 작동할 수 있음을 보여준 설계자의 집요함과 그 가치를 이해하고 설계자의 비전을 받아들인 건축주의 신뢰가 있다. 설계자는 세 개의 공장동, 사무와 휴게공간, 식당, 카페를 나누어 안으로는 복도와 외부 회랑, 이층 높이의 보이드와 중정으로 연결하고, 밖으로는 기능을 넘어 더 큰 맥락에 대응하는 외피의 전략으로 통합한다. 조경가는 공장이 위치한 지역의 산에서 옮겨온 나무들을 각기 다른 역할과 위치의 특성을 반기며 초대하는 전면 조경, 산책과 만남이 이루어지는 정원, 일과 쉼을 오가는 반복적 일상의 구심점으로서의 중정에 따라 이식해 고유한 환경적 퀄리티를 만들어 낸다. 공장을 공장이 아닌 것처럼 보이게 하는 미학이나, 기계의 공간보다 사람의 공간이 더 중요하다는 리얼리티를 부정하는 윤리적 태도를 취하지 않는다. 낮과 밤, 계절의 변화와 무관하게 균질한 기계의 시간과, 집중과 쉼의 리듬, 틈이 필요한 사람의 시간, 그리고 그 사이에 더 깊은 호흡과 더 긴 정착이 필요한 나무의 시간들을 대등하게 다루려는 설계자의 태도가 이 특별한 공장 건축에 담겨 있다.
Commentary
Manufacturing-based factories are typically divided into a main production building for manufacturing functions and an annex for offices and welfare facilities. The production building generally features a single large space to accommodate current processes and future expansion, making a significant visual impact on the landscape. The POLE Factory breaks away from this convention with a cluster of six large and small interconnected boxes. This design reflects the architect’s persistence in creating a flexible plan that can adapt to current demand fluctuations and future uncertainties, along with the client’s trust in and understanding of the architect’s vision. The architect organized the space by separating three production buildings, office and rest areas, a dining area, and a cafe, connecting them internally through corridors, external walkways, double-height voids, and courtyards, and unifying the exterior through a strategic outer skin that responds to broader environmental contexts. The landscape architect transplanted trees from the surrounding mountains, creating a distinctive environmental quality with a layered approach: a frontal landscape that welcomes varied functions and characteristics, gardens that foster walking and interaction, and a central courtyard that serves as a focal point in the daily rhythm of work and rest. The design does not attempt to make the factory appear non-industrial, nor does it adopt an ethical stance that places human spaces above machine spaces. Instead, it embraces a balanced approach that respects the unique rhythms of each element: the homogeneous time of machines, unaffected by day, night, or seasonal changes; the human need for intervals of focus and rest; and the slower, more enduring time needed by trees to settle and grow deeply. This thoughtful balance is embodied in the architecture of this exceptional factory.


| POLE Factory 설계자 | 김수영 _ (주)숨비건축사사무소 시공자 | (주)태인이앤씨 건축주 | 주식회사 폴 감리자 | (주)동화건축사사무소 설계팀 | 박유정, 권슬기, 이주희, 김나영, 강지영 설계의도 구현 | (주)숨비건축사사무소 대지위치 | 충청북도 청주시 청원구 오창읍 두릉유리로 52 주요용도 | 공장 대지면적 | 21,765.70㎡ 건축면적 | 10,167.23㎡ 연면적 | 18,749.31㎡ 건폐율 | 46.71% 용적률 | 85.17% 규모 | B1F - 2F 구조 | 일반철골구조 외부마감재 | 알루미늄시트, 스테인리스스틸 복합시트, 글라스울패널 설계기간 | 2021. 08 - 2022. 04 공사기간 | 2022. 04 - 2023. 10 사진 | 신해수 _ 텍스처 온 텍스처 / 김보경 구조 | (주)하모니구조엔지니어링 기계 | 주식회사 주성이엔지 전기/ 통신 | 주식회사 청송이앤지 소방 | 주식회사 주성이엔지, 주식회사 청송이앤지 |
POLE Factory Architect | Kim, Sooyoung _ SU:MVIE ARCHITECTS Construction | TAEIN E&C Client | POLE Co., Ltd. Supervisor | Donghwa Architects Office Co., Ltd Project team | Park, Yujung / Kwon, Seulki / Lee, Juhee / Kim, Nayoung / Kang, Jiyoung Design intention realization | SU:MVIE ARCHITECTS Location | 52, Dureung-yuri-ro, Ochang-eup, Cheongwon-gu, Cheongju-si, Chungcheongbuk-do, Korea Program | Factory Site area | 21,765.70㎡ Building area | 10,167.23㎡ Gross floor area | 18,749.31㎡ Building to land ratio | 46.71% Floor area ratio | 85.17% Building scope | B1F - 2F Structure | Steel Structure Exterior finishing | Aluminum Sheet, Stainless Steel, Glass Wool Panel Design period | August, 2021 – April, 2022 Construction period | April, 2022 – October, 2023 Photograph | Shin, Haesoo _ Texture on Texture / Kim, Bokyung Structural engineer | Harmony Structural Engineering Co., Ltd. Mechanical engineer | Juseong Engineering Co., Ltd. Electrical engineer | Cheongsong ENG Co., Ltd. Fire engineer | Juseong Engineering Co., Ltd., Cheongsong ENG Co., Ltd. |
'회원작품 | Projects > Factory' 카테고리의 다른 글
| 아슬라 브루잉 컴퍼니 2024.11 (0) | 2024.11.30 |
|---|---|
| 수퍼빈 아이엠팩토리 2024.6 (0) | 2024.06.30 |
| 아산시 농업기술센터 농기계보관창고 2022.6 (0) | 2023.02.20 |
| 시스원 R&D 센터 2021.7 (0) | 2023.02.07 |
| (주)송도산업 동탄사옥 2020.8 (0) | 2023.01.18 |