2025. 1. 31. 11:10ㆍ아티클 | Article/칼럼 | Column
Passive Design Strategies for Sustainable Architecture

패시브 건축은 하자를 없애려는 노력의 산물
콘크리트는 단열재 대비 70%의 열손실 발생
지금 시점에서 모든 건축사가 알다시피 ‘패시브 설계기법’은 건축분야의 성능개선을 통해 탄소저감과 삶의 질을 높이고자 하는 노력을 통칭한다.
이 글은 이 ‘패시브설계기법이란 어떤 것이 있으며, 그 내용은 이런 것이다’라는 식상한 이야기를 또다시 하기보다는, 수십 년간 반복되고 있고 앞으로도 개선의 여지가 별로 보이지 않는 ‘하자’를 다루고자 한다. 패시브설계기법에서 하자부터 이야기하는 것은 ‘패시브건축물은 건축물의 기본적인 하자를 없애려는 노력의 산물’이기 때문이며, 이 길이 지속가능한 건축으로 가는 가장 올바른 길이기 때문이다.
설계
항상, 누구나, 모든 매체에서 “설계가 우선이다. 설계비 아끼면 안 된다. 설계를 제대로 해야 한다”라고 이야기하고, 결국 그렇게 되지 못한다. 원인을 극단적으로 짧게 표현하면 ‘비용의 가치만큼 건축사가 서비스를 하지 못하기 때문’이다.
지금까지 건축사의 서비스는 ‘법적 행정처리에 필요한 도서작성’를 기본료로 하고, 여기에 더 추가되는 비용은 이른바 ‘디자인 대가’였다. 문제는 이 디자인이라는 것이 “하자가 없는” 상태에서나 가치를 획득할 수 있다는 것이다. 누수, 결로, 곰팡이, 균열, 더위, 추위로 살기 어려운 건물에 디자인이라는 포장(실제로 정말 좋은 디자인을 포함)을 하면 한번 잡지에 나올 수는 있겠고, 또 일시적으로 유명세를 탈 수도 있겠지만... 이것이 집단의 신뢰까지 이어질 수는 없다. 이 기본적인 것을 챙기는 것이 ‘제대로 된 설계’이며, 제대로 된 설계가 전제된다면(비록 시간이 걸리겠지만), ‘설계가 우선’이라는 뜬구름식 표어가 있지 않더라도 건축주는 충분히 정당한 비용을 지불할 의사가 생길 것이다.
건축주는 건축사가 설계하는 도면에 당연히 하자가 없다고 생각을 하고, 설계비 안에 이미 이를 위한 비용이 포함되었다고 보고 있고, 그것이 당연하다.
그러나 만약 건축사가 “이 설계비는 하자 예방이 들어 있지 않습니다. 이 비용으로는 비가 샐 수도 있고, 결로가 생길 수도 있습니다”라고 이야기한다면 업무를 맡길 사람은 없을 것이다.
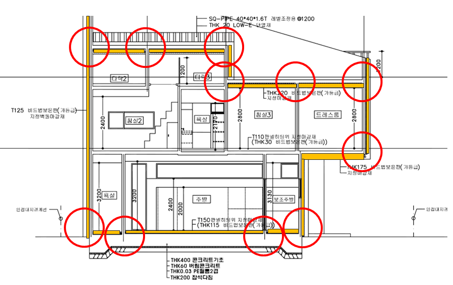
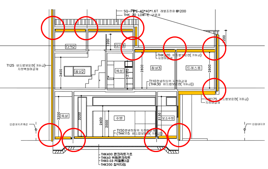
예를 들어 1970년대 이후로, 아래 도면에 표시된 열교 부위가 지금도 개선될 기미가 보이지 않는다는 것으로 방증할 수 있다.
또한 매년 보수가 반복되는 녹색의 노출우레탄방수를 벗어난 도면의 그 희박한 확률로도 증명될 수 있다. 우리는 이제 지하층의 방수에 더해서 평지붕의 방수도 포기할 때가 된 것인지도 모르겠다. 아래 사 진은 노출방수를 한 후, 15년 정도의 지속적인 누수로 인해 지붕 구조체가 손상된 모습이며, 오른쪽 도면은 독일의 어느 평범한 근생시설의 평지붕 단면도이다. 심각한 문제는 현시점에서 우리나라와 독일 건축물의 공사비 차이가 거의 없다는 것이다. 우리는 무엇을 쫓고 있었던 것일까?
작금에서 나타나는 모든 문제를 다 나열할 수는 없을 것이고, 그저 콘크리트 구조에서 최소한의 고려조건 몇 가지만 열거한다.


콘크리트 구조의 건조시간
콘크리트 구조가 평형함수율에 도달하는 데는 좋은 조건에서도 약 2년이 필요하다. 겨울에 타설 되면 그 보다 더 오래 걸린다. 그러므로 이 내부 수분의 증발량을 고려해야 곰팡이로부터 안전할 수 있다.
콘크리트의 열전달
콘크리트는 단열재 대비 약 70배 정도의 열손실이 있다. 그러므로 콘크리트는 단열재로 완전히 감싸 주어야 한다. 그래서 외단열로 설계되어야 한다.
마감재가 방수층이라는 착각
수직면에서는 마감재가 느슨한 방수층이 될 수는 있다. 그러나 결코 본격적인 방수층이라고 할 수 없다. 그러므로 모든 방수는 구조체 면이 될 수 있도록 계획되어야 한다.
그러기에 창틀과 구조체 사이에 방수테이프 등 건전한 방수조치가 되어야 한다. 또한 지상층이라도 모든 이어치기한 부분에 “지수판/지수제”가 계획되어야 하며, 이것은 외벽을 관통하는 모든 설비 배관에도 동일하게 적용된다. 이를 하다 보면 자연스럽게 기밀한 건물을 만들 수 있다.
방수층의 높이 표시
어느 부위에 어떤 종류의 방수를 하는지는 표시가 되나, 그 방수층이 어느 높이로 올라가는지는 인색한 도면이 많다. 이른바 치켜올림 표시인데, 의외로 이 정보의 부실로 인한 누수가 상당하다.
평지붕도 외단열/외방수가 가능한 것이 아니라, 그래야 한다.
요즘 회자되는 역전지붕(방수상부외단열지붕)으로 할 경우, 기존 내단열과 공사비 차이도 크게 나지 않는다. 아래는 외방수/외단열에 더해서 태양광 구조물도 구조체까지 연결되지 않고, 외단열 위에 올려놓은 괴산군립도서관이다.
이 글을 보시는 분들 중에는 ‘콘크리트에 단열재가 눌려서 찌그러진다’라는 분이 없길 희망한다.
단열재별 특성 고려
모든 단열재는 각각 열전도율, 흡수율, 압축강도, 휨강도, 경시변화, 화재 시 유출가스가 모두 다르다. 그러기에 건축 부위별로 단열재를 구분해서 사용해야 한다.
단열재를 관통하는 각종 철물
이를 보완하기 위한 많은 제품이 시장에 이미 나와 있다. 비용의 한계 내에서 적절한 사용을 충분히 숙고해야 한다.
경량 구조체의 방습층
에너지절약설계기준의 건축부문 의무사항에 ‘모든 난방을 하는 건축물은 단열재의 실내 측에 방습층을 두어야 한다’라고 되어 있다. 그러므로 목구조 건축물, 커튼월건축물 등 모든 건식구조의 건축물은 방습층이 있어야 한다. 이것이 되면 기밀은 보너스로 따라온다.
경사지붕의 통기층
공기의 온도와 건축물의 표면온도는 그 차이가 매우 크다. 경사지붕의 경우 여름철 표면온도는 약 60도까지 올라갈 수 있다. 그러므로 이 표면온도가 실내에 영향을 미치지 않도록 마감재 하부에 통기층을 두어야 한다. 평지부에서는 파쇄석을 까는 것으로 이 통기층의 역할을 대신할 수 있다.
촉가공 없는 석재 마감
뜬금없지만, 석재를 고정할 때 석재에 홈을 내서 철물에 고정하는 것이 아니라 철물에 에폭시 본드로만 붙이고 끝내는 건물이 너무 많이 늘고 있어 첨언을 하였다. 이 행위는 극단적인 표현으로 잠재적 살인미수에 해당한다.
지면의 한계로 이 정도만 언급을 한다. 지속가능한 건축물은 특별한 건물이 아니다. 그저 해야 할 것을 하는 건축물이다. 여기에서부터 패시브설계기법이 시작된다.

글·이미지. 최정만 Choi, Jungmann (주)자림건축사무소·건축사

최정만 건축사 · (주)자림건축사무소
최정만은 (주)자림건축사사무소 대표 건축사이자 (사)한국패시브건축협회 회장을 겸임하고 있으며, 현재 녹색건축인증제도 운영위원으로 활동하고 있다.
jungmann.choi@gmail.com
'아티클 | Article > 칼럼 | Column' 카테고리의 다른 글
| 동북아 최고봉 대만 옥산(玉山 : 3,952m) 등정기(2024년 11월 19일 ∼ 22일) 2025.2 (0) | 2025.02.28 |
|---|---|
| ‘도시, 변두리 이야기’꿈같은 수원, 변두리 생태계를 사수하다 2025.2 (0) | 2025.02.28 |
| 지속가능한 건축을 위한 인증제도의 개선 2025.1 (0) | 2025.01.31 |
| 새로운 미래를 건설하는 목조건축 2025.1 (0) | 2025.01.31 |
| [건축비평] 광명전통무형유산전수관, 존재와 시간의 건축 2025.1 (0) | 2025.01.31 |