2025. 2. 28. 10:15ㆍ회원작품 | Projects/House
Seoksu-dong detached house and cafe

석수동 단독주택 및 카페는 안양시 만안구 석수동에 위치하며, 2021년 설계를 시작해 2023년 완공된 건물이다.
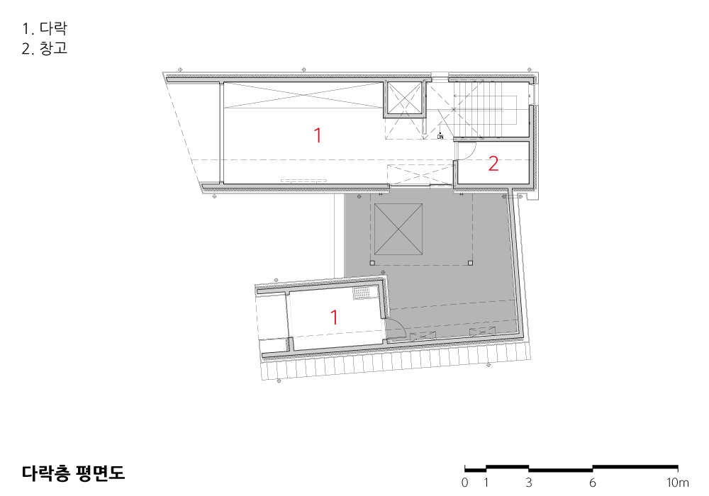
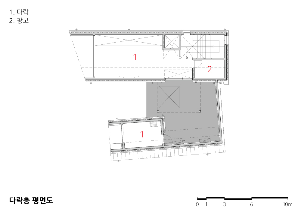
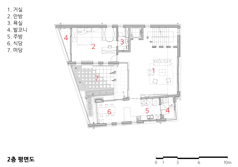
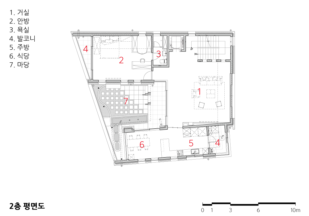
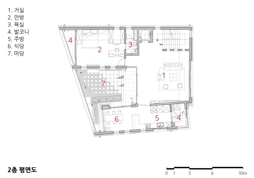
연면적 387.32제곱미터로 지상 1층부터 지상 3층, 다락층이 있는 규모이다. 지상 1층은 근린생활시설이 주를 이루며 주택 현관과 작은 홀이 함께 있다. 지상 2층부터는 주택이며, 외부 마당을 내부 공간들이 디귿(ㄷ)자로 둘러싸고 있는 형태이다. 3층의 내부공간 역시 디귿(ㄷ)자 형태로 마당을 둘러싸고 있다.
사람들이 많이 찾는 예술공원에서 프라이버시를 유지하면서 자연을 느낄 수 있도록 ‘ㄷ’자 중정 형태의 마당을 만들었으며, 마당을 통해 집안 깊숙이 햇볕과 관악산의 풍경이 들어올 수 있게 했다.
1층의 카페는 입구 쪽에 카운터와 주방을 두고, 안쪽 삼성천변에 넓은 매장을 두고 폴딩도어로 공간을 확장할 수 있게 하여 모든 좌석이 삼성천을 조망하며 여가를 즐길 수 있게 했다. 매년 봄이 되면 벚꽃 맛집으로 유명세를 치르고 있다.
주요 입면 부분은 비정형적인 박공지붕을 가진 두 개의 매스가 어우러져 있으며, 두 개의 박공지붕 매스들이 주는 아기자기한 느낌과 더불어 매스를 프레임으로 감싸 깔끔하고 정돈된 느낌 또한 느낄 수 있다.
외벽 재료는 베이지 톤의 석재를 사용해 진회색의 지붕과 함께 차분한 느낌을 준다. 또한 지상 1층에 적벽돌을 사용해 포인트를 주면서 건물의 하부를 잡아줘 건물이 전체적으로 안정되어 보이게 디자인했다.




Located in Seoksu-dong, Manan-gu, Anyang-si, the Seoksu-dong single-family house and cafe was designed in 2021 and completed in 2023. The building has a total floor area of 387.32 square meters and consists of three above-ground floors and an attic. The first floor primarily houses neighborhood living facilities, along with a residential entrance and a small hall. The second and third floors are residential spaces, with outdoor courtyards designed in the shape of the Korean letter “ㄷ,” which the indoor spaces surround. The third-floor layout similarly encircles the yard in the same shape.
The “ㄷ”-shaped courtyard was created to provide privacy while allowing residents to experience nature, even in the bustling area near the popular art park. This courtyard design brings sunlight and views of Mt. Gwanak deep into the home, fostering a connection with the outdoors.
On the first floor, the cafe’s design maximizes its connection with the surrounding environment. The counter and kitchen are positioned near the entrance, while a spacious seating area overlooks the Samseongcheon Stream. Folding doors expand the indoor space to the outside, enabling all seating to offer views of the stream, making it an ideal spot for relaxation. The cafe has become a well-known destination for cherry blossom viewing every spring.
The main façade features two masses with irregular gable roofs, creating a charming and playful aesthetic. These masses are framed to produce a clean and organized appearance. The exterior walls are clad in beige-toned stone, paired with a dark gray roof, lending the structure a calm and composed ambiance.
To add visual interest and stability, the first floor incorporates red clay bricks, grounding the building and giving it a balanced and secure overall look.







| 석수동 단독주택 및 카페 설계자 | 김재정_(주)건축사사무소 다보건축 건축주 | 김재형 감리자 | 옥토건축사사무소 시공사 | 대영종합건설(주) 설계팀 | 현구헌, 김예은 설계의도 구현 | (주)건축사사무소 다보건축 대지위치 | 경기도 안양시 만안구 예술공원로 240 주요용도 | 근린생활시설 및 단독주택 대지면적 | 300.80㎡ 건축면적 | 180.45㎡ 연면적 | 388.12㎡ 건폐율 | 59.99% 용적률 | 129.03% 규모 | 3F 구조 | 철근콘크리트구조 외부마감재 | 샌드스톤, 치장벽돌, 고흥석 내부마감재 | 테라조타일, 원목마루, 실크벽지 설계기간 | 2021. 04 - 2021. 10 공사기간 | 2021. 10 - 2022. 11 사진 | 채수옥 구조분야 | 연이구조기술사사무소 기계설비분야 | 주식회사 이건엔지니어링 전기분야 | (주)전기설계 협인 소방분야 | 주식회사 이건엔지니어링 |
Seoksu-dong detached house and cafe Architect | Kim, Jaejung _ Davo Architects Group Co., Ltd. Client | Kim, Jaehyung Supervisor | Okto Architects Construction | Daeyoung General Construction Co., Ltd Project team | Hyun, Guhun / Kim, Yeeun Design intention realization | Davo Architects Group Co., Ltd Location | 240, Yesulgongwon-ro, Manan-gu, Anyang-si, Gyeonggi-do, Korea Program | Neighborhood living facilities and cafes Site area | 300.80㎡ Building area | 180.45㎡ Gross floor area | 388.12㎡ Building to land ratio | 59.99% Floor area ratio | 129.03% Building scope | 3F Structure | RC Exterior finishing | Sandstone, Dressing(ornamental) tiles, Granite Stone Interior finishing | Terazzo tile, Solid wood floor, Silk wallpaper Design period | Apr. 2021 - Oct. 2021 Construction period | Oct. 2021 - Nov. 2022 Photograph | Chae, Suok Structural engineer | Yeonui Structural Engineers Office Mechanical engineer | Leegun Engineering Co., Ltd. Electrical engineer | Electrical design Hyeobim Co., Ltd. Fire engineer | Leegun Engineering Co., Ltd. |
'회원작품 | Projects > House' 카테고리의 다른 글
| 서울 e편한세상 어반브릿지 2025.2 (0) | 2025.02.28 |
|---|---|
| 환영가(桓煐家) 2025.2 (0) | 2025.02.28 |
| 고소미 스튜디오 2025.1 (0) | 2025.01.31 |
| 유키즈 인더하우스 2025.1 (0) | 2025.01.31 |
| 다온주택 2025.1 (0) | 2025.01.31 |
