2025. 6. 30. 16:05ㆍ회원작품 | Projects/House
Layered House

레이어드 하우스 
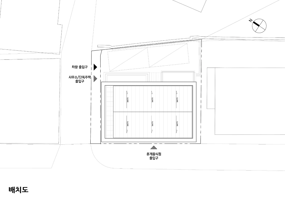
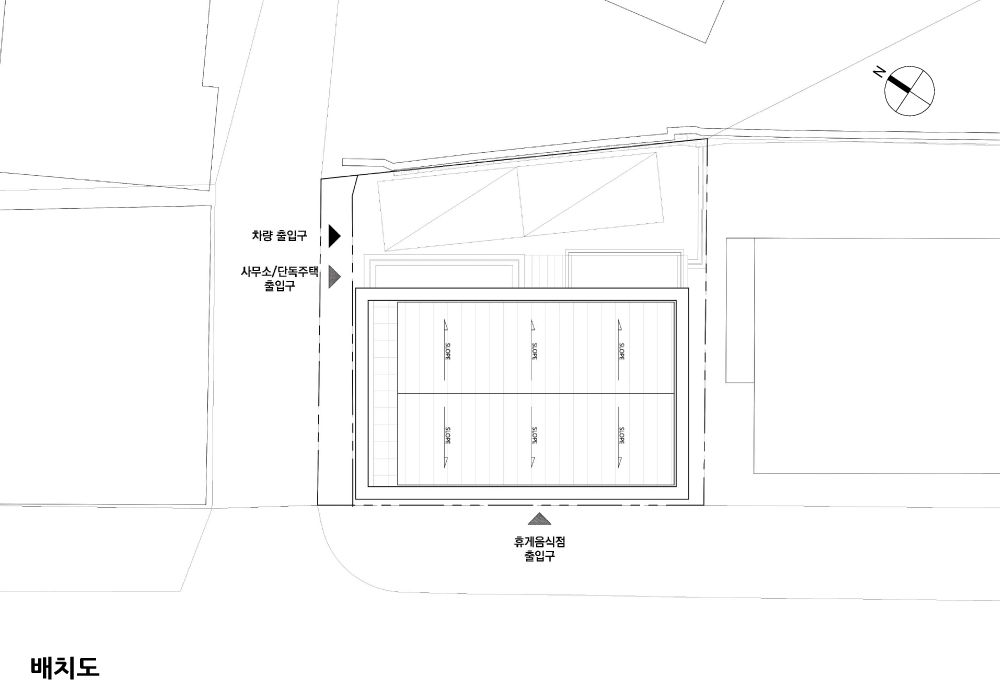
서대문구 연희동에서 남가좌동으로 넘어가는 길목에 위치한 레이어드 하우스는 비교적 평화롭고 한산한 동네의 대로변에 자리 잡고 있다. 막다른 도로에 따른 도로 확폭과 정북일조 사선 이격에 의해서 규모가 정해졌다. 개성이 강하고 자기만의 색깔이 뚜렷한 건축주는 아침부터 저녁까지 시간에 따라 빛이 다양하게 공간을 채워주고, 집 안 어디서나 가족이 서로의 존재를 느낄 수 있는 열린 공간을 계획했다. 따라서 공간의 경계를 모호하게 연결해 목적과 용도에 따라 공간을 크고 작게 사용할 수 있도록 하는 것이 설계의 콘셉트가 되었다. ‘거실’이나 ‘복도’와 같은 방식의 구분을 피하고, 생활 공간과 이동 통로가 애매하게 구분된, 여러 영역의 집합체로서의 공간이길 바랐다. 
의도한 빛, 의도치 않은 빛 
건축주는 시시각각 쏟아지는 빛과 그림자의 움직임을 통해 외부와 호흡하는 시간성을 경험하고 싶어 했다. 이를 위해 남향의 전면 파사드는 동일한 크기의 창을 연속적으로 배치해 의도한 빛을 최대한 받아들이고, 측면 창은 불규칙하게 배치해 의도치 않은 빛이 공간 곳곳에 들어오도록 했다. 디자인은 일상적 동네 가로에서 혼자 돋보이기보다는 주변 가로 풍경에 자연스럽게 녹아들기를 바랐다.
느슨한 경계와 자유로운 동선 
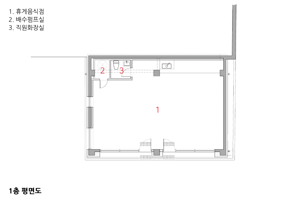
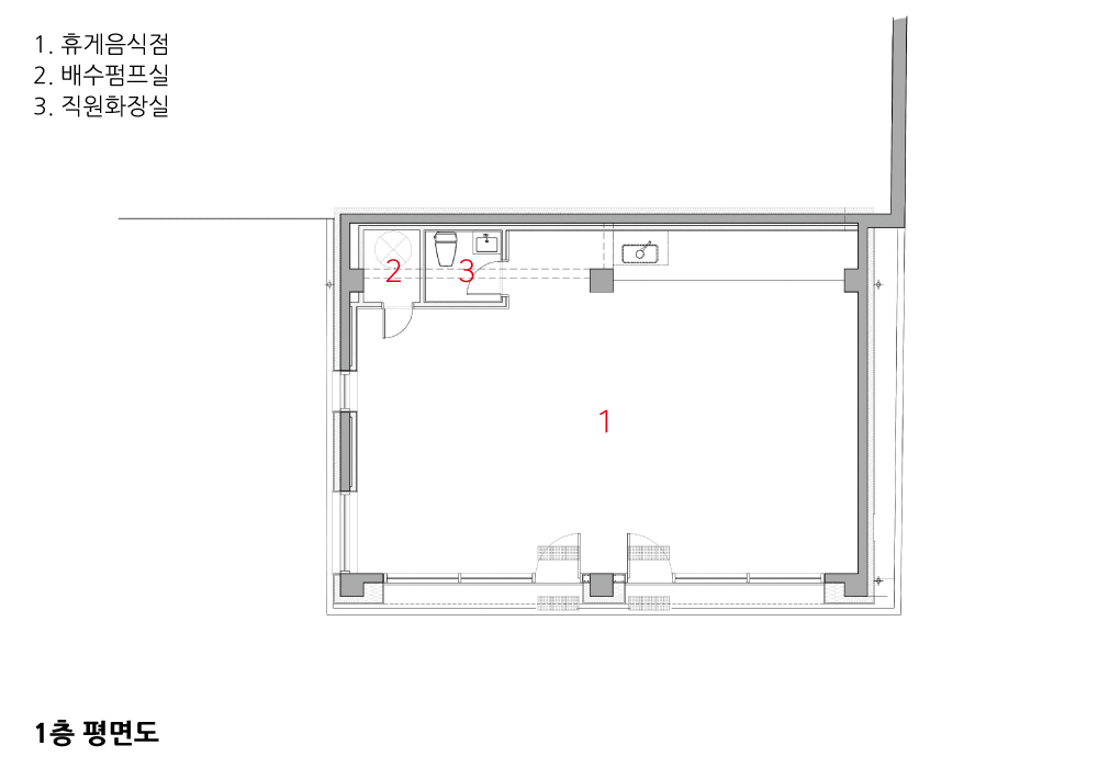
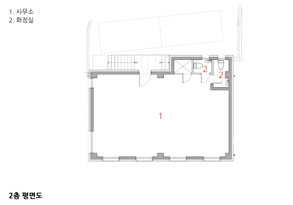
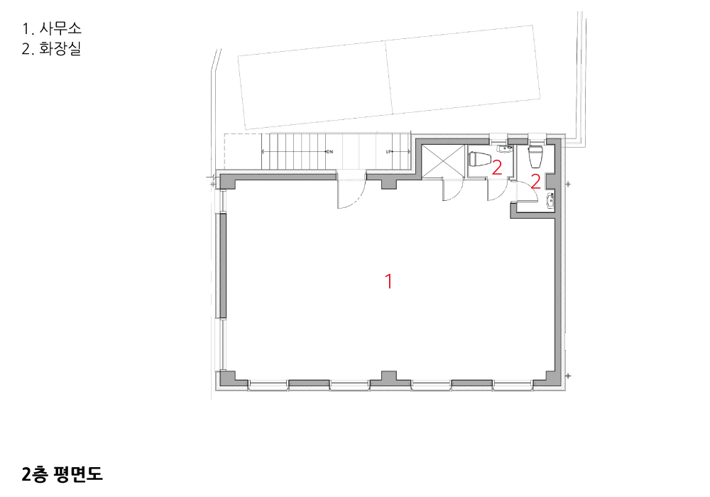
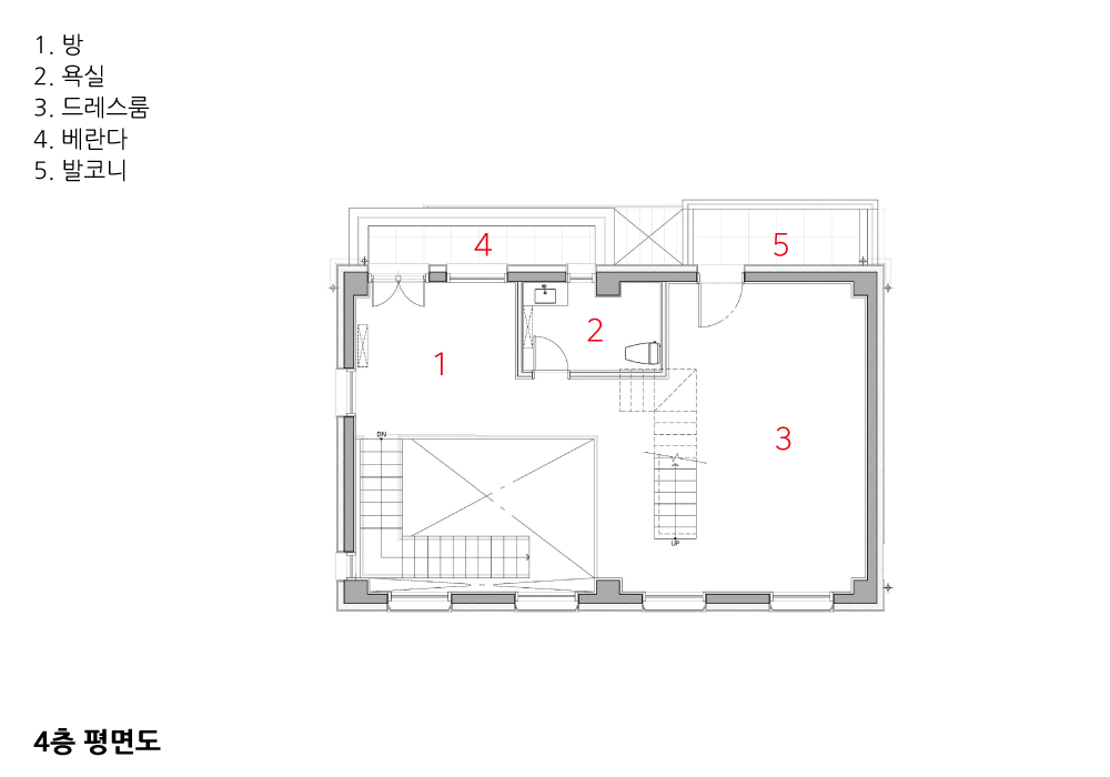
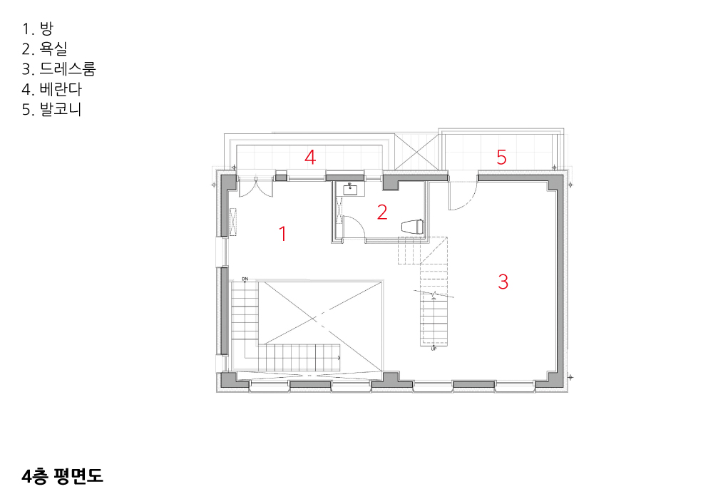
주택은 3층과 4층, 다락으로 구성했고, 내부는 물리적으로 구분하지 않고 느슨한 경계가 존재하는 공간으로 계획했다. 느슨한 경계는 공간을 유연하게 만들어주기도 하고, 개방된 하나의 공간으로 이어주기도 한다. 현관에서부터 다락까지의 동선은 산책하듯이 이어지며, 내부 공간의 풍성한 깊이감은 단단한 계단실을 통해 새로운 풍경을 만들어 낸다. 나무로 만든 계단은 조각처럼 섬세하고 그 위로 내려오는 고요한 빛은 집 깊숙이 스미고 퍼져 나가 공간을 가득 채운다. 또한, 창문을 통해 들어오는 반복적인 빛과 공간의 경계를 이루는 가구, 곳곳에 배치된 소품들이 어우러져 수많은 레이어를 만들어 낸다. 여름 창문 밖으로 보이는 플라타너스 나뭇잎의 소리와 그림자는 이 공간을 더욱 풍성하게 만들 것이다.




Layered House: A Home of Soft Boundaries and Light 
Located at the threshold between Yeonhui-dong and Namgajwa-dong in Seodaemun-gu, Layered House sits along a quiet, relatively peaceful main road. The building’s scale was shaped by local constraints, including a widened road due to a dead end and setbacks imposed by northern sunlight regulations. The homeowner, known for their distinctive personality and strong design sensibility, envisioned a home where light fills the space differently throughout the day, and where the presence of family can be felt from every corner. This led to a design that intentionally blurred spatial boundaries-allowing rooms to expand or contract depending on use, rather than being rigidly defined by purpose. 
The design avoids typical distinctions like “living room” or “hallway,” instead forming a collection of loosely connected zones that flow into one another. 
Intended Light, Unintended Light 
The client wanted to experience time through the movement of light and shadow breathing with the outside world. To capture this, the south-facing front elevation features a series of evenly spaced windows that invite in intentional, direct light. In contrast, the side walls are punctuated with irregularly placed windows, allowing unexpected shafts of light to enter and animate the interior. 
Rather than standing out in its neighborhood, the design seeks to blend subtly into the local streetscape-humble yet considered. 
Loose Boundaries and Free Flow 
The house comprises three floors and an attic. Internally, spaces are not defined by solid partitions but by soft, flexible boundaries. These allow spaces to remain open or become distinct as needed. Circulation from the entrance to the attic unfolds like a walk slow, exploratory, and layered. The experience of spatial depth is enriched by the central staircase, which forms the architectural heart of the home. 
The wooden stairs, crafted like a sculpture, are gently illuminated by filtered light from above. This light seeps through the structure, filling the house with a quiet luminosity. Layers of repetition emerge from the patterns of sunlight through windows, to furniture forming spatial thresholds, to everyday objects placed with care. Together, these create countless visual and emotional “layers” within the home. 
In summer, the rustling of plane tree leaves and the dappled shadows cast through windows will complete the experience-filling the house with sound, movement, and seasonal memory.









| 레이어드 하우스 설계자 | 이상민 _ (주)에스엠엑스엘 건축사사무소 감리자 | (주)에스엠엑스엘 건축사사무소 시공사 | (주)선오종합건설 설계의도 구현 | (주)에스엠엑스엘 건축사사무소 대지위치 | 서울특별시 서대문구 연희동 주요용도 | 단독주택, 제2종근린생활시설 대지면적 | 157.00㎡ 건축면적 | 94.03㎡ 연면적 | 313.07㎡ 건폐율 | 59.89% 용적률 | 199.41% 규모 | 4F 구조 | 철근콘크리트구조 외부마감재 | 지정벽돌타일마감, 징크패널 지붕재, 콘크리트폴리싱 내부마감재 | 벽-던에드워드 페인트(Dunn Edward Paint) 바닥-빈티지 원목마루 설계기간 | 2022. 07 - 2023. 01 공사기간 | 2023. 05 - 2023. 12 사진 | 김한빛 _ BEEZY STUDIO, 장순혁 _ HSPACE 구조분야 | (주)아크필구조 기계설비·전기·통신분야 | (주)에스이앤씨 인테리어 | 오하이오 컴퍼니  | 
Layered House Architect | Lee, Sangmin _ SMxL Architects Supervisor | SMxL Architects Construction | Seono Construction Design intention realization | SMxL Architects Location | Yeonhui-dong, Seodaemun-gu, Seoul, Korea Program | Single family house, Neighborhood living facilities Site area | 157.00㎡ Building area | 94.03㎡ Gross floor area | 313.07㎡ Building to land ratio | 59.89% Floor area ratio | 199.41% Building scope | 4F Structure | RC Exterior finishing | Interior finishing | Design period | 2022. 07 - 2023. 01 Construction period | 2023. 05 - 2023. 12 Photograph | Kim, Hanbit _ BEEZY STUDIO / Jang, Soon Hyuk _ HSPACE Structural engineer | ARCHFEEL Structure Engineering Mechanical·Electrical engineer | SENC Interior engineer | OHIO company  | 
'회원작품 | Projects > House' 카테고리의 다른 글
| 위드홈 2025.6 (0) | 2025.06.30 | 
|---|---|
| 씨엘블루 2025.6 (0) | 2025.06.30 | 
| 오산 정동헌(正東軒) 2025.6 (0) | 2025.06.30 | 
| 포트 앤 포트 2025.6 (0) | 2025.06.30 | 
| 양녕 청년주택 2025.5 (0) | 2025.05.31 | 
