2025. 7. 31. 11:40ㆍ회원작품 | Projects/Public
Library Wander

월계동의 유일한 공공도서관인 월계도서관은 월계동의 중앙에 위치한다. 월계로가 전면도로에 인접해 있어 교통이 원활하여 지역 주민들의 이용이 활발하다. 도서관으로서 유리한 동남향을 향해 배치된 기존 도서관은 영축산을 마주하고 있어 훌륭한 조망 조건을 확보하고 있다.
그러나 월계도서관은 건폐율과 용적률 및 일조사선제한의 틀 안에서 최대한의 면적과 기준층 3.9미터의 낮은 층고를 가지며, 지하 1층부터 지상 4층으로 단순히 쌓아 올린 전형적인 공공건축물의 형태를 취하고 있었다. 흔한 관공서를 연상케 하는 외관, 법적으로 요구되는 엘리베이터와 직통계단으로만 연결되는 건조한 동선 체계, 낮은 천장고에 답답하게 들어찬 서가로 숨 쉴 틈이라곤 조금도 찾아볼 수 없는 내부 공간은 15년밖에 되지 않은 도서관을 리모델링하는 원인이 되었다.
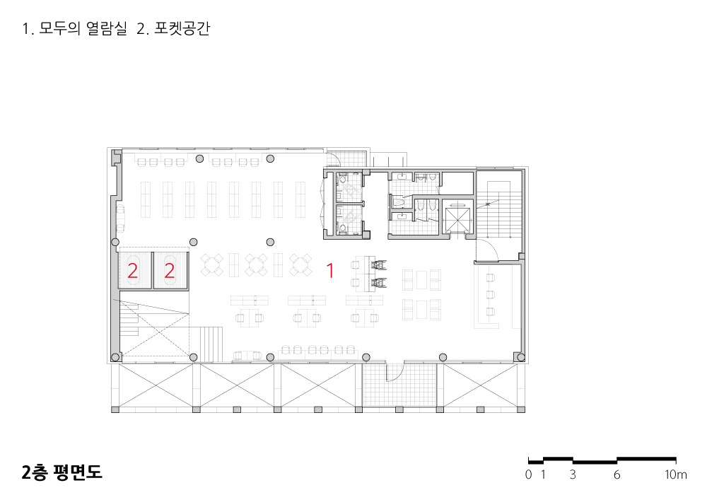
전면 파사드와 매스 사이에 새롭게 조성된 틈을 따라, 방문객은 건물의 내부와 외부를 드나들며 위치에 따라 달라지는 주변 풍경과 건물 내부를 경험할 수 있다. 정적인 분위기에서 책을 읽는 기존 도서관의 방식에서 한발 나아가, 책을 발견하고 읽고 사색하는 일련의 과정을 걷고, 앉고, 머물다가 떠돌아다니는 산책의 과정과 통합함으로써 지식과 정보의 공간을 독서와 사색을 하는 진화된 경험의 공간으로 바꾸고자 했다.




Wolgye Library, the only public library in the Wolgye-dong area, is centrally located and easily accessible due to its proximity to Wolgye-ro, a major local thoroughfare. Its advantageous southeastern orientation allows the building to open toward Yeongchuksan Mountain, offering excellent natural views—a rare asset for an urban library.
However, the original structure built only 15 years ago followed a typical model of public architecture. Restricted by zoning regulations such as building coverage, floor area ratio, and sunlight setback rules, the building was pushed to its legal limits. With a low ceiling height of 3.9 meters per floor and a stacked configuration from basement to fourth floor, it resembled a conventional government facility. The dull circulation composed solely of a legally mandated elevator and direct stairs—paired with low ceilings and dense, airless book stacks, created an interior that lacked any sense of spatial relief or inspiration. These shortcomings ultimately led to the decision to undertake a full-scale renovation.
The new design introduces a spatial gap a deliberate void between the front façade and the building’s mass. Visitors move through this in-between space, drifting between interior and exterior, experiencing both the surrounding landscape and the inner workings of the library from various vantage points.
Moving beyond the static model of sitting silently and reading in a confined room, the renovated Wolgye Library reimagines the act of reading as a journey. Here, discovery, contemplation, and immersion happen through movement: walking, pausing, lingering, wandering. The goal was to transform a space of storage into a space of experience a library not just for information, but for reflection, evolution, and personal connection with knowledge.












| 월계도서관 리모델링 설계자 | 김세경·민서홍 _ (주)엠엠케이엠 건축사사무소 건축주 | 노원구청 감리자 | 김대영 _ (주)종합건축사사무소 구일 시공사 | (주)원진건설산업 설계팀 | 임홍량 설계의도 구현 | 민서홍_ (주)엠엠케이엠 건축사사무소 대지위치 | 서울특별시 노원구 월계동 주요용도 | 교육연구시설(도서관) 대지면적 | 701.10㎡ 건축면적 | 401.59㎡ 연면적 | 1,980.01㎡ 건폐율 | 57.28% 용적률 | 199.41% 규모 | B1 - 4F 구조 | 철근콘크리트구조, 증축부 철골구조 외부마감재 | 투명로이복층유리 창호, 화강석, 칼라강판 내부마감재 | 포세린타일, 시멘트타일, 화강석, 강화마루 설계기간 | 2022. 07 - 2023. 04 공사기간 | 2023. 08 - 2025. 02 사진 | 이남선 구조분야 | SDM구조기술사사무소 기계설비·전기·소방분야 | (주)진원엔지니어링 |
Library Wander Architect | Kim, Sekyung · Min, Seohong _ MMKM associates Client | Nowon District Office Supervisor | Kim, Daeyoung Construction | Wonjin Project team | Yim, Hongryang Design intention realization | Min,Seohong_MMKM associates Location | Wolgye-dong, Nowon-gu, Seoul, Korea Program | Educational & Research Facility(Library) Site area | 701.10㎡ Building area | 401.59㎡ Gross floor area | 1,980.01㎡ Building to land ratio | 57.28% Floor area ratio | 199.41% Building scope | B1 - 4F Structure | RC+SS Exterior finishing | Clear Low-E double glazed window, Granite, Color-coated steel plate Interior finishing | Porcelain tile, Cement tile, Granite, Laminate flooring Design period | Jul. 2022 - Apr. 2023 Construction period | Aug. 2023 - Feb. 2025 Photograph | Lee, Namsun Structural engineer | SDM Structural Engineering Mechanical·Electrical·Fire engineer | Jinwon Engineering |
'회원작품 | Projects > Public' 카테고리의 다른 글
| 연천군 노인회관 2025.5 (0) | 2025.05.31 |
|---|---|
| 퇴계동 행정복지센터 2025.4 (0) | 2025.04.30 |
| 지역산업복지센터 2024.11 (0) | 2024.11.30 |
| 진영(부산) 복합휴게시설 2024.10 (0) | 2024.10.31 |
| 아이행복센터 2024.5 (0) | 2024.05.31 |

