2025. 12. 31. 11:15ㆍ회원작품 | Projects/Office
WHITE STRIPE

건축물부문│민간분야 대상 <GRAND PRIZE>
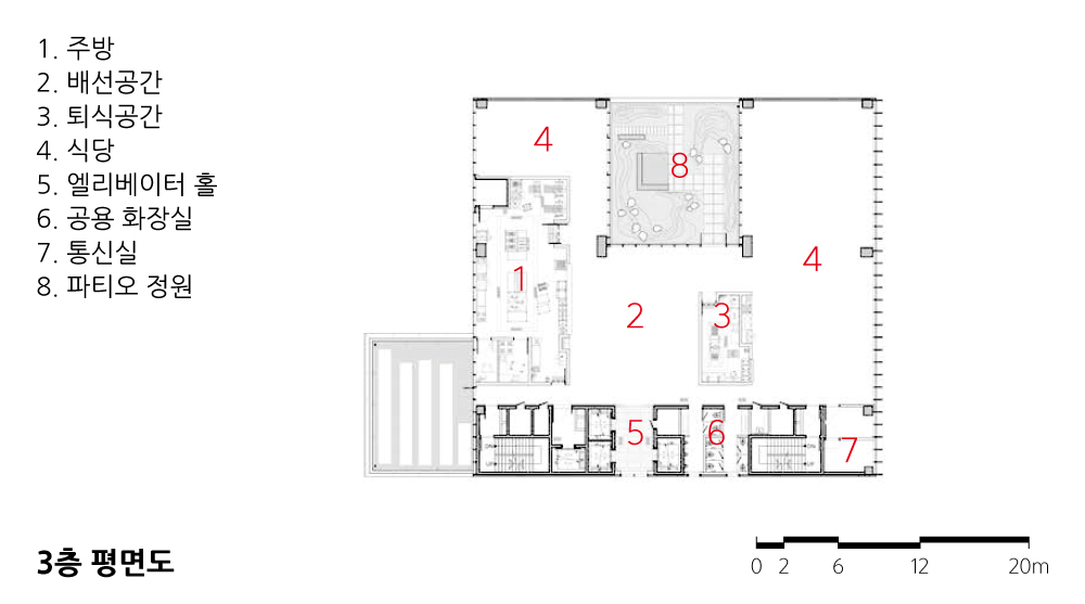
‘교촌 1991 빌딩’은 브랜드가 30여 년간 추구해 온 철학과 가치를 건축적 언어로 정제하여 표현하는 데 중점을 두었다. 요식업 종사자의 새하얀 유니폼에서 느껴지는 청결함과 순수함의 백색 이미지, 그리고 자연이 지닌 신선함과 생명력의 녹색 이미지를 파사드에 투영하여, 기업이 지향하는 투명성과 신뢰, 지속 가능한 성장의 철학을 건축 전반에 담아냈다.
판교 제2테크노밸리 내 삼거리 정면에 위치한 부지는 건축물의 정면성을 요구받았고, 그 결과 파사드가 강조된 디자인은 내부의 기능에 따라 3가지의 요소로 디자인하였다. 외부인에 개방된 저층부는 투명 유리를 사용해 공공성과 개방감을 강조하였다. 사무공간이 배치된 중층부는 1면 프린티드 글라스와 깊이 30cm, 60cm의 알루미늄 루버를 조합하여 시간의 흐름에 따라 빛과 그림자가 변화하는 입면을 연출했다. 프린티드 글라스와 루버의 2가지 요소에 빛과 그림자로 나타나는 네 가지 백색 컬러는 자연광의 각도와 강도에 따라 미묘하게 달라지는 색조를 만들어내며, 건물의 표정을 풍부하게 한다.
1면 프린티드 글라스는 다양한 패턴의 샘플작업을 통해 외부의 백색컬러와 내부의 투시성을 연구하여 적용하였다. 이는 시각적 효과뿐 아니라 냉방 부하를 절감하는 기능적 역할도 수행한다.
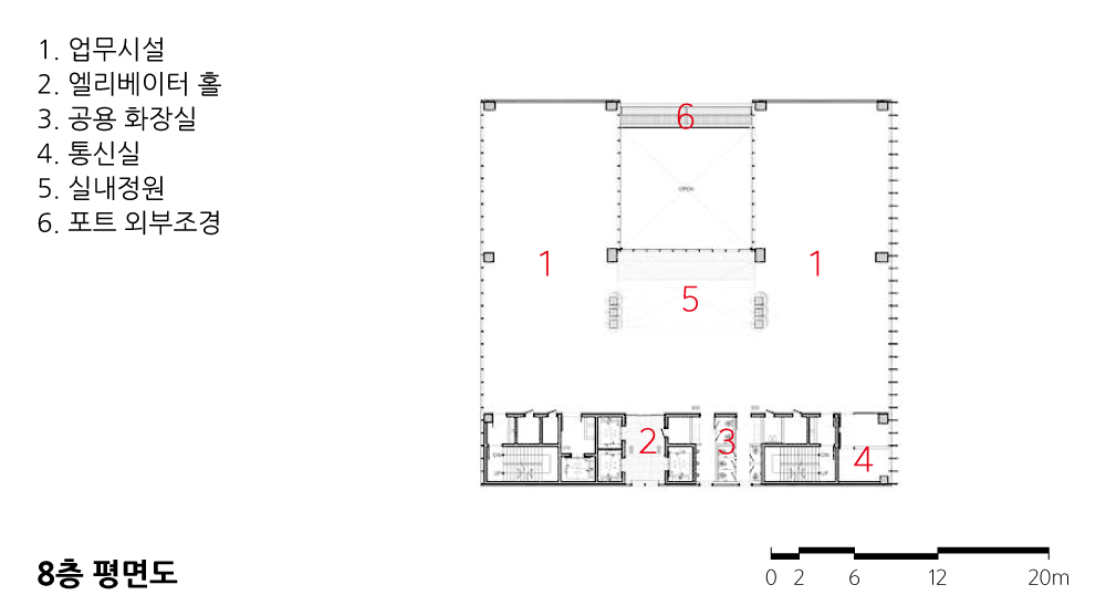
상층부에는 도심 속 공중에 떠 있는 자연의 숲을 형상화한 실내정원을 배치하고, 주 접근로에서 자연스럽게 올려다 보이도록 계획하였으며, 저층부의 화이트 이미지는 Sky Garden의 자연을 여백으로써 인지성을 높여준다. 그리고 Sky Garden의 천장은 보행자가 올려다보는 시선에 맞춰 경사진 형태로 디자인하여 시각적 개방감을 극대화하였다. 이 경사진 천장은 평시에는 경관조명을 활용해 수목의 그림자가 천장에 은은하게 드리워지고, 행사 시 천장에 3D맵핑을 통해 파사드의 다양한 연출이 가능하도록 설계했다. 이러한 공중정원은 이용자의 휴식뿐 아니라 외부에서도 주야로 외부 공공 보행자들에게 자연을 제공한다.
협소한 대지 조건을 극복하고자 건물 중심부에 파티오 정원을 배치해 자연 채광과 통풍을 확보함과 동시에, 내부 사용자에게는 시각적·정서적 휴식처를 제공하도록 디자인했다. 이 파티오에는 와이어 시스템과 관수 설비가 포함된 포트 식재 방식을 도입하여 덩굴 식물이 자라나며 자연스러운 그린월을 형성한다. 포트 구간에는 관리자 동선을 고려해 유지 관리의 효율성을 높였으며, 이를 통해 사무 공간 어디서나 살아있는 자연을 체험할 수 있는 치유의 공간으로 디자인하였다.
옥상정원은 최상층에 배치된 Sky Garden의 경사면과 다목적 강당의 높은 층고를 통해 다양한 단차를 형성하여 단순한 평면의 공간이 아닌 드라마틱한 입체적 공간을 형성하였다. 옥상정원 중앙에 놓인 수공간은 하늘의 구름을 담아내고 공간을 풍부하게 채워준다.
심사평
판교의 어느 장소에 새로운 산업을 위한 낯선 건물들이 일시에 들어선다. 현대적인 이미지를 위해 금속과 유리를 주요한 재료로 사용하며 저마다의 자태를 뽐내고 있다. 하지만 시간이 흐르면서 도시의 완성단계에서는 외벽유리 반사에 따른 빛공해의 문제가 대두되기 시작하였고 외벽의 유리를 통한 일그러진 투영이 도시경관을 왜곡하게 되었다. 이러한 상황에서 복잡한 도시블록의 틈에 그리 크지 않은 단정한 건물이 들어선다. WHITE STRIPE이다. 건축사는 도시의 이러한 문제를 섬세하게 고려하여 단정한 외관과 계절과 시간에 따르는 작은 변화와 연속성을 현명하게 제안한다. 유리의 특성을 살려 개방과 차단의 정도를 면밀하게 연구하였고 투시를 유지하면서 반사를 줄이는 열관류율의 조정으로 친환경적인 연구 또한 돋보인다. 내부의 실깊이를 감안하는 한쪽이 열린 중정에는 도시의 조형을 고려한 담쟁이 식물의 ‘green wall’을 제안하여 건축과 조경이 함께 건물의 조형을 조성한다는 내용을 담고 있다. 옥상에는 이용자를 위한 정원이 바람과 소리 등의 오감을 자극하며 건축 안의 새로운 자연을 강조한다. 건물 내부의 환경에도 건축사의 노력이 연속되어 외관에서 보이는 건축사의 의도는 일관되게 내부로 이어진다. 개방과 차단 그리고 은근한 투시가 공간을 다채롭게 구성하며 이용자의 호기심과 창의성을 드러내도록 유도하면서 회사의 사옥으로서의 역할을 정교하게 수행한다. 또한, 특정 회사의 사옥이면서도 공공의 역할을 강조하며 저층의 일부 영역이 인근 주민과의 교류를 통한 지역사회의 winter garden이 되도록 하는 계획이 돋보인다. 이러한 건축사의 노력과 뛰어난 역량을 인정하여 한국건축문화대상 민간부문 대상으로 선정한다.






The “Kyochon 1991 Building” focuses on articulating the brand’s 30-year philosophy and values through an architectural language. The façade draws from two symbolic colors: the clean, pure white associated with culinary workers’ uniforms, and the freshness and vitality of green found in nature. Together, these elements express the company’s aspirations for transparency, trust, and sustainable growth throughout the building.
Located at a prominent three-way intersection within Pangyo Techno Valley II, the site called for a strong architectural frontage. Accordingly, the façade was organized into three components that correspond to the building’s internal programs. The lower floors—open to the public—use transparent glazing to emphasize openness and approachability. The mid-level office floors combine printed glass with 30cm and 60cm-deep aluminum louvers, producing a shifting play of light and shadow as the sun moves throughout the day. The interplay of printed glass and louvers creates four subtle
shades of white that change with the angle and intensity of natural light, enriching the building’s overall expression.
The single-sided printed glass was developed through extensive sampling to achieve a balance between the exterior white hue and interior transparency. Beyond its visual effect, it also contributes to reducing cooling loads, adding functional performance to the façade system. The upper levels feature an indoor garden that evokes a floating urban forest, intentionally positioned so that it is visible from the primary pedestrian approach. The white tones of the lower façade act as a visual base, heightening the presence of greenery in the Sky Garden above. Its ceiling is tilted to align with the pedestrian’s upward view, maximizing a sense of openness. This sloped ceiling also accommodates various lighting effects: during normal operation, landscape lighting casts soft shadows of the trees onto the surface, while for events, 3D mapping can transform the ceiling into an extension of the façade’s visual identity. The elevated garden provides not only a place of rest for building users but also a glimpse of nature that is accessible to passersby day and night.
To overcome the limitations of a compact site, a central patio garden was introduced to secure natural light and ventilation while offering interior occupants a visual and emotional retreat. The patio employs a pot-based planting system with an integrated wire structure and irrigation equipment, allowing climbing plants to grow into a natural green wall. Maintenance routes were incorporated into the layout to ensure long-term efficiency. This interior courtyard becomes a restorative space where nature can be experienced from anywhere within the office environment.
The rooftop garden takes advantage of the sloped plane created by the Sky Garden and the high-ceilinged multipurpose hall, producing a dramatic, three-dimensional outdoor space rather than a simple flat terrace. A reflective water feature at its center captures the sky and clouds, completing a quiet yet expressive landscape at the top of the building.
Commentary
In Pangyo, a number of new buildings for emerging industries have appeared simultaneously, many emphasizing contemporary imagery through extensive use of metal and glass. As the district developed, however, issues such as light pollution from reflective façades and distorted reflections affecting the urban landscape began to surface. Within this context, WHITE STRIPE occupies a relatively modest site within a dense urban block, offering a restrained architectural alternative.
The architect responded to the surrounding conditions by proposing a controlled exterior expression and subtle transitions that vary with season and time of day. The glazing system was carefully studied to balance openness and privacy, while adjustments to thermal performance helped reduce reflectivity, demonstrating an environmentally conscious approach. A partially open courtyard considers the depth of the interior spaces and incorporates a green wall of climbing plants, aligning architectural form and landscape strategy. On the roof, a garden for users introduces natural sensory elements—wind, sound, and vegetation—reinforcing the presence of nature within the building.
Inside, the architect’s design intentions remain consistent. Spatial conditions are defined by calibrated levels of openness, screening, and controlled transparency, creating variety while supporting focus, curiosity, and creativity appropriate for a corporate headquarters. Notably, portions of the lower levels function as a “winter garden” accessible to local residents, establishing a degree of public interface despite the building’s private ownership.
In recognition of these efforts and the project’s refined execution, WHITE STRIPE has been selected as the Grand Prize winner in the Private Category of the Korea Architecture Culture Awards.















| 교촌1991빌딩 설계자 | 인의식 건축사_ (주)종합건축사사무소 연미건축 시공자 | 신동아건설(주) 건축주 | 교촌F&B 공동설계 | 장명희 _ (주)종합건축사사무소 연미건축 감리자 | 조윤성, 조성제 설계팀 | 조택제, 성진호, 장민혁, 최효정, 김태양, 김능현 설계의도 구현 | (주)종합건축사사무소 연미건축 대지위치 | 경기도 성남시 수정구 금토동 주요용도 | 업무시설 대지면적 | 1,976.00㎡ 건축면적 | 939.31㎡ 연면적 | 14,023.88㎡ 건폐율 | 47.54% 용적률 | 399.23% 규모 | B4 - 11F 구조 | 철근콘크리트구조 외부마감재 | 프린티드글라스, 저철분 로이삼중유리, 알루미늄 복합판넬 내부마감재 | 그리드 루버, 테라죠, 거창석(버너구이), 마천석(버너구이, 줄다듬), 패브릭, 도장 설계기간 | 2020. 03 - 2021. 03 공사기간 | 2021. 08 - 2023. 08 사진 | 남궁선 구조분야 | (주)아크필 기계설비분야 | 융도 엔지니어링 전기분야 | 한얼 엔지니어링 소방분야 | 한석 소방이엔씨 인테리어분야 | (주)건축사사무소 적재, 논스페이스 |
WHITE STRIPE Architect | In, Euisik _ YUNMI Architect Construction | SINDONGAH Client | KYOCHON F&B Collaborative design | Jang, Myeonghui _ YUNMI Architect Supervisor | Jo, Yunseong / Jo, Seongje Project team | Jo, Taekje / Seong, Jinho / Jang, Minhyuk / Choi, Hyojeong / Kim, Taeyang / Kim, Neunghyeon Design intention realization | YUNMI Architect Location | Geumto-dong, Sujeong-gu, Seongnam-si, Gyeonggi-do Program | Business facilities Site area | 1,976.00㎡ Building area | 939.31㎡ Gross floor area | 14,023.88㎡ Building to land ratio | 47.54% Floor area ratio | 399.23% Building scope | B4 - 11F Structure | RC Exterior finishing | Fritted Glass, low-iron low-e triple glazing, Aluminum Composite Panel Interior finishing | Grid Louver, Terrazzo, Geochang Stone (Flamed finish), Macheon Stone (Flamed, Line Chiseled finish), Fabric, Paint Finish Design period | Mar. 2020 - Mar. 2021 Construction period | Aug. 2021 - Aug. 2023 Photograph | Namgung, Seon Structural engineer | ARCHIFEEL Mechanical engineer | YUNGDO ENGINEERS&CONSULTANTS Electrical engineer | HAN-EULl ENGINEERING Fire engineer | HANSEOK Fire Service Interior | Jucje Architects, NONESPACE |
'회원작품 | Projects > Office' 카테고리의 다른 글
| 인탈리오 2026.1 (0) | 2026.01.30 |
|---|---|
| SK하이닉스 용인반도체클러스터 2026.1 (0) | 2026.01.30 |
| 선데이브런치 HQ 2025.10 (0) | 2025.10.31 |
| 제놀루션 송도 R&D센터 리모델링 및 증축공사 2025.9 (0) | 2025.09.30 |
| 매직스타워 2025.8 (0) | 2025.08.31 |
