2025. 12. 31. 11:20ㆍ회원작품 | Projects/Education
Jurye Open Library

건축물부문│공공부문 대상 <GRAND PRIZE>
주민이 만든 도서관
주례 열린 도서관은 원래 아파트 건립 부지였던 장소를 주민들의 지역 공공공간 조성 요청에 부응하여 사상구가 부지를 매입하고 설문 조사를 거쳐 공원, 도서관, 북카페 및 육아 종합 지원센터등의 프로그램으로 건립한 주민 주도형 공공사업이다.
주례 1, 2, 3동을 거점으로 하는 주례 도서관은 주변에 지역주민이 쉽게 접근 가능한 생활 녹지가 부족한 상황이어서 외부로는 녹지 공간을 최대화한 공원을 조성하고, 내부로는 발주처의 ‘열린 도서관’이라는 주제에 부합하는 개방적 형태의 지역 복합 문화공간을 제시하고자 하였다.
테라스를 이용한 확장된 공원
기존에 자생적으로 존재하던 숲을 보존하고 경사지에 4개 층의 조경화된 테라스를 끼워 넣어 대지 전체가 확장된 공원으로 인지될 수 있도록 계획하였다. 인근 아파트와 학교를 연결하는 외부계단 및 옥외 엘리베이터 동선상에 배치된 조경테라스는 주민들이 언제든지 자유롭게 이용할 수 있는 공원이자 쉼터가 된다.
‘열린 도서관’이라는 지역 문화공간으로서의 전형
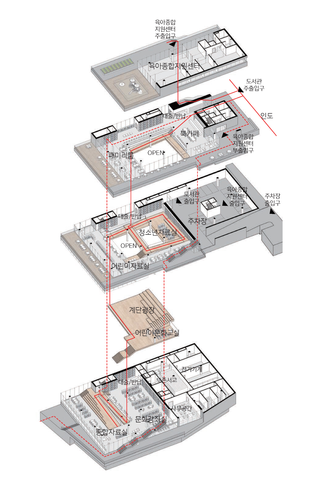
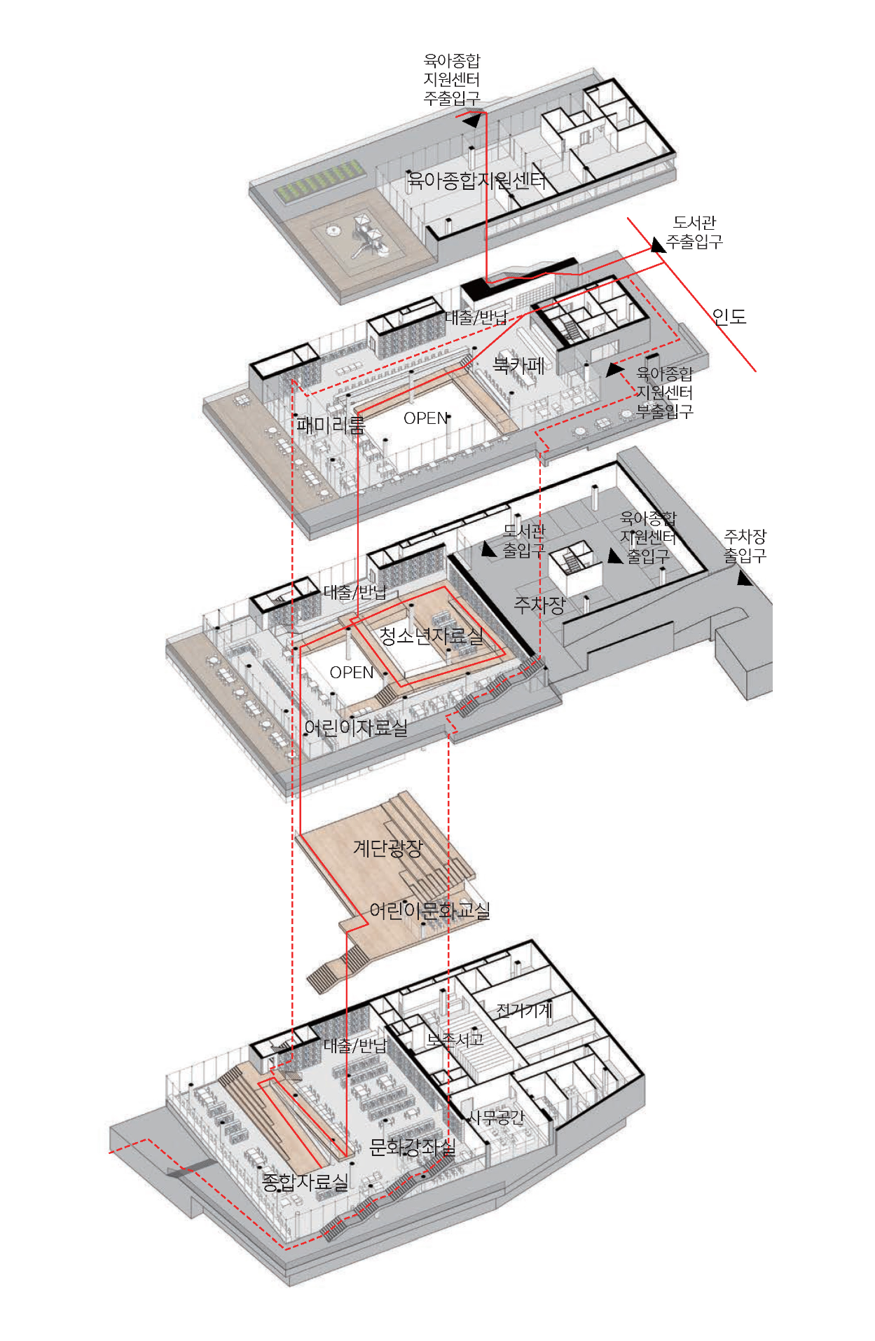
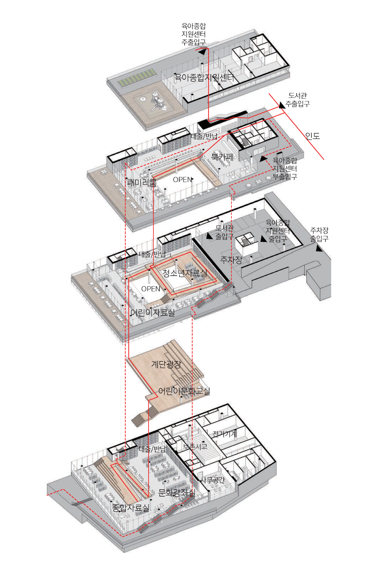
기존의 도서관은 로비, 어린이 열람실, 일반 열람실 등으로 분리되어 있어 가족들 역시 연령별로 분리되어야 하는 폐쇄적인 공간 형태를 지닌다. 이러한 문제를 해결하기 위하여 중앙 보이드, 스킵 플로어, 경사로, 계단 광장등의 건축적 장치를 통해 도서관 전체를 경계가 없는 하나의 열린 공간으로 조성하여 아이와 어른이 함께 머무를 수 있는 도서관을 만들고자 하였다.
심사평
주례열린도서관은 지역의 일상과 자연, 그리고 공공의 개념을 섬세하게 엮어낸 건축으로, 경사진 대지의 특성을 건축적 제약이 아닌 가능성으로 전환시킨 사례이다. 건물은 대지의 흐름을 따라 계단식 볼륨으로 계획되었으며, 중심에는 개방된 보이드 공간이 자리한다. 이 계단광장을 중심으로 스킵 플로어가 유기적으로 엮이며, 각 층의 공간이 서로 시각적·공간적으로 연결된다. 이용자는 계단을 따라 오르내리며 끊임없이 시선을 교차시키고, 내부와 외부가 자연스럽게 이어지는 입체적 공간 경험을 얻게 된다. 이러한 구성은 단순히 공간의 효율을 넘어, 도서관을 지역사회 속 열린 소통의 장으로 확장시킨다.
서측과 북측에서 자연광이 투과되어 들어오며, 목재 마감의 따뜻한 질감과 어우러져 밝고 포근한 실내 분위기를 형성한다. 이러한 자연채광은 보이드 공간을 중심으로 실내 전반에 은은하게 확산되어, 이용자에게 도서관의 중심성과 심리적 안정을 동시에 제공한다. 감성적인 재료의 사용과 색채 계획은 공간의 깊이를 더하며, 책과 사람, 자연이 조화를 이루는 서정적 공간미를 완성한다.
또한 계단식 볼륨이 외부로 확장되며 형성된 테라스 공간에는 다양한 텍스처의 식재와 조경선이 더해져, 자칫 건조할 수 있는 기하학적 구조의 단조로움을 해소하고 주변의 숲과 유기적으로 이어진다. 이러한 외부와의 자연스러운 연결은 주례열린도서관이 단순한 독서의 장소를 넘어, 지역 주민이 머무르고 교류하는 열린 풍경으로 기능하게 만든다.
결국 주례열린도서관은 경사지와 건축, 사람과 자연을 유기적으로 엮어낸 공공건축의 모범적 해석이라 할 수 있다. 공간의 흐름, 재료의 감성, 그리고 공공성의 실현이 균형을 이루며, 도서관이라는 유형을 새로운 도시적 풍경으로 재정의한 수작이다.




A Library Built by Its Community
Jurye Open Library is a community-driven public project developed on a site originally designated for apartment construction. Responding to residents’ calls for a shared public space, Sasanggu purchased the land and, through a series of surveys, established a program that includes a park, the main library, a book café, and a childcare support center. Serving the residents of Jurye 1, 2, and 3 districts, the project sought to address the lack of accessible neighborhood green space by maximizing outdoor greenery, while inside it aimed to realize the client’s vision of an “open library” through a flexible, multi-layered cultural space.
An Expanded Park Through Terraced Landscapes
The design preserves the naturally grown forest that existed on the sloped site and inserts four landscaped terrace levels into the terrain. These terraces allow the entire site to be perceived as an extended park. Positioned along the circulation path that connects nearby apartments and schools—including outdoor stairs and an exterior elevator—these landscaped platforms function as freely accessible green spaces and resting spots for residents throughout the day.
A Model for an “Open Library” as a Local Cultural Space
Conventional libraries often divide the lobby, children’s reading rooms, and general reading rooms into separate zones, resulting in age-based fragmentation even within a single family. To counter this, the project introduces several architectural devices—such as a central void, skip floors, ramps, and a stepped plaza—so that the entire library becomes one continuous, boundary-free space. The intention was to create a place where children and adults can stay, read, and interact within the same spatial environment, embodying the idea of an “open library” not just in program but in spatial experience.






| 주례열린도서관 설계자 | 이동규(AIA) 건축사_ Studio BA 정대교 건축사_ 자인 건축사사무소 시공자 | (주)우성종합건설 건축주 | 부산시사상구청 공동설계 | 성수진(AIA) _ Studio BA 감리자 | (주)아이엔지그룹건축사사무소 설계팀 | 이은정, 이정민, 조익현, 호영훈, 유아람 설계의도 구현 | Studio BA 대지위치 | 부산광역시 사상구 주례동 주요용도 | 교육연구시설(도서관), 노유자시설(육아종합지원센터), 근린생활시설 (북카페) 대지면적 | 3,239.00㎡ 건축면적 | 1,901.59㎡ 연면적 | 4,930.08㎡ 건폐율 | 58.71% 용적률 | 104.80% 규모 | B1F - 4F 구조 | 철근콘크리트조, 철골조 외부마감재 | 점토벽돌(엠케이 세라믹, 회색전돌미장) 내부마감재 | 고강도 칼라몰탈(주식회사 식스코. Easycrete Gray), 오크 천연목재마루(주.구정 에프엔디 Solopark.x), 유공 흡음보드 (주식회사 인앤,Danoline Solopanel UFF) 설계기간 | 2020. 10 - 2021. 12 공사기간 | 2022. 03 - 2024. 06 사진 | 신경섭 구조분야 : 승구조 기술사사무소 기계설비분야 : 삼신설계주식회사 전기분야 : 석우엔지니어링(주) 소방분야 : 삼신설계주식회사, 석우엔지니어링(주) |
Jurye Open Library Architect | Lee, Dongkyu(AIA) _ Studio BA Jung, Daegyo_ Zign Architects Construction | Woosung General Construction Co. Ltd Client | Sasang-gu Office, Busan Metropolitan City Collaborative design | Sung Suejin(AIA) _ Studio BA Supervisor | ING Architecture Project team | Lee, Eunjung/ Lee, Jungmin / Cho, Ikhyun / Ho, Younghoon / Yu, Aram Design intention realization | Studio BA Location | Jurye-dong, Sasang-gu, Busan Program | Library, Comprehensive Childcare Support Center Site area | 3,239.00㎡ Building area | 1,901.59㎡ Gross floor area | 4,930.08㎡ Building to land ratio | 58.71% Floor area ratio | 104.80% Building scope | B1F - 4F Structure | RC, SRC Exterior finishing | Brick Interior finishing | Commercial Grade Color Mortar(Sixco INC. Easycrete Gray), Natural Oak Flooring(Gujung Maru Solopark.x), Perforated acoustic board(Inand, D anoline Solopanel UFF) Design period | Oct. 2020 - Dec. 2021 Construction period | Mar. 2022 - Jun. 2024 Photograph | Shin, Kyungsub Structural engineer | Seung Structure Engineering consultant co. Mechanical engineer | Sahm Shin Engineers INC. Electrical engineer | Sukwoo Engineering INC. Fire engineer | Sahm Shin Engineers INC., Sukwoo Engineering INC. |
'회원작품 | Projects > Education' 카테고리의 다른 글
| 산림복지종합교육센터 2026.2 (0) | 2026.02.27 |
|---|---|
| 인천대학교 제2도서관 _ 이룸관 2025.12 (0) | 2025.12.31 |
| 현대자동차그룹 영남권 교육시설 2025.12 (0) | 2025.12.31 |
| 신나는학교 기숙사 및 급식소 2025.11 (0) | 2025.11.28 |
| 시흥 해양생태과학관 2025.11 (0) | 2025.11.28 |
