2026. 2. 27. 11:00ㆍ회원작품 | Projects/Office
Miryang Election Commission Office

자유민주주의 사회에서 선거는 국가의 근간을 이루는 핵심 제도이며, 그 과정에서 공정성과 투명성은 필수적이다. 선거는 사회적 신뢰를 세우는 과정이기에 이를 운영하는 기관의 역할이 중요하다. 지방 선거관리위원회는 중앙 지침을 현장에서 적용하며 시민과 가장 가까운 곳에서 선거를 관리한다. 이 기관은 단순한 행정 사무소를 넘어 지역 민주주의가 작동하는 기반이다. 밀양시 선거관리위원회 청사는 이러한 역할을 건축적으로 구현하려는 시도에서 출발했다. 건축물은 선거 지원 기능을 넘어 시민의 신뢰와 공정한 절차 수행을 뒷받침하는 환경을 갖추기 위해 절제된 건축으로 제도의 본질을 담아냈다.
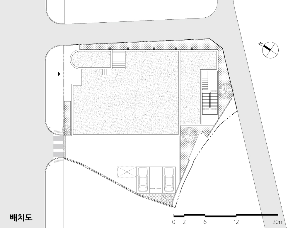
건축물은 3개 층으로 구성되며, 각 층은 선거관리위원회의 운영 프로그램에 따라 분리된다. 1층은 선거 물품창고와 주차장으로 기능적 기반을 담당하고, 2층에는 사무실, 위원회의실, 투표함 보관실이 배치되며 보관실은 강화 벽체로 높은 보안을 확보했다. 3층은 다목적회의실, 공정선거지원단 사무실, 조사실로 구성되어 공정 선거를 위한 기능을 수행한다. 외부에서는 재료와 입면이 이러한 태도를 반영한다. 벽돌 타일 마감은 단정한 반복과 질서를 형성하며 주변 도시 맥락과 자연스럽게 어우러진다. 좌측 계단실의 곡면 매스는 직선적 사무동과 대비해 건물의 리듬을 만들고, 자연광을 도입해 공용부의 공간 경험을 확장한다.




In a liberal democratic society, elections are a fundamental institution through which the nation is upheld, and the principles of fairness and transparency are indispensable to their process. Because elections are a mechanism for building social trust, the role of the institutions that administer them becomes crucial. Local Election Commissions apply national guidelines to the field and manage the electoral process in closest proximity to citizens. These bodies function not merely as administrative offices but as the very foundation through which democracy operates in everyday life. The Miryang Election Commission Office began with the intention of expressing this role architecturally. Beyond supporting electoral procedures, the building was designed as a restrained architectural framework that embodies the essence of the institution, providing an environment where citizens can trust the process and staff can carry out fair and transparent procedures.
The building consists of three floors, each organized according to the operational program of the Election Commission. The first floor accommodates storage for election materials and parking, forming the functional base of the facility. The second floor houses offices, meeting rooms, and the ballot-box storage room, the latter built with reinforced walls to ensure a high level of security. The third floor contains a multipurpose conference room, the Fair Election Support Team office, and investigation rooms— spaces that collectively support the essential tasks of ensuring fair elections. Externally, materials and façades reflect the building’s architectural attitude. The brick-tile cladding establishes order through its calm repetition and integrates seamlessly with the surrounding urban fabric. The curved mass of the stair hall on the left contrasts with the linear office volume, creating a rhythmic composition while introducing natural light that expands the spatial 8 experience of the shared interior areas.








| 밀양시 선거관리위원회 청사 설계자 | 이중희 건축사_ 투엠투 건축사사무소 건축주 | 중앙선거관리위원회 감리자 | 투엠투 건축사사무소 시공사 | (주)화신건설 대지위치 | 경상남도 밀양시 내이동 주요용도 | 제1종 근린생활시설(공공업무시설) 대지면적 | 800.00㎡ 건축면적 | 411.15㎡ 연면적 | 919.40㎡ 건폐율 | 51.39% 용적률 | 114.93% 규모 | 3F 구조 | 철근콘크리트구조 외부마감재 | T20롱브릭타일, 스터코 내부마감재 | T20롱브릭타일, 수성페인트 설계기간 | 2023. 05 - 2023. 12 공사기간 | 2024. 09 - 2025. 08 사진 | 신경섭 구조분야 | 케이원구조 기계설비·전기·소방분야 | 대광엔지니어링 |
Miryang Election Commission Office Architect | Lee Junghee_2m2 architects Client | National Election Commission Supervisor | 2m2 architects Construction | Hwashin Construction Location | Naei-dong, Miryang-si, Gyeongsangnam-do Program | Neighborhood living facilities (public office facility) Site area | 800.00㎡ Building area | 411.15㎡ Gross floor area | 919.40㎡ Building to land ratio | 51.39% Floor area ratio | 114.93% Building scope | 3F Structure | RC Exterior finishing | T20 long brick tile, Stucco Interior finishing | T20 long brick tile, Water-based paint Design period | May 2023 - Dec. 2023 Construction period | Sep. 2024 - Aug. 2025 Photograph | Shin Kyungsub Structural engineer | K1 Engineer Mechanical·Electrical·Fire engineer | Daegwang Engineers |
'회원작품 | Projects > Office' 카테고리의 다른 글
| 스튜디오 파라노이드 오피스 2026.3 (0) | 2026.03.31 |
|---|---|
| 마스삼공 사옥 2026.2 (0) | 2026.02.27 |
| 인탈리오 2026.1 (0) | 2026.01.30 |
| SK하이닉스 용인반도체클러스터 2026.1 (0) | 2026.01.30 |
| 교촌1991빌딩 2025.12 (0) | 2025.12.31 |
