2022. 12. 7. 09:18ㆍ회원작품 | Projects/House
Dan A Jae

단아재의 건축주는 노년을 맞이하면서 평생에 한 번 지을 수 있는 집을 짓고자 하는 소 망이 있었다. 현대적인 주택 디자인을 희망하여, ‘외유내강’에서 모티브를 착안해 외관의 형태와 재료를 최대한 단순하게 디자인했다. 밝고 커다란 공간이 주는 느낌을 선호했던 건축주를 위해 선큰, 마당, 테라스 등의 외부공간은 내부와 이어주면서 공간이 확장하는 듯한 감각을 부여했고, 빛과 바람을 유입시켜 자연 친화적인 성격을 띠게 하였다. 채광 을 충분히 받는 내·외부계단은 공간을 안팎으로 연결하고 체험하는 장치가 되어, 단아재 에 빛과 공간의 풍요로움을 선사한다. 이름처럼 ‘단아’한 주택의 다채로운 공간 속에서 건축주가 여생을 행복하게 보내길 바라는 마음을 담았다.

The client from Danajae has a desire to build a ‘forever’ house that will suit his needs as he enters his later years. The client requested a modern housing design, I designed the shape and materials of the exterior to be as simple as possible by focusing on the proverb ‘An iron hand in a velvet glove’. The exterior spaces such as the sunken, yard and terrace were given the sense of expanding space by connecting with the inside and made environmentally-friendly by introducing light and wind for the client who preferred the feeling of bright and large spaces. The indoor and outdoor stairways, which are fully exposed to light, serve places for connecting and experiencing the space inside and outside, thereby providing the richness of light and space in Danajae.
I hope that the client will spend the rest of his life happily in the colourful space of the ‘Elegant' house, like its name.











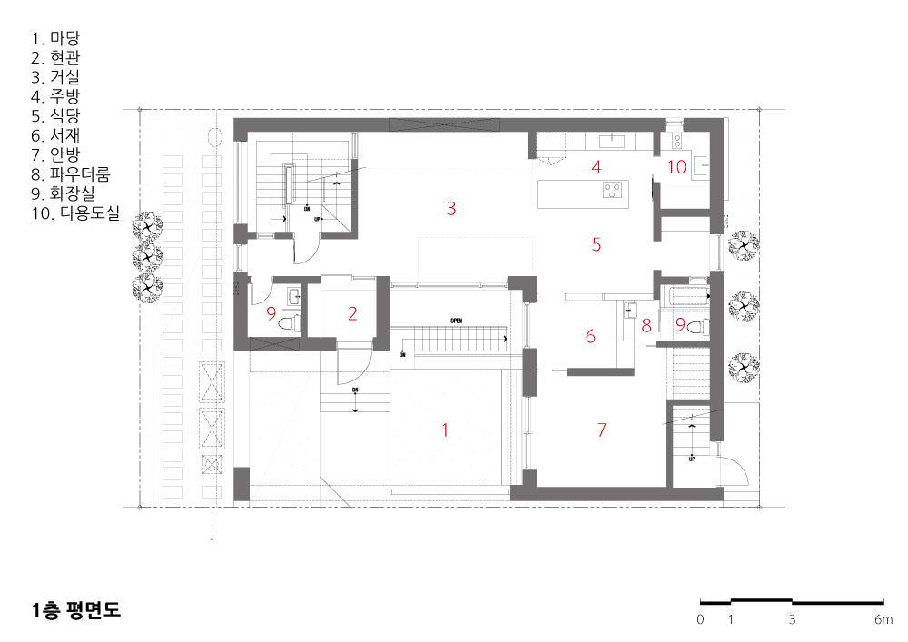
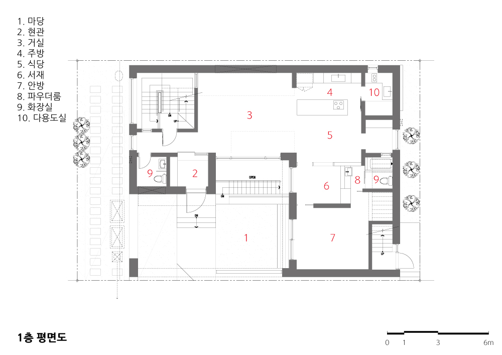
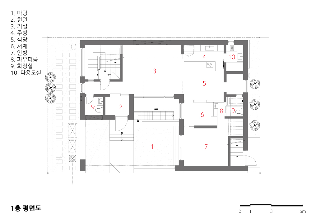
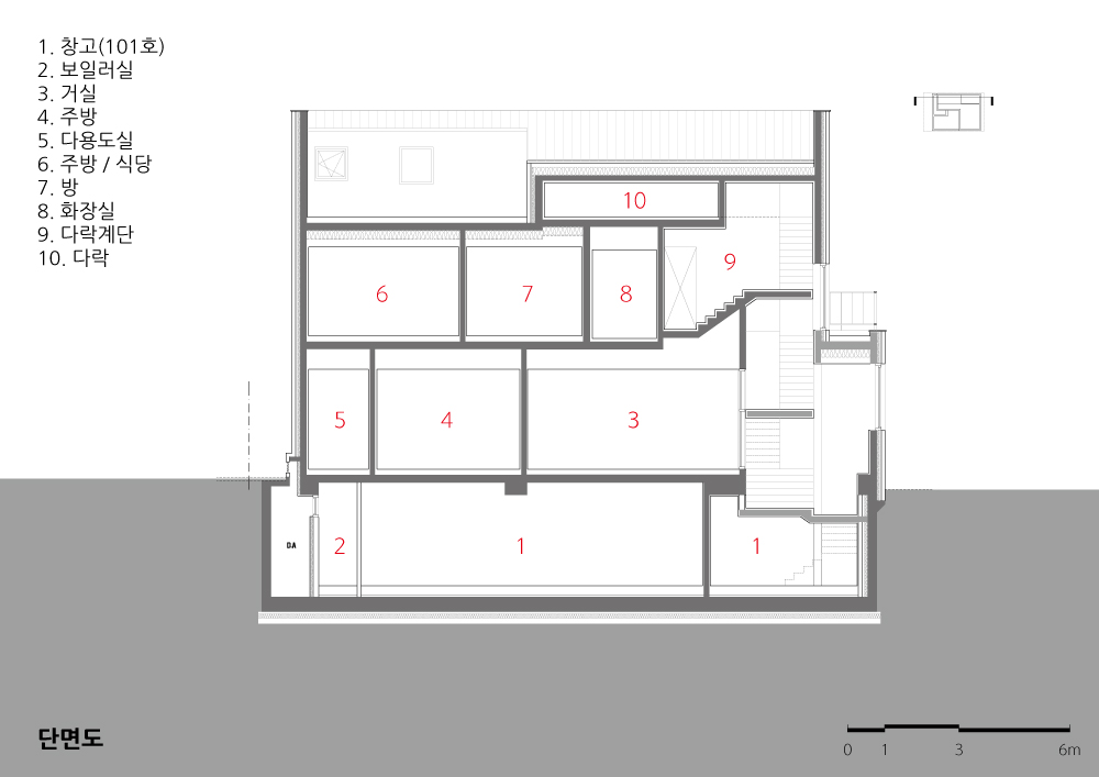
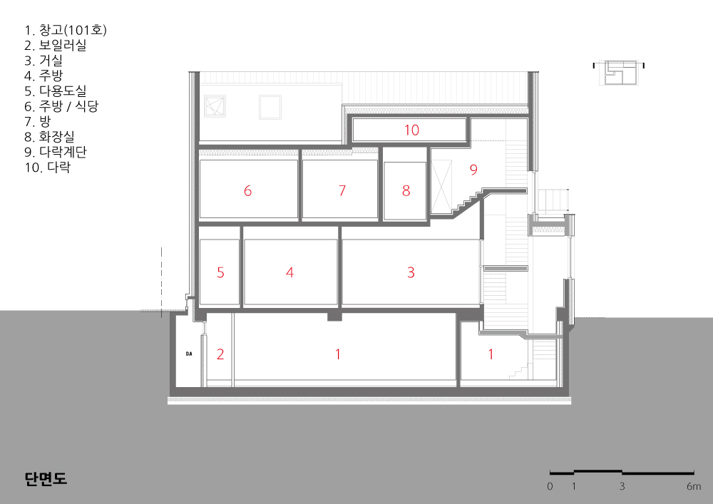
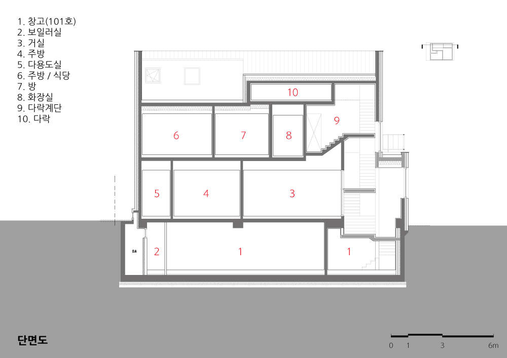
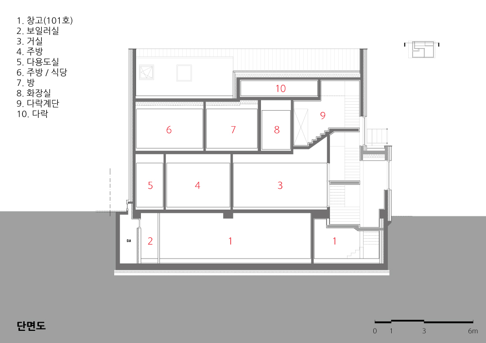
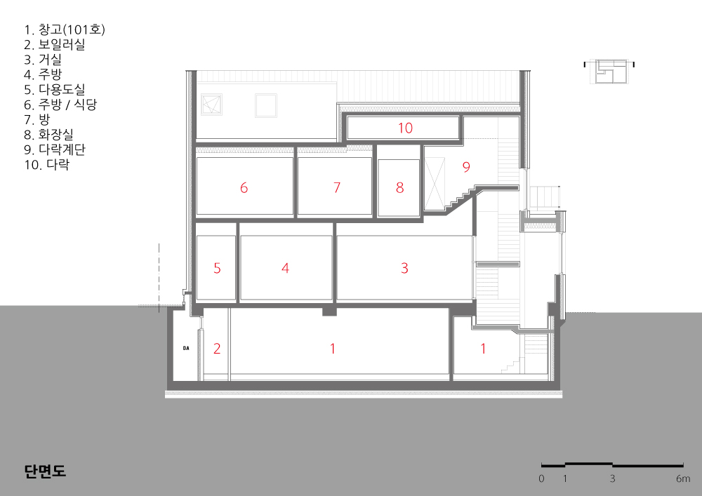
| 단아재(端雅齋) 설계자 ┃ 정승이 KIRA ┃ 유하우스 건축사사무소 건축주 | 박광선, 차재경 감리자 | 안문찬 _ 키움 건축사사무소 시공사 | 유하우스 종합건설(주) 설계팀 | 박효택, 김유섭, 이현석 대지위치 | 경기도 성남시 분당구 판교로197번길 46-7 주요용도 | 단독주택 대지면적 | 265.60㎡ 건축면적 | 132.47㎡ 연면적 | 333.30㎡ 건폐율 | 49.88% 용적률 | 81.63% 규모 | 지하 1층, 지상 2층 구조 | 철근콘크리트조 외부마감재 | 시멘트 벽돌 내부마감재 | 도장 페인트 설계기간 | 2016. 05 ~ 2016. 10 공사기간 | 2016. 10 ~ 2017. 06 사진 | 김재경 전문기술협력 구조분야 : 전우구조 기계설비분야 : 세원엔지니어링 전기분야 : 세원엔지니어링 |
Dan A Jae Architect | Chung, Seungyi _ U-HAUS architects & associates Client | Park, Gwangsun / Cha, Jaekyung Supervisor | An, Monnchan _ Kiwoom Architects & associates Construction | U-HAUS Construction Project team | Park, Hyotaek / Kim, Yuseob / Lee, Hyunseok Location | 46-7, Pangyo-ro 197beon-gil, Bundanggu, Seongnam-si, Gyeonggi-do, Korea Program | Detached housing Site area | 265.60㎡ Building area | 132.47㎡ Gross floor area | 333.30㎡ Building to land ratio | 49.88% Floor area ratio | 81.63% Building scope | B1F - 2F Structure | RC Exterior finishing | Cement Brick Interior finishing | Paint Design period | May. 2016 ~ Oct. 2016 Construction period | Oct. 2016 ~ Jun. 2017 Photograph | Kim, Jaekyeong Structural engineer | Jeonwoo Structural Engineering Mechanical engineer | Sewon Engineering Electrical engineer | Sewon Engineering |
'회원작품 | Projects > House' 카테고리의 다른 글
| 더블유주택 2018.9 (0) | 2022.12.07 |
|---|---|
| 서윤재(徐尹齋) 2018.9 (0) | 2022.12.07 |
| 애플팜 하우스 2018.9 (0) | 2022.12.07 |
| 마당 통하는 집 2018.9 (0) | 2022.12.07 |
| 신당동 테라스하우스 율담 2018.9 (0) | 2022.12.07 |