2022. 12. 7. 09:19ㆍ회원작품 | Projects/House
Seo Yoon Jae

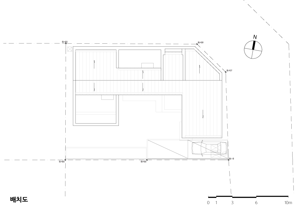
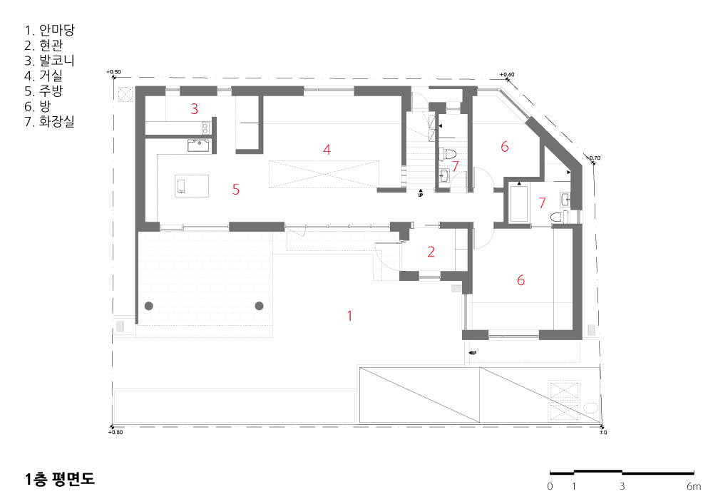
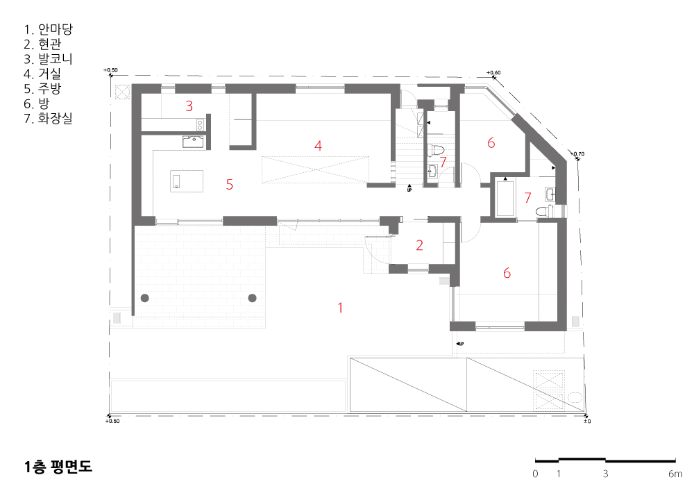
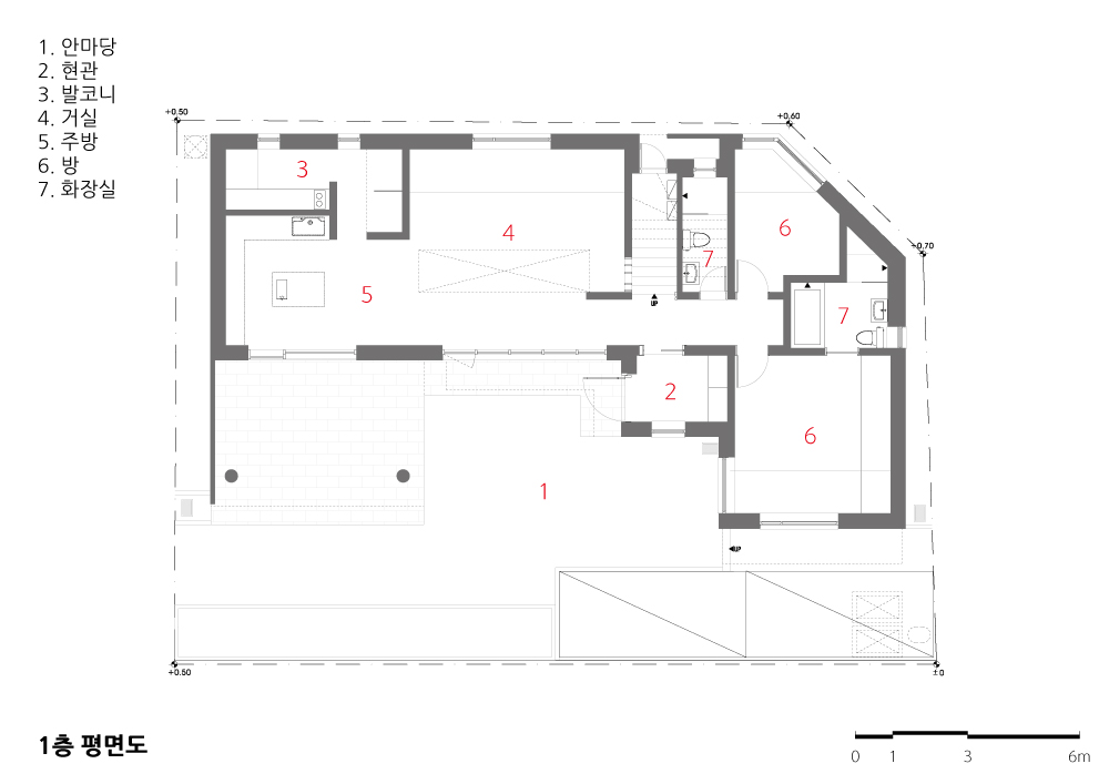
서윤재의 컨셉은 ‘넓은 마당의 한옥’, ‘햇살이 들어오는 집’이다. 넓은 전정, 툇마루, 누각 의 하부공간을 통해 한옥의 정서를 투영했으며 ㄷ자형 배치로 안마당을 확보하면서 동 시에 도로와 접한 북동측에 물리적 경계를 자연스럽게 형성했다. 실내에서는 안마당과 북측의 산을 즐길 수 있도록 각 실과 집 밖의 자연이 상호 소통할 수 있도록 계획했다. 1 층과 2층 간의 소통이 원활하도록 거실은 상부를 오픈했으며, 거실이 좌·우측 매스를 연 결하는 구심적인 공간으로 기능하도록 배치했다. 안마당에서 따사로운 햇살을 받으며 가족들이 정겨운 시간을 보내는 집이 되길 희망한다.

Seo Yun-jae’s concept is 'a house with a wide courtyard' and 'a house with sunshine'. Through the wide front yard, porch and the lower space of the building, the feelings of Hanok were projected. At the same time, while securing the courtyard with a ㄷ-shaped layout, the physical boundaries were naturally formed on the north-eastern side facing the road. In the interior, I planned to enable each room to interact with nature outside the house so as to enjoy the courtyard and the mountains on the north side. To facilitate communication between the first and second floors, the living room was designed to have an open top, and the living room was arranged to function as a central space connecting the left and right masses. I hope that it will be a house where the client’s family spend a good time while receiving warm sunshine in the courtyard.












| 서윤재(徐尹齋) 설계자 ┃ 정승이 KIRA ┃ 유하우스 건축사사무소 건축주 | 강세훈 감리자 | 정승이 _ 유하우스 건축사사무소 시공사 | 유하우스 종합건설(주) 설계팀 | 한상환, 이승룡, 박효택 대지위치 | 인천광역시 남동구 은봉로 269번길 14-14 주요용도 | 단독주택 대지면적 | 286.00㎡ 건축면적 | 142.94㎡ 연면적 | 224.12㎡ 건폐율 | 49.97% 용적률 | 78.36% 규모 | 지상 2층 구조 | 철근콘크리트조 외부마감재 | 알루미늄 메가판넬, 청고벽돌 내부마감재 | 도장페인트 설계기간 | 2016. 08 ~ 2016. 11 공사기간 | 2016. 11 ~ 2017. 05 사진 | 김재경 전문기술협력 구조분야 : 전우구조 기계설비분야 : 세원엔지니어링 전기분야 : 세원엔지니어링 |
Seo Yoon Jae Architect | Chung, Seungyi _ U-HAUS architects & associates Client | Kang, Sehoon Supervisor | Chung, Seungyi _ U-HAUS architects & associates Construction | U-HAUS Construction Project team | Han, Sanghwan / Lee, Seungyong / Park, Hyotaek Location | 14-14, Eunbong-ro 269beon-gil, Namdong-gu, Incheon, Korea Program | Detached housing Site area | 286.00㎡ Building area | 142.94㎡ Gross floor area | 224.12㎡ Building to land ratio | 49.97% Floor area ratio | 78.36% Building scope | 2F Structure | RC Exterior finishing | Aluminiun megapanel, Old blue brick Interior finishing | Paint Design period | Aug. 2016 ~ Nov. 2016 Construction period | Nov. 2016 ~ May. 2017 Photograph | Kim, Jaekyeong Structural engineer | JeonwooStructuralEngineering Mechanical engineer | Sewon Engineering Electrical engineer | Sewon Engineering |
'회원작품 | Projects > House' 카테고리의 다른 글
| 지글지글 집빵빵 2018.9 (0) | 2022.12.07 |
|---|---|
| 더블유주택 2018.9 (0) | 2022.12.07 |
| 단아재(端雅齋) 2018.9 (0) | 2022.12.07 |
| 애플팜 하우스 2018.9 (0) | 2022.12.07 |
| 마당 통하는 집 2018.9 (0) | 2022.12.07 |