2022. 12. 7. 09:22ㆍ회원작품 | Projects/House
Ossu house

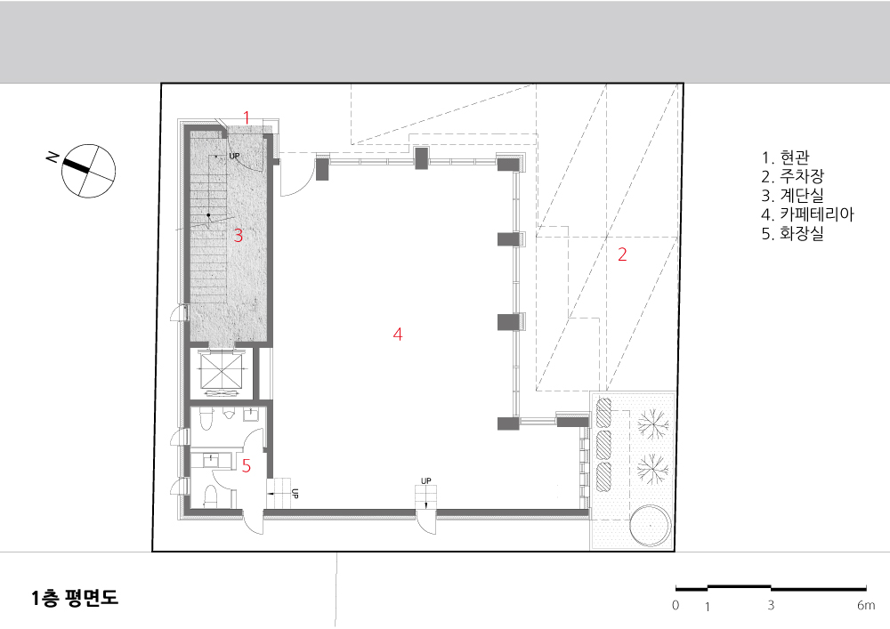
이 건물은 하남미사지구 내에 자리 잡은 점포주택이다. 계획 당시 대지는 주거의 채광이 나 1층 상가의 상권형성에 여러모로 불리한 위치였다.
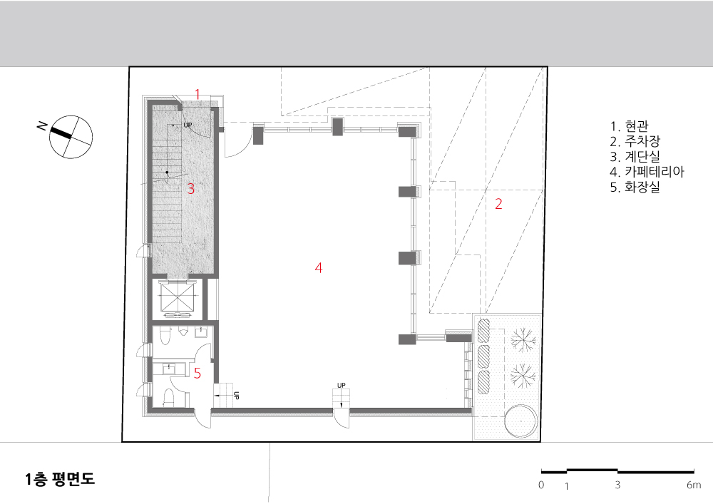
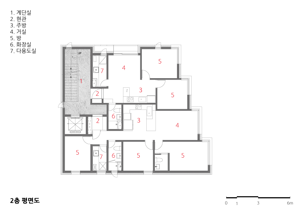
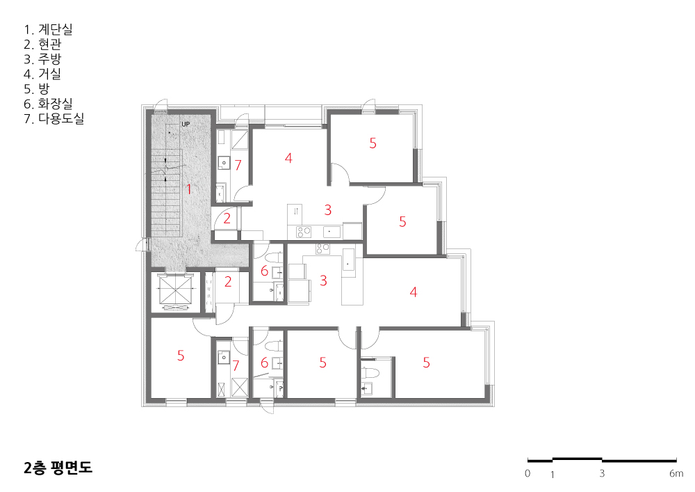
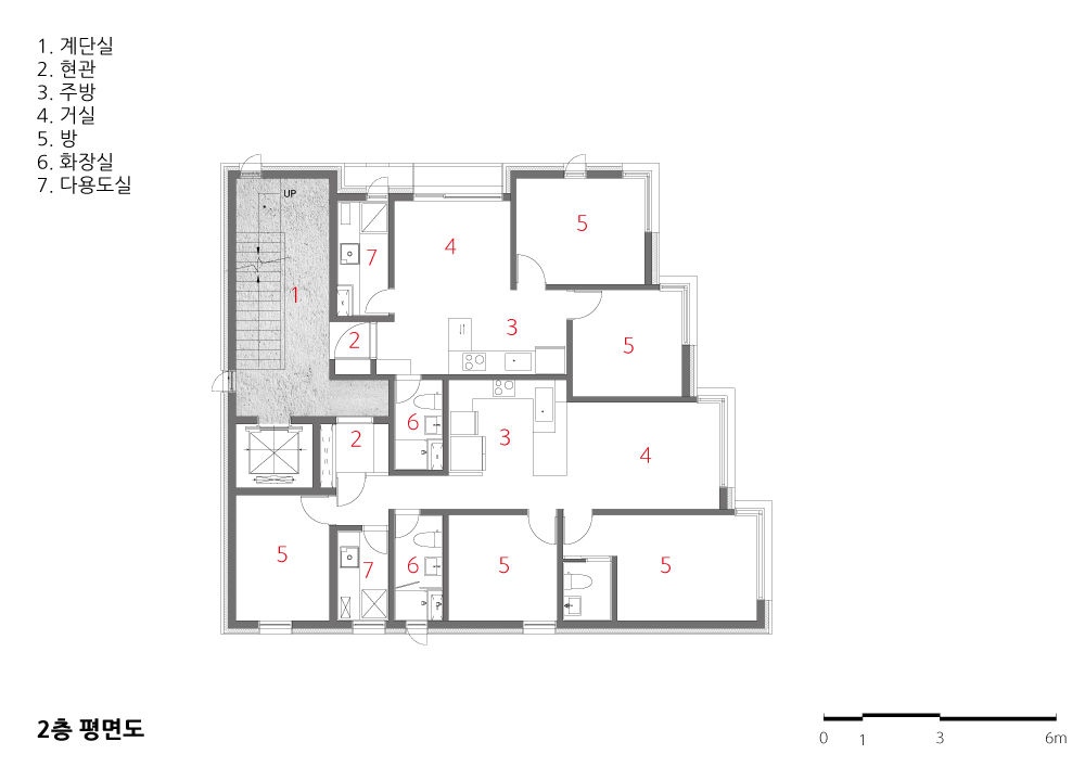
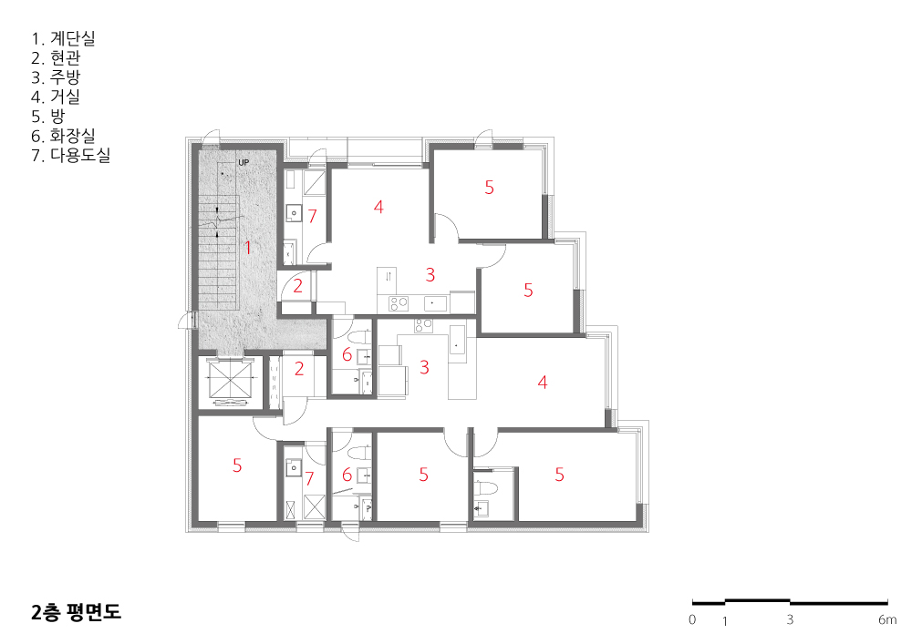
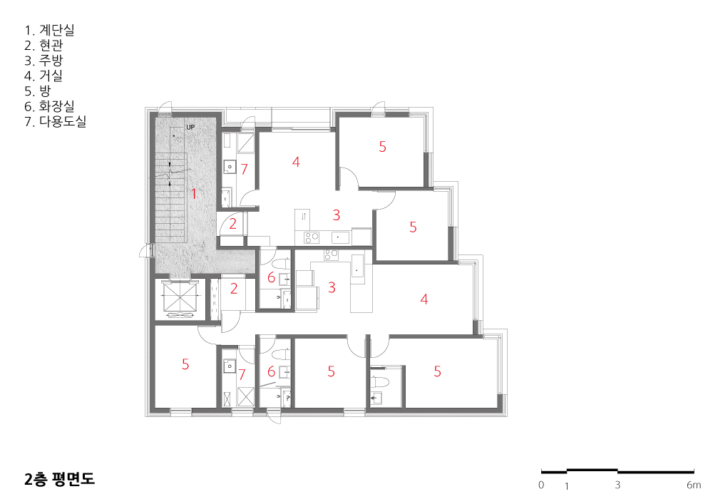
근린생활시설의 상권형성보다 주거의 수준을 높이는 것에 중점을 두었다. 주거의 진입 을 도로변에서 눈에 띄는 명확한 디자인으로 하고 택배함이나 우편함 모두 한눈에 관리 가 가능하도록 했다. 모든 주거와 남쪽의 모든 방에서 도로변 조망이 가능하도록 코너창 을 이용했다. 일조사선으로 층고의 제약이 많았던 저층부와 달리 일조 사선을 이용하며 높이를 활용한 거실공간, 다락공간을 계획하여 차별화를 두었다.
외장 재료는 벽돌을 이용해 부분으로 디자인 된 공간들을 하나의 건물로 보이도록 디자 인 했으며, 외관 모습을 군더더기 없이 마무리했다.
내부 인테리어에서도 각 공간 자체에 충실한 디자인과 기능을 만족하게 하고 건축주의 취향과 아이템을 적극 활용하여 전체적인 맥락에서보다 부분 공간들의 집합으로 완성해 나갔다.

This building is a storehouse located in the Misa district, Hanam. At the time of planning, the site was in many ways disadvantageous to the lighting of the residence or the formation of a commercial area for the first floor mall.
I put the emphasis on raising the level of housing rather than forming a commercial area. The entrance of the residence was clearly designed to be visible from the roadside, making it possible to manage both the courier box and the mailbox at a glance. The corner windows were used to allow all the dwellings and all rooms in the south to view the roadside. Unlike the lower floors where there were many limitations of flooring due to sunshine and setback. The living room and the loft space were differentiated using the height by means of the sunshine and setback. For the exterior material, brick-applied spaces were designed to look like one building so that the appearance was finished as pleasingly simple.
The interior was also planned to satisfy the design and function, faithful to each space and utilized the client’s tastes and various items in order to complete the collection of partial spaces rather than being seen in the whole context.













| 지글지글 집빵빵 설계자 ┃ 신현보 KIRA ┃ (주)디자인밴드요앞 건축사사무소 건축주 | 현재만, 한은희 감리자 | 최종오 _ 모임 건축사사무소 시공사 | 경진건설 설계팀 | 류인근, 김도란 대지위치 | 경기도 하남시 미사강변중앙로 111번안길 13 주요용도 | 다가구주택 대지면적 | 259.00㎡ 건축면적 | 152.85㎡ 연면적 | 482.40㎡ 건폐율 | 59.01% 용적률 | 186.25% 규모 | 지상 4층 구조 | 철근콘크리트조 외부마감재 | 치장벽돌, 라임스톤 내부마감재 | 신한 실크벽지, 구정강마루, 모자이크타일, 포세린 타일 설계기간 | 2016. 02 ~ 2016. 06 공사기간 | 2016. 07 ~ 2017. 03 사진 | 류인근 전문기술협력 구조분야 : 한길구조 기계설비분야 : 정연엔지니어링 전기분야 : 정연엔지니어링 소방분야 : 정연엔지니어링 |
Ossu house Architect | Shin, Hyunbo _ designband YOAP Client | Hyun, Jaeman / Han, Eunhee Supervisor | Choi, Jongoh _ Moim Architects Construction | Gyeongjin Construcrion Project team | Ryoo, Inkeun / Kim, Doran Location | 13, Misagangbyeonjungang-ro 111beonan-gil, Hanam-si, Gyeonggi-do, Korea Program | Multi family housing Site area | 259.00㎡ Building area | 152.85㎡ Gross floor area | 482.40㎡ Building to land ratio | 59.01% Floor area ratio | 186.25% Building scope | 4F Structure | RC Exterior finishing | Brick, Limestone Interior finishing | Wallpaper, Wood flooring, Mmosaic tile, Porcelain tile Design period | Feb. 2016 ~ Jun. 2016 Construction period | Jul. 2016 ~ Mar. 2017 Photograph | Ryoo, Inkeun Structural engineer | Hangil Engineering Mechanical engineer | Jungyeon Engineering Electrical engineer | Jungyeon Engineering Fire engineer | Jungyeon Engineering |
'회원작품 | Projects > House' 카테고리의 다른 글
| 위례 단독주택 (工자집) 2018.10 (0) | 2022.12.08 |
|---|---|
| 친환경 에너지자립마을 포리스타 2018.10 (0) | 2022.12.08 |
| 더블유주택 2018.9 (0) | 2022.12.07 |
| 서윤재(徐尹齋) 2018.9 (0) | 2022.12.07 |
| 단아재(端雅齋) 2018.9 (0) | 2022.12.07 |