2022. 12. 8. 09:19ㆍ회원작품 | Projects/House
Wirye 工 HOUSE

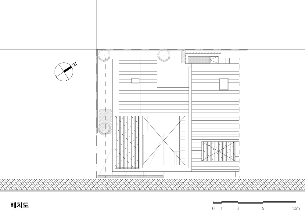
동쪽의 조망과 남쪽의 채광을 동시에 누리기 위해 우리는 북쪽과 남쪽에 매스를 나누고 가운데 를 연결하는 工 자형 배치했다. 工자 매스에 필지모양을 따라 2층 가벽을 새워 전체적으로 ㅁ자 형의 단순한 형태 속에 동서로 나눠진 두 개의 마당을 가진 형태로 설계했다. 가운데 연결된 매 스는 수직적인 연결의 계단을 두고 있고, 두 마당이 서로 시각적으로 투영되도록 유리로 마감을 하여 마당의 깊이감을 더한다.
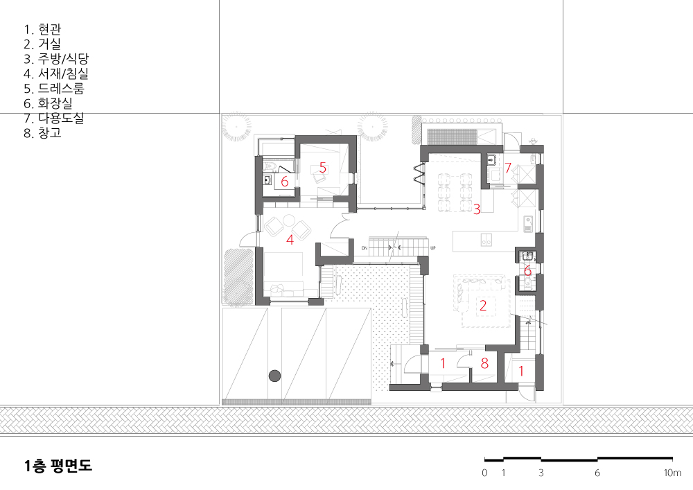
내부는 계단을 오르내리는 동선에 따라 수직적인 풍경의 변화를 집 안에서 관찰할 수 있도록 설 계했다. 1층의 거실과 부엌, 식당에서는 마당너머 산이 보이며, 서쪽의 식당 마당에서는 가운데 계단 통로 매스를 투영하여 안마당을 너머 바라볼 수 있다. 2층으로 올라가는 계단은 2층 가벽 의 프레임을 통해 풍경이 응축되어 보여진다. 마지막으로 올라간 지붕 테라스에서는 주변도시 풍경이 한눈에 펼쳐져 보여진다.
지하에 남편의 운동실과 아내의 작업실을 두어 집속에서 다양한 취미나 작업을 할 수 있게 되어 있다. 책장과 함께 구성된 계단은 작은 북카페 같은 느낌으로 풍경과 함께 일상을 벗어나는 공 간으로 만들었다.

In order to take advantage of the eastern view and maximize the southern lightning we divided the structure at the north and south and deployed 工-typed connecting the center. It was designed so that there were two yards, which were divided into east and west in the ㅁtyped simple shape totally by setting up the 2nd floor free-standing wall along the land shape in the 工typed mass. As the masses that the centers were connected have a vertical connection stairs and finished with glass to be projected visually the 2 yards each other, it could add the depth of yards.
The interior space was designed capable of observing the vertical landscape changes in the house according to the moving line that goes up and down the stairs. It is able to view the mountains beyond the yard at the living room, kitchen and dining room on the 1st floor, and to view the inner yard by projecting the middle stairway passageway mass at the yard of west restaurant. The stairway that goes up to the 2nd floor shows the compressed scenery through the frame of 2nd floor free-standing wall. On the roof terrace where goes up at last, the surrounding city landscape is viewed at a glance.
The husband's exercise room and the wife's work room are placed in the basement. Various hobbies and works can be undertaken in the house. The stairway which incorporates a bookcase was constructed as the space that escapes the daily life with the impression being similar to that of a small book cafe.















| 위례 단독주택 (工자집) 설계자 ┃ 홍만식 KIRA ┃ (주)리슈 건축사사무소 건축주 | 민병구, 곽지영 감리자 | 권재희 _ (주)목금토 건축사사무소 시공사 | 민병구, 곽지영 설계팀 | 임도영, 이상민 대지위치 | 경기도 성남시 수정구 위례한빛로 45 주요용도 | 단독주택(다가구 주택) 대지면적 | 265.00㎡ 건축면적 | 128.61㎡ 연면적 | 285.21㎡ 건폐율 | 48.53% 용적률 | 83.17% 규모 | 지하 1층, 지상 2층 구조 | 철근콘크리트조 외부마감재 | 파벽돌 타일 내부마감재 | 석고보드, 벽지, 포슬린 타일 설계기간 | 2017. 07 ~ 2017. 10 공사기간 | 2017. 10 ~ 2018. 04 사진 | 김용순, 김재윤 전문기술협력 구조분야 : 광림 구조 기계설비분야 : 코담 기술단 전기분야 : 코담 기술단 소방분야 : 코담 기술단 |
Wirye 工 HOUSE Architect | Hong, Mansik _ Richue Architects Client | Min, Byunggu / Gwak, Jiyoung Supervisor | Kwon, Jaehee _ MGT Architects Construction | Min, Byunggu / Gwak, Jiyoung Project team | Lim, Doyoung / Lee, Sangmin Location | 45, Wiryehanbit-ro, Sujeong-gu, Seongnam-si, Gyeonggi-do, Korea Program | house Site area | 265.00㎡ Building area | 128.61㎡ Gross floor area | 285.21㎡ Building to land ratio | 48.53% Floor area ratio | 83.17% Building scope | B1F - 2F Structure | RC Exterior finishing | Brick tile Interior finishing | Wood floor, Wall paper, Porcelain tile Design period | Jul. 2017 ~ Oct. 2017 Construction period | Oct. 2017 ~ Apr. 2018 Photograph | Kim, Yongsoon / Kim, Jaeyoon Structural engineer | Gwangrim structure Mechanical engineer | Codam enginering Electrical engineer | Codam enginering Fire engineer | Codam enginering |
'회원작품 | Projects > House' 카테고리의 다른 글
| 동광1 주거환경개선사업 공동주택 신축공사 공모 2018.12 (0) | 2022.12.11 |
|---|---|
| 안산 K 하우스 2018.10 (0) | 2022.12.08 |
| 친환경 에너지자립마을 포리스타 2018.10 (0) | 2022.12.08 |
| 지글지글 집빵빵 2018.9 (0) | 2022.12.07 |
| 더블유주택 2018.9 (0) | 2022.12.07 |