2022. 12. 11. 15:08ㆍ회원작품 | Projects/Culture
Si Do [Raum] Stone Gallery

2004년 당시 김종학 프로덕션과 여러 가지 프로젝트를 진행하고 있었다. 그 중 드라마용 주택을 진행했는데 시간은 3개월밖에 없었고, 그 안에 모든 일들이 끝나야 했다. 그런데다 드라마 시각연 출부는 당혹스러운 디자인을 강하게 요청했고, 어쩔 수 없이 마무리만 하는데 집중해서 처리했다.
누구보다 과정을 지켜 본 토지주와 몇 차례 만나게 되면서 이 프로젝트를 의뢰받게 됐다. 건축 주는 40년 가까이 소유했던 부지라고 이야기 하면서, 석재 미술관을 계획하기로 했다. 석재 회 사를 오랫동안 운영한 건축주는 미술관 내부에 돌을 배치해서 다양한 조형적 체험이 가능하길 원했고, 전적으로 모든 연출과 디자인은 내게 맡겼다.
2001년 과천 마이 알레 부지에 계획했던(이 또한 건축허가까지 진행했다가 엉뚱한 이유로 중단 하고 나중에 근린생활시설로 건축했다.) 미술관 이후 두 번째 기회였다. 건축사로서 미술관 설 계는 꿈의 설계 프로그램이다. 이번 만큼은 완성을 보자고 다짐하고 최선을 다했었다.
하지만 현장 토목 공사를 하던 중에 건축주 가족이 개척교회에 헌금으로 공사비를 써버렸다. 이 후 자금순환의 문제가 생겨서 건축주는 공사를 중단시켰다. 아쉽게도 기다림의 세월이 지났다. 십년이 흘렀다. 건축주와는 연락이 끊겼고, 그렇게 두 번째 미술관 프로젝트는 중단됐다.

In 2004, I was conducting various projects with KIMJONGHAK PRODUCTION. In particular, I was requested to build a house for a TV drama in only three months, so everything had to be done on time. In addition, the drama visual production team strongly demanded an embarrassing design, and I inevitably concentrated on the finish.
The project was commissioned after meeting several times the landowner who watched the process more than anyone else. The client said that it was a site that had been owned for nearly 40 years, and decided to plan a stone art museum. The client, who has operated a stone company for a long time, wanted to display stones inside the museum to allow visitors to experience various formative arts, and entrusted me with all the directing and designing.
It was the second opportunity after the museum, which was planned at the site of Gwacheon My Allee in 2001 (this also proceeded to the building permit but stopped for a nonsense reason and later it was built as a neighborhood facility). As an architect, designing an art gallery is a dream design program. I pledged to see the completion this time and did my best.
However, during the civil engineering work at the site, the client’s family spent the construction cost on an offering for a pioneer church. After that there was a problem of funding and the client stopped construction. Unfortunately, years of waiting have passed. Ten years have passed. The contact with the client was cut off, and the second art museum project was discontinued.





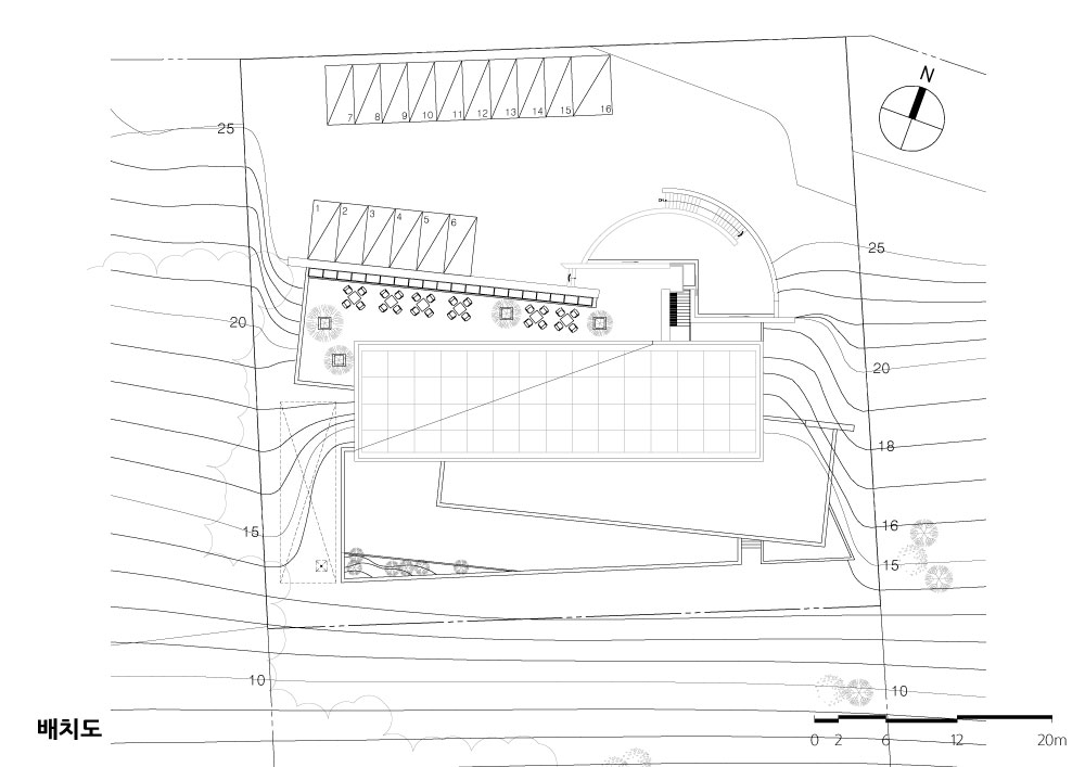
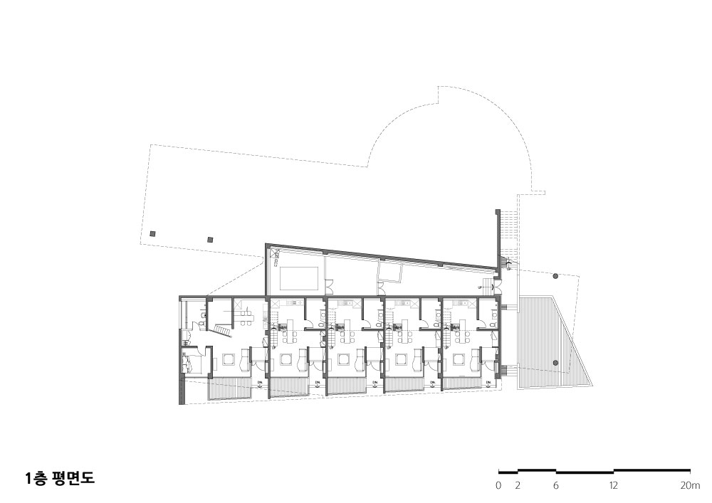
| 시도 [공간]테마 석재 미술관 마을 설계자 ┃ 홍성용 KIRA ┃ 건축사사무소 NCS lab 공동설계 | 우경식 설계팀 | 김지영 / 대지위치 | 인천광역시 옹진군 북도면 시도리 1-2 주요용도 | 문화 및 집회시설 대지면적 | 2,338㎡ 건축면적 | 910.19㎡ 연면적 | 1,535.75㎡ 건폐율 | 38.93% 용적률 | 65.69% 규모 | 지상 4층 구조 | 철근콘크리트조 외부마감재 | 노출 콘크리트, T24 복층유리 내부마감재 | 점토벽돌, 노출콘크리트, 수성 페인트, 자기질 타일 설계기간 | 2006. 03 ~ 2007. 01 |
Si Do [Raum] Stone Gallery Architect | Hong, Sungyong _ NCS lab Architects Collaborative Design | Woo, Kyungsic Project team | Kim, Jiyoung Location | 1-2, Sido-ri, Bukdo-myeon, Ongjin-gun, Incheon, Korea Program | Culture and gathering facility Site area | 2,338㎡ Building area | 910.19㎡ Gross floor area | 1,535.75㎡ Building to land ratio | 38.93% Floor area ratio | 65.69% Building scope | 4F Structure | RC Exterior finishing | Expose concrete, T24 Pair glass / Interior finishing | Brick, Expose concrete, Water paint, Porcelain tile Design period | Mar. 2006 ~ Jan. 2007 |
'회원작품 | Projects > Culture' 카테고리의 다른 글
| 핑두 완커주택문화관 2019.11 (0) | 2023.01.06 |
|---|---|
| 사비나미술관 2019.1 (0) | 2022.12.12 |
| 진달래 미술관 2018.12 (0) | 2022.12.09 |
| 평창동 미술문화복합공간 2018.12 (0) | 2022.12.09 |
| 서울하수도과학관 2018.10 (0) | 2022.12.08 |