2022. 12. 9. 09:13ㆍ회원작품 | Projects/Culture
J. MUSEUM

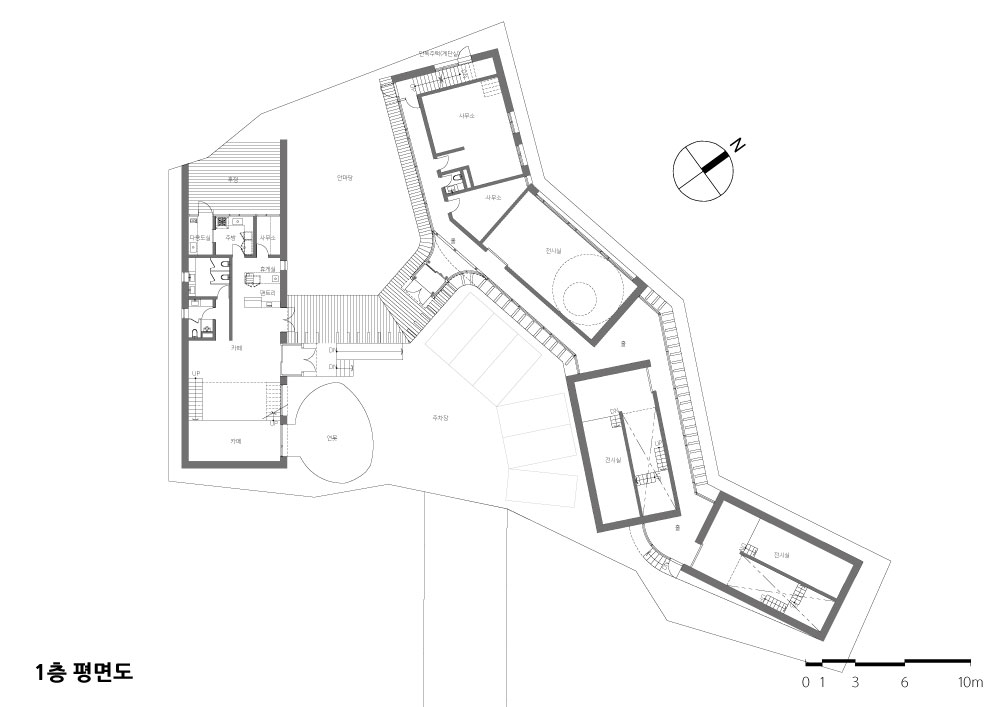
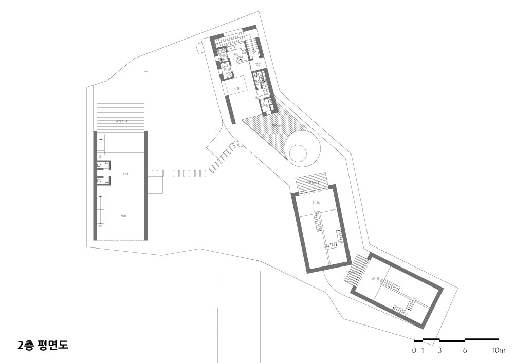
대지의 경계를 따라서 선을 긋고 숲을 향해서 몇 개의 마당을 만들면서 공간이 만들어지기 시작 한다. 그림을 거는 전시실 매스를 3개 배치하고 그 사이는 투명한 유리로 처리하여 이동 동선을 해결했다. 그림을 설치하는 공간은 다양한 바닥레벨을 통해 층간의 경계를 유연하게 만들었으며, 카페 공간 역시 여러 개의 바닥 레벨을 만들면서 공간을 하늘과 숲으로 향하게 만들었다.
진달래 그림을 전시하는 공간으로서 숲속의 미술관이 되기를 기대하고 착공신고까지 했으나, 건축주의 사정으로 보류하게 됐다. 현재는 형식과 내용, 규모를 대폭 축소하여 갤러리 카페로 다 시 설계를 해 공사를 진행하고 있다.

Space begins to be created by drawing a line along the boundary of the site and making several yards toward the forest. Three masses were placed in the exhibition hall where hanging paintings were placed, and transparent glass was used between them to solve the flow of movement. The space for displaying paintings is designed to have flexible boundaries between floors through various floor levels, and the cafe space is also designed to have several floor levels, and the direction of the space is made toward the sky and the forest.
It was expected to become a museum in the forest as a space for displaying azalea paintings.Notification of the beginning of construction was even filed. But due to the circumstances of the client, it was put on hold. Now, the form, content and size are greatly reduced, and it was redesigned as a gallery cafe and is under construction.





| 진달래 미술관 설계자 ┃ 강현석 KIRA ┃ 이응 건축사사무소 건축주 | 임복섭 설계팀 | 김지영 대지위치 | 경기도 김포시 대곶면 대명항1로 58 주요용도 | 전시시설 대지면적 | 1,206.00㎡ 건축면적 | 480.30㎡ 연면적 | 829.80㎡ 건폐율 | 39.83% 용적률 | 66.47% 규모 | 지하 1층, 지상 3층 구조 | 철근콘크리트조(중단열 공법) 외부마감재 | 노출 콘크리트 내부마감재 | 노출 콘크리트 설계기간 | 2017. 07 ~ 2018. 03 |
J. MUSEUM Architect | Kang, Hyunsuk _ Ieung architect office Client | Im, Bokseop Project team | Kim, Jiyeong Location | 58, Daemyeonghang 1-ro, Daegot-myeon, Gimpo-si, Gyeonggi-do, Korea Program | Exhibition facility Site area | 1,206.00㎡ Building area | 480.30㎡ Gross floor area | 829.80㎡ Building to land ratio | 39.83% Floor area ratio | 66.47% Building scope | B1F - 3F Structure | RC Exterior finishing | Expose concrete Interior finishing | Expose concrete Design period | Jul. 2017 ~ Mar. 2018 |
'회원작품 | Projects > Culture' 카테고리의 다른 글
| 사비나미술관 2019.1 (0) | 2022.12.12 |
|---|---|
| 시도 [공간]테마 석재 미술관 마을 2018.12 (0) | 2022.12.11 |
| 평창동 미술문화복합공간 2018.12 (0) | 2022.12.09 |
| 서울하수도과학관 2018.10 (0) | 2022.12.08 |
| 이천 도자예술촌 갤러리주택 2018.08 (0) | 2022.12.06 |