2022. 12. 9. 09:11ㆍ회원작품 | Projects/Public
Gwangju Observatory

광주에는 공공이 아닌 민간이 운영하는 전망대(휴게소)가 있다. 할아버지가 시작해서 어머니로 그리고 그 아들까지 이어져 운영되고 있다.
아들은 돌아가신 어머니와의 약속을 이루기를 원했다. 광주시민과 함께할 수 있는 작은 쉼터가 되기를 간절히 바랬다. 온가족이 함께 산책할 수 있는 마당과 더불어 젊은 문화예술인에게도 개 방된 야외 공연장을 갖추고 싶어 했다. 또한 수십 년을 함께한 느티나무도 남기길 원했다.
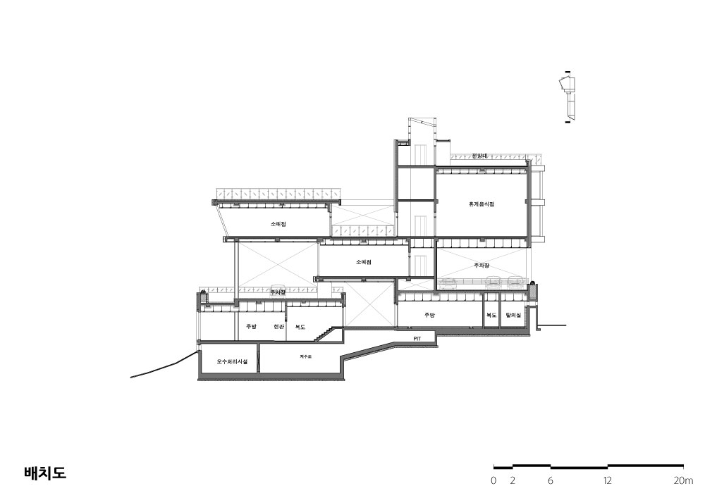
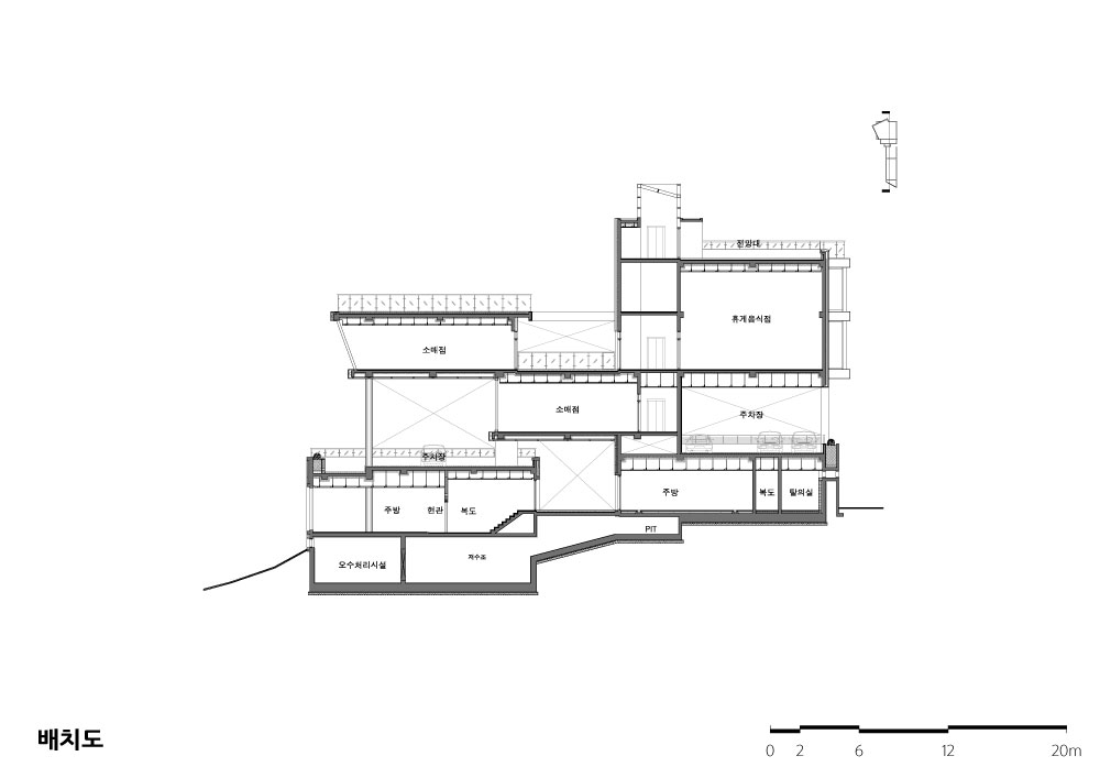
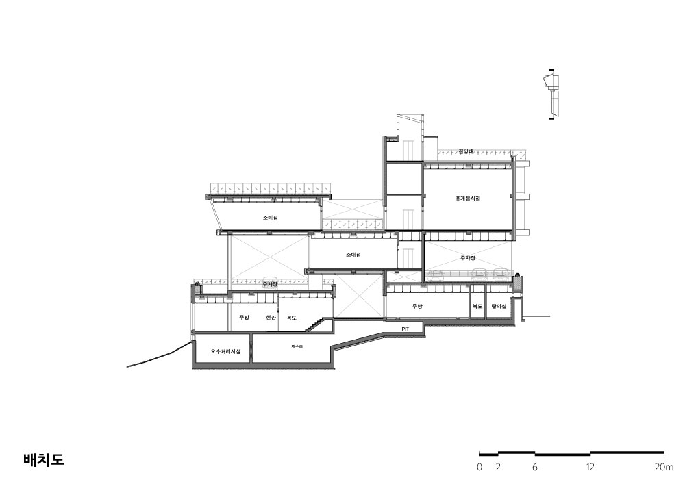
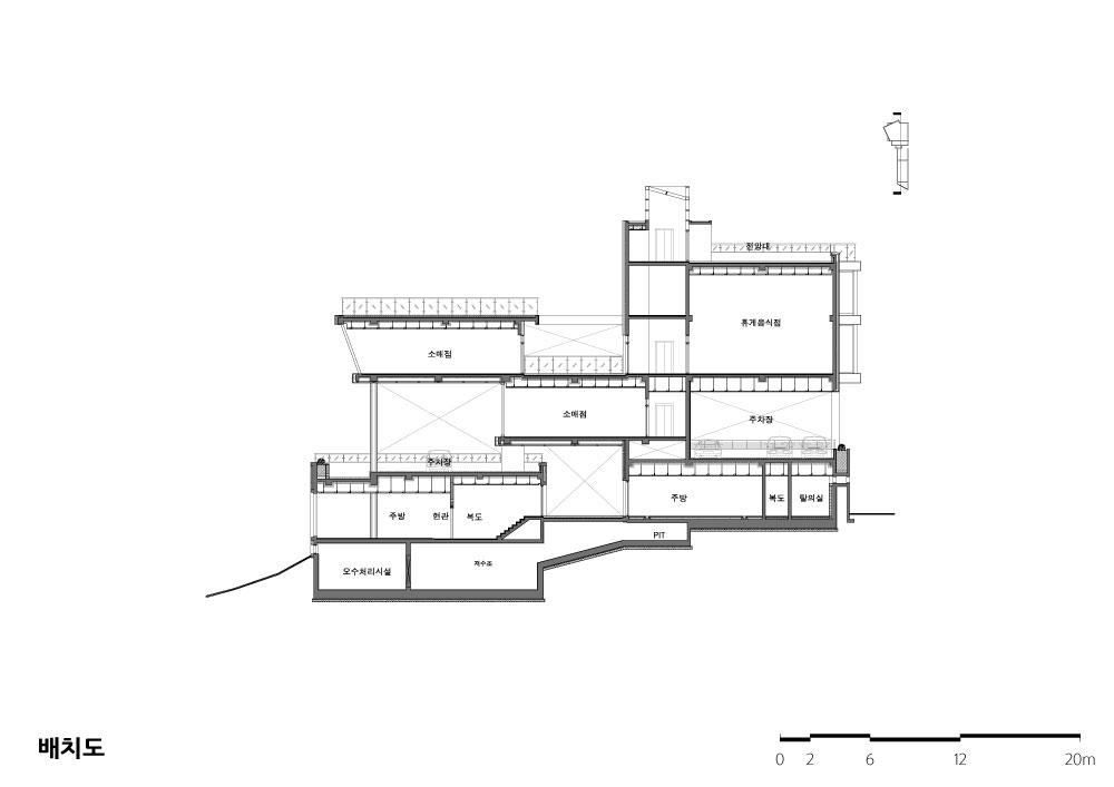
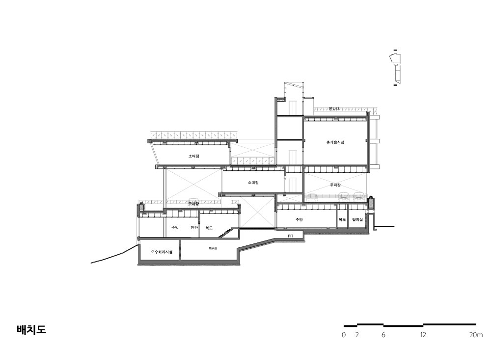
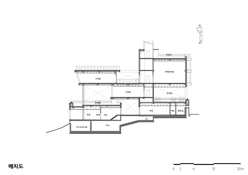
지하는 그들의 주택, 1층은 소매점과 작은 전망대, 2층은 소매점과 휴게음식점, 중간의 전망대, 그리고 지붕은 커다란 전망대로 계획했다.
건물매스 이곳저곳을 개방하여 지나는 어느 누구에게도 커다란 탁트인 시야를 가질 수 있도록 했다. 또한 다양한 테라스를 만들어 자연을 도입하려고도 했다.
궁극적으로 민간의 건축물임에도 불구하고 시민 누구에게나 개방하고, 젊은 문화예술가와도 함 께할 수 있는 공공성을 갖춘 건축물로 계획했다.

There is an observatory(rest place) in Gwangju, which is operated by not a public but private enterprise. Passed down from the grandfather and the mother to the son...
The son wanted to fulfill his promise to his deceased mother. He sincerely hoped that it will be a small shelter to share with Gwangju citizens. He wanted to have an outdoor performance hall open to young cultural artists as well as a garden where the whole family can take a walk together. He also wanted to leave the zelkova tree that has been together with him for decades.
The basement is their home, with a retail store and a small observatory on the first floor, a retail store and a rest and eatery area on the second floor, as well as an intermediate observatory, and a large observatory on the roof.
Building mass opened everywhere to allow a great sense of openness to anyone passing by. I also tried to introduce nature by creating various terraces.
Even though it is a private building, it is open to all citizens and planned as a building with publicness that can be shared with young artists.




| 광주전망대 설계자 ┃ 김민찬 KIRA ┃ (주)디에스앤유 종합건축사사무소 건축주 | 김종필 설계팀 | 변수정, 배지은 대지위치 | 광주광역시 동구 무등로 669 외 2필지 주요용도 | 휴게음식점, 소매점 대지면적 | 1,350.00㎡ 건축면적 | 267.05㎡ 연면적 | 569.92㎡ 건폐율 | 19.78% 용적률 | 22.54% 규모 | 지하 1층, 지상 2층 구조 | 철근콘크리트조 외부마감재 | 점토벽돌, 현무암, 징크판넬 내부마감재 | 테라죠타일, 화강석, 강화마루 설계기간 | 2017. 01 ~ 2017. 06 |
Gwangju Observatory Architect | Kim, Minchan _ DSNU Architectural Consultant Co., Ltd. Client | Kim, Jongpil Project team | Byeon, Sujeong / Bae, Jieun Location | 669, Mudeung-ro, Dong-gu, Gwangju, Korea Program | Surrounding living support facilities Site area | 1,350.00㎡ Building area | 267.05㎡ Gross floor area | 569.92㎡ Building to land ratio | 19.78% Floor area ratio | 22.54% Building scope | B1F - 2F Structure | RC Exterior finishing | Clay brick, Basalt, Zinc panel Interior finishing | Terrazzo tile, Granite, Wood floor Design period | Jan. 2017 ~ Jun. 2017 |
'회원작품 | Projects > Public' 카테고리의 다른 글
| 대전 나눔숲 자연휴양림 2018.12 (0) | 2022.12.11 |
|---|---|
| 의왕시 다목적 체육관 2018.12 (0) | 2022.12.11 |
| 남양주별내 복합커뮤니티센터 아쿠아 아레나 50 2018.10 (0) | 2022.12.08 |
| 충주댐 물문화전시관 2018.10 (0) | 2022.12.08 |
| 천연기념물센터 전시관 리노베이션 2018.10 (0) | 2022.12.08 |