2022. 12. 8. 09:19ㆍ회원작품 | Projects/Public
Byeollae Complex Community Center Aqua Arena 50

별이 흐르는 마을, 별내의 정체성과 상징성, 그리고 청소년의 꿈과 방향성을 표출하고, 역동적 인 움직임을 표현하고자 했다.
대지의 해석을 통한 매스의 설정과 주변환경에 순응하는 배치계획을 했다. 대지의 입지현황분 석에 따라 주요실과 매스 배치방향을 남동, 남서로 하여, 채광과 일조를 최대화하고, 도시축 상의 가로경관을 고려한 FACADE와 불암산을 배경으로 이루어진 대지환경과의 연계성을 고려한 조망계획을 했다.
공모당시 물리적 연계·확장에 의한 소통의 공간형성이 중요한 개념이었다. 그래서 메인로비와 별도로 수영장 기능의 연계·확장을 위한 POOL CORE를 계획했지만, 스페이스 프로그램의 변 경으로 사라진 것이 아쉽다.
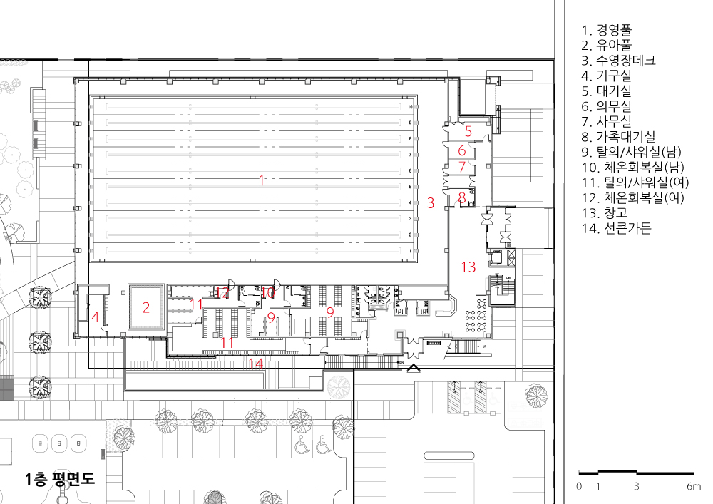
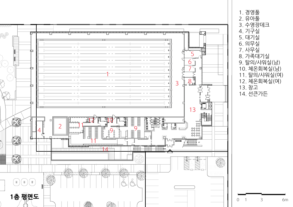
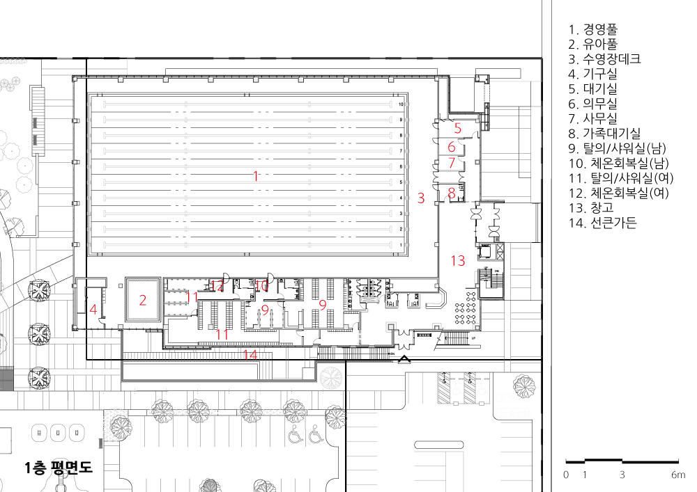
수영장 관람객을 고려한 양방향의 명확한 동선분리를 했으며, CORE를 중심으로 청소년 활동 공간을 나누어 기능·동선의 완벽한 분리를 계획했다.
8레인의 수영장, 유아 강습전 물과 친숙해질 수 있는 공간인 옥외휴게(교육공간), 아이들의 강 습과정을 지켜볼 수 있는 맘스존, 수영 관련 행사 등의 전시가 가능한 전시공간, 필요 시 응원· 무대 공간 확보기능을 가진 가변형 스탠드 등으로 공간을 형성했다.
무엇보다 상징적 이미지를 가진 장소성이 있는 커뮤니티센터로서 청소년들의 날아오르는 기상 을 모티브로 삼아 비상하는 새의 형상을 표현하는데 중점을 뒀다. 장식이 아닌 기능과 일체화된 디자인, 배경이 되는 산의 스카이라인에 순응하는 지붕선형 디자인을 계획했다.

I aimed to embody a village with flowing starts, the identity and the symbolism of stars, and the dream and direction of the youth, and express dynamic movements.
I set up the mass through the interpretation of the earth and arranged the layout to adapt to the surrounding environment. Based on the analysis of the location conditions of the site, I maximized lighting and sunshine by laying out main rooms and mass southeast and southwest, and planned landscape by taking into consideration the connection between FACADE, based on the streetscape on city axis, and Buramsan(Mt.)
At the time of the public contest, the formation of communication space by physical connection and expansion was an important concept. So I planned POOL CORE for the linkage and extension of a swimming pool function separately from the main lobby, but it is regrettable that it was eliminated since the space program changed.
I clearly separated movement lines from both sides considering the pool audience and planned the perfect separation of function and movement by dividing youth activity spaces centered on CORE.
I made a 8-lane swimming pool, an outdoor resting place(educational space), which can be familiarized with water before infant lessons, a moms’ zone where moms can watch their children’s lesson, an exhibition space for swimming-related events, and a variable stand with a function for cheer and stage. Most of all, as a community center with a symbolic image, I focused on expressing the shape of an emerging bird with the motive of the youth's soaring spirits. I planned a design integrated with a function not a decoration, and a roof linear design that conforms to the SKY-LINE of the mountain which is a background.









| 남양주별내 복합커뮤니티센터 아쿠아 아레나 50 설계자 ┃ 오승훈 KIRA ┃ (주)종합건축사사무소 한결 건축주 | 남양주시청 감리자 | (주)종합건축사사무소 동일건축 시공사 | 송아산업(주) 설계팀 | 함정현, 김교중, 홍기봉, 진정한, 이수민, 김호성, 임군재 대지위치 | 경기도 남양주시 순화궁로 313 주요용도 | 수련시설 대지면적 | 35,075,20㎡ 건축면적 | 2,779.36㎡ 연면적 | 5,814.27㎡ 건폐율 | 7.92% 용적률 | 9.98% 규모 | 지하 1층, 지상 2층 구조 | 철큰콘크리트조, 철골조 외부마감재 | 알루미늄 복합판넬, 화강석, T24 로이복층유리 내부마감재 | 화강석, 내부용 수성페인트 설계기간 | 2015. 05 ~ 2016. 05 공사기간 | 2016. 08 ~ 2018. 05 사진 | 장남진 _ (주)종합건축사사무소 한결 전문기술협력 구조분야 : (주)사림엔지니어링 기계설비분야 : 주식회사 나비환경설비컨설턴트 전기분야 : (주)극동파워테크 소방분야 : (주)주은에프에스 |
Byeollae Complex Community Center Aqua Arena 50 Architect | Oh, Seunghoon _ Hankyeol Architects & Planners Client | Namyangju City Hall Supervisor | DONG IL Architects & Engineers Co., Ltd. Construction | SONG-A CONSTRUCTION Co., Ltd. Project team | Haam, Junghyun / Kim, Kyojung / Hong, Gibong / Jin, Jeonghan / Lee, Sumin / Kim, Hosung / Im, koonjae Location | 313, Sunhwagung-ro, Namyangju-si, Gyeonggi-do, Korea Program | Training Facility Site area | 35,075,20㎡ Building area | 2,779.36㎡ Gross floor area | 5,814.27㎡ Building to land ratio | 7.92% Floor area ratio | 9.98% Building scope | B1F - 2F Structure | RC + Steel Framed Exterior finishing | AL Composite panel, Granite, T24 Low-e double glass Interior finishing | Granite, Water paint Design period | May. 2015 ~ May. 2016 Construction period | Aug. 2016 ~ May. 2018 Photograph | Jang, Namjin _ Hankyeol Architects & Planners Structural engineer | Salim Structural Consultant Co., Ltd. Mechanical engineer | Nabi, Building Environment & Equipment Design Consultant Co., Ltd. Electrical engineer | Keukdong Power Tech Co., Ltd. Fire engineer | JUEUN F.S Co., Ltd. |
'회원작품 | Projects > Public' 카테고리의 다른 글
| 의왕시 다목적 체육관 2018.12 (0) | 2022.12.11 |
|---|---|
| 광주전망대 2018.12 (0) | 2022.12.09 |
| 충주댐 물문화전시관 2018.10 (0) | 2022.12.08 |
| 천연기념물센터 전시관 리노베이션 2018.10 (0) | 2022.12.08 |
| 해돋이도서관 _ 책과 자연의 공존 2018.07 (0) | 2022.12.05 |