2022. 12. 5. 09:21ㆍ회원작품 | Projects/Public
Haedoji Library

해돋이도서관은 인천광역시 연수구 송도동 주택단지 옆에 조성된 송도해돋이공원 내에 위치해 있다. ‘책과 자 연의 공존’이라는 주제로 주민들이 도심에서 책과 함께 할 수 있는 커뮤니티가 되어, 쉬어갈 수 있는 하나의 공 간이 되고자 하는 의도에서 탄생한 곳으로, 영유아부터 노인까지 이용가능한 종합도서관이다. 1층은 어린이자 료실, 디지털 북카페, 유아방, 유아 휴게실 등이 있으며, 2층은 종합자료실과 공연장인 해돋이홀이 자리한다.

Sunrise library is located in the Songdo Sunrise Park which is constructed beside a collective housing area of Songdo-dong, Yeonsu-gu, Incheon. It was created to be a community thatthe resident can be with books in the middle of city underthe topic of'Co-existence ofbook andnature' andaplace underthe intention thatthe resident can take a rest, anditis a comprehensive library that everybody from infant to senior can utilize. On 1st floor, there are a children's library, a digital book-cafe, an infant's room and a resting room for infants, and on 2nd floor, a comprehensive materials room and a Sunrise hall locate.



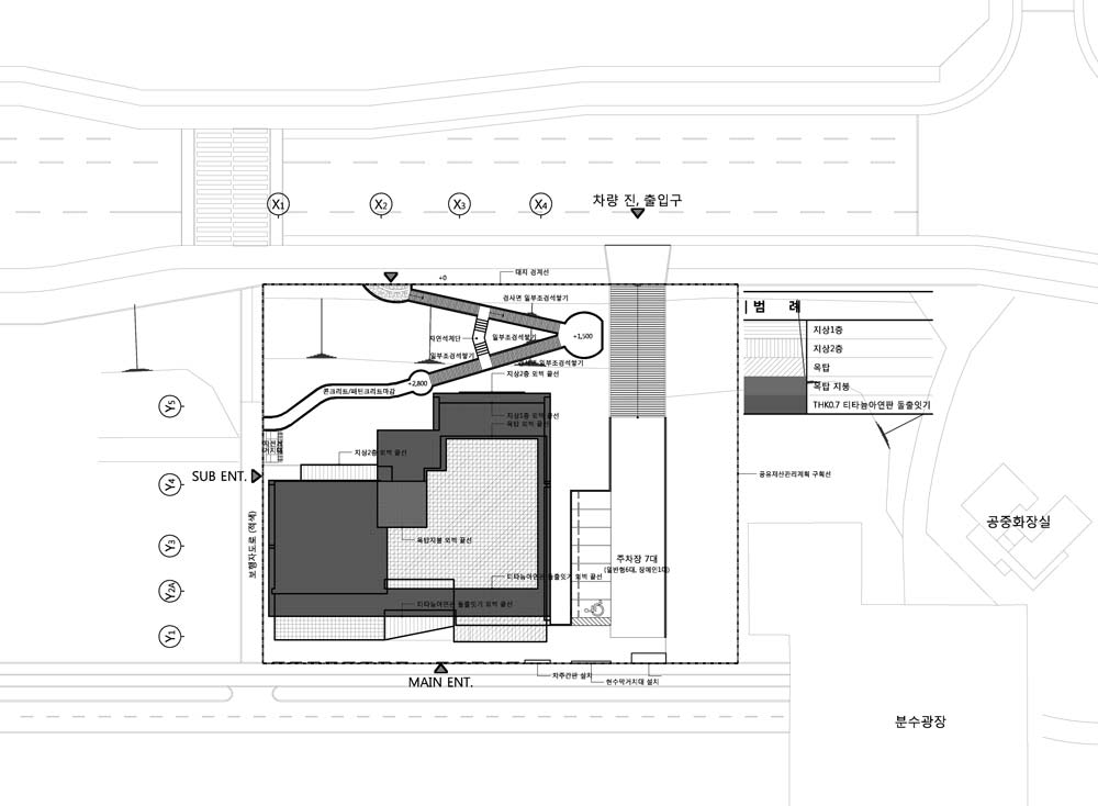
| 해돋이도서관 _ 책과 자연의 공존 설계자 ┃ 손도문 KIRA ┃ (주)비타그룹건축사사무소 건축주 연수구청학도서관 감리자 김영준 _ (주)청해종합기술공사 시공사 손경만 _ (주)아태종합건설 설계팀 염성철, 가재학, 박정애, 한성호, 남영선 대지위치 인천광역시 연수구 해돋이로 51 (송도동, 해돋이공원) 주요용도 교육연구시설(도서관) 대지면적 2,929.30㎡ 건축면적 836.66㎡ 연면적 1,490.82㎡ 건폐율 28.56% 용적률 50.89% 규모 지상 2층 구조 철근콘크리트조 외부마감재 압출성형시멘트판넬, THK0.7 티타늄아연판 설계기간 2014. 02 ~ 2015. 02 공사기간 2015. 05 ~ 2016. 02 사진 홍승훈 구조분야 김세일 _ 빛과울구조컨설팅 기계설비분야 정영호 _ 완설비엔지니어링 전기분야 최용광 _ (주)용광기술단 소방분야 이승권 _ (주)하나설비설계사무소 |
Haedoji Library Architect Sohn, Domoon _ VITA group Architecture Client Yeonsu Cheonghak Library Supervisor Kim, youngjun _ Chunghea Technology Construction Son, Kyungman _ ATAE Construction Co., Ltd Project team Yeom, Seongcheol · Ga, Jaehak · Park, Jeongae · Han, Seongho · Nam, Yeongseon Location 51, Haedoji-ro, Yeonsu-gu, Incheon, Korea / Program Education reseach facilities(Library) Site area 2,929.30㎡ Building area 836.66㎡ Gross floor area 1,490.82㎡ Building to land ratio 28.56% Floor area ratio 50.89% Building scope 2F Structure RC / Exterior finishing High pressure cement panel, THK0.7 Titanium zinc sheet Design period Feb. 2014 ~ Feb. 2015 Construction period May. 2015 ~ Feb. 2016 Photograph Hong, Seunghun Structural engineer Kim, Seil _ The POLESTRUCTURE Mechanical engineer Jeong, Yeongho _ Wan Eng. Electrical engineer Choi, Yonggwang _ YONGKWANG ENGINEERING CONSULTANT CO., LTD. Fire engineer Lee, Seunggwon _ Hana Eng CO.,LTD. |
'회원작품 | Projects > Public' 카테고리의 다른 글
| 충주댐 물문화전시관 2018.10 (0) | 2022.12.08 |
|---|---|
| 천연기념물센터 전시관 리노베이션 2018.10 (0) | 2022.12.08 |
| 검단1동 행정복지센터 2018.07 (0) | 2022.12.05 |
| 은율탈춤전수관 2018.07 (0) | 2022.12.05 |
| 용현1, 4동 행정복지센터 2018.07 (0) | 2022.12.05 |