2022. 12. 5. 09:20ㆍ회원작품 | Projects/Public
Geomdan1-dong Community Service Center

Together Village (서로 다른 우리가 함께하는 주민센터)
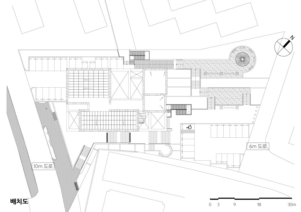
서구 검단지역의 주민수가 늘어나 검단1동의 새로운 주민센터 신축이 추진됐다. 대지는 20년 이상 된 아파트 들로 둘러싸인 곳으로, 전면과 후면의 도로 레벨차가 약 11미터 정도 되는 경사지였다. 주민센터는 흩어져 있는 건물들을 하나의 외피로 감싸는 형태를 가지며 외부마감은 검단의 지역명에서 유추 하여 적벽돌 마감으로 정했으나, 공사를 하는 과정에서 벽돌의 색상은 변경됐다. 경사를 활용해 어떤 레벨에서든 주민들의 진입을 가능하며, 소공연이 가능한 야외 공연장도 있다. 주민들의 요 구에 따라 건물 후면의 지상주차장은 기능에 따라 다양한 용도로 활용가능하도록 설계되어, 마을의 행사를 열 기도 하며 누구에게나 열린 공간으로 쓰이도록 설계됐다.

Together Village (Community Service Center that we, who are different each other, goes together)
A new building of Gumdan-1dong's Community Service Center was prosecuted The site was the place which is surrounded by over 20-years-old apartments, and was the slope site that the difference of road level between the front side and the rear side was about 11m.
Community Service Center has the shape that surrounds the scattered buildings with a external barrier, and the external finishing was decided as the red brick finishing by analogizing the name of local, Gumdan, but the color of brick was changed in the process of construction.
Utilizing the slope, the entrance of residence is possible at any level, and there is outdoor concert stage that the small concert is possible. According to the request of residence, the ground parking lot was designed to utilize as various purposes according to the function so that it is able to be held the event of village and the open space to every body.

| 검단1동 행정복지센터 설계자 ┃ 김정숙 KIRA ┃ (주)이드 건축사사무소 건축주 서구청 감리자 홍성규 _ 건축사사무소 예진 시공사 청암 종합건설주식회사 설계팀 전혜영, 정경준, 김인철 대지위치 인천광역시 서구 검단로 529번길 14(마전동) 주요용도 업무시설(공공청사) 대지면적 3,572.10㎡ 건축면적 1,033.80㎡ 연면적 2,807.40㎡ 건폐율 28.94% 용적률 78.03% 규모 지하 1층, 지상 4층 구조 철근콘크리트조 외부마감재 적벽돌치장쌓기, 티타늄아연판 내부마감재 화강석물갈기, 데코타일 설계기간 2014. 10 ~ 2015. 05 공사기간 2015. 08 ~ 2016. 10 사진 주식회사 이드건축사사무소 구조분야 (주)다스구조엔지니어링 기계설비분야 완설비 전기·소방분야 삼보기술단 |
Geomdan1-dong Community Service Center Architect Kim, Jeongsuk _ Architects' ID Client Seo-gu Office, Incheon Metrpolitan City Supervisor Hong, Sunggyu _ Yejin Architecture Construction Cheongahm Construction Project team Jeon, Hyeyoung · Jeong, Kyoungjun · Kim, Incheol Location 14, Geomdan-ro 529beon-gil, Seo-gu, Incheon, Korea Program Community Service Center / Site area 3,572.10㎡ Building area 1,033.80㎡ Gross floor area 2,807.40㎡ Building to land ratio 28.94% Floor area ratio 78.03% Building scope B1F - 4F Structure RC Exterior finishing Design brick, Titanium zinc plate / Interior finishing Grenite, Deco tile Design period Oct. 2014 ~ May. 2015 Construction period Aug. 2015 ~ Oct. 2016 Photograph Architects' ID Structural engineer DAS Structure Mechanical engineer WAN EME Electrical·Fire engineer Sambo ENG. |
'회원작품 | Projects > Public' 카테고리의 다른 글
| 천연기념물센터 전시관 리노베이션 2018.10 (0) | 2022.12.08 |
|---|---|
| 해돋이도서관 _ 책과 자연의 공존 2018.07 (0) | 2022.12.05 |
| 은율탈춤전수관 2018.07 (0) | 2022.12.05 |
| 용현1, 4동 행정복지센터 2018.07 (0) | 2022.12.05 |
| 인천 미추홀구 체육센터 2018.07 (0) | 2022.12.05 |